Na podujatí sa predstaví až 37 vystavovateľov - popredných dodávateľov stavebných materiálov a inovácií s prezentáciou...
Novotvar v prostredí alpskej obce.
Hansgrohe - prémiová značka kúpeľňových riešení, ponúka nadčasový dizajn, technickú precíznosť a udržateľné inovácie...
Využite špeciálnu akciu Internorm: okná za minuloročné ceny a hliníkový kryt úplne zadarmo. Ponuka je časovo obmedzená!
Sumarizácia najdôležitejších inovácií, ktoré redefinujúcich využitie tohto energetického zdroja.
AMPHIBIA 3000 GRIP 1.3 od spoločnosti ATRO predstavuje modernú hydroizolačnú technológiu, ktorá spája vysokú odolnosť,...
Ambiciózne plány EK narazili na ekonomické možnosti domácností v jednotlivých členských štátoch –...
IDEA DOOR od spoločnosti JAP prináša do interiéru čistý minimalistický vzhľad vďaka bezrámovému riešeniu a precíznej...
Kontinuita riešenia od vonkajšieho obkladu až po kovania a kľučky.
Nástenné nadomietkové armatúry Vitus sú mimoriadne vhodné pre rýchlu a efektívnu...
Okenné profily z kompozitného materiálu RAU-FIPRO X od spoločnosti Rehau sú v porovnaní s tradičnými plastovými profilmi mnohonásobne...
Najnovší sortiment stolov pre zariadenie interiérov...
Spojenie moderného dizajnu, funkčnosti a svetla do harmonického architektonického prvku.
Kancelárska budova Baumit v slovinskom Trzine prešla premenou na moderné a udržateľné pracovisko. Architekti kládli dôraz...
Mottom šiesteho ročníku on-line konferencie odborníkov Xella Dialóg je Efektívny návrh budov 2025+: zmeny a riešenia

Lokalita
Hájpark stojí v bývalom technickom areáli na Kutlíkovej ulici v Petržalke. Lokalita sa nachádza neďaleko dunajskej hrádze, dostihovej dráhy a jazera Malý Draždiak. Projekt bol pomenovaný podľa blízkej chránenej oblasti Starého hája. Starý dunajský ostrov je obkolesený riečnym ramenom a porastom lužných lesov. V priebehu tohto roka bude dokončená aj druhá etapa projektu - Hájpark II, na ktorej sa podieľajú architekti z ateliéru GutGut. Obe etapy by mali po dokončení tvoriť súbor komunitného bývania v blízkosti zelene.
Koncept
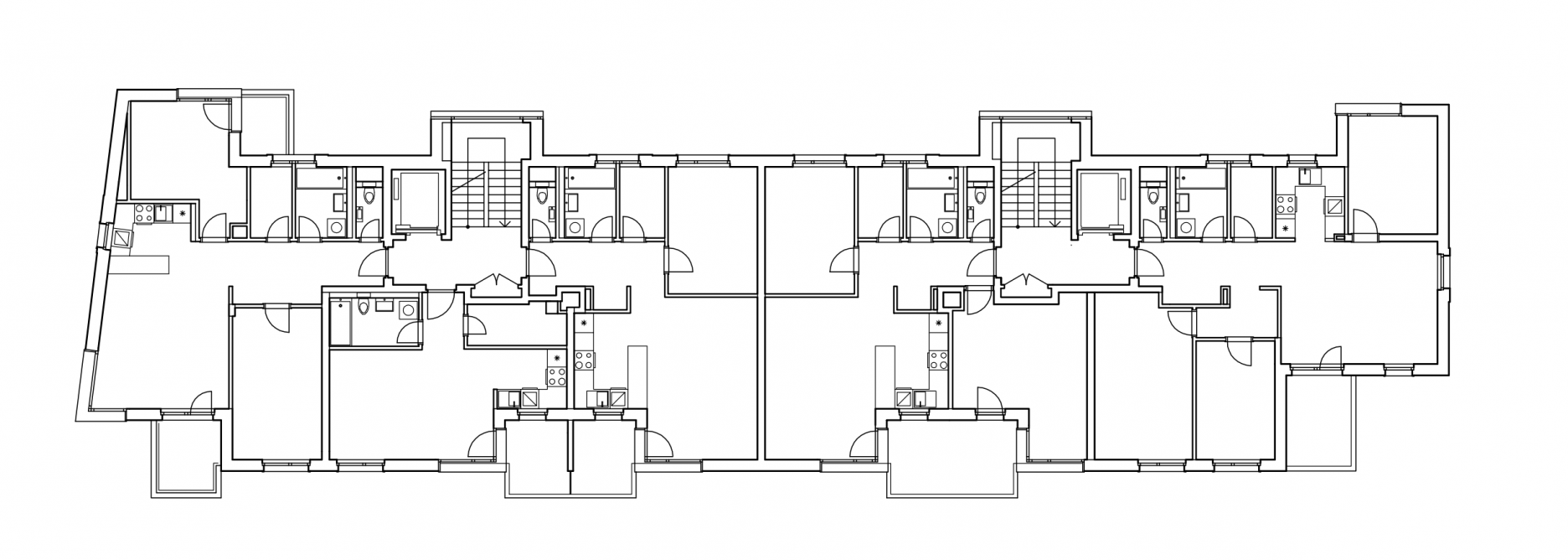
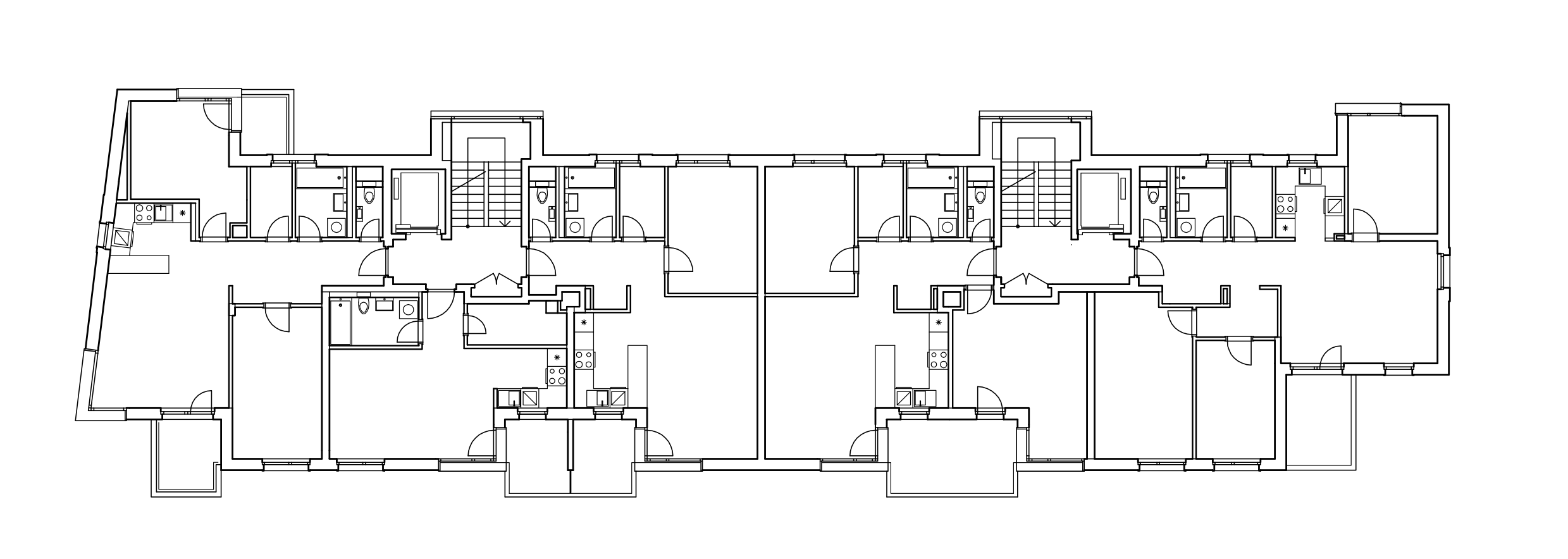
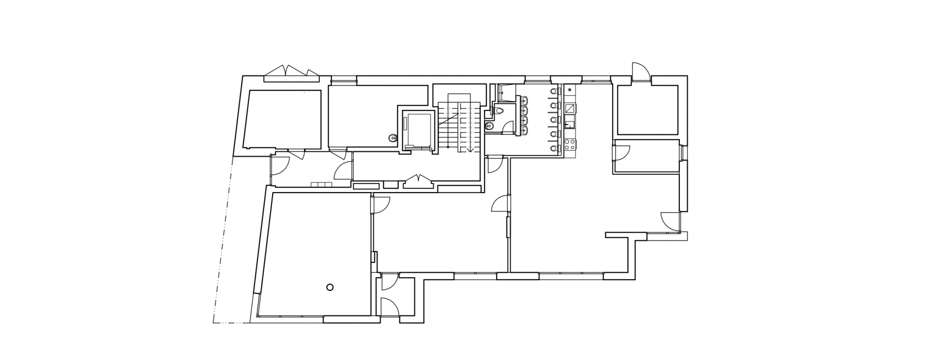
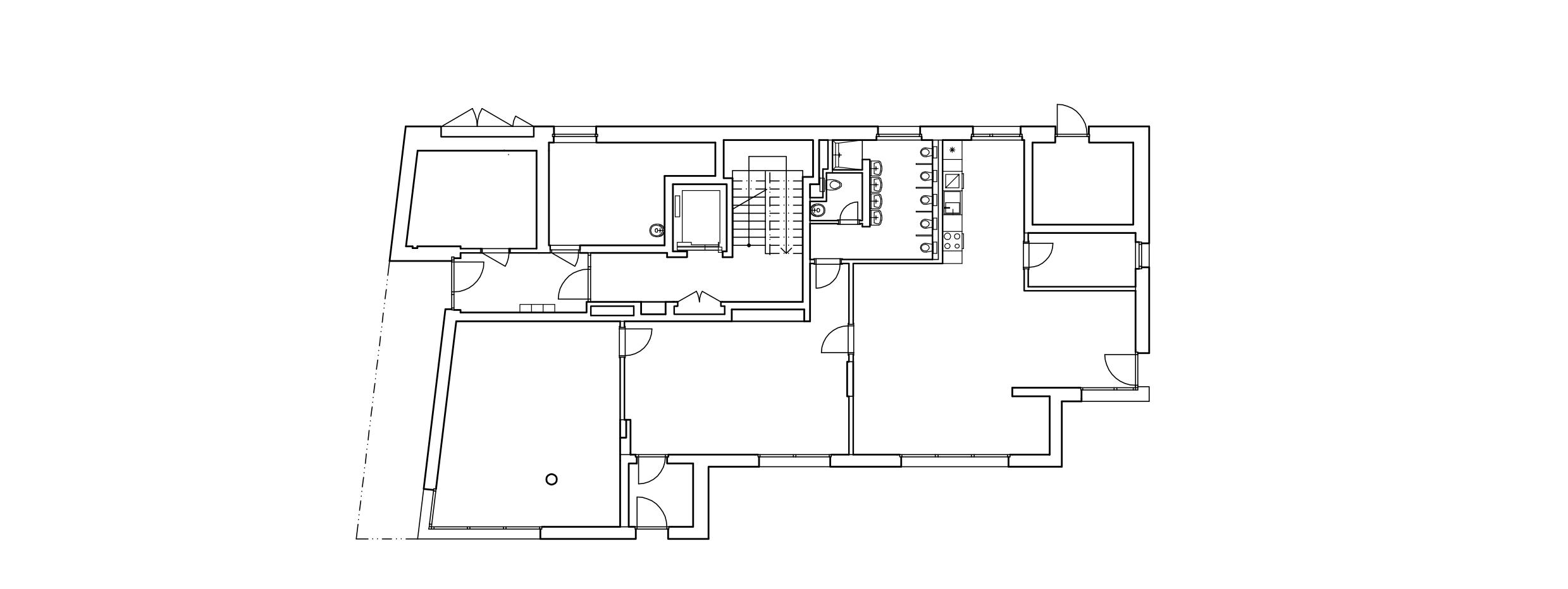
Prvú etapu Hájparku tvoria dva 5 a 6 podlažné objekty s celkovým počtom 27 bytov. Pestrá skladba bytov začína na jednoizbových s plochou 35 m2 a končí pri veľkoplošných päťizbových bytoch s rozlohou 114 m2.
Dispozícia
Špecifickou črtou projektu Hájpark je vnútorná flexibilita. Každý z bytov poskytuje viacero možných riešení dispozície (3 až 6 variát) a záujemca má možnosť výberu. Väčšina bytov je orientovaná na dve svetové strany. Presvetlené a odvetrané sú všetky kuchyne a väčšina kúpeľní. Okná a lodžia majú nízky parapet, ktorý je do výšky 110 cm doplnený predsadenou tabuľou skla. Lodžie so štvorcovým pôdorysom a s výmerou 5m2 poskytujú dostatok priestoru na plnohodnotné využitie a umiestnenie nábytku.
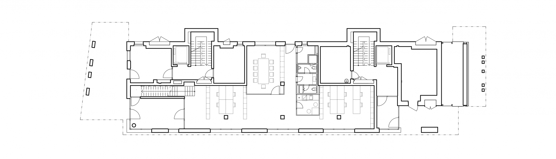
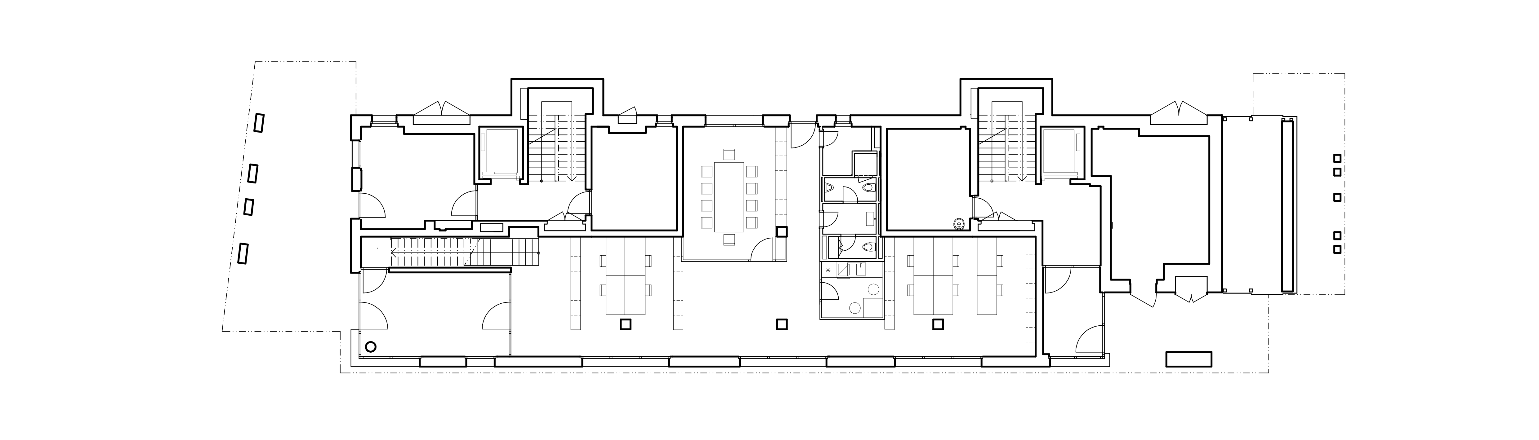
V parteri menšieho objektu sa nachádza materská škola a v parteri väčšieho objektu sídlo developerskej spoločnosti. Po dokončení druhej etapy pribudne spoločenská sála, kaviareň a wellness. V každom vchode je samostatná miestnosť na bicykle s uzamykaním.
Záhrada
Medzi dvomi objektami vznikol vnútroblok s bohatou zeleňou. Autormi karjinnej architektúry sú Michal Marcinov a Ivan Juhás. Riešenie zachováva pôvodnú morfológiu terénu a množstvo zelene. Aj z tohto dôvodu neboli pod prvou etapou Hájparku navrhnuté podzemné garáže. Terénna vlna umožnila zaujímavé krajinárske riešenie a umiestnenie šmykľavky. Ekologický aspekt návrhu spočíva vo využití dažďovej vody v areáli a zavlažovaní vodou z vlastnej studne. Vznik susedskej komunity podporuje spoločná záhrada, ihrisko a park.
Čo Hájparku predchádzalo
Idea flexibilných bytov nie je u Drahana Petroviča nová. Téme sa dlhodobo venoval už počas štúdia na Fakulte architektúry STU u profesora Tužinského. Projekt s názvom Ohľaduplná prefabrikácia skúmal možnosť individuálneho tvarovania obytných kapsúl.
Po skončení štúdia pokračoval s experimentálnym projektom Veža výberov. 600 metrová obytná superštruktúra umožňovala výber podlažia, komunity, typ bytu a jeho dispozície.
Po viacročnom pôsobení v Kanade a realizácii niekoľkých rezidenčných projektov (vrátane 100 metrových obytných veží vo Vancuveri) sa Drahan Petrovič po návrate na Slovensko opäť začal venovať téme vnútornej flexibility. “Po prvý krát od školy som si tento prístup otestoval v projekte Nový háj, kde som prišiel s ideou vnútornej flexibility bytov - v každom som vytvoril od 3 do 6 viacero zásadne odlišných alternatív.“ dodáva architekt. Budúci obyvatelia tak mohli zväčšovať či zmenšovať plochu bytu a participovať na návrhu, čo sa prejavilo aj na architektúre objektu.
Podklady: Drahan Petrovič, Imagine Development