Advertorial

Vytvorte si kúpeľňu snov: dizajnové riešenie od značky hansgrohe

Hansgrohe - prémiová značka kúpeľňových riešení, ponúka nadčasový dizajn, technickú precíznosť a udržateľné inovácie...

Okná Internorm za minuloročné ceny + hliníkový kryt zdarma!

Využite špeciálnu akciu Internorm: okná za minuloročné ceny a hliníkový kryt úplne zadarmo. Ponuka je časovo obmedzená!

Pozvánka na 2. ročník stavebného veľtrhu BigMarket na Slovensku

Na podujatí sa predstaví až 37 vystavovateľov - popredných dodávateľov stavebných materiálov a inovácií s prezentáciou...

Moderné plynové technológie: Efektivita a inovácie pre 21. storočie

Sumarizácia najdôležitejších inovácií, ktoré redefinujúcich využitie tohto energetického zdroja.

Utesňovanie spodných stavieb pomocou hydro-aktívnej fólie AMPHIBIA.

AMPHIBIA 3000 GRIP 1.3 od spoločnosti ATRO predstavuje modernú hydroizolačnú technológiu, ktorá spája vysokú odolnosť,...

Dekarbonizácia individuálneho vykurovania domácností – Green Deal evolučne a nie revolučne

Ambiciózne plány EK narazili na ekonomické možnosti domácností v jednotlivých členských štátoch –...

Minimalistické dvere IDEA – technická precíznosť a čistota prevedenia

IDEA DOOR od spoločnosti JAP prináša do interiéru čistý minimalistický vzhľad vďaka bezrámovému riešeniu a precíznej...

Dom s výhľadom na údolie, Dlouhý Most (ČR)

Kontinuita riešenia od vonkajšieho obkladu až po kovania a kľučky.

Schell Vitus – osvedčené riešenie pre sprchy a umývadlá vo verejnom sektore s viac ako desaťročnou tradíciou

Nástenné nadomietkové armatúry Vitus sú mimoriadne vhodné pre rýchlu a efektívnu...

Kompozitné okná predstavujú súčasnosť a budúcnosť

Okenné profily z kompozitného materiálu RAU-FIPRO X od spoločnosti Rehau sú v porovnaní s tradičnými plastovými profilmi mnohonásobne...

Myotis - stoly 2025

Najnovší sortiment stolov pre zariadenie interiérov...

Priemyselné sklenené priečky Dorsis Digero: svetelné rozhranie pre moderné interiéry

Spojenie moderného dizajnu, funkčnosti a svetla do harmonického architektonického prvku.

Význam prirodzeného svetla pre moderné a flexibilné pracovné prostredie

Kancelárska budova Baumit v slovinskom Trzine prešla premenou na moderné a udržateľné pracovisko. Architekti kládli dôraz...

Konferencia Xella Dialóg predstaví novinky a trendy v stavebníctve

Mottom šiesteho ročníku on-line konferencie odborníkov Xella Dialóg je Efektívny návrh budov 2025+: zmeny a riešenia

Murovací robot WLTR stavia svoj prvý dom na Slovensku

Robot WLTR predstavuje moderný prístup k murovaným konštrukciám. Vďaka automatizácii dokáže rýchlo, presne a bezpečne realizovať...

Bytový dom PARI, Bratislava

Prvá realizácia, ktorá je súčasťou revitalizácie areálu Bratislavskej Cvernovky.
Diela
Red 420.09.2018
83120+44
Bytový dom PARI, Bratislava
Ateliér: filloarchitektiAutori: Ing. arch. Pavol Citovický, Ing. arch. Marek FilloInvestor: YIT Slovakia a.s.Návrh: 2015 - 2016Realizácia: 2017 - 2018Adresa: Páričková ulica 1099/22, Bratislava, SlovenskoPublikované: 20. september 2018

Areál bývalej Bratislavskej cvernovej továrne sa v blízkej budúcnosti zmení na štvrť s prevládajúcou funkciou bývania. V území, ktorého dominantou je pamiatkovo chránená Pradiareň, bola nedávno dokončená prvá realizácia. Niekdajšia robotnícka ubytovňa v severovýchodnom nároží priemyselného bloku, na Páričkovej ulici, zmenila svoju funkciu a bola nadstavaná o dve podlažia. V súčasnosti zastrešuje 88 menších bytov a obchodné priestory v parteri. Autormi prestavby sú architekti Pavol Citovický a Marek Fillo z bratislavského ateliéru Citovický Fillo Architekti. Bude zaujímavé sledovať ďalší stavebný vývoj v oblasti. Porovnávať kvalitu architektonického riešenia i kvalitu realizácie jednotlivých objektov tohto ostro sledovaného bloku. Uvidíme, ako sa v budúcnosti podarí naplniť koncept súťažného návrhu ateliéru Compass. Ten zvíťazil vo vyzvanej urbanisticko-architektonickej súťaži vyhodnotenej v závere roka 2016. 

Realizáciu bližšie predstavia architekti:

Zámerom investora bolo objekt bývalej ubytovne na Páričkovej ulici v Bratislave zrekonštruovať na bytový dom. Lokalita objektu je v tesnom dotyku s industriálnym komplexom Cvernovky a Dulovým námestím. Táto skutočnosť bola jedným z limitujúcich faktorov rekonštrukcie.

Pred začatím prác na projekte sme vykonali podrobný stavebný prieskum jestvujúcich konštrukcií tak, aby sme mohli investorovi potvrdiť správnosť uvažovaného zámeru. Pôvodný objekt bol čiastočne podpivničený, mal 5 nadzemných podlaží a jedno ustupujúce podlažie s terasou a podkrovím.

Naším zadaním bolo jestvujúci objekt prebudovať na moderný bytový dom s nadstavbou dvoch nadzemných podlaží a so zachovaním obchodných prevádzok v parteri, čo je charakteristická črta objektov v tejto lokalite.

Foto: Tomáš Manina
Autor: Citovický Fillo Architekti

Konštrukčne bol pôvodný objekt kombináciou murovanej stavby (obvodové steny a vnútorné stĺpy) a prefabrikovaných prvkov (stropné panely a nosné stropné trámy). Prefabrikovaný bol aj pôvodný krov, ktorý bol celý asanovaný.

Z dôvodu nadstavby dvoch ďalších nadzemných podlaží, bolo potrebné posilniť všetky nosné vnútorné murované stĺpy vložením novej oceľovej spriahnutej konštrukcie až na úroveň prízemia a suterénu. Nosná konštrukcia nadstavby je z oceľových rámov. Stropné dosky sú riešené ako spriahnuté plechodosky s betónovým poterom.

Objekt má dve samostatné sekcie, do ktorých sme doplnili výťahy, čo bol z hľadiska jestvujúcej konštrukcie asi najkomplikovanejší zásah, aj vzhľadom na realizáciu a postup výstavby.

Foto: Tomáš Manina
Foto: Tomáš Manina
Foto: Tomáš Manina

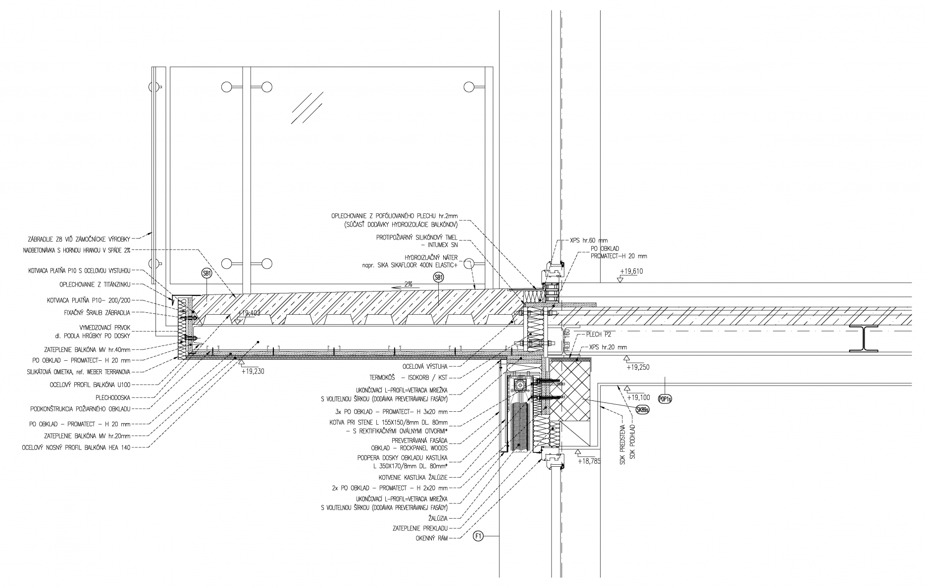
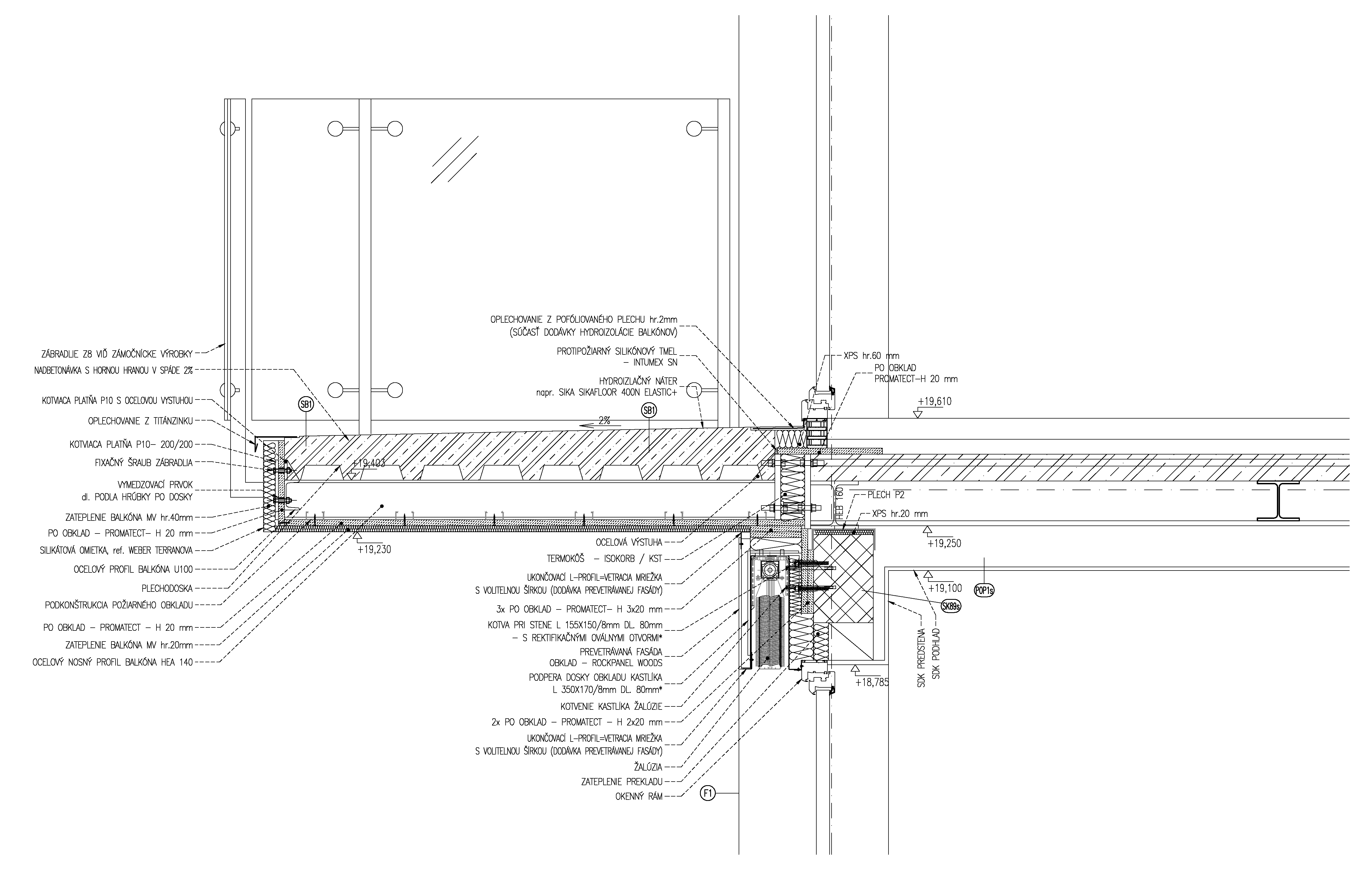
Pre všetky byty sme navrhli nové balkóny, ktoré nesie vykonzolovaná oceľová konštrukcia s prerušením tepelného mosta - isocorb. Podlahy balkónov sú opatrené polyuretánovým náterom so vsypom.

Všetky nenosné deliace konštrukcie sú sadrokartónové, vzhľadom na požiadavku statika na dodatočné zaťaženie celej stavby. Z tohto dôvodu bolo potrebné vyriešiť množstvo realizačných detailov súvisiacich s akustikou a protipožiarnou ochranou budovy.

Samotný návrh dbal na použitie kvalitných obkladových materiálov. Asi najväčšou výzvou pre nás bolo vymyslieť a skĺbiť uličnú fasádu so šikmou strechou a dvorovú fasádu s plochou strechou tak, aby bolo v náznaku viditeľné, čo je pôvodný dom a čo nadstavba. Zároveň našim zámerom bolo, aby objekt pôsobil kompaktne a zapadol do konceptu budúcej výstavby areálu Cvernovky.

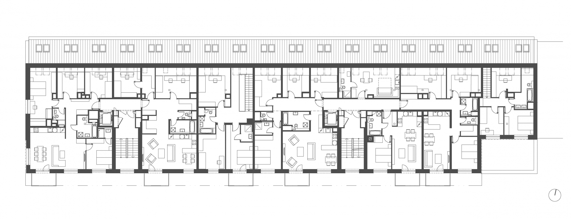
Pôdorys 6. NP
Pôdorys 6. NPAutor: Citovický Fillo Architekti
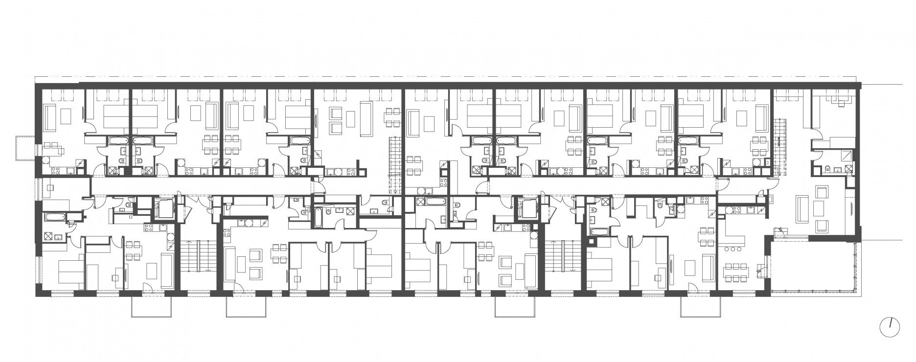
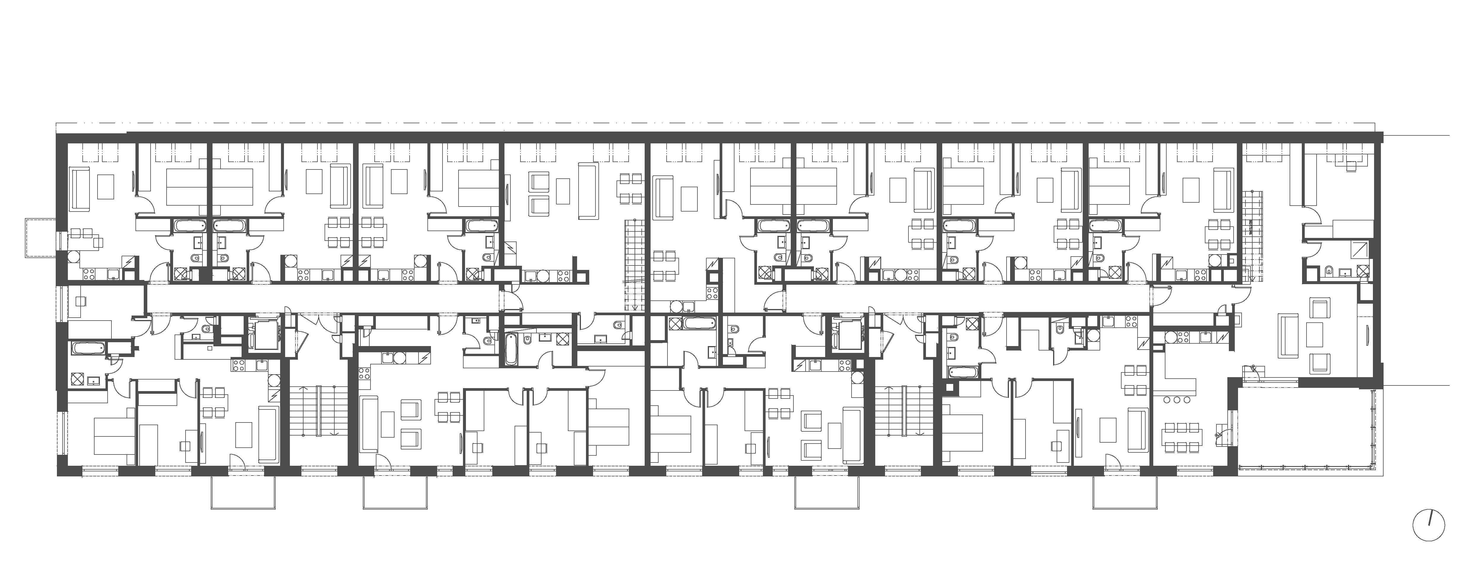
Pôdorys 7. NP
Pôdorys 7. NPAutor: Citovický Fillo Architekti
Priečny rez
Priečny rezAutor: Citovický Fillo Architekti

Celý parter je navrhnutý s obkladom z režného muriva, ktorý je ukončený na druhom poschodí priebežnou rímsou, ktorú sme zachovali z pôvodného objektu . Vstupy do objektu sú zvýraznené zmenou materiálu fasády v tejto časti, použili sme na to omietku imitujúcu pohľadový betón, ktorú sme tiež použili aj pre parapety obchodných priestorov. Fasáda na druhom až piatom poschodí je omietnutá štandardnou  bledosivou omietkou. Na dvoch najvyšších podlažiach je použitá prevetrávaná fasáda z alucobondu s dreveným dekorom, ktorý je čiastočne použitý aj ako výplň na balkónových zábradliach. Strecha je v dvorovej časti ukončená vykonzolovaným „šiltom“. Uličná fasáda je na najvyšších podlažiach ukončená šikmou strechou s čiernou škridlou s úpravou voči prehrievaniu.

Z dôvodu naznačenia, čo bol pôvodný dom a čo je nadstavba, sme zvolili aj zmenu výplne zábradlia na balkónoch a terase. Na 6. a 7. poschodí má zábradlie bodovo kotvenú sklenenú výplň, ktorá necháva vyniknúť materiálový kontrast na fasáde.

Foto: Tomáš Manina
Foto: Tomáš Manina
Foto: Tomáš Manina
Foto: Tomáš Manina
Foto: Tomáš Manina
Foto: Tomáš Manina

Koncept interiéru spoločných priestorov sme navrhli v podobnom duchu ako exteriér. Každá sekcia má svoju farebnosť. Okrem vstupného podlažia, kde je položený na podlahe gress, je všade použité akustické pvc. Farebne je vždy zvýraznená výťahová šachta, kde sme použili benátsku štuku. Ten istý farebný odtieň je použitý aj na vstupných dverách do bytov.

Foto: Tomáš Manina
Foto: Tomáš Manina
Foto: Tomáš Manina
Foto: Tomáš Manina
Foto: Tomáš Manina
Foto: Tomáš Manina
Foto: Tomáš Manina
Foto: Tomáš Manina
Foto: Tomáš Manina
Foto: Tomáš Manina

Projekt PARI zastrešuje 88 bytových jednotiek s plochou 7415 m2 a 6 obchodných priestorov. 177 parkovacích miest je dočasne vyhradených vo vnútrobloku. Stále miesta budú situované v podzemných garážach areálu novej Cvernovky. Jestvujúce stromy, ktoré sú v tesnom dotyku s rekonštruovanou bodovou, sa podarilo zachovať. Všetky byty vo vnútrobloku majú predprípravu na osadenie klimatizácie a vonkajšie žalúzie, ktoré sú podomietkové.

Detail kotvenia balkónovej konštrukcie
Detail kotvenia balkónovej konštrukcieAutor: Citovický Fillo Architekti
Detail prahu balkónových dverí a skrytej žalúzie
Detail prahu balkónových dverí a skrytej žalúzieAutor: Citovický Fillo Architekti

Podklady: Citovický Fillo Architekti

Za výborné fotografie ďakujeme Tomášovi Maninovi.

Poloha diela

Ing. arch. Pavol Citovický
Ing. arch. Marek Fillo

Súvisiace články

Vložené
12. september 2018
0
8312
Hlavný obsahHlavný obsah
Čakajte prosím