Využite špeciálnu akciu Internorm: okná za minuloročné ceny a hliníkový kryt úplne zadarmo. Ponuka je časovo obmedzená!
Na podujatí sa predstaví až 37 vystavovateľov - popredných dodávateľov stavebných materiálov a inovácií s prezentáciou...
Sumarizácia najdôležitejších inovácií, ktoré redefinujúcich využitie tohto energetického zdroja.
AMPHIBIA 3000 GRIP 1.3 od spoločnosti ATRO predstavuje modernú hydroizolačnú technológiu, ktorá spája vysokú odolnosť,...
Ambiciózne plány EK narazili na ekonomické možnosti domácností v jednotlivých členských štátoch –...
IDEA DOOR od spoločnosti JAP prináša do interiéru čistý minimalistický vzhľad vďaka bezrámovému riešeniu a precíznej...
Kontinuita riešenia od vonkajšieho obkladu až po kovania a kľučky.
Nástenné nadomietkové armatúry Vitus sú mimoriadne vhodné pre rýchlu a efektívnu...
Okenné profily z kompozitného materiálu RAU-FIPRO X od spoločnosti Rehau sú v porovnaní s tradičnými plastovými profilmi mnohonásobne...
Najnovší sortiment stolov pre zariadenie interiérov...
Spojenie moderného dizajnu, funkčnosti a svetla do harmonického architektonického prvku.
Kancelárska budova Baumit v slovinskom Trzine prešla premenou na moderné a udržateľné pracovisko. Architekti kládli dôraz...
Mottom šiesteho ročníku on-line konferencie odborníkov Xella Dialóg je Efektívny návrh budov 2025+: zmeny a riešenia
Robot WLTR predstavuje moderný prístup k murovaným konštrukciám. Vďaka automatizácii dokáže rýchlo, presne a bezpečne realizovať...
Okrem bezpečnosti majú okná aj elegantný vzhľad, pretože nie sú viditeľné žiadne uzamykacie časti kovania.

Z dielne ateliéru CITYPROJEKT
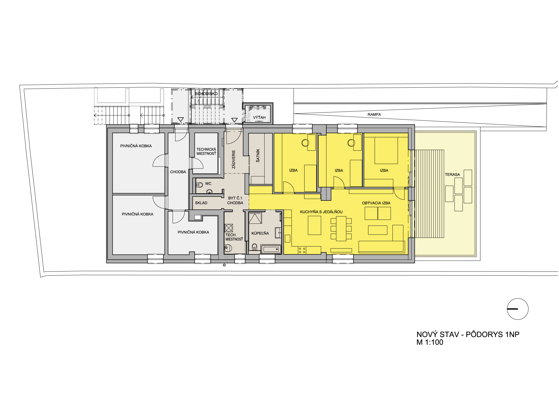
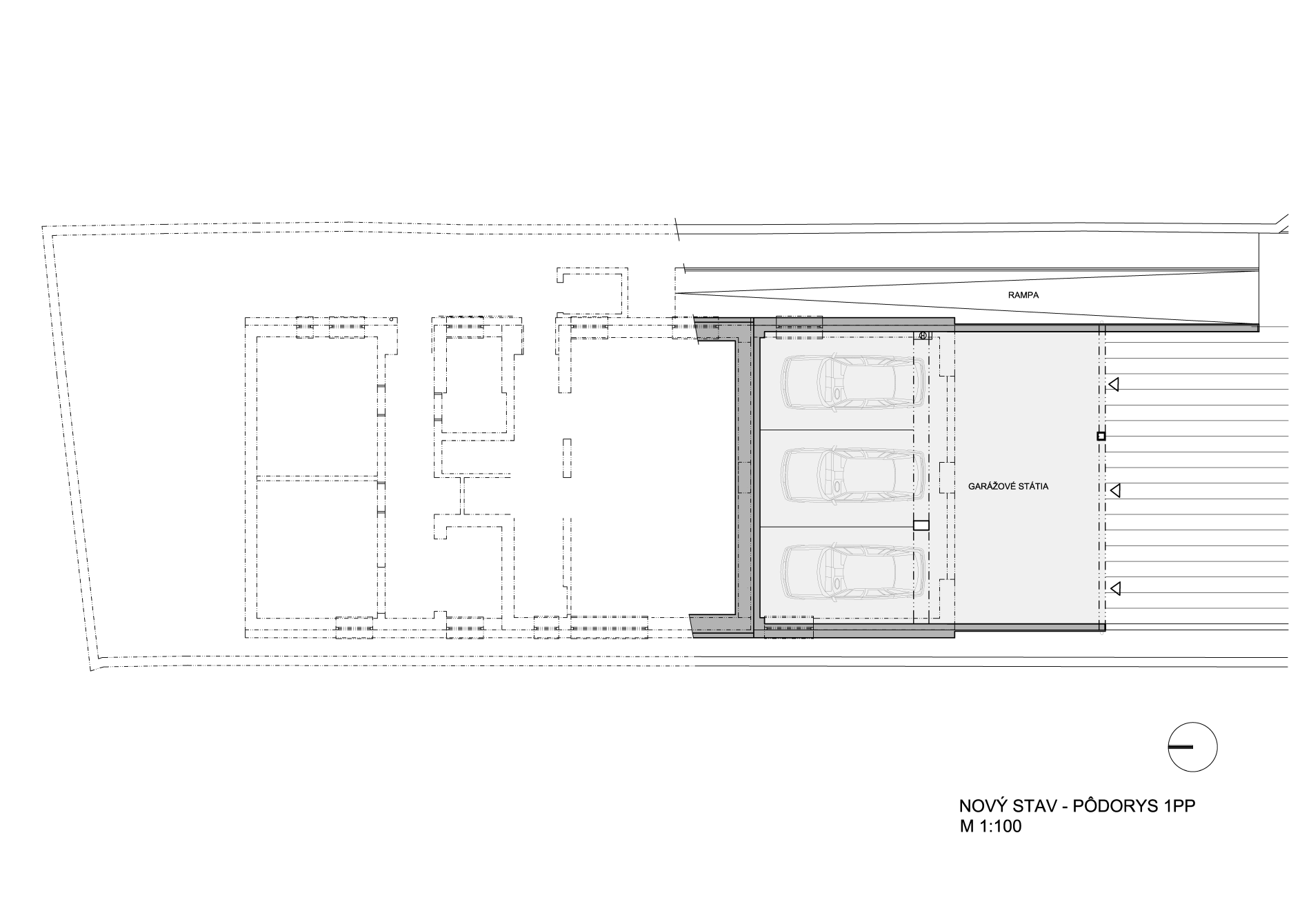
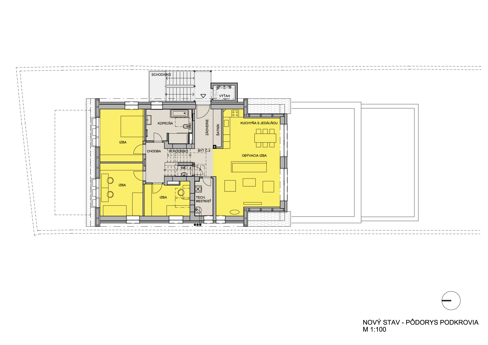
V bratislavskej Karlovej Vsi vznikli po komplexnej rekonštrukcii tri samostatné bytové jednotky. Projekt odstránil bariéry v pôvodnom viacgeneračnom dome z roku 2004, doplnil výťah so schodiskom a pod objekt vložil nové podzemné parkovanie. Medzi dôležité aspekty projektu patrilo zlepšenie energetickej bilancie objektu.
Kontext a zadanie
Dom sa nachádza v zástavbe rodinných domov v dotyku s Jezuitským lesom. Výrazne svahovitý pozemok je orientovaný v osi sever–juh. Klienti požadovali tri samostatné byty a výrazné zníženie bariér. Keďže územie je v územnom pláne vedené ako stabilizované, návrh sa viackrát upravoval v koordinácii s magistrátom a mestskou časťou tak, aby rešpektoval limity aj charakter lokality.
Usporiadanie a prístup
Nové exteriérové schodisko s výťahom je umiestnené na východnej fasáde, so vstupmi do bytov situovanými v strede dispozícií. Prístup k vertikálnej komunikácii je zo spodnej časti pozemku po bezbariérovej vyhrievanej rampe.
Parkovanie bolo vyriešené kombináciou podzemných a terénnych stojísk: pod objektom pribudlo podzemné podlažie s komfortnými garážovými miestami; ďalšie parkovanie je pred domom na spevnených plochách z drenážnej dlažby.
Energetika a technológie
Obnova cielila na zlepšenie energetickej bilanci objektu. Ideálna južná orientácia strechy umožnila osadenie fotovoltaiky a solárnych panelov na podporu vykurovania a ohrevu TÚV. Fasáda aj podkrovie sú nadštandardne zateplené proti prehrievaniu. Súčasťou riešenia sú trojkomorové drevohliníkové okná a presklené steny.
V dome je nové podlahové vykurovanie, každý byt má vlastný kondenzačný plynový kotol. Kompletnou obnovou prešli zdravotechnika, elektroinštalácie, vzduchotechnika a klimatizácia. V 1. PP je nabíjacia stanica pre elektromobily.
Voda a zeleň
Dažďová voda sa zachytáva v retenčnej nádrži a slúži na automatické zavlažovanie zelene na pozemku aj terasách. Všetky terasy majú extenzívne zelené vrstvy doplnené vegetáciou v kvetináčoch. Riešenie znižuje prehrievanie konštrukcií a zadržiava zrážkovú vodu priamo na pozemku.
Dispozícia bytov
1. nadzemné podlažie: priestranný 4-izbový byt s kompletným zázemím a terasou. V zadnej, čiastočne podzemnej časti sú nadštandardné pivnice pre všetky byty a technická miestnosť na úpravu vody s prístupom z exteriéru.
2. nadzemné podlažie: 5-izbový byt s terasou a vlastnou záhradou. V duchu pôvodného polpodlažného konceptu je denná časť bezbariérová a nočná časť vyzdvihnutá o pol podlažia, s priamym bezbariérovým napojením do zadnej záhrady.
3. nadzemné podlažie: 5-izbový podkrovný byt so strešnou terasou a výhľadom; dispozícia je rozdelená na dennú a nočnú časť s výškovým rozdielom o pol podlažia.
Konštrukčné riešenie
Zmeny dispozícií si vyžiadali vložené oceľové výmeny na zabezpečenie komfortných otvorených priestorov. Vzhľadom na stav a nové zaťaženie technológiami bol pôvodný krov kompletne nahradený. Prístavba výťahu je železobetónová, tepelne chránená a oddilatovaná od hlavného objektu. Exteriérové schodisko je montované oceľové, žiarovo zinkované; stupnice a medzipodesty sú z pororoštov.
Ateliér: CITYPROJEKT
Fotografie: Tomáš Manina