Využite špeciálnu akciu Internorm: okná za minuloročné ceny a hliníkový kryt úplne zadarmo. Ponuka je časovo obmedzená!
Na podujatí sa predstaví až 37 vystavovateľov - popredných dodávateľov stavebných materiálov a inovácií s prezentáciou...
Sumarizácia najdôležitejších inovácií, ktoré redefinujúcich využitie tohto energetického zdroja.
AMPHIBIA 3000 GRIP 1.3 od spoločnosti ATRO predstavuje modernú hydroizolačnú technológiu, ktorá spája vysokú odolnosť,...
Ambiciózne plány EK narazili na ekonomické možnosti domácností v jednotlivých členských štátoch –...
IDEA DOOR od spoločnosti JAP prináša do interiéru čistý minimalistický vzhľad vďaka bezrámovému riešeniu a precíznej...
Kontinuita riešenia od vonkajšieho obkladu až po kovania a kľučky.
Nástenné nadomietkové armatúry Vitus sú mimoriadne vhodné pre rýchlu a efektívnu...
Okenné profily z kompozitného materiálu RAU-FIPRO X od spoločnosti Rehau sú v porovnaní s tradičnými plastovými profilmi mnohonásobne...
Najnovší sortiment stolov pre zariadenie interiérov...
Spojenie moderného dizajnu, funkčnosti a svetla do harmonického architektonického prvku.
Kancelárska budova Baumit v slovinskom Trzine prešla premenou na moderné a udržateľné pracovisko. Architekti kládli dôraz...
Mottom šiesteho ročníku on-line konferencie odborníkov Xella Dialóg je Efektívny návrh budov 2025+: zmeny a riešenia
Robot WLTR predstavuje moderný prístup k murovaným konštrukciám. Vďaka automatizácii dokáže rýchlo, presne a bezpečne realizovať...
Okrem bezpečnosti majú okná aj elegantný vzhľad, pretože nie sú viditeľné žiadne uzamykacie časti kovania.

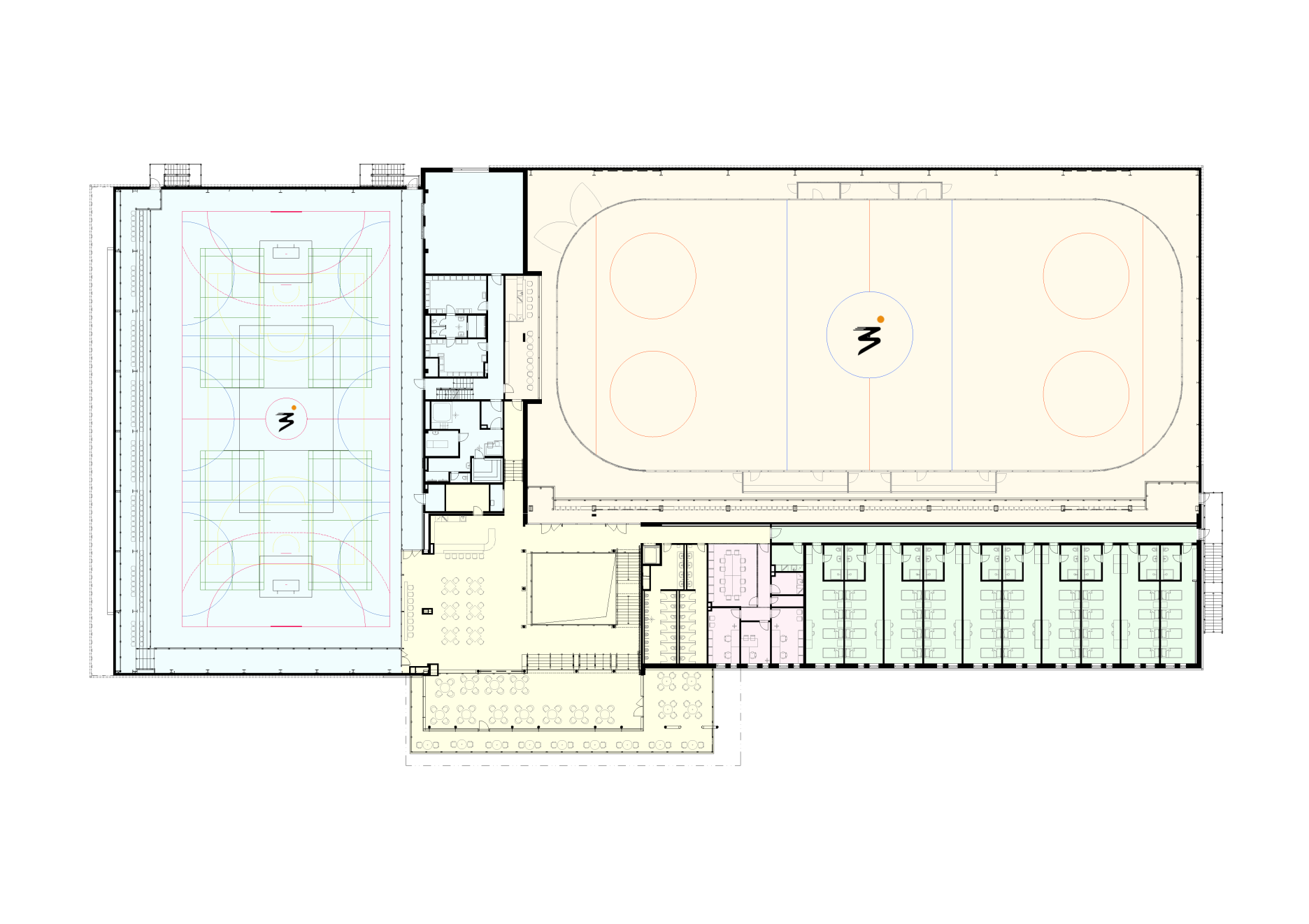
Kompozícia dvoch hál so spoločným parterom z dielne ateliéru CITYPROJEKT orientuje dianie k pešej promenáde, pričom prostredníctvom priehľadov a galériií prepája interiér s verejným priestorom. Interiér priznáva oceľovo-betónovú konštrukciu a technické rozvody, ktoré dopĺňa drevený obklad s akustickou funkciou. Výsledná podoba podľa slov autorov reflektuje dynamiku športových aktivít.
Realizáciu bližšie predstavíme prostredníctvom sprievodného autorského textu:
Šport aréna v Malackách je umiestnená v lokalite nazývanej Píla, ktorá bola historicky industriálna a dá sa charakterizovať ako typický brownfield. Od 19. storočia sa tu nachádzala píla na spracovanie dreva, ktorej majiteľmi boli Pálffiovci. Aktuálne sa celé územie transformuje zmenou územného plánu do novej štvrte s bytovou výstavbou. Je v tesnom dotyku so železničným koridorom, v blízkosti železničnej stanice a jej záchytného parkoviska. Mesto Malacky tu súbežne s arénou budovalo cyklochodník s pešou promenádou, ktorá bude po dokončení prepájať túto lokalitu s centrom Malaciek a Zámockým parkom.
Náš ateliér bol oslovený v rámci vyzvanej súťaže, kde hlavnými kritériami pre výber projektantov boli referencie s týmto typom stavieb a cena za projekt. Zadanie sme spracovávali na základe objemovej štúdie dodanej mestom Malacky. Základné požiadavky boli navrhnúť dve športové haly s komplexným zázemím, ktoré by zabezpečili športovcom každodenné tréningové možnosti, ako aj umožniť usporiadanie turnajov a kempov, tak, aby mohlo vzniknúť ucelené tréningové centrum s vyšším štandardom.
Našou ideou bolo nájsť charakteristickú formu budovy tak, aby svojou hmotou vyjadrovala dynamickosť športových aktivít. Keďže išlo o pomerne veľké haly a objemy, hľadali sme formu hmoty tak, aby fasáda nebola „monotónna krabica“ a zároveň nebola agresívna voči prostrediu a mala primeranú mierku a rešpekt k pôvodnej lokalite. Navrhli sme jednoduchý motív predsadených lamiel – pôvodný zámer, aby boli drevené, nám dodatočne požiarnici neumožnili, a z toho dôvodu sú použité hliníkové. Fasáda je takto z každého pohľadu iná. Celodennou hrou tieňov a farebnosťou lamiel sa „rozbijú“ veľké plochy a zároveň je to zjednocujúci motív celého komplexu. Ako charakteristický akcent arény sme vytvorili prekrytie vstupu a terasy retailu pomocou konzoly s výraznou farebnosťou, ktorú nesú cez dve podlažia „véčkové“ stĺpy. Tie majú symbolizovať stromy Záhoria.
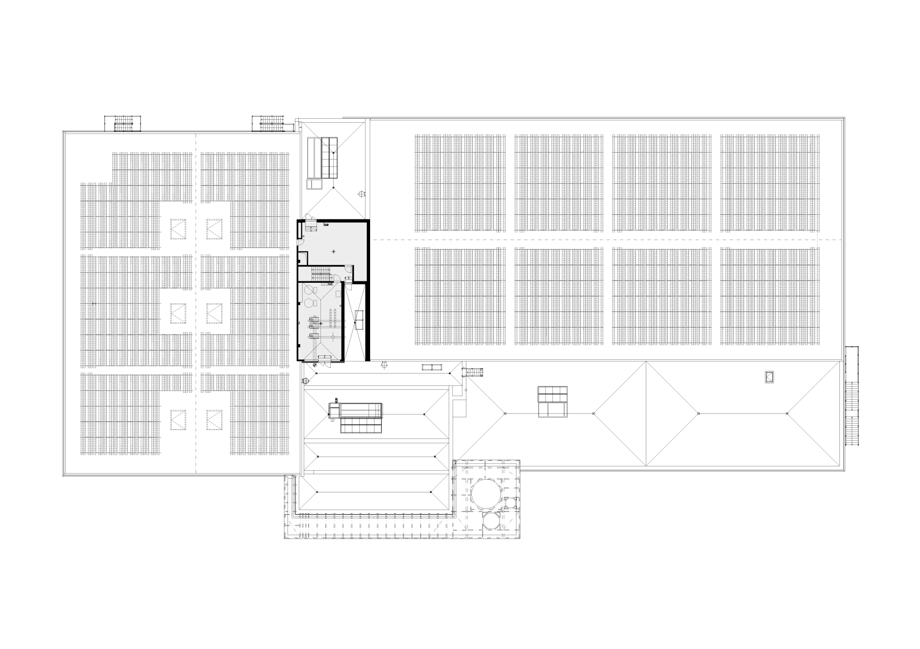
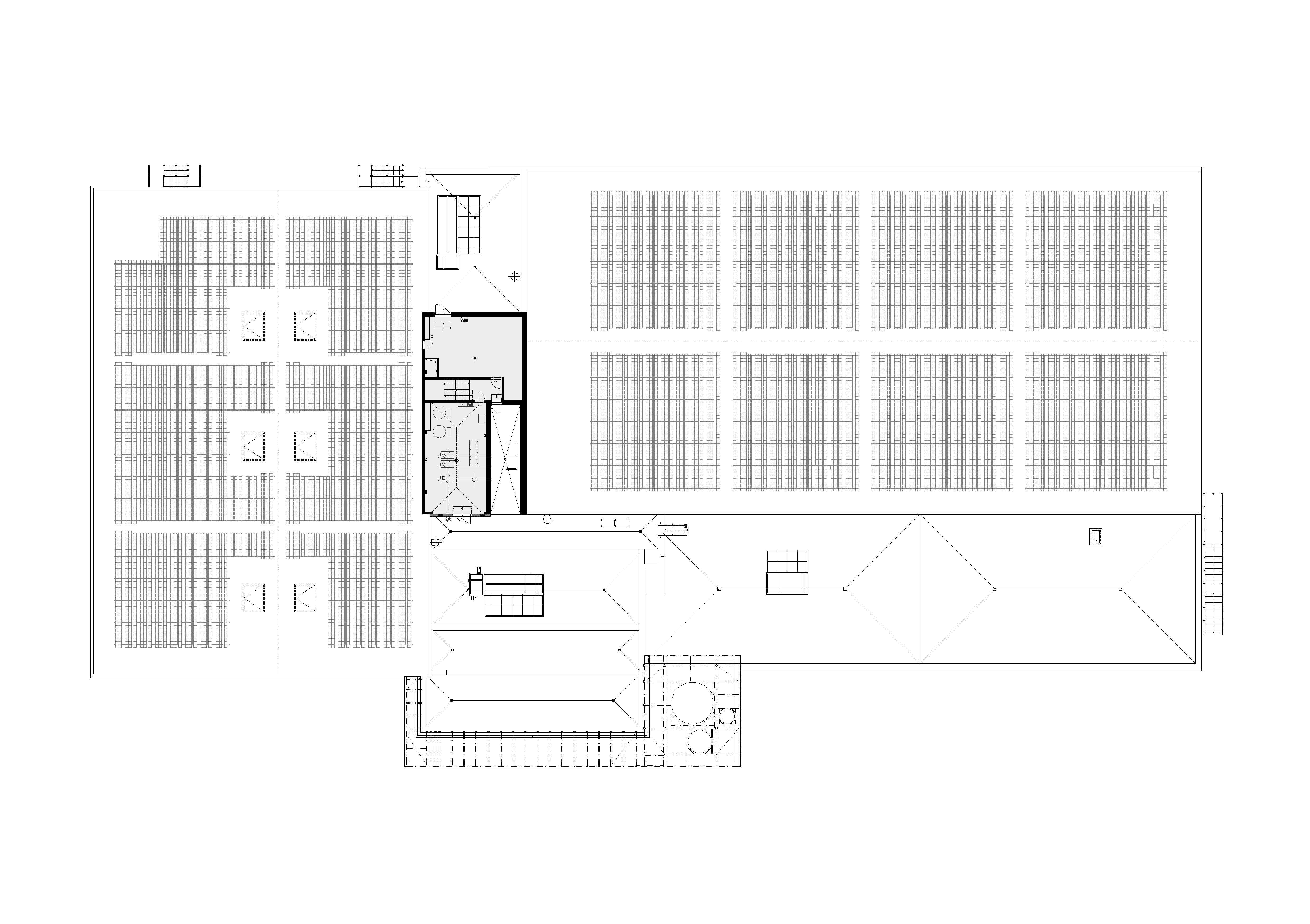
Vzhľadom na pomerne množstvo funkčných celkov bolo náročné navrhnúť celkovú prevádzku objektu tak, aby bola čo najviac prehľadná. Koncepčne sme určili pre každú prevádzku vlastnú farebnosť a materiálové riešenie. Základom dizajnu je pohľadový betón s priznaným betónovým murivom v kontraste s dreveným obkladom a sendvičovým panelom. Všetky inštalácie a rozvody sú priznané na povrchu.
Napriek tomu, že obe haly sú riešené ako tréningové, počítali sme s veľkým pohybom ľudí, preto sme navrhli vstupné priestory s otvorenou galériou, s retailom na poschodí a terasou, aby bolo možné takýto počet osôb pohodlne rozptýliť. Obe podlažia prepája výťah a dve vnútorné schodiská.
Na prízemí sú zo vstupnej haly s recepciou a obchodom prístupné obe športové haly aj s celým zázemím. Hala s ľadovou plochou je navrhnutá s kapacitou 100 osôb. Na 1. NP má osem šatní, z toho dve VIP. Dve šatne majú vždy spoločnú zdieľanú kúpeľňu. Pre potreby hokejistov je tu trenažér s komplexným diagnostickým vybavením, priestory pre rozhodcov so zázemím a priestor pre zdravotníka. Na 2. NP je menšie hľadisko a priestory VIP, prístupné z retailu. Hala je zariadená aj pre návštevu verejnosti so šatňami a požičovňou korčúľ a ich brúskou.
Multifunkčná športová hala má kapacitu 500 osôb s dvoma hľadiskami, jedno je na prízemí formou teleskopickej tribúny, na poschodí je tribúna klasická spolu s ochodzami aj pre státie divákov. Halu je možné sieťou rozdeliť na dve samostatné časti. Je navrhnutá s povrchom Gerflor najmä pre hádzanú a florbal. Čiary sú nakreslené aj pre volejbal, basketbal a štyri kurty bedmintonu. Hala má šesť šatní na 1. a 2. NP, majú samostatný vchod tak, aby športovci mali bezkolíznu prevádzku s divákmi a bol zabezpečený hygienický filter. Súčasťou tejto haly sú priestory pre regeneráciu športovcov so saunou, ochladzovacím bazénom, vírivkou a priestorom na masáže. Priestor rozcvičovne a fitnesu je cez presklené steny prepojený so športovou halou tak, aby tréneri a športovci mohli spolu komunikovať. Za teleskopickým hľadiskom sa nachádzajú sklady pre športové vybavenie. Hala je cez presklenú fasádu otvorená do pešej promenády, tak, aby bolo možné sledovať dianie v nej aj z exteriéru.
Na poschodí je vizuálne s multifunkčnou halou aj s halou s ľadovou plochou prepojený priestor retailu spolu s barom tak, aby diváci mali prehľad, čo sa v halách deje. Priestory retailu a vstupnej haly sme prepojili s motívom drevených lamiel. Tento obklad sme použili aj pre steny v multifunkčnej hale na zvýšenie akustického komfortu.
Na 2. NP je umiestnená správa objektu s komplexným zázemím a na ňu nadväzuje trakt ubytovania s desiatimi izbami pre 40 osôb, každá izba má vlastnú kúpeľňu.
V 3. NP je kompletné technické zázemie objektu, kotolňa a VZT. Technológia chladenia ľadovej plochy je na 1. NP a na streche objektu. Na strechách oboch hál je navrhnutá fotovoltika, ktorá sa bude realizovať po získaní dotácie.
Konštrukčne sú haly realizované z oceľových profilov, vstupná hala s retailom a ubytovací trakt sú železobetónové. Opláštenie je sendvičovými panelmi RUUKKI. Všetky otvory fasády sú hliníkové a ako zábradlie je v celej aréne použitá nerezová sieť napnutá na lankách.
Parkovisko pre arénu je realizované zo zámkovej dlažby. Cyklostojany pre bicykle sa nachádzajú pred vstupom do arény. Súčasťou nových komunikácií je aj pripravovaná zastávka pre MHD, ktorá slúži aj ako parkovisko pre autobusy. Nové plochy zelene sú realizované najmä so stromami a drobnou udržateľnou výsadbou, pre ktorú je realizovaná automatická závlaha. Odpadové hospodárstvo je separované a je umiestnené v polopodzemných nádobách za arénou. V rámci energetického hodnotenia je aréna v kategórii A0 podľa primárnej energie a v kategórii A celkovej potreby energie budovy.
Ateliér: CITYPROJEKT
Fotografie: Tomáš Manina