Na podujatí sa predstaví až 37 vystavovateľov - popredných dodávateľov stavebných materiálov a inovácií s prezentáciou...
Novotvar v prostredí alpskej obce.
Hansgrohe - prémiová značka kúpeľňových riešení, ponúka nadčasový dizajn, technickú precíznosť a udržateľné inovácie...
Využite špeciálnu akciu Internorm: okná za minuloročné ceny a hliníkový kryt úplne zadarmo. Ponuka je časovo obmedzená!
Sumarizácia najdôležitejších inovácií, ktoré redefinujúcich využitie tohto energetického zdroja.
AMPHIBIA 3000 GRIP 1.3 od spoločnosti ATRO predstavuje modernú hydroizolačnú technológiu, ktorá spája vysokú odolnosť,...
Ambiciózne plány EK narazili na ekonomické možnosti domácností v jednotlivých členských štátoch –...
IDEA DOOR od spoločnosti JAP prináša do interiéru čistý minimalistický vzhľad vďaka bezrámovému riešeniu a precíznej...
Kontinuita riešenia od vonkajšieho obkladu až po kovania a kľučky.
Nástenné nadomietkové armatúry Vitus sú mimoriadne vhodné pre rýchlu a efektívnu...
Okenné profily z kompozitného materiálu RAU-FIPRO X od spoločnosti Rehau sú v porovnaní s tradičnými plastovými profilmi mnohonásobne...
Najnovší sortiment stolov pre zariadenie interiérov...
Spojenie moderného dizajnu, funkčnosti a svetla do harmonického architektonického prvku.
Kancelárska budova Baumit v slovinskom Trzine prešla premenou na moderné a udržateľné pracovisko. Architekti kládli dôraz...
Mottom šiesteho ročníku on-line konferencie odborníkov Xella Dialóg je Efektívny návrh budov 2025+: zmeny a riešenia

Výstavba v jednej z najväčších rezidenčných zón na Slovensku sa začala pred trinástimi rokmi. Rozvoj celej zóny Slnečnice – Južné Mesto je od začiatku spojený s menom ateliéru Compass Architekti. Podľa návrhu bratislavského štúdia boli počas minulého roku v zóne Viladomy dokončené domy S11, S12 a S13. K nim aktuálne pribudli aj domy S14 a S 15, ktoré uzavreli predposlednú stavebnú etapu tejto časti.
Zóna využíva potenciál lokality pre účely bývania v blízkosti rieky Dunaj a lužných lesov. Charakterizuje ju nižšia intenzita zástavby a viac zelene, ako v prípade časti Mesto. Drahšie byty s dôrazom na komunitný charakter bývania nadviazali na prvú (projekt získal cenu ARCH v roku 2013) a druhú etapu Viladomov. V prvej fáze vznikol uzavretý mestský blok s vnútorným poloverejným parkom. V druhej fáze zvolili architekti koncepciu mestských víl, medzi ktorými vznikol zaujímavý vyvýšený verejný priestor.
Aktuálne dokončená tretia etapa nadväzuje na nastavený urbanizmus zóny, ktorá na severe susedí so zeleňou. Kompaktný obvod zóny, ktorý definuje dvojica šesťpodlažných líniových domov S 11 a S 12. Zástavbu vo vnútri zóny tvoria bodové domy s vnútroblokovou štruktúrou predzáhradok a parkom.
Kompozičným ohniskom je centrálny priestor s členitým reliéfom, vzrastlou zeleňou a hlavnou pešou komunikáciou spájajúcou jednotlivé bytové bloky. Južne od tohto priestoru prechádza rozsiahly park.
Dôležitým aspektom architektonického konceptu je vertikálne členenie bytových domov.
Riešenie bolo zvolené s ohľadom na efektivitu výstavby a potrebu parkovacích miest a najmä optimálne výškové osadenie bytov voči verejnému priestoru.
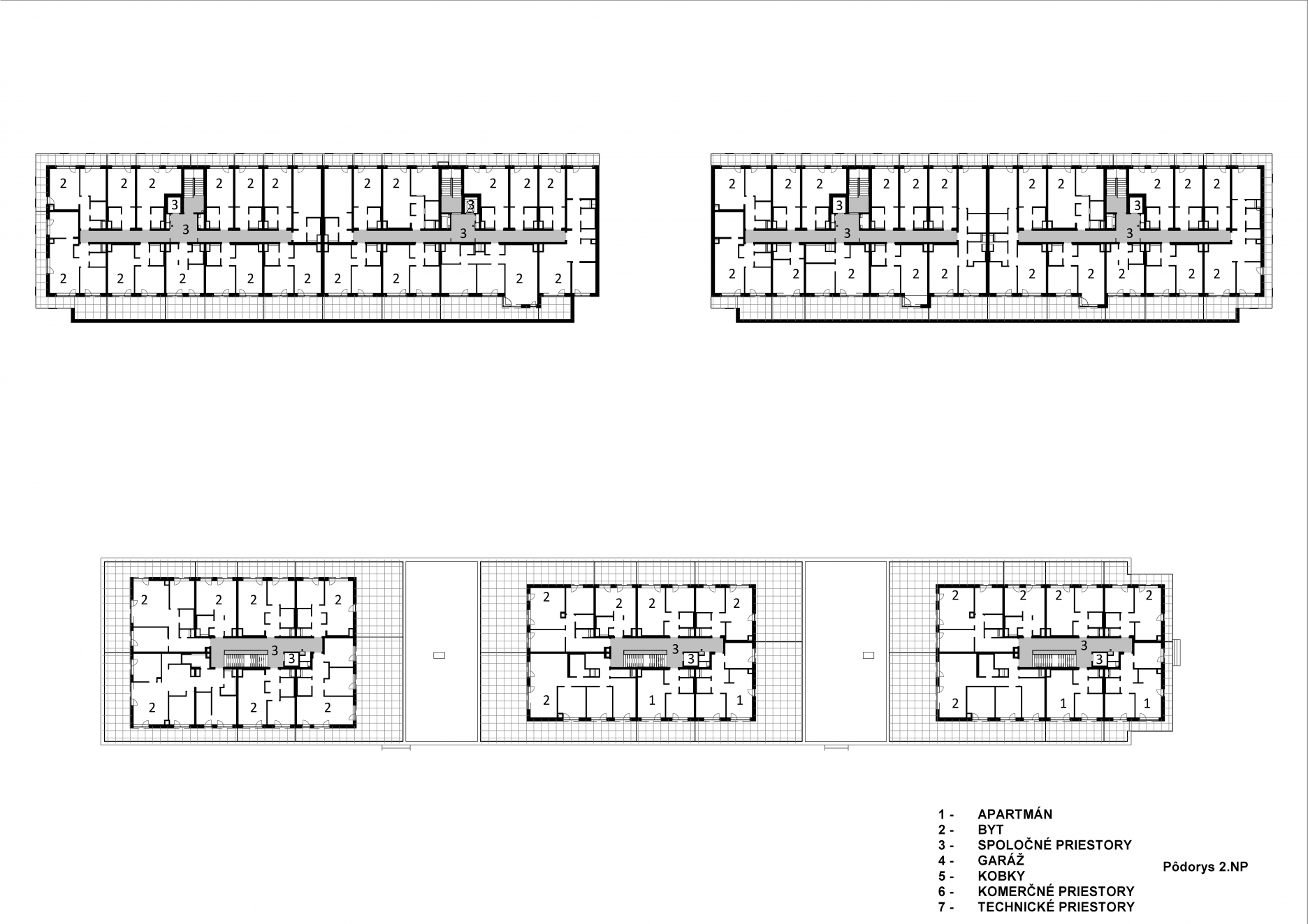
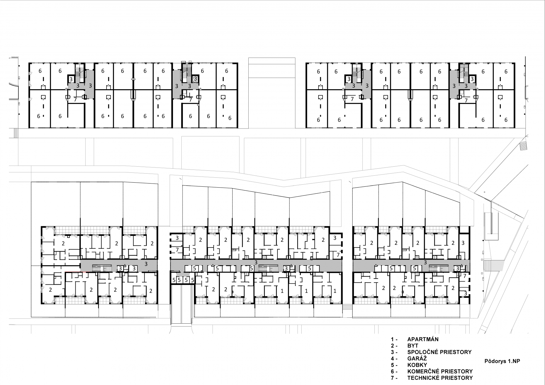
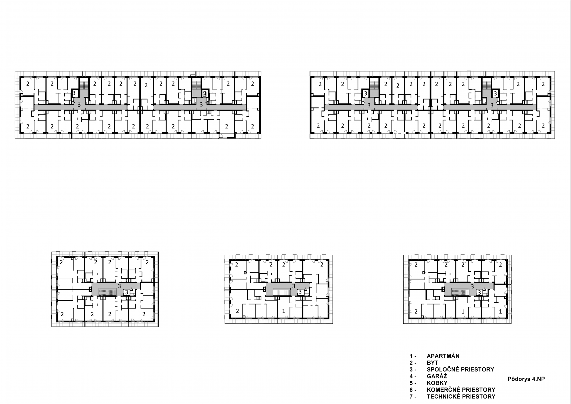
Líniové domy S11 A S12 majú zapustené garáže na úrovni 1.PP. Na úrovni prízemia, v priamej nadväznosti na pešie trasy sú umiestnené obchodné prevádzky a služby. Druhé až šieste podlažie tvoria byty.
Bodové domy S 13 prepája v suteréne podnož spoločných garáží. Byty na prízemí majú vlastné predzáhradky.
V objektoch S11, 12 a 13 vzniklo 323 bytov. Obytnú plochu prevažne štvorizbových jednotiek rozširujú priestranné balkóny, strešné terasy, alebo spomínané predzáhradky.
Nosná konštrukcia objektov, je koncipovaná ako monolitický železobetónovy skelet, doplnený železobetónovými a murovanými stužujúcimi (nosnými) stenami.
Architektúra domov nesie čitateľný rukopis ateliéru Compass. Charakteristické priebežné balkóny tvoria medzipriestor medzi živým exteriérom a intimitou bytov. Dynamický prvok do kompozície vnášajú paravány, ktoré sa osvedčili aj v prvej etape projektu. Ustúpené južné fasády objektov vytvárajú preslnené terasy. Monochromatická farebná schéma, oživená prírodnou farebnosťou dreva necháva vyniknúť štruktúru a materiál. Vertikálny reliéf omietky na najvyšších podlažiach opticky zjemňuje objem monobloku.
Spolu s aktuálnou etapou výstavby vyrástol v Slnečniciach centrálny mestský park. Pri návrhu parku spolupracoval Compass s ateliérom LABAK. Detské ihrisko, výbeh pre psy, veľké multifunkčné ihrisko, alebo workout zónu dopĺňa neobvyklá trávnatá mohyla s výhľadom.
Výstavbu v lokalite Viladomy v dohľadnej dobe uzavre pätica terasových domov na severnom okraji územia
Podklady: Compass Architekti
Foto: BoysPlayNice
Použité materiály a riešenia: oplotenie a prekrytie plynomeru systémovým riešením
Gerhardt Braun