Na podujatí sa predstaví až 37 vystavovateľov - popredných dodávateľov stavebných materiálov a inovácií s prezentáciou...
Novotvar v prostredí alpskej obce.
Hansgrohe - prémiová značka kúpeľňových riešení, ponúka nadčasový dizajn, technickú precíznosť a udržateľné inovácie...
Využite špeciálnu akciu Internorm: okná za minuloročné ceny a hliníkový kryt úplne zadarmo. Ponuka je časovo obmedzená!
Sumarizácia najdôležitejších inovácií, ktoré redefinujúcich využitie tohto energetického zdroja.
AMPHIBIA 3000 GRIP 1.3 od spoločnosti ATRO predstavuje modernú hydroizolačnú technológiu, ktorá spája vysokú odolnosť,...
Ambiciózne plány EK narazili na ekonomické možnosti domácností v jednotlivých členských štátoch –...
IDEA DOOR od spoločnosti JAP prináša do interiéru čistý minimalistický vzhľad vďaka bezrámovému riešeniu a precíznej...
Kontinuita riešenia od vonkajšieho obkladu až po kovania a kľučky.
Nástenné nadomietkové armatúry Vitus sú mimoriadne vhodné pre rýchlu a efektívnu...
Okenné profily z kompozitného materiálu RAU-FIPRO X od spoločnosti Rehau sú v porovnaní s tradičnými plastovými profilmi mnohonásobne...
Najnovší sortiment stolov pre zariadenie interiérov...
Spojenie moderného dizajnu, funkčnosti a svetla do harmonického architektonického prvku.
Kancelárska budova Baumit v slovinskom Trzine prešla premenou na moderné a udržateľné pracovisko. Architekti kládli dôraz...
Mottom šiesteho ročníku on-line konferencie odborníkov Xella Dialóg je Efektívny návrh budov 2025+: zmeny a riešenia

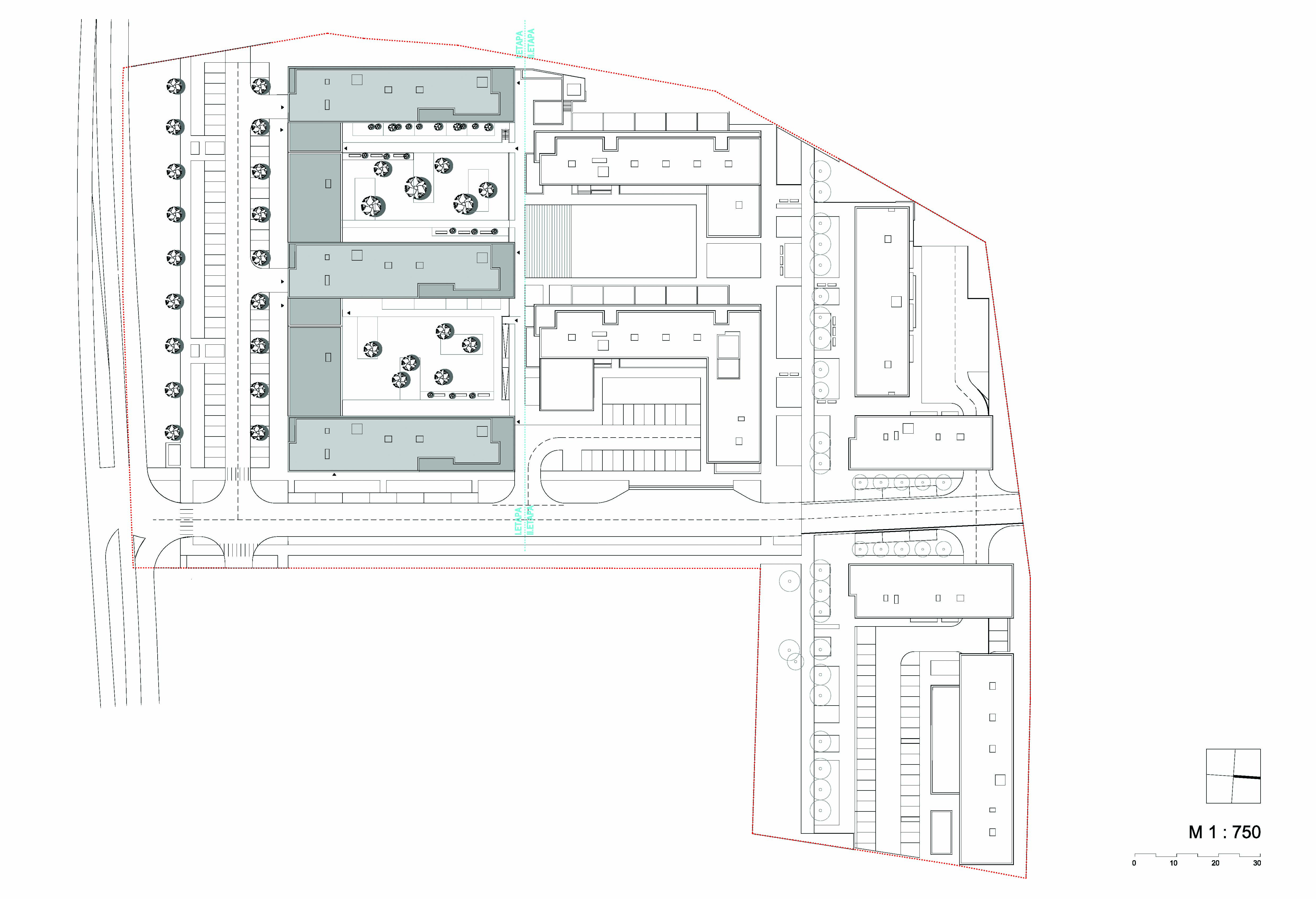
Riešené územie sa nachádza na severnej periférii mesta Zvolen, v časti Čierne zeme – Rákoš na Strážskej ceste pri areáli závodu „DRU Zvolen“. Pozitívne pôsobí neďaleký meander rieky Hron a relatívna blízkosť mestského centra, prístupného aj peši prechádzkovou trasou.
Z podnetu Mesta Zvolen bol v roku 2006 spracovaný Územný plán zóny Zvolen – Čierne zeme – Rákoš (Architecture UNA s r.o), ktorý má regulovať zástavbu v zábere niekoľkých hektárov a transformovať územie skladovo-výrobných areálov na novú mestskú zónu zmiešanej funkcie s prevahou bývania.
Obytný súbor tak vznikol doslova na zelenej lúke uprostred polí a kontext sa naplno uplatní až realizáciou širšieho záberu v lokalite. Realizovaný trojzubec je len počiatkom ďalšej výstavby, 2.etapa sa rozbehne do hĺbky polí, vytvorí druhý plán a komplex získa tretí rozmer - pre život na periférii dôležitý faktor rezidenčnej identifikácie.
Pôvodný investor, ktorý realizoval aj bratislavský Rozadol, tentokrát definoval požiadavku na rovnako kvalitný komplex, ale v kategórii „low cost“. Žiadne drevené okná, žiadna keramika a plech na fasáde, žiadne podzemné garáže a žiadne zelené strechy. Len omietky, plast a parking na teréne. Zvolenský trh nemá nákupnú silu trhu bratislavského. Keď architekt pozná tieto limity už na začiatku, môže ich prijať ako výzvu.
Od územného rozhodnutia po kolaudáciu ubehlo osem rokov, vymenili sa investori aj dodávatelia stavby. Omietka a plast nepovýšili, avšak komfort podzemných garáží a zelené strechy vnútroblokov sa do architektúry nakoniec dostali. A kríza priniesla aj malý zázrak – namiesto 7-podlažných objektov sa realita ustálila na výške 5-tich podlaží. Stavba získala príjemnú malomestskú mierku, ospalému mestu Zvolen takú adekvátnu.