Hansgrohe - prémiová značka kúpeľňových riešení, ponúka nadčasový dizajn, technickú precíznosť a udržateľné inovácie...
Využite špeciálnu akciu Internorm: okná za minuloročné ceny a hliníkový kryt úplne zadarmo. Ponuka je časovo obmedzená!
Na podujatí sa predstaví až 37 vystavovateľov - popredných dodávateľov stavebných materiálov a inovácií s prezentáciou...
Sumarizácia najdôležitejších inovácií, ktoré redefinujúcich využitie tohto energetického zdroja.
AMPHIBIA 3000 GRIP 1.3 od spoločnosti ATRO predstavuje modernú hydroizolačnú technológiu, ktorá spája vysokú odolnosť,...
Ambiciózne plány EK narazili na ekonomické možnosti domácností v jednotlivých členských štátoch –...
IDEA DOOR od spoločnosti JAP prináša do interiéru čistý minimalistický vzhľad vďaka bezrámovému riešeniu a precíznej...
Kontinuita riešenia od vonkajšieho obkladu až po kovania a kľučky.
Nástenné nadomietkové armatúry Vitus sú mimoriadne vhodné pre rýchlu a efektívnu...
Okenné profily z kompozitného materiálu RAU-FIPRO X od spoločnosti Rehau sú v porovnaní s tradičnými plastovými profilmi mnohonásobne...
Najnovší sortiment stolov pre zariadenie interiérov...
Spojenie moderného dizajnu, funkčnosti a svetla do harmonického architektonického prvku.
Kancelárska budova Baumit v slovinskom Trzine prešla premenou na moderné a udržateľné pracovisko. Architekti kládli dôraz...
Mottom šiesteho ročníku on-line konferencie odborníkov Xella Dialóg je Efektívny návrh budov 2025+: zmeny a riešenia
Robot WLTR predstavuje moderný prístup k murovaným konštrukciám. Vďaka automatizácii dokáže rýchlo, presne a bezpečne realizovať...

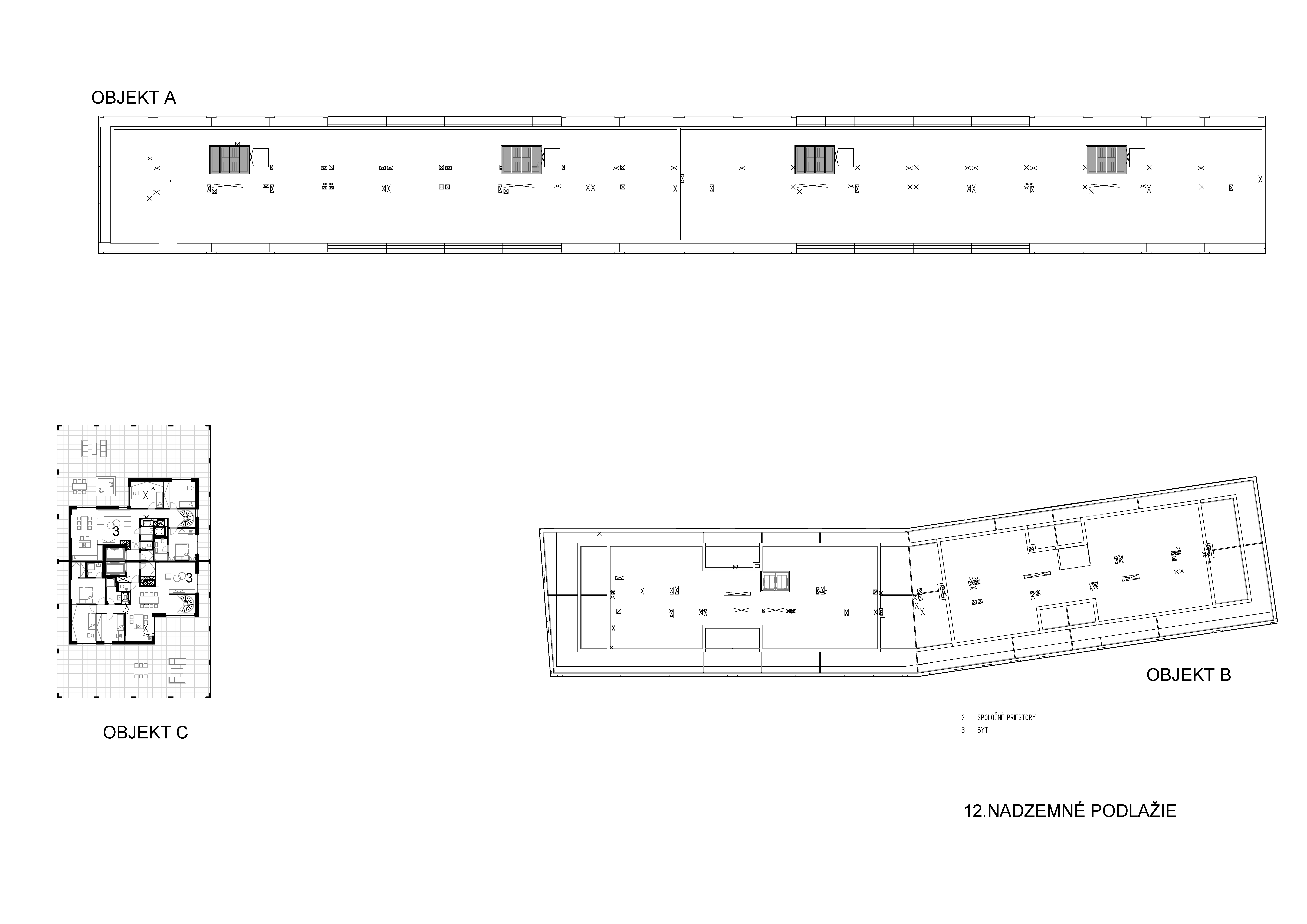
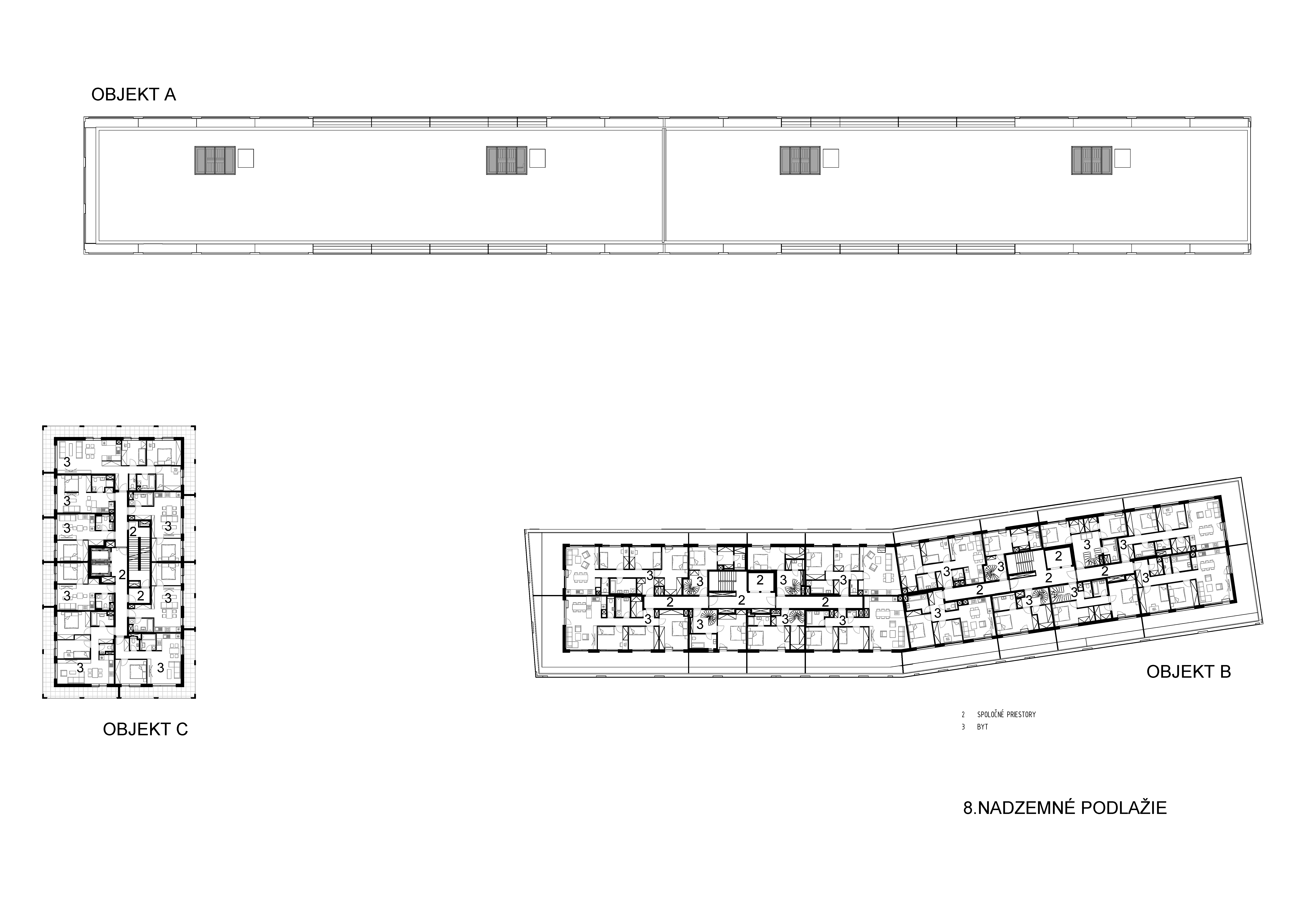
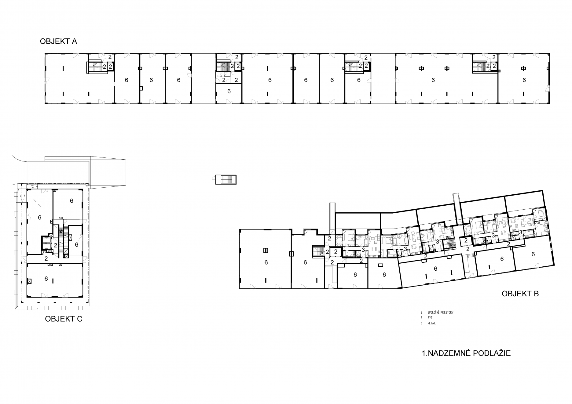
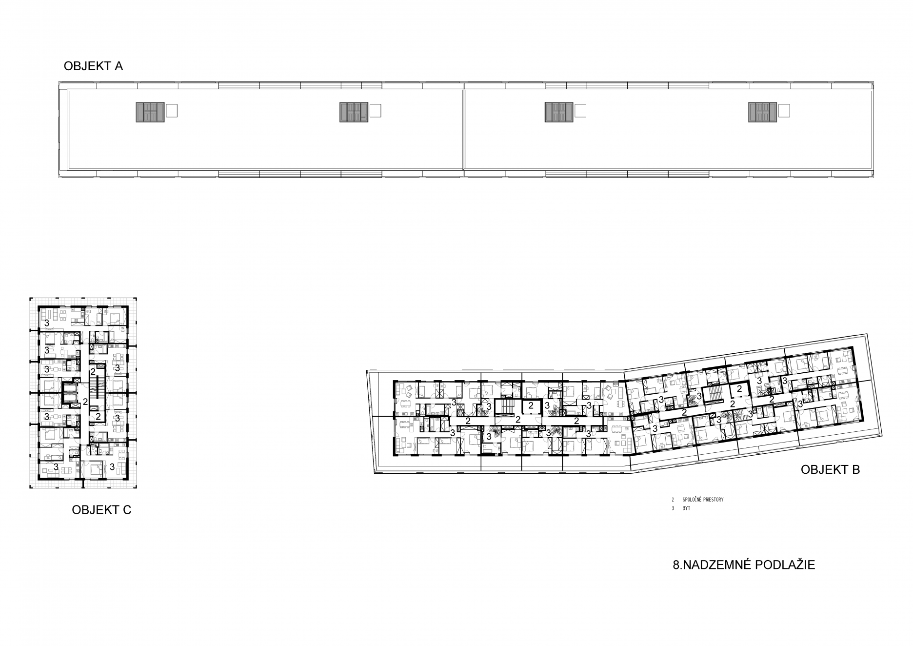
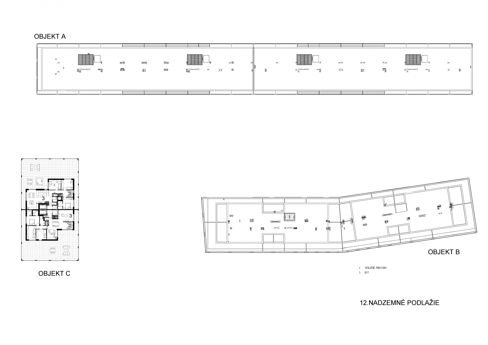
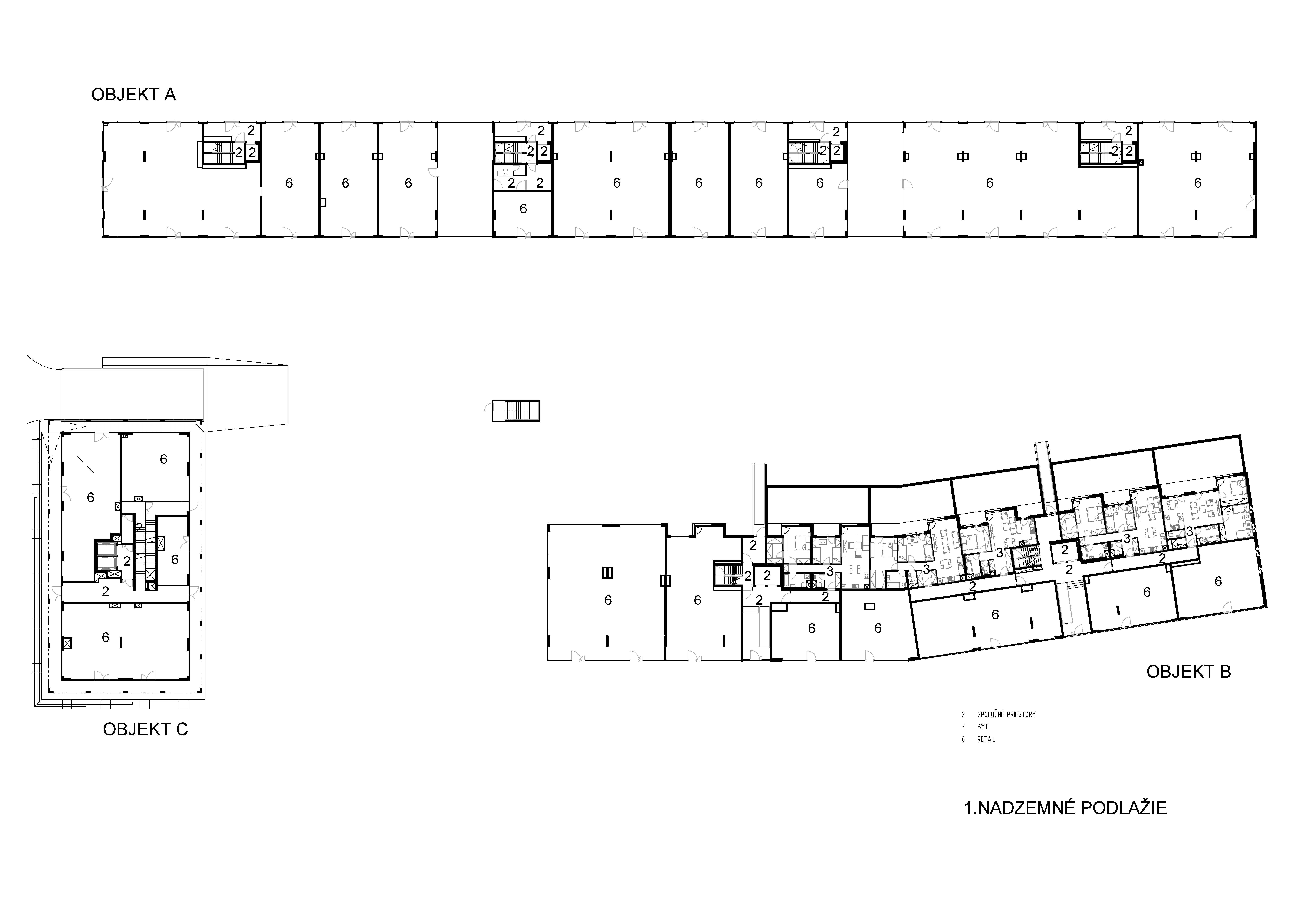
Projekt Urban Residence vyrástol medzi Račianskou ulicou a stanicou Filiálka, severne od rezidenčného komplexu Pri Mýte (Arhitektura Krušec + Vallo Sadovsky Architects). Na území bývalého skladového areálu Ferona s rozlohou vyše 1,4 hektára sa výstavba začala v roku 2016. K ukončeným prvým dvom etapám, ktoré dnes predstavíme, pribudne v juhovýchodnej časti územia bodový bytový dom. Výšková dominanta komplexu je vo výstavbe (dokončenie projektu je plánované na budúci rok).
Projekt má za sebou zaujímavú genézu. “Predkrízový” projekt rakúskeho developera, ktorý počítal s 29 podlažnou výškovou dominantou, postupom času nadobudol reálnejšie kontúry. Ateliér Šujan-Štassel navrhol pre nového investora šesticu bytových domov, prepojených dvojpodlažnými podzemnými garážami. Na projekt nadviazal ateliér Compass Architekti, ktorý nové, líniové domy posunul na hranice pozemku. Vznikol tak priestor pre rozsiahly zelený vnútroblok. Architekti navyše dokázali nadviazať na susedné Rezidencie Pri Mýte a obe územia prepojiť.
Z Račianskej ulice zástavba zachováva charakter mestskej triedy so službami a obchodmi. Po dlhých rokoch tak brownfield na Račianskej ulici nahradila zástavba so živým parterom. Základný raster obytných blokov, smerujúcich do ulice, je dôsledne členený. Materiálové a farebné riešenie fasády sa snaží nadviazať na štruktúrovanú zástavbu na opačnej strane ulice. Dôležitým prvkom projektu sú pasáže, ktoré prepájajú Račiansku ulicu s vnútroblokom, všetky objekty sú prístupné bezbariérovo. Druhá etapa výstavby vymedzuje areál z juhovýchodnej strany. Zalomený doskový dom nesie čitateľný rukopis ateliéru. Charakteristické priebežné balkóny tvoria medzipriestor - medzi živým exteriérom a intimitou bytov.
Projekt bližšie predstavia autori:
Základnú urbanistickú myšlienku novej štvrte tvorí vnútroblok s parkom o výmere viac ako 6 000 m². Na pôvodnú koncepciu od architektov Juraja Šujana a Karola Stassela bolo ľahké plynulo nadviazať a rozvinúť ju. Chceli sme oživiť zabudnutý a nevyužívaný verejný priestor a priniesť do projeku novú mestskú vybavenosť aj na druhej strane Račianskej Ulice. Chodník sa rozšíril a pozdĺž celého Urban Residence vznikla nová cyklotrasa. Rušná ulica a pokojný vnutroblok sú prepojené pasážami.
Samotný projekt tvoria tri samostatné bytové domy. Na Račianskej ulici je umiestnený sedemposchodový doskový dom. Druhý dom má sedem nadzemných podlaží, nad ktoré je postavená ešte dvojica ustúpených poschodí. V polovici svojej dĺžky je dom mierne zalomený, čím vytvára optické uzavretie vnútrobloku. Tretí z objektov je navrhnutý ako dvanásťposchodový bodový dom a jeho orientácia nadväzuje na susedný projekt Rezidencie Pri Mýte. Naším zámerom bolo obe územia prepojiť, tak aby vznikla nová fungujúca a ucelená štvrť.
Projekt v rozvojovej zóne v blízkosti železničnej stanice Filiálka sa zaradil do portfólia ateliéru, ktorý za posledných päť rokov naprojektoval takmer tri tisícky bytov (Miletičova 5, Slnečnice - Južné Mesto, Slnečnice - Viladomy, Ahoj Park…).
Podklady: Compass Architekti
Foto: Pavel Meluš
Použité materiály a riešenia: fasádny systém Schüco FWS 50.HI s dverami AWS 75.SI. v parteri Urban Residence
Doplnenie - viacúčelový park dokončený v roku 2020: