Hansgrohe - prémiová značka kúpeľňových riešení, ponúka nadčasový dizajn, technickú precíznosť a udržateľné inovácie...
Využite špeciálnu akciu Internorm: okná za minuloročné ceny a hliníkový kryt úplne zadarmo. Ponuka je časovo obmedzená!
Na podujatí sa predstaví až 37 vystavovateľov - popredných dodávateľov stavebných materiálov a inovácií s prezentáciou...
Sumarizácia najdôležitejších inovácií, ktoré redefinujúcich využitie tohto energetického zdroja.
AMPHIBIA 3000 GRIP 1.3 od spoločnosti ATRO predstavuje modernú hydroizolačnú technológiu, ktorá spája vysokú odolnosť,...
Ambiciózne plány EK narazili na ekonomické možnosti domácností v jednotlivých členských štátoch –...
IDEA DOOR od spoločnosti JAP prináša do interiéru čistý minimalistický vzhľad vďaka bezrámovému riešeniu a precíznej...
Kontinuita riešenia od vonkajšieho obkladu až po kovania a kľučky.
Nástenné nadomietkové armatúry Vitus sú mimoriadne vhodné pre rýchlu a efektívnu...
Okenné profily z kompozitného materiálu RAU-FIPRO X od spoločnosti Rehau sú v porovnaní s tradičnými plastovými profilmi mnohonásobne...
Najnovší sortiment stolov pre zariadenie interiérov...
Spojenie moderného dizajnu, funkčnosti a svetla do harmonického architektonického prvku.
Kancelárska budova Baumit v slovinskom Trzine prešla premenou na moderné a udržateľné pracovisko. Architekti kládli dôraz...
Mottom šiesteho ročníku on-line konferencie odborníkov Xella Dialóg je Efektívny návrh budov 2025+: zmeny a riešenia
Robot WLTR predstavuje moderný prístup k murovaným konštrukciám. Vďaka automatizácii dokáže rýchlo, presne a bezpečne realizovať...

Zástavba v príjemnej kopcovitej krajine Konopišťska. Ďevaťhektárovú parcelu na okraji benešovskej časti Tvoršovice obklopujú polia, pastviny a plochy golfového ihriska. Najväčšou pridanou hodnotou územia je jeho členitosť, rozmanitosť a výhľady. Naopak, slabinou je (ne)napojenie na pôvodnú obec. Architekti sa snažili vyhnúť realizácii izolovaného developerského projektu a otvoriť novovzniknuté verejné priestory aj pre obyvateľov sídla s výraznou dominantou golfového rezortu.
Urbanizmus
Lokalita je na okolie dopravne napojená jedinou pôvodnou príjazdovou cestou, z druhej strany ju ohraničuje súkromná obslužná cesta golfového ihriska. V kolmom smere prechádza územím vnútorná účelová komunikácia.
Ako vstupnú bránu do územia navrhli architekti priestranné námestíčko, ktoré slúži ako spojnica so starou zástavbou Tvoršovíc. Rybníky, ihriská, altánky… Už po dokončení prvej etapy projektu sa sem chodia kúpať miestne deti.
Spomínaná cesta prechádzajúca stredom lokality stúpa svahovitým terénom od námestíčka až po vodojem. Jej charakter sa so stúpaním mení - od urbánneho priestoru, cez parkovú cestu medzi záhradami, až po verejný sad. Urbanistické riešenie vytvára širokú škálu poloverejných a polosúkromných priestorov, ktoré tvoria rozšírenia ulice a vnútrobloky. Medzi rodinnými domami vznikajú intímne zdieľané priestory.
Otvorené a kryté parkovanie na pozemkoch rodinných domov dopĺňajú odstavné plochy na ulici a vnútorných dvoroch bytových domov. Niektoré väčšie rodinné domy majú samostatné garáže.
Zónovanie
V území sú navrhnuté rodinné a bytové domy. Obvodové partie až na jednu výnimku tvoria rodinné domy. Centrálna zóna, ktorá je jasne definovaná uzavretou účelovou komunikáciou, zahŕňa rodinné aj bytové domy, pričom bytovky sú umiestnené v spodnej časti, v priamej väzbe na námestíčko. Mohutnejší objem domov tvorí pevný chrbát smerom k hlavnému verejnému priestoru v území.
Realizovaná prvá etapa výstavby zahŕňa 21 rodinných domov v zóne pri námestíčku. Druhá etapa s 25 domami je aktuálne vo fáze výberu zhotoviteľa. V harmonograme projektových príprav a ďalšej výstavby nasleduje zóna bytových domov a ďalšie zóny individuálneho rodinného bývania.
Architektúra
“Stavby jednoduché v objemu i detailu, v souladu s racionální vesnickou výstavbou i se zadáním investora. Architektura je racionální, skromná. Bohaté jsou zejména prostory mezi domy, veřejné i poloveřejné plochy,” opisujú základné tézy konceptu architekti z pražského ateliéru monom.
Priestorové riešenie sa dokáže prispôsobiť potrebám rodín s deťmi, aktívnych penzistov aj slobodných športovcov.
Zóna I.
Urbanizmus
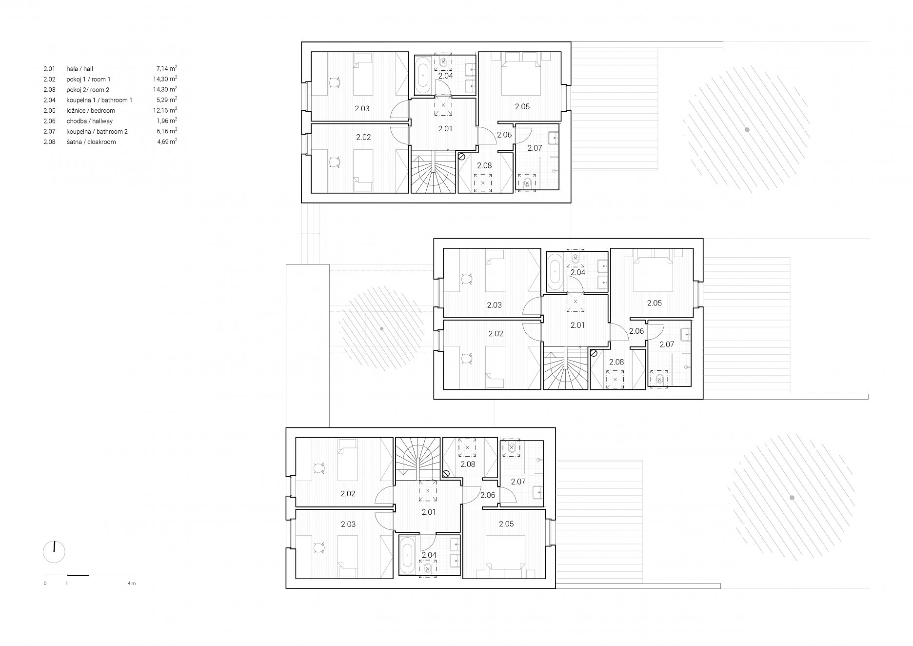
Rodinné domy v zóne I. (prvá etapa) sú navrhnuté ako variácie na radový dom. Okolo spoločného vstupného priestoru sú zoskupené vždy tri objekty.
Jeden model využíva umiestnenie jednotiek vedľa seba, s priestormi na prechod do záhrady. Odsunutím strednej jednotky ďalej od uličnej čiary vzniká spoločný vstupný dvor, prechod medzi verejným a súkromným svetom. Dvorček je doplnený o spoločný záhradný domček, rozdelený na kóje pre jednotlivé domácnosti. Tento objem zároveň oddeľuje domy od námestíčka a zabezpečuje intimitu vstupného priestoru. V zadnej časti má každá jednotka súkromnú terasu s výhľadom do záhrady a krajiny.
V druhom modeli sú rodinné domy usporiadané za sebou. Terasy a rozsiahle presklené plochy, orientované do záhrady, smerujú na juh a sever. Umiestnením jednotiek za sebou vznikli medzi skupinami domov poloverejné priestory - ulice, ktoré slúžia ako vstup a parkovanie. Cieľom architektov bolo zároveň narušenie kompaktnej uličnej línie a rozšírenie palety verejných a poloverejných priestorov medzi objektmi.
Architektúra
Objekty majú sedlové strechy so sklonom 45° bez presahov, ich veľké presklené steny obývacích miestností sú buď v štíte alebo v pozdĺžnej stene, podľa pozície domu v rámci bloku. Taktiež vstupy do objektov môžu byť zo štítu alebo z pozdĺžnej steny. Domy sa navzájom líšia rôznym umiestnením a veľkosťou otvorov vo fasádach.
Pozdĺžny variant jednotiek je vždy o meter vyšší, aby bolo možné na poschodí do pozdĺžnych stien umiestniť štandardné okná. Štítový variant je nižší a okná izieb sú vždy v štíte.
Svetlosivé fasády, strechy, klampiarske prvky a taktiež rámy zasklenia v súlade s autorským zámerom zjednocujú povrchy do konzistentného celku. Ľahké presklené striešky nad vstupmi kryjú celopresklené dvere s antracitovými rámami.
Hlavné objekty dopĺňajú drobné stavby (záhradné sklady, deliace steny medzi terasami, brány a oplotenia, prístrešky parkovacích miest, prístrešky na smetné nádoby a poštové schránky). Svetlosivú farbu dopĺňa drevo a antracitové prvky.
Stavebné a materiálové riešenie
Múry, založené na základových pásoch, sú murované z keramických tvaroviek hrúbky 240 mm a zateplené 200 mm fasádnym polystyrénom. Vnútorné priečky sú taktiež murované. Nosnú oceľobetónovú konštrukciu stropu z prefabrikovaných panelov hrúbky 200 mm, dopĺňa okolo schodiska výmena s pozdĺžnymi panelmi hrubými 265 mm. Architekti sa rozhodli použiť prefabrikované schodiská. Všetky objekty majú sedlové strechy. Pri vyšších strechách dopĺňajú hambálkovú sústavu klieštiny v úrovni koruny obvodového muriva. Zateplenie strechy s trapézovou krytinou má hrúbku 320 mm. Niektoré miestnosti v podkroví majú strešné okná, strecha má skryté zaatikové žľaby a dažďové zvody integrované v zateplení. Prístrešok pre autá má rovnakú krytinu ako rodinné domy.
TZB
Objekty rodinných domov sú napojené na rozvody vody zásobované vrtmi. Dažďová voda prúdi buď do vsaku pred objektmi (tam, kde to hydrogeologické podmienky dovolia), alebo priamo do dažďovej kanalizácie na ulici a tou do retenčnej nádrže, alebo potrubím do jazier pri námestíčku. Odtiaľ je prebytočná voda zvedená do vsaku pod budúcou parkovacou plochou. Zdrojom vykurovania desiatich rodinných domov je tepelné čerpadlo vzduch - voda s integrovaným elektrokotlom, zvyšné objekty sú vykurované elektrickými vykurovacími fóliami. Vonkajšie jednotky TČ sú osadené v záhradných domčekoch. Ohrev TÚV je riešený buď elektrickým zásobníkom s objemom 190 l vstavaným do vnútornej jednotky TČ alebo samostatným 160 l bojlerom (vo variante s elektrickým podlahovým vykurovaním).
Jazero je cez sedimentačnú šachtu plnené dažďovou vodou zo striech deviatich domov, prepad z jazera je zvedený do vsakovacej nádrže na námestíčku.
Podklady: monom
Fotografie: Alex Shoots Buildings