Advertorial

Pozvánka na 2. ročník stavebného veľtrhu BigMarket na Slovensku

Na podujatí sa predstaví až 37 vystavovateľov - popredných dodávateľov stavebných materiálov a inovácií s prezentáciou...

Hotel Hirschen Spa House, Rakúsko

Novotvar v prostredí alpskej obce.

Vytvorte si kúpeľňu snov: dizajnové riešenie od značky hansgrohe

Hansgrohe - prémiová značka kúpeľňových riešení, ponúka nadčasový dizajn, technickú precíznosť a udržateľné inovácie...

Okná Internorm za minuloročné ceny + hliníkový kryt zdarma!

Využite špeciálnu akciu Internorm: okná za minuloročné ceny a hliníkový kryt úplne zadarmo. Ponuka je časovo obmedzená!

Moderné plynové technológie: Efektivita a inovácie pre 21. storočie

Sumarizácia najdôležitejších inovácií, ktoré redefinujúcich využitie tohto energetického zdroja.

Utesňovanie spodných stavieb pomocou hydro-aktívnej fólie AMPHIBIA.

AMPHIBIA 3000 GRIP 1.3 od spoločnosti ATRO predstavuje modernú hydroizolačnú technológiu, ktorá spája vysokú odolnosť,...

Dekarbonizácia individuálneho vykurovania domácností – Green Deal evolučne a nie revolučne

Ambiciózne plány EK narazili na ekonomické možnosti domácností v jednotlivých členských štátoch –...

Minimalistické dvere IDEA – technická precíznosť a čistota prevedenia

IDEA DOOR od spoločnosti JAP prináša do interiéru čistý minimalistický vzhľad vďaka bezrámovému riešeniu a precíznej...

Dom s výhľadom na údolie, Dlouhý Most (ČR)

Kontinuita riešenia od vonkajšieho obkladu až po kovania a kľučky.

Schell Vitus – osvedčené riešenie pre sprchy a umývadlá vo verejnom sektore s viac ako desaťročnou tradíciou

Nástenné nadomietkové armatúry Vitus sú mimoriadne vhodné pre rýchlu a efektívnu...

Kompozitné okná predstavujú súčasnosť a budúcnosť

Okenné profily z kompozitného materiálu RAU-FIPRO X od spoločnosti Rehau sú v porovnaní s tradičnými plastovými profilmi mnohonásobne...

Myotis - stoly 2025

Najnovší sortiment stolov pre zariadenie interiérov...

Priemyselné sklenené priečky Dorsis Digero: svetelné rozhranie pre moderné interiéry

Spojenie moderného dizajnu, funkčnosti a svetla do harmonického architektonického prvku.

Význam prirodzeného svetla pre moderné a flexibilné pracovné prostredie

Kancelárska budova Baumit v slovinskom Trzine prešla premenou na moderné a udržateľné pracovisko. Architekti kládli dôraz...

Konferencia Xella Dialóg predstaví novinky a trendy v stavebníctve

Mottom šiesteho ročníku on-line konferencie odborníkov Xella Dialóg je Efektívny návrh budov 2025+: zmeny a riešenia

Residenz Eisenerz - nájomný bytový dom v Sargans, Švajčiarsko

Bývanie po švajčiarsky.
Diela
Red 305.09.2022
15410+28
Residenz Eisenerz - nájomný bytový dom v Sargans, Švajčiarsko
Autori: Ing. arch. Michal Gabaš (hlavný architekt), Ing. arch. Eva Gabaš Rosenová, Ing. arch. Tomáš BeránekSpolupráca: Ing. Patrik Štancl (statika)Plocha pozemku: 902 m²Zastavaná plocha: 428 m²Podlažná plocha: 867 m²Obostavaný objem: 3500 m3Návrh: 2016 - 2029Realizácia: 2029 - 2020Adresa: Sargans, ŠvajčiarskoPublikované: 5. september 2022

Zadanie 

Mladý ateliér Apropos Architects, pôsobiaci v Prahe a Zürichu bol oslovený investorom pôvodne s požiadavkou na prestavbu starého domu, ktorý na konci životnosti nevyhovoval požiadavkám majiteľa. Po prehodnotení východísk a posúdení statiky objektu sa však nakoniec majiteľ rozhodol pre zbúranie objektu a stavbu nového nájomného domu. Pre získanie najkvalitnejšieho riešenia zorganizoval v roku 2016 vyzvanú architektonickú súťaž, v ktorej zvíťazil práve návrh spomínaného kolektívu.

Foto: Alex shoots Buildings
Foto: Alex shoots Buildings

Kontext a lokalita

Nový nájomný bytový dom stojí v švajčiarskom meste Sargans, na priesečníku troch veľkých údolí. Strmé vrcholy Álp, v bezprostrednej blízkosti Lichtenštajnského kniežatstva a známych lyžiarskych stredísk, formujú úrodnú nížinu s otvoreným panoramatickými výhľadmi. Práve tie sa stali jedným z hlavných východísk projektu. “Vrcholky hor jsou důležitými body, na které jsou orientovány výhledy z pokojů a utváří tak formu a půdorys domu,” vysvetľujú architekti. Na kontext nadväzuje tiež materiálové stvárnenie fasád. Preškrabávaná cementová omietka s prímesou miestneho drveného kameňa Verrucano-Schiefer s výraznou štruktúrou zvýrazňuje hru svetla a tieňa. “Barva domu se v průběhu dne mění od světle šedivé při ranním rozbřesku až po růžovou při západu slunce,” dopĺňajú autori.

Foto: Alex shoots Buildings
Foto: Alex shoots Buildings
Situácia
Situácia Autor: Apropos Architects

Nájomné bývanie

V novom viladome bývajú priatelia majiteľa a jeho rodinní príslušníci, ktorí sa často rozprávajú a stretávajú. Tomu je prispôsobená aj spoločná záhrada s grilovacím miestom, kde sa pravidelne konajú spoločné večery. Byty na prízemí majú k dispozícii súkromné ​​predzáhradky, byty na poschodí disponujú dvojicou terás. Strešná terasa, prebiehajúca po obvode najväčšieho bytu na hornom podlaží, otvára výhľady na všetky okolité vrcholy.

Prehľadná a variabilná dispozícia, spolu s odolnými a neutrálnymi materiálmi napĺňa špecifické požiadavky typológie nájomného bývania.

Axonometria
AxonometriaAutor: Apropos Architects
Výhľady
VýhľadyAutor: Apropos Architects

Dispozícia

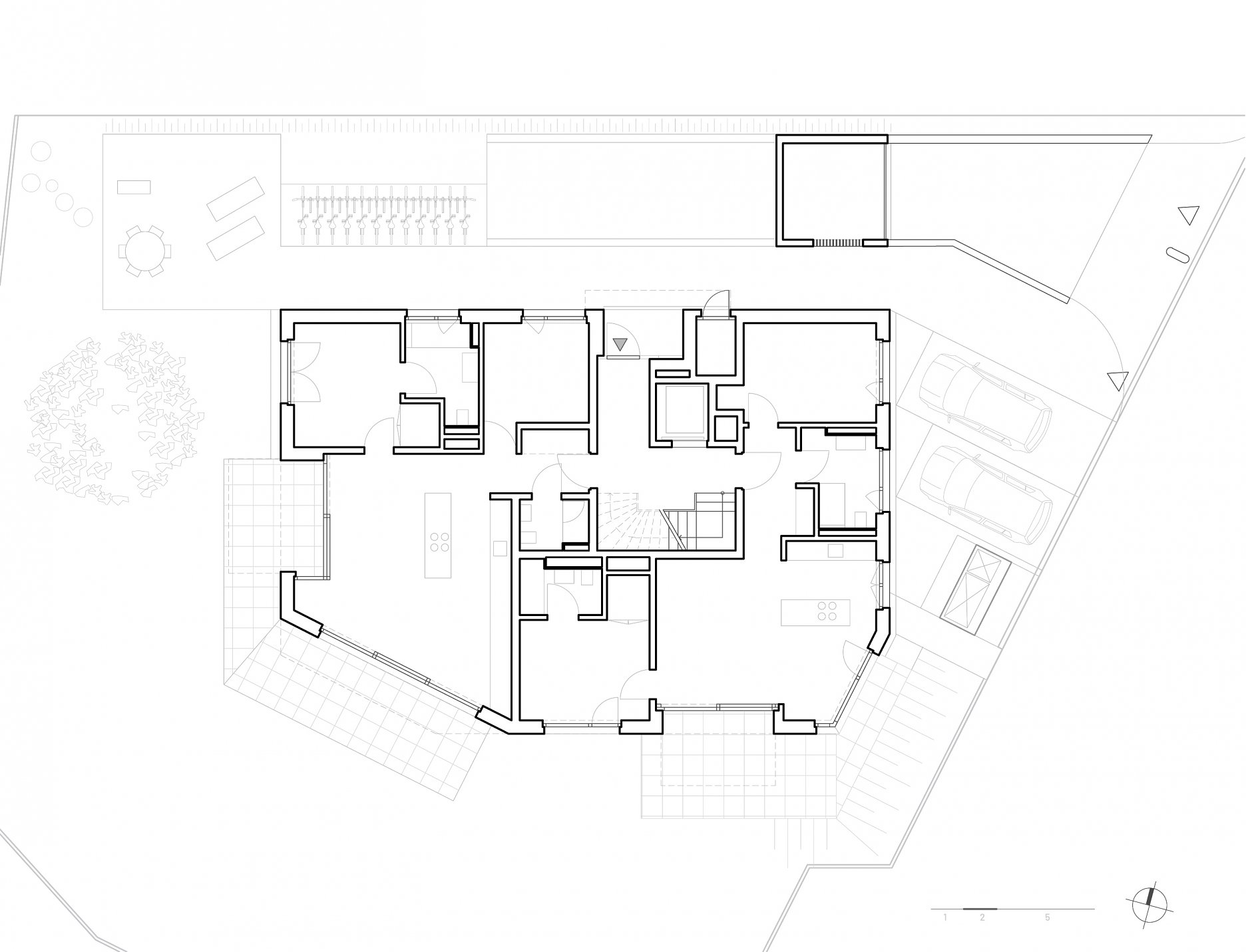
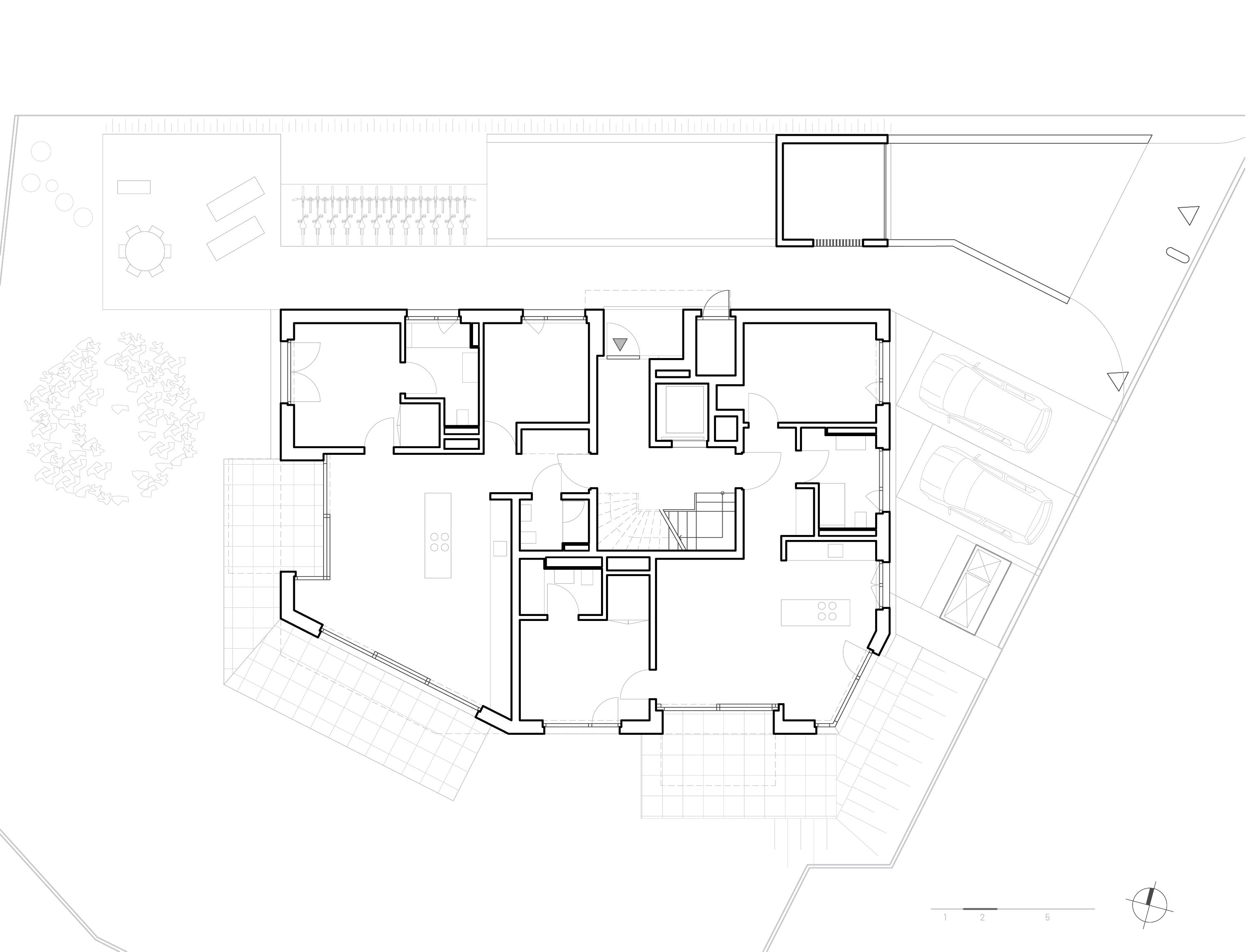
Schodisko s výťahom v centre domu otvára fasádu pre byty orientované k viacerým svetovým stranám. Dostatok denného svetla a výhľady tak majú napríklad aj kúpeľne a kuchyne. 

Byty bez slepých chodieb, s priamym napojením na obývaciu časť sú dôsledne delené na dennú a nočnú zónu.

Parkovanie situované pod úrovňou terénu zastrešuje sedem miest s nabíjacími stanicami a osem miest pre bicykle. Ďalšie stojany pre bicykle sa nachádzajú priamo pri vstupe do objektu. Vo Švajčiarsku sa bežne počíta s jedným miestom pre bicykel na každú izbu v dome.

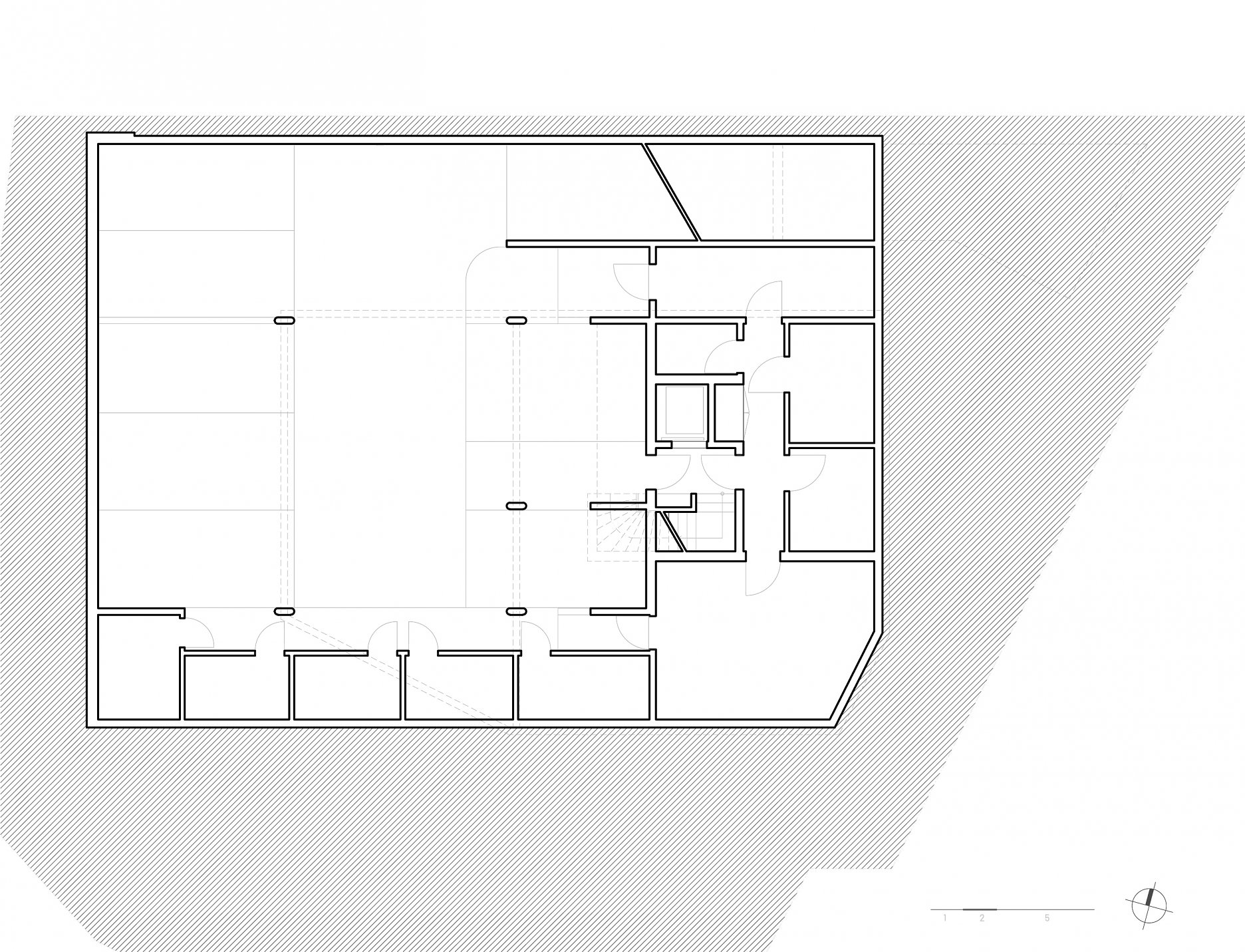
Pôdorys suterénu
Pôdorys suterénuAutor: Apropos Architects
Pôdorys prízemia
Pôdorys prízemiaAutor: Apropos Architects
Pôdorys 2. NP
Pôdorys 2. NPAutor: Apropos Architects
Pôdorys 3. NP
Pôdorys 3. NPAutor: Apropos Architects
Pôdorys strechy
Pôdorys strechyAutor: Apropos Architects

Konštrukcia a materiály 

Stavba je založená na pilótach, kotvených do únosnej vrstvy podložia v hĺbke 16 až 20 metrov. Na spodnú stavbu, zhotovenú ako bielu vaňu, nadväzujú monolitické steny a stropné dosky. Zvolené riešenie vyhovuje nárokom zóny seizmického ohrozenia 2. stupňa.  

Finálna cementová omietka s prímesou miestneho drveného kameňa, ktorá tvorí súčasť kontaktného zatepľovacieho systému, prepožičiava domu ľahko purpurový odtieň. Atika, lodžie a miesta, kde hmota domu ustupuje do pozadia, prepája vertikálne preškrabávaná omietka.

Priečny rez
Priečny rezAutor: Apropos Architects
Pozdĺžny rez
Pozdĺžny rezAutor: Apropos Architects
Južný pohľad
Južný pohľadAutor: Apropos Architects
Severný pohľad
Severný pohľadAutor: Apropos Architects
Východný pohľad
Východný pohľadAutor: Apropos Architects
Západný pohľad
Západný pohľadAutor: Apropos Architects
Foto: Alex shoots Buildings
Foto: Alex shoots Buildings
Foto: Alex shoots Buildings
Foto: Alex shoots Buildings
Foto: Alex shoots Buildings
Foto: Alex shoots Buildings
Foto: Alex shoots Buildings
Foto: Alex shoots Buildings
Foto: Alex shoots Buildings
Foto: Alex shoots Buildings
Foto: Alex shoots Buildings
Foto: Alex shoots Buildings
Foto: Alex shoots Buildings
Foto: Alex shoots Buildings

Interiér

Spoločné priestory zjednocujú trvácne materiály ako pohľadový betón, terrazzo, alebo čierna oceľ. Pohľadový betón okolo schodiska a v kúpeľniach podčiarkuje zámernú surovosť domu. Výber materiálov odkazuje tiež na dlhoročné podnikanie otca investora s kovmi, ako aj na históriu miesta s okolitými železnými baňami.

Foto: Alex shoots Buildings
Foto: Alex shoots Buildings
Foto: Alex shoots Buildings
Foto: Alex shoots Buildings

Spoločným menovateľom interiéru nájomných bytov sú minimalistické kuchyne s odolnými žulovými pracovnými doskami, viacvrstvové drevené podlahy, vstavané skrine a kúpeľne ladené do béžovej a svetlo modrej farby.

Foto: Alex shoots Buildings
Foto: Alex shoots Buildings
Foto: Alex shoots Buildings
Foto: Alex shoots Buildings
Foto: Alex shoots Buildings
Foto: Alex shoots Buildings

Ekológia a TZB

Dom je vzhľadom na svoju horskú polohu a vzťah k prírode navrhnutý vo švajčiarskom ekologickom štandarde Minergie. Ako hlavný zdroj energie slúži tepelné čerpadlo zem -  voda, ktoré využíva štvoricu vrtov s hĺbkou 85 metrov. Tepelné čerpadlo dopĺňa fotovoltický systém inštalovaný na streche objektu. Čerstvý vzduch pre riadené vetranie s rekuperáciou je privádzaný z úrovne strechy, prostredníctvom vertikálnych šácht. Cez tepelný výmenník je následne distribuovaný do jednotlivých bytov. Interiér objektu proti prehrievaniu chránia exteriérové žalúzie. Inštalačné boxy exteriérového tienenia sú zapustené do roviny tepelnej izolácie. Rozvody vzduchotechniky sú uložené v stropných doskách objektu.

Materiály

  • pohľadový betón - schodiskový priestor, kúpeľne
  • ťažká preškrabávaná cementová omietka s prímesou miestneho drveného kameňa Verrucano-Schiefer s povrchovou lazúrou - vonkajšia fasáda
  • čierna oceľ - zábradlia podľa autorského návrhu
  • terazzo - podlahy v spoločných priestoroch
  • lakovaná MDF - vstavaný nábytok, podľa autorského návrhu
  • viacvrstvová drevená podlaha - obytné priestory
Apropos Architects
Apropos ArchitectsFoto: Ester Havlová

Poloha diela

Ing. arch. Michal Gabaš
Ing. arch. Eva Gabaš Rosenová
Ing. arch. Tomáš Beránek
Vložené
10. november 2021
0
1541
Hlavný obsahHlavný obsah
Čakajte prosím