Na podujatí sa predstaví až 37 vystavovateľov - popredných dodávateľov stavebných materiálov a inovácií s prezentáciou...
Novotvar v prostredí alpskej obce.
Hansgrohe - prémiová značka kúpeľňových riešení, ponúka nadčasový dizajn, technickú precíznosť a udržateľné inovácie...
Využite špeciálnu akciu Internorm: okná za minuloročné ceny a hliníkový kryt úplne zadarmo. Ponuka je časovo obmedzená!
Sumarizácia najdôležitejších inovácií, ktoré redefinujúcich využitie tohto energetického zdroja.
AMPHIBIA 3000 GRIP 1.3 od spoločnosti ATRO predstavuje modernú hydroizolačnú technológiu, ktorá spája vysokú odolnosť,...
Ambiciózne plány EK narazili na ekonomické možnosti domácností v jednotlivých členských štátoch –...
IDEA DOOR od spoločnosti JAP prináša do interiéru čistý minimalistický vzhľad vďaka bezrámovému riešeniu a precíznej...
Kontinuita riešenia od vonkajšieho obkladu až po kovania a kľučky.
Nástenné nadomietkové armatúry Vitus sú mimoriadne vhodné pre rýchlu a efektívnu...
Okenné profily z kompozitného materiálu RAU-FIPRO X od spoločnosti Rehau sú v porovnaní s tradičnými plastovými profilmi mnohonásobne...
Najnovší sortiment stolov pre zariadenie interiérov...
Spojenie moderného dizajnu, funkčnosti a svetla do harmonického architektonického prvku.
Kancelárska budova Baumit v slovinskom Trzine prešla premenou na moderné a udržateľné pracovisko. Architekti kládli dôraz...
Mottom šiesteho ročníku on-line konferencie odborníkov Xella Dialóg je Efektívny návrh budov 2025+: zmeny a riešenia

Zadaním klienta, v tomto prípade mesta Brna, bolo vytvoriť dostupné nájomné bývanie, ktoré reflektuje súčasné potreby a požiadavky obyvateľov. “Úkolem bylo navrhnout startovací byty pro vymezenou skupinu obyvatelstva, jenž může být znevýhodněna např. pro získání úvěru v bankovním sektoru. Z toho mimo jiné vyplynulo, že důležitým aspektem při práci na zakázce byla finanční dostupnost její realizace. Použitím levných materiálů, absencí detailů a efektivním prostorovým řešením jsme se pokusili dokázat, že úspornost a kvalita obytného prostředí nemusí být vzájemně v rozporu,” vysvetľujú architekti z brnianskeho ateliéru CL3.
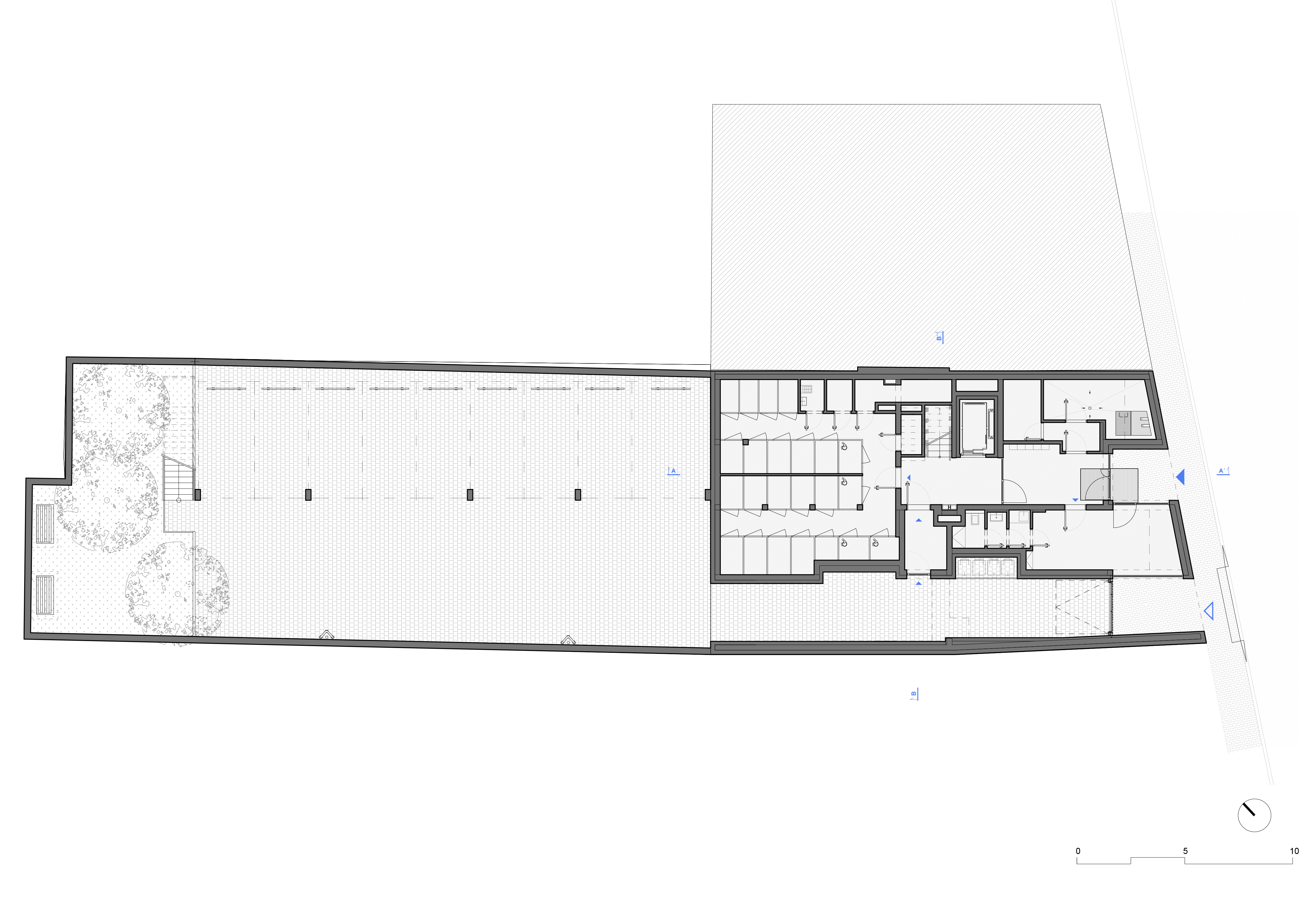
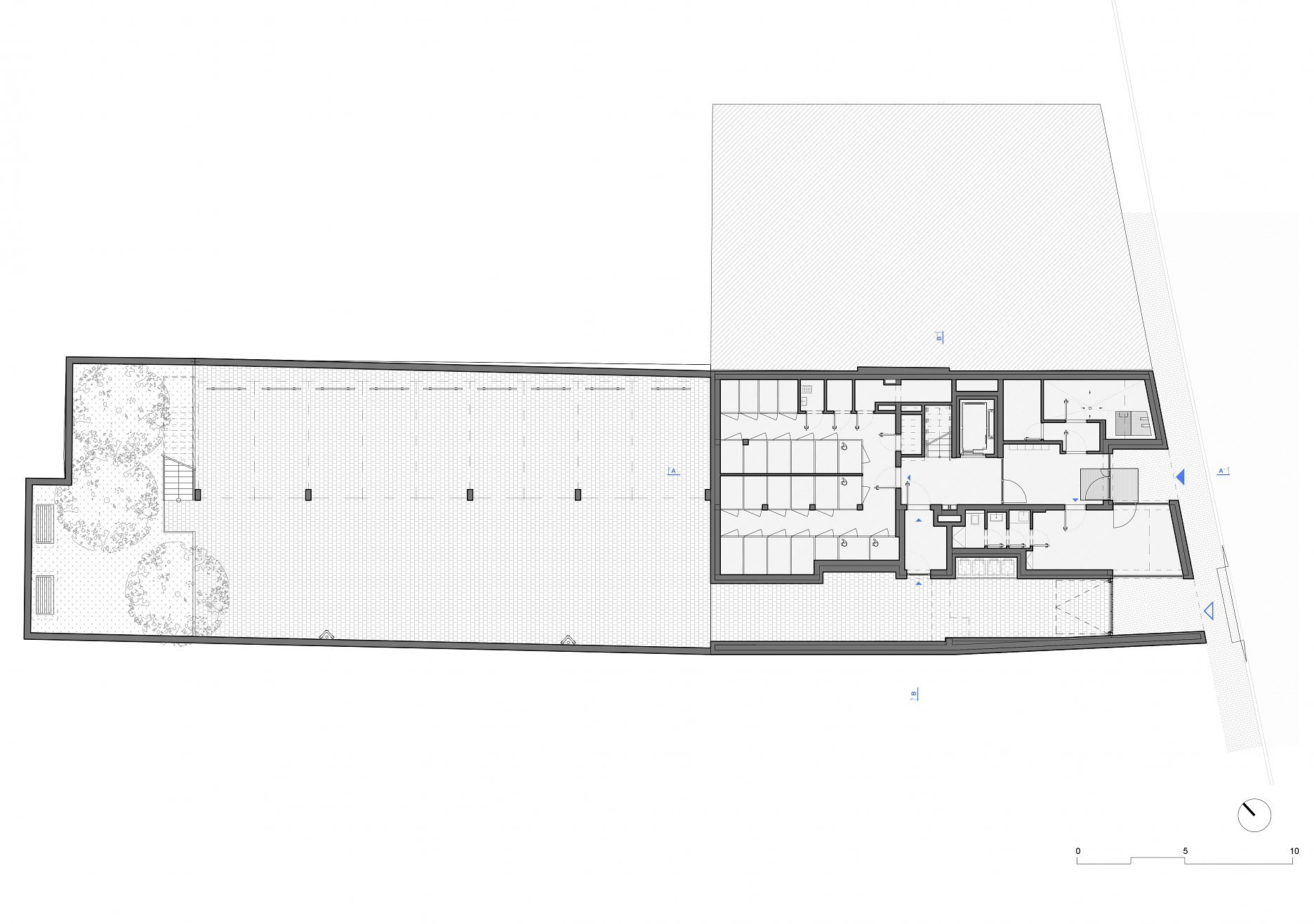
Novostavba v prieluke na ulici Bratislavská, neďaleko radnice Brno-sever, uzatvára mestský blok nájomných domov z predvojnového obdobia. Zanedbaná mestská časť tzv. “Brniansky Bronx“ ťaží zo svojej polohy v blízkosti centra mesta. V súčasnosti prechádza intenzívnym procesom premeny na modernú rezidenčnú štvrť.
Stavbu tvorí sedempodlažný hranol, pretkaný pravidelným rastrom štvorcových otvorov. Striedajúce sa okná a lodžia prinášajú výraznú geometrickú plasticitu do inak čistej kubickej hmoty. Tú dopĺňa pobytová zelená terasa na streche garáží a átrium s ovocnými stromami.
V kontraste k prísne geometrickej forme a monochromatickej fasáde pôsobí červená podlaha spoločných priestorov chodieb a schodísk, ktorá sa vinie celým domom od vstupnej haly až po kruhový svetlík, presvetľujúci schodiskovú halu v hornom podlaží.
Základný rozmer hmoty domu je daný tvarom parcely a okolitou zástavbou. Pôdorysne má parcela obdĺžnikový tvar šírky cca 23 m v uličnej časti. Rímsa sa nachádza približne v úrovni hrebeňa okolitých domov, teda v siedmom nadzemnom podlaží.
Na prízemí budovy, s hlavným vstupom orientovaným do ulice Bratislavská, je navrhnuté technické zázemie domu, kobky a nebytový priestor s hygienickým zázemím a dennou miestnosťou personálu. Dvorová časť na prízemí pojala garáž pre potreby obyvateľov domu s deviatimi parkovacími miestami.
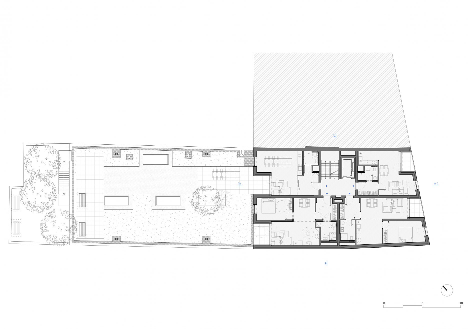
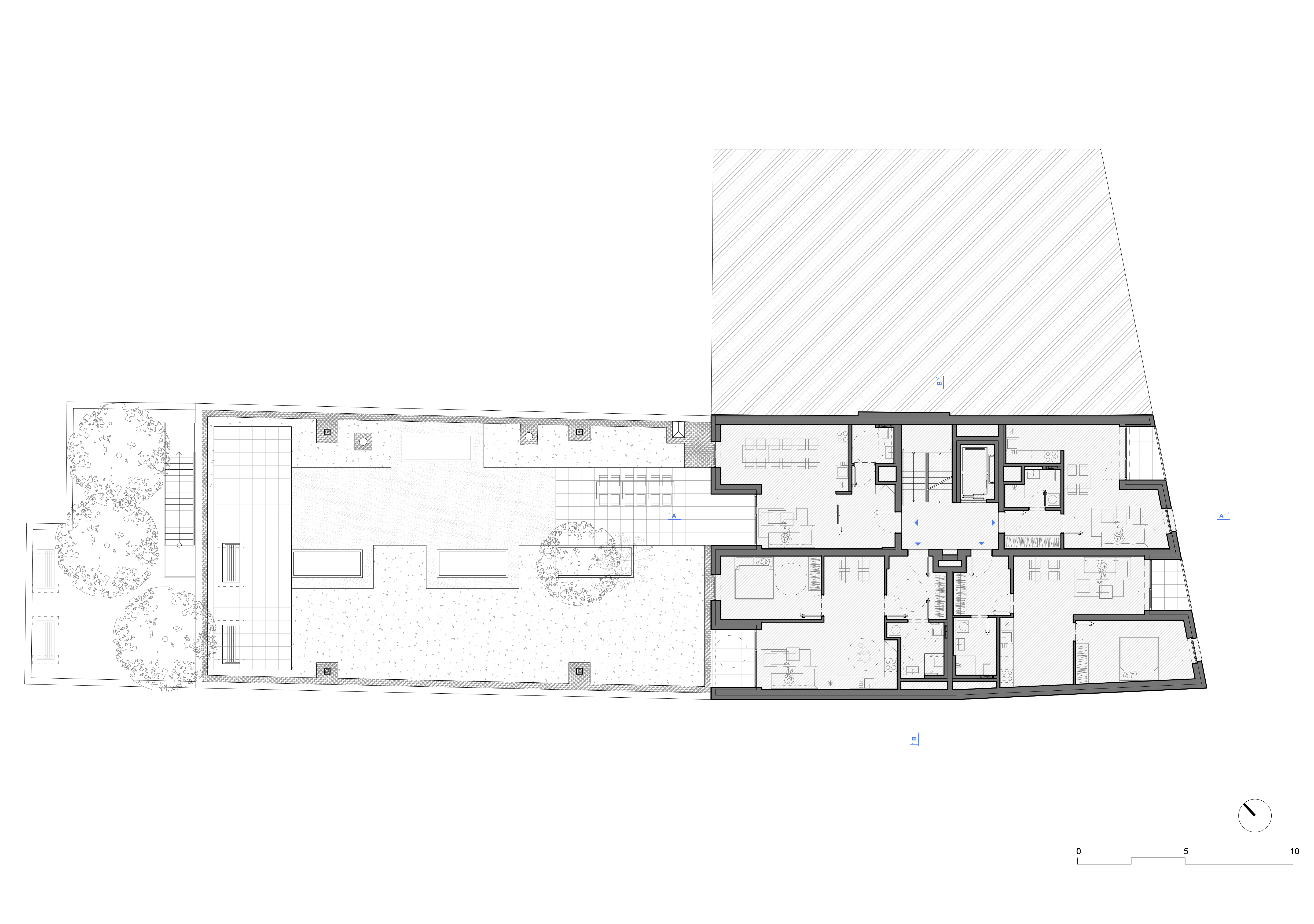
Na druhom nadzemnom podlaží je okrem troch ubytovacích jednotiek navrhnutá spoločenská miestnosť, prepojená so zelenou strechou garáže.
V ďalších piatich podlažiach sa nachádzajú bytové jednotky a veľkosťou 1kk a 2kk. Najväčšie jednotky, orientované do dvora, sú upravené na používanie osôb s obmedzenou možnosťou pohybu a orientácie.
Celým domom prechádza vo vertikálnom smere schodisková hala s výťahom.
Konštrukčný systém objektu tvorí kombinovaný monolitický systém. Základový rošt, podopretý veľkopriemerovými pilótami, nesie železobetónové steny, stĺpy a stropné dosky. Vo vyšších podlažiach sú železobetónové zvislé konštrukcie čiastočne nahradené murovanými stenami. Obvodové steny sú zateplené kontaktným zatepľovacím systémom. Ako tepelný izolant slúžia dosky z minerálnej vlny, lepené a kotvené hmoždinkami. Vrchnú vrstvu fasády tvorí stierková omietka bielej farby.
Vegetačná strecha objektu je jednoplášťová. Vnútorné priečky sú navrhnuté z keramických tvárnic, inštalačné predsteny a prímurovky sú riešené ako pórobetónové, prípadne zo sadrokartónu. Výplne otvorov na úrovni 1. NP tvorí hliníkový systém, vo vyšších podlažiach majú okná plastové rámy a izolačné zasklenie. Dvere podľa potreby na užívanie osôb s obmedzenou schopnosťou pohybu dopĺňajú vodorovné madlá vo výške maximálne 900 mm. Madlo je vždy osadené z vnútornej strany dverí.
Dažďová voda, zvedená do podzemnej akumulačnej nádrže, slúži na zavlažovanie vegetačnej strechy nad garážou. Prebytky dažďových vôd sú vypúšťané s regulovaným odtokom do kanalizačnej siete. Dom je vybavený núteným vetraním s rekuperáciou, zaisťujúcim výmenu vzduchu vo všetkých bytoch. Odvetrávanie priestoru garáže zabezpečuje samostatná vetva vzduchotechniky. Dom je napojený na verejnú tepelnú sústavu mesta.
Materiály:
Autor: CL3
Podklady: Linka
Fotografie: Tomáš Slavík, Barbora Kudelová