Využite špeciálnu akciu Internorm: okná za minuloročné ceny a hliníkový kryt úplne zadarmo. Ponuka je časovo obmedzená!
Na podujatí sa predstaví až 37 vystavovateľov - popredných dodávateľov stavebných materiálov a inovácií s prezentáciou...
Sumarizácia najdôležitejších inovácií, ktoré redefinujúcich využitie tohto energetického zdroja.
AMPHIBIA 3000 GRIP 1.3 od spoločnosti ATRO predstavuje modernú hydroizolačnú technológiu, ktorá spája vysokú odolnosť,...
Ambiciózne plány EK narazili na ekonomické možnosti domácností v jednotlivých členských štátoch –...
IDEA DOOR od spoločnosti JAP prináša do interiéru čistý minimalistický vzhľad vďaka bezrámovému riešeniu a precíznej...
Kontinuita riešenia od vonkajšieho obkladu až po kovania a kľučky.
Nástenné nadomietkové armatúry Vitus sú mimoriadne vhodné pre rýchlu a efektívnu...
Okenné profily z kompozitného materiálu RAU-FIPRO X od spoločnosti Rehau sú v porovnaní s tradičnými plastovými profilmi mnohonásobne...
Najnovší sortiment stolov pre zariadenie interiérov...
Spojenie moderného dizajnu, funkčnosti a svetla do harmonického architektonického prvku.
Kancelárska budova Baumit v slovinskom Trzine prešla premenou na moderné a udržateľné pracovisko. Architekti kládli dôraz...
Mottom šiesteho ročníku on-line konferencie odborníkov Xella Dialóg je Efektívny návrh budov 2025+: zmeny a riešenia
Robot WLTR predstavuje moderný prístup k murovaným konštrukciám. Vďaka automatizácii dokáže rýchlo, presne a bezpečne realizovať...
Okrem bezpečnosti majú okná aj elegantný vzhľad, pretože nie sú viditeľné žiadne uzamykacie časti kovania.

Bytový dom Iconik vyplnil jednu z posledných prieluk v pražskom Karlíne, ktoré vznikli následkom povodne v roku 2002. Nový objekt sa stal súčasťou hlavnej triedy. Tá rovnako ako celá štvrť prešla v posledných dvoch dekádach zásadnou sociálnou aj urbanistickou premenou. Návrh pražského ateliéru edit! reflektuje historickú parceláciu prieluky a pre Karlín typické nepravidelné výškové usporiadanie korunných ríms. Nový development, rozdelený na vyššiu (deväťpodlažnú) a nižšiu (osempodlažnú) hmotu zastrešuje malé byty, určené na dlhodobý a krátkodobý prenájom.
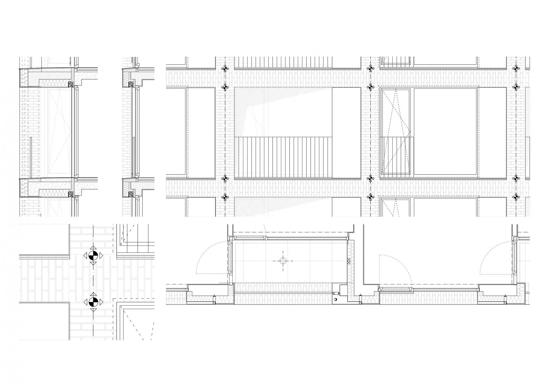
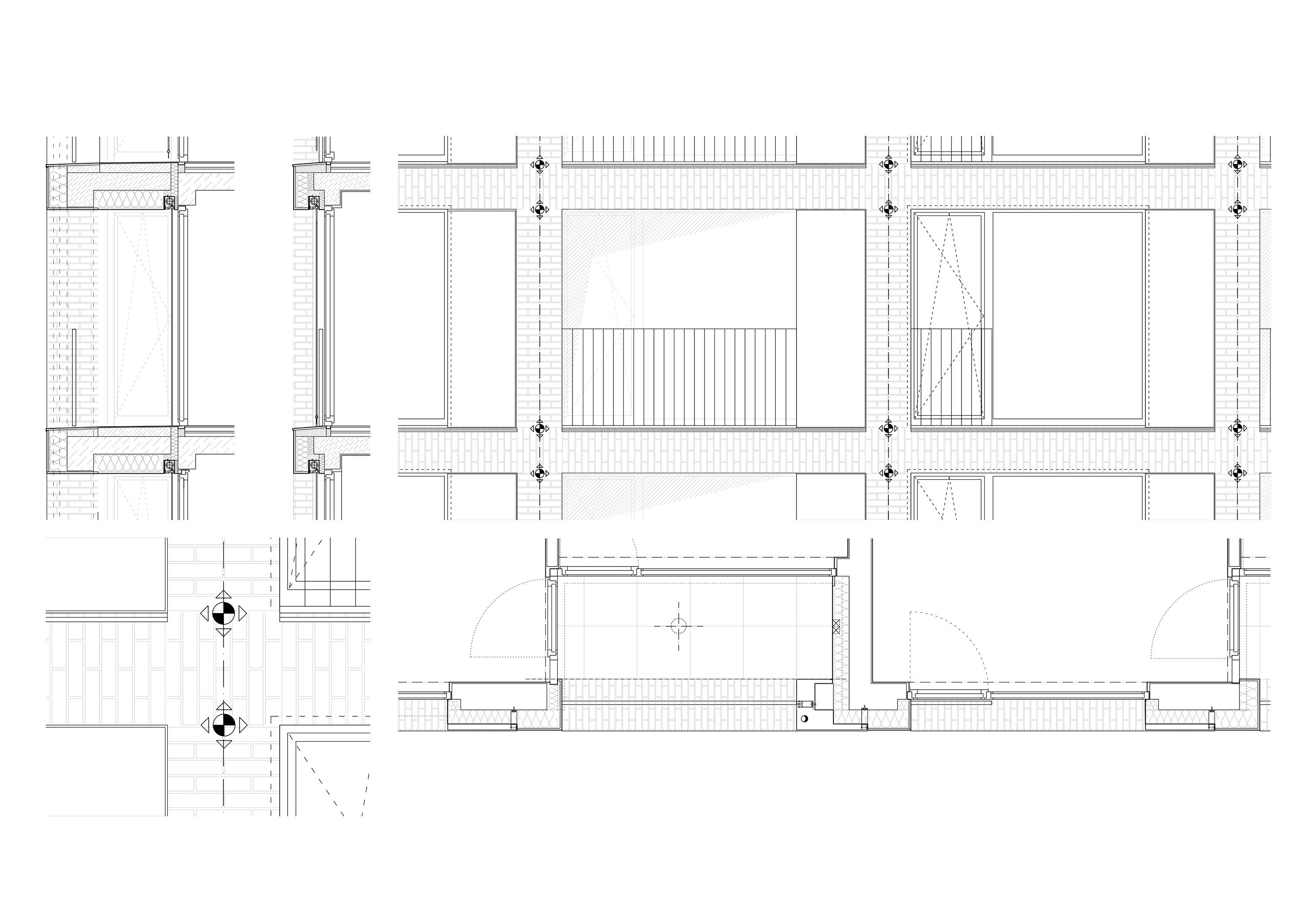
Vizuál uličnej fasády definuje keramický obklad v dvoch odtieňoch, ktorý odkazuje na materialitu miestnych industriálnych objektov a bytových domov z 30. rokov minulého storočia. Oba stavebné objemy odlišuje raster okien a lodžií. Systém fasádnych otvorov je navrhnutý s nízkym parapetom (450mm od podlahy) a rozdelený na pevnú a otváravú časť. Predsadený systém hliníkových lamiel v ľavej časti fasády naznačuje kontúry pôvodného objektu, ktorý novostavba nahradila. Keramický obklad prechádza z fasády plynulo do strešnej roviny.
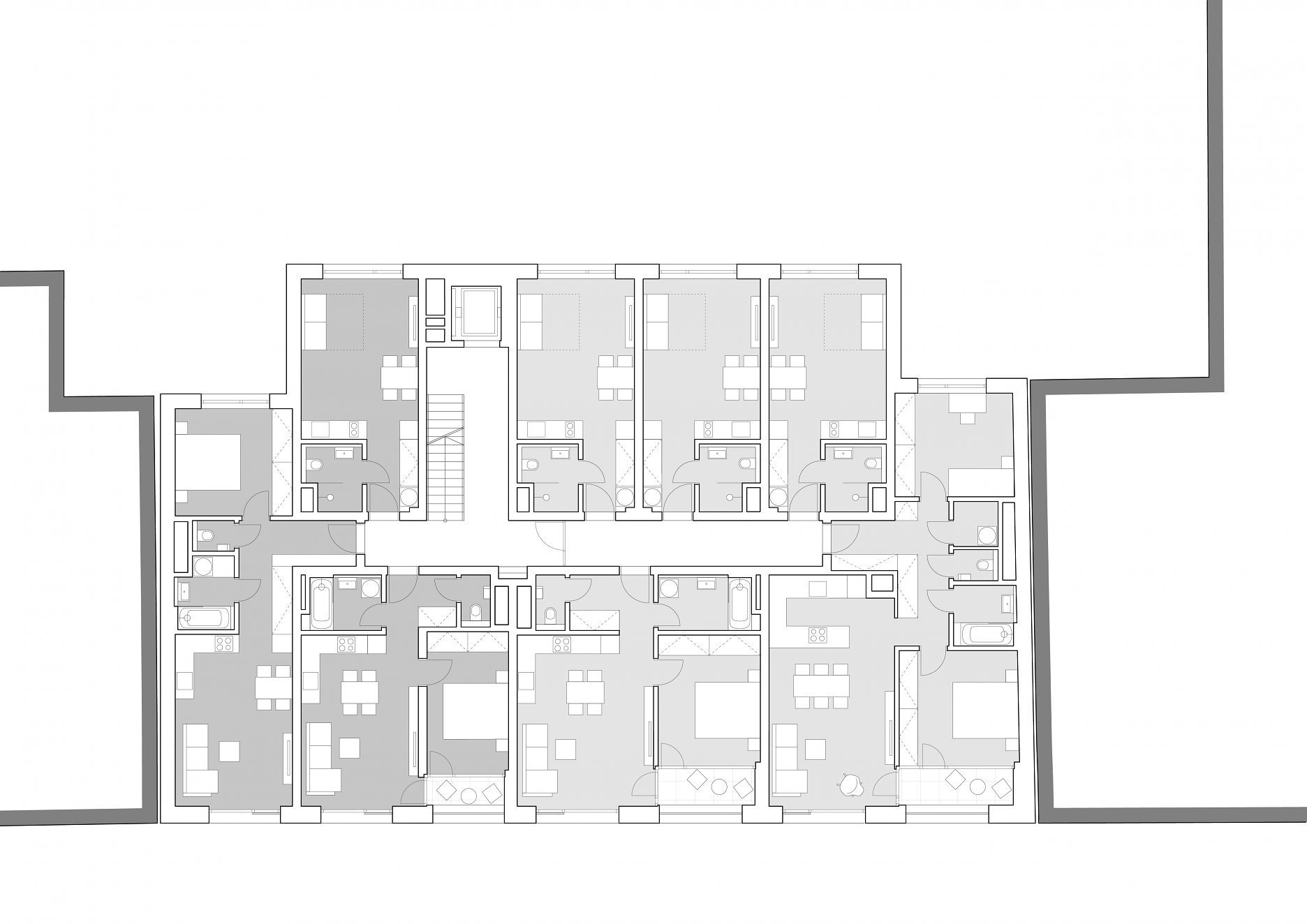
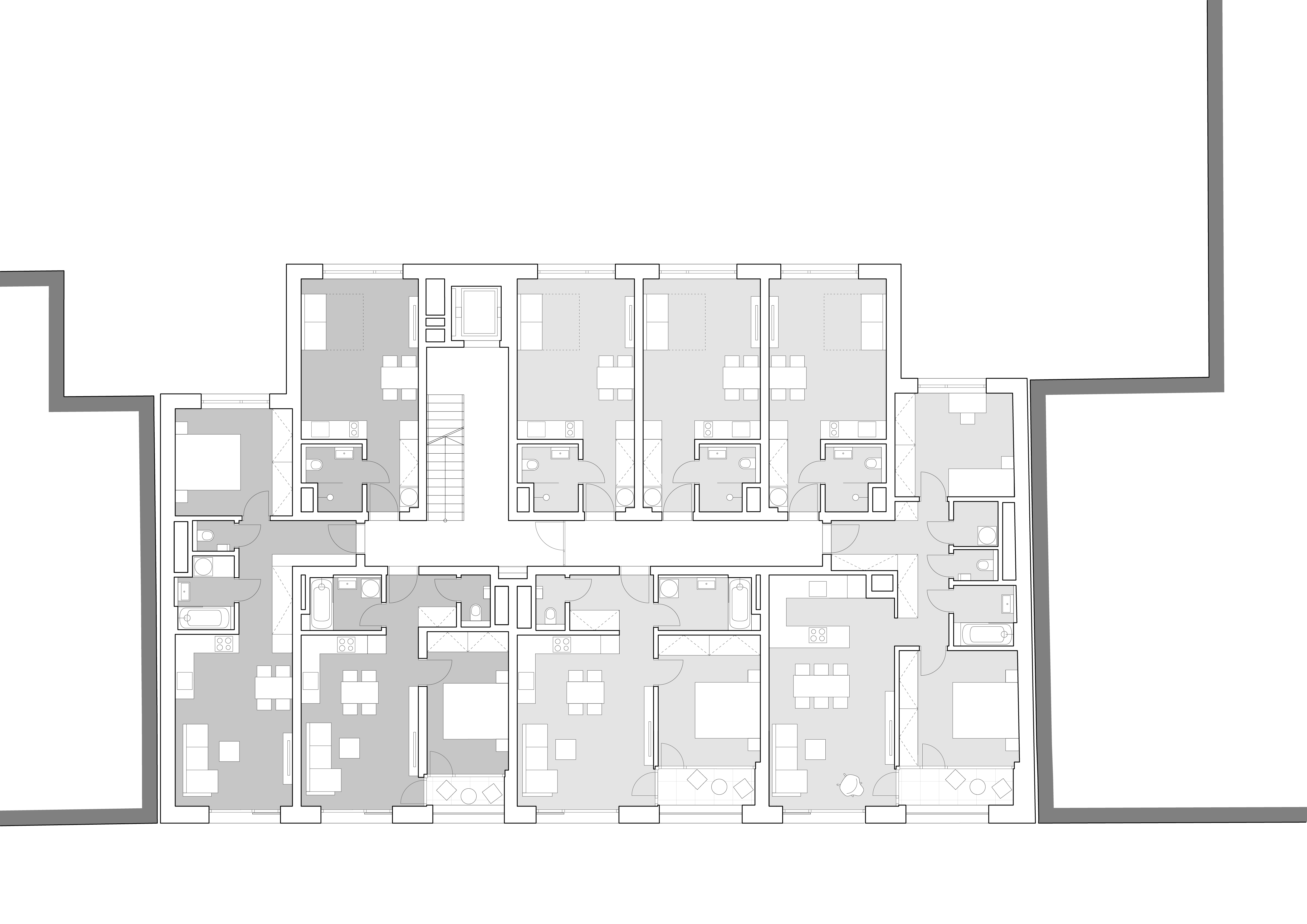
Dispozíciu tvorí štandard dnešných mestských bytových domov - trojtrakt s jedným vertikálnym jadrom. Do troch podzemných podlaží situovali architekti parkovanie, technické zázemie objektu a pivničné kobky. Parter využívajú dve komerčné jednotky, prepojené so záhradou vo vnútrobloku. Samostatná vstupná hala slúži ako predpolie vertikálneho jadra, ktoré sprístupňuje 48 bytov na druhom až deviatom nadzemnom podlaží. Bytové jednotky pokrývajú rozmedzie 1+kk až 4+kk. Najväčšie byty - riešené ako dvojpodlažný penthouse so strešnou terasou a bazénom - zaberajú dve najvyššie úrovne.
Prevládajúce “dvojizbáky” disponujú vlastnou lodžiou alebo terasou, prístupnou z obývacej izby aj spálne. Vonkajšie priestory, orientované na juh - do ulice Sokolovská, vytvárajú nárazníkovú zónu pred ruchom mestskej triedy. Priestranné terasy na najvyšších podlažiach otvárajú pohľady na zelený Vítkov a strešnú krajinu Karlína.
Nosný systém budovy tvorí kombinovaná monolitická železobetónová konštrukcia. Nosné steny s hrúbkou 220mm dopĺňajú stĺpy s obdĺžnikovým prierezom. Pôdorys je rozdelený do štyroch osových polí. Tri majú rozpon 8,1m, štvrté 3,8m. V užšom poli je umiestnená hlavná vertikálna komunikácia, schodisko a výťah. Stropné dosky majú hrúbku 250mm v podzemnej časti a 220mm v nadzemnej časti.
Materiály
Autor: edit!
Podklady: Linka
Fotografie: BoysPlayNice