Na podujatí sa predstaví až 37 vystavovateľov - popredných dodávateľov stavebných materiálov a inovácií s prezentáciou...
Novotvar v prostredí alpskej obce.
Hansgrohe - prémiová značka kúpeľňových riešení, ponúka nadčasový dizajn, technickú precíznosť a udržateľné inovácie...
Využite špeciálnu akciu Internorm: okná za minuloročné ceny a hliníkový kryt úplne zadarmo. Ponuka je časovo obmedzená!
Sumarizácia najdôležitejších inovácií, ktoré redefinujúcich využitie tohto energetického zdroja.
AMPHIBIA 3000 GRIP 1.3 od spoločnosti ATRO predstavuje modernú hydroizolačnú technológiu, ktorá spája vysokú odolnosť,...
Ambiciózne plány EK narazili na ekonomické možnosti domácností v jednotlivých členských štátoch –...
IDEA DOOR od spoločnosti JAP prináša do interiéru čistý minimalistický vzhľad vďaka bezrámovému riešeniu a precíznej...
Kontinuita riešenia od vonkajšieho obkladu až po kovania a kľučky.
Nástenné nadomietkové armatúry Vitus sú mimoriadne vhodné pre rýchlu a efektívnu...
Okenné profily z kompozitného materiálu RAU-FIPRO X od spoločnosti Rehau sú v porovnaní s tradičnými plastovými profilmi mnohonásobne...
Najnovší sortiment stolov pre zariadenie interiérov...
Spojenie moderného dizajnu, funkčnosti a svetla do harmonického architektonického prvku.
Kancelárska budova Baumit v slovinskom Trzine prešla premenou na moderné a udržateľné pracovisko. Architekti kládli dôraz...
Mottom šiesteho ročníku on-line konferencie odborníkov Xella Dialóg je Efektívny návrh budov 2025+: zmeny a riešenia

Projekt LifePark Residence vyrástol v lokalite Machnáč na svahovitej parcele, prístupnej z Drotárskej cesty. Dvojica objektov efektívne využíva pomerne malú výmeru pozemku, ktorý sa zvažuje na severozápad.
Do rušnej juhozápadnej časti, ktorá prebieha pozdĺž ulice, umiestnili autori z bratislavského ateliéru hantabal architekti väčší bytový dom. Prízemie s občianskou vybavenosťou logicky nadväzuje na priliehajúcu verejnú komunikáciu, objekt je však k ceste natočený tak, aby pôsobil čo najsubtílnejšie. Štyri nadzemné podlažia dopĺňa najvyššie, ustúpené poschodie, s približne polovičnou výmerou. Statická doprava je “uprataná” do trojpodlažnej podzemnej garáže, s napojením na Drotársku cestu.
V ďalšej línii, ktorá je ukrytá pred ruchom a pohľadmi z cesty, navrhli architekti vo vyvýšenej polohe samostatne stojaci dom s tromi bytovými jednotkami. Objekt je umiestnený tak, aby v zadnej časti pozemku zostal zachovaný pätnásťmetrový pás vysokého listnatého porastu.
Oba domy sú výrazovo a materiálovo odlíšené. Uličnému pohľadu dominuje kompaktný blok, zjednotený vertikálnym obkladom z tepelne upravenej severskej borovice. Hantabalovci sa “vyhrali” s kompozíciou stavebných otvorov, ktorá tvorí zaujímavú nadstavbu racionálneho priestorového riešenia (architektonický návrh umožňoval spájanie bytov a zmeny ich dispozičného riešenia).
Pre projekt je charakteristický menší počet bytov so slušnými výmerami. Na piatich nadzemných podlažiach je umiestnených 19 dvoj až štvorizbových bytov. Tie väčšie disponujú hlavnou spálňou s vlastnou kúpeľňou i šatníkom. Ku každému bytu prislúcha terasa, balkón, lodžia či predzáhradka.
Do bytového domu a prevádzok občianskej vybavenosti sa vstupuje z úrovne prízemia, prostredníctvom terénneho schodiska. Bezbariérový prístup je zabezpečený zo suterénu, prístupného priamo z ulice.
Dispozícia a prevádzka
Dispozícia sa odvíja od centrálneho komunikačného jadra. Zvolené riešenie umožnilo výškovo posunúť severozápadnú polovicu objektu. Posun o pol podlažia prispel k lepšiemu osadeniu domu do svahovitého terénu. Centrálne schodisko presvetľuje strešný svetlík, presklená výťahová šachta vedie svetlo do najnižších podlaží. Silueta objektu je ukončená atikami plochých striech, ktoré sú na piatom, ustúpenom podlaží využité ako pochôdzne terasy bytov.
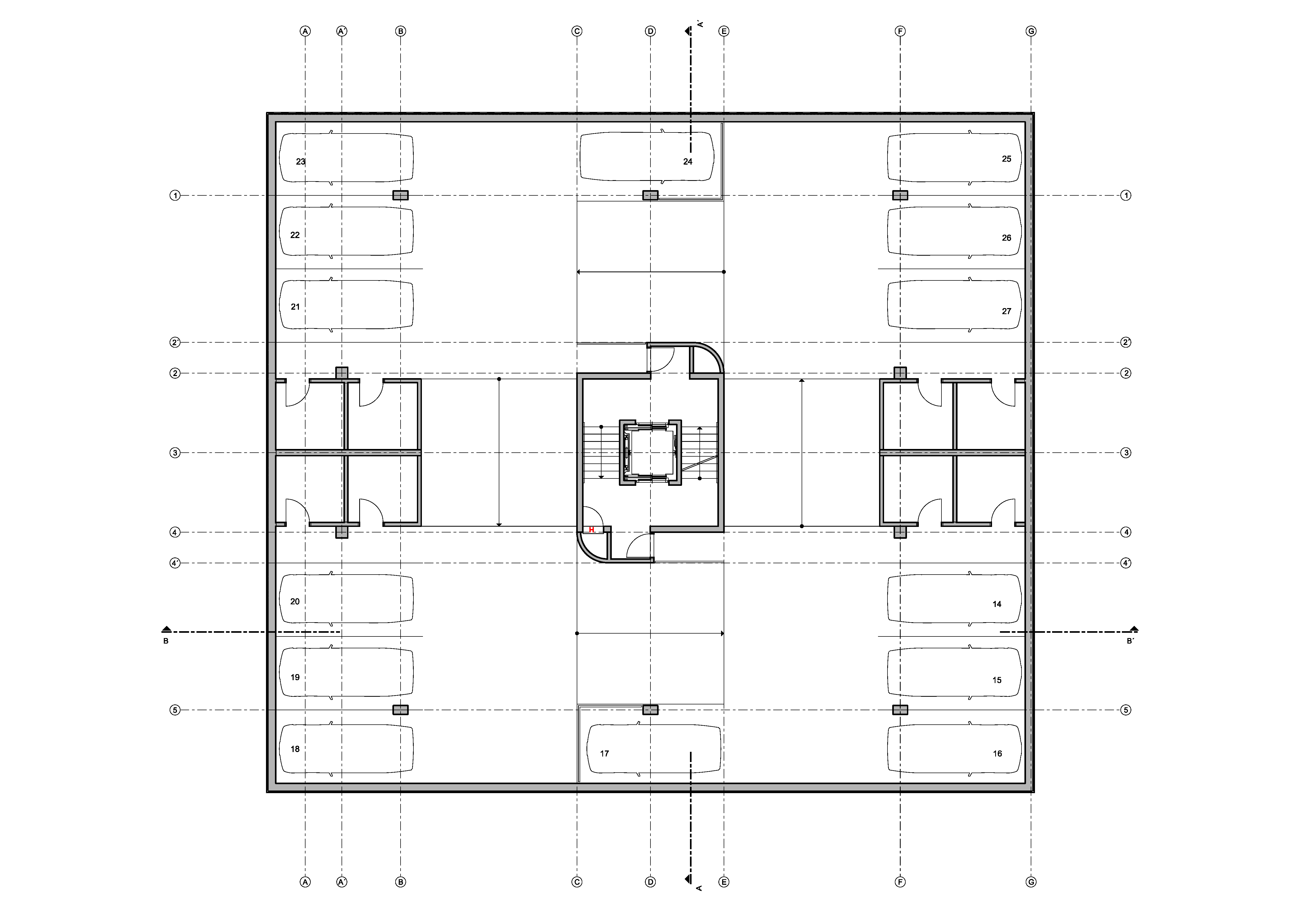
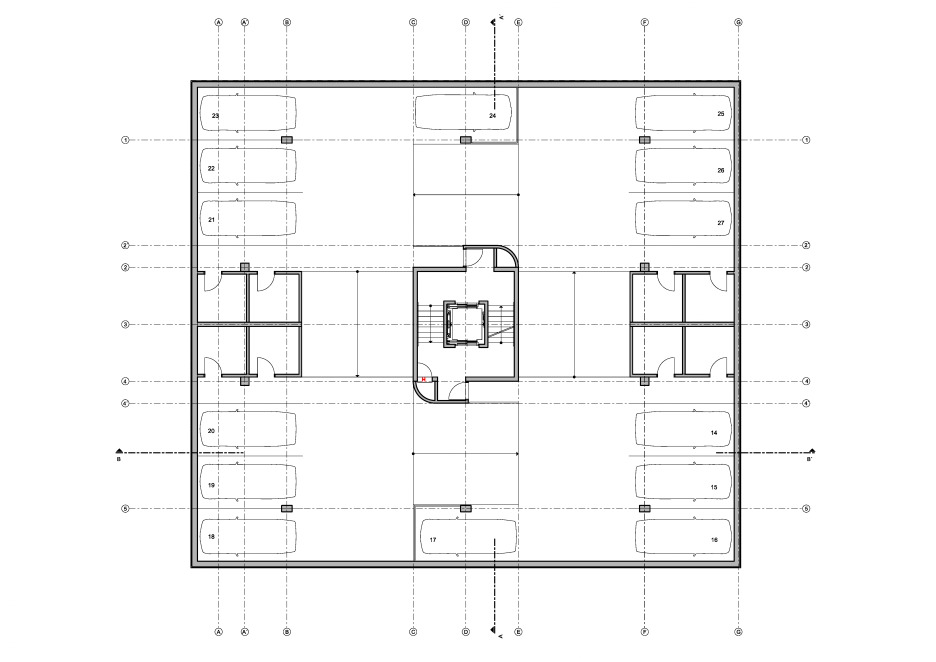
Suterénne podlažia
Hromadná parkovacia garáž prostredníctvom polrámp špirálovito klesá až na úroveň tretieho podzemného podlažia. Stredom dispozície vedie vertikálne jadro, parkovacie boxy a priestory pre odkladanie bicyklov sú umiestnené na obvode. V suteréne sa nachádza aj priestor spoločnej kotolne a vzduchotechniky. Garáž je odvodňovaná do plytkých suchých žľabov s jímkami. Konštrukčná výška suterénnych podlaží je 2,8-2,9 m.
1.N.P. - prízemie
Polovica prízemia, orientovaná do Drotárskej cesty, je určená pre občiansku vybavenosť. Zvyšnú časť zaberajú bytové jednotky, ktoré sú výškovo posunuté a sprístupňujú predzáhradky na rastlom okolitom teréne. Svetlá výška priestorov sa v obslužných častiach domu pohybuje v rozmedzí 2,4 - 2,70 m.
2. až 4.N.P. - typické podlažia
Vyššie podlažia sú vyhradené pre dvoj až štvorizbové byty.
5.N.P. - ustúpené podlažie
Najvyššie podlažie využívajú väčšie, štvorizbové byty, ku ktorým patria strešné terasy.
Hlavná fasáda - prevetrávaný drevený obklad - skladba:
Menší dom v zadnej časti pozemku je redukovaný na základné geometrické formy. Elementárnu figúru podčiarkuje materiálové riešenie a monochromatické fasády. Dve nadzemné podlažia, podobne ako v predchádzajúcom prípade dopĺňa najvyššie ustúpené poschodie. Polootvorený suterén zastrešuje parkovania a vstupy do bytových jednotiek.