Na podujatí sa predstaví až 37 vystavovateľov - popredných dodávateľov stavebných materiálov a inovácií s prezentáciou...
Novotvar v prostredí alpskej obce.
Hansgrohe - prémiová značka kúpeľňových riešení, ponúka nadčasový dizajn, technickú precíznosť a udržateľné inovácie...
Využite špeciálnu akciu Internorm: okná za minuloročné ceny a hliníkový kryt úplne zadarmo. Ponuka je časovo obmedzená!
Sumarizácia najdôležitejších inovácií, ktoré redefinujúcich využitie tohto energetického zdroja.
AMPHIBIA 3000 GRIP 1.3 od spoločnosti ATRO predstavuje modernú hydroizolačnú technológiu, ktorá spája vysokú odolnosť,...
Ambiciózne plány EK narazili na ekonomické možnosti domácností v jednotlivých členských štátoch –...
IDEA DOOR od spoločnosti JAP prináša do interiéru čistý minimalistický vzhľad vďaka bezrámovému riešeniu a precíznej...
Kontinuita riešenia od vonkajšieho obkladu až po kovania a kľučky.
Nástenné nadomietkové armatúry Vitus sú mimoriadne vhodné pre rýchlu a efektívnu...
Okenné profily z kompozitného materiálu RAU-FIPRO X od spoločnosti Rehau sú v porovnaní s tradičnými plastovými profilmi mnohonásobne...
Najnovší sortiment stolov pre zariadenie interiérov...
Spojenie moderného dizajnu, funkčnosti a svetla do harmonického architektonického prvku.
Kancelárska budova Baumit v slovinskom Trzine prešla premenou na moderné a udržateľné pracovisko. Architekti kládli dôraz...
Mottom šiesteho ročníku on-line konferencie odborníkov Xella Dialóg je Efektívny návrh budov 2025+: zmeny a riešenia

Vyhlasovateľom ceny CE ZA AR je Slovenská komora architektov. 19. ročník Ceny za architektúru CE ZA AR 2020 vyvrcholil v bratislavskej Starej tržnici. Večer bol príležitosťou priblížiť verejnosti kvalitnú domácu architektonickú tvorbu.
Ocenenie CE ZA AR už 19. rok upozorňuje na spoločenskú hodnotu architektonických diel a profesionálnych výkonov slovenských architektov. Jeho význam pre rozvoj kultúry a prostredia pre zdravý život ľudí, je vzhľadom na súčasnú globálnu situáciu ešte významnejší. Aktuálny ročník ocenenia CE ZA AR mal za úlohu ešte dôraznejšie presadzovať kvalitné riešenia stavieb. Priestory na bývanie, vzdelávanie, zdravotníctvo a kultúru sú totiž otázkou verejného záujmu a ich kvalita vplýva na všetkých bez rozdielu. Práve preto je heslom tohto ročníka #priestorprearchitekturu.
„Úlohou ocenenia CE ZA AR je zdôrazňovať kultúrnu hodnotu architektonických diel, podporovať kvalitu profesionálnych výkonov architektov, no predovšetkým kultivovať verejné povedomie o nutnosti rozvoja kvalitnej architektúry ako základného princípu zvyšovania kvality životnej úrovne obyvateľov Slovenska. Vykonávateľmi tejto úlohy by však nemali byť len architekti, ale aj zástupcovia samospráv a orgány riadiace investičnú činnosť,“ uviedol počas galavečera predseda predstavenstva Slovenskej komory architektov, architekt Iľja Skoček.
„Všetci sme si vedomí investičného dlhu v našich mestách. Je preto úlohou Slovenskej komory architektov rozvíjať spoluprácu so zástupcami miest a obcí tak, aby sme tento dlh dobehli kvalitnými realizáciami, obstarávanými formou urbanisticko-architektonických súťaží. Veríme, že aj tento ročník Ocenenia CE ZA AR bude veľkou inšpiráciou pre starostov a primátorov miest,“ doplnila riaditeľka Úradu Slovenskej komory architektov JUDr. Viera Hanuláková.
Po piatich dňoch obhliadok naprieč celým Slovenskom vybrala porota rekordných 21 nominácií, ktoré bojovali o ocenenie CE ZA AR 2020 v 6 kategóriách (Rodinné domy, Bytové domy, Fenomény architektúry, Interiér, Exteriér a Občianske a priemyselné budovy). Za osobitný prínos pre rozvoj architektúry, ktorý nie je vyjadrený architektonickým dielom, ale naopak je výsledkom práce osobnosti, miestnej samosprávy alebo inštitúcie, ktorá sa zaslúžila za rozvoj slovenskej architektúry, udeľuje Slovenská komora architektov ocenenie „Patrón architektúry“. Počas galavečera bol vyhlásený i laureát ocenenia „Cena verejnosti“, ktorá sa udeľuje na základe online hlasovania na portáli cezaar.tv.
„Pri obhliadkach sme videli veľa kvalitnej architektúry. Čo spája všetky ocenené diela je holistický prístup k tvorbe a realizácii. Tieto diela vznikli z myšlienkovej bohatosti ich autorov. Boli kreované a strážené, aby myšlienka pretrvala od prvotnej skice až po exaktné linky ďalších stupňov projektovej dokumentácie. Autori zvládli diela po technologickej, konštrukčnej aj materiálnej stránke. Stavby vyzerali skvele, boli skvele vyhotovené a stáli na neotrasiteľných základoch silného konceptu,“ vysvetľuje slovenský architekt Peter Jurkovič rozhodovanie poroty.
„Ocenenie preniklo do povedomia záujemcov o architektúru a architektonickú kultúru. Dá sa možno až neskromne konštatovať, že preniklo do povedomia ‚širšej verejnosti‘. A tak, ako nás život všetkých núti priučiť sa finančnej, či právnej gramotnosti, otázky urbanistickej a architektonickej tvorby začínajú zaujímať čoraz viac inak nezainteresovaných ľudí, ktorí postupne chápu, že ide o veľmi dôležitú súčasť hmotnej a duchovnej kultúry, ktorá veľmi intenzívne ovplyvňuje tvorbu životného prostredia ako priestoru pre život nás všetkých,“ vysvetľuje rozhodovanie poroty jej predseda, architekt Peter Moravčík.
„Z pohľadu porotcu i architekta môžem povedať, že tento ročník je mimoriadne dobrý. Spoločným leitmotívom je potvrdenie, že primárnou podmienkou vzniku kvalitnej architektúry je harmónia spolupráce, spoločný cieľ a intenzívne nadšenie každého zo známej trojky Objednávateľ – Architekt – Realizátor,“ dodáva architekt Peter Moravčík.
„Návšteva projektov po celom Slovensku mi otvorila oči a uvedomil som si, aký dopad majú kultúrne, legislatívne a ekonomické rozdiely na zastavané prostredie. Architektúra nie je len prácou architektov, potrebuje tiež pevný rámec pravidiel a citlivú politiku plánovania a výstavby. Pokiaľ ide o ocenenie CE ZA AR, bol by som rád, keby podobný formát existoval aj v Rakúsku a Nemecku. Slovenská komora architektov odvádza skvelú prácu v rámci propagácie architektúry smerom k širokej verejnosti,“ hovorí rakúsky krajinný architekt, urbanista Kay Strasser, a dodáva, „počas ‚korony‘ sa viac ako kedykoľvek predtým ukázala potreba kvalitných a flexibilných verejných priestorov. Vidíme, že prístup k vonkajším priestorom je nedostatočný a nerovnomerný, použiteľnosť súkromných, ale aj verejných priestorov bola výrazne obmedzená a vyžadovala si viaceré úpravy.“
Skutočnosť, že kvalitná architektúra je verejným celospoločenským záujmom, potvrdzuje aj fakt, že 19. ročník Ceny za architektúru CE ZA AR 2020 sa konal pod záštitou prezidentky Slovenskej republiky Zuzany Čaputovej, primátora Hlavného mesta Slovenskej republiky Bratislavy Matúša Valla a starostky mestskej časti Bratislava – Staré mesto Zuzany Aufrichtovej.
Porota a hodnotenie
„Príjemne nás prekvapilo a veľmi potešilo, že historicky sme mali rekordný počet
prihlásených diel a taktiež porota v prvom kole vybrala na shortlist až 30 diel roztrúsených po celom Slovensku, ktoré osobne navštívila,“ vysvetľuje Oľga Miháliková, manažérka ocenenia CE ZA AR.
Medzinárodná porota navštívené diela hodnotila v zložení:
Peter Moravčík (Slovenská republika, predseda poroty), Peter Jurkovič (architekt, Slovenská republika), Antonín Novák (architekt, Česká republika), Ľubica Segečová (grafická dizajnérka, Slovenská republika), Kay Strasser (krajinný architekt a urbanista, Rakúsko) a Táňa Buijs-Vítková (architektka, Holandsko)
Porota rozhodla o udelení ceny za architektúru CE ZA AR v jednotlivých kategóriách nasledovne (popis k laureátom je názorom poroty):
Kategória RODINNÉ DOMY
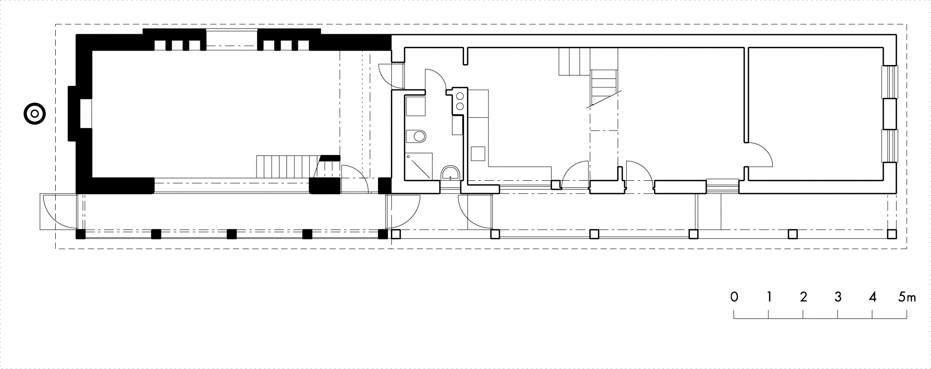
Letný dom / Vajnory, viac TU
Architekti: Aleš Šedivec, Tomáš Tokarčík
Fotografie: Eva Benková
Rodinný dom nás očaril najmä rozsiahlou a kultivovanou, relatívne prázdnou pôvodnou záhradou, okolo celého domu. Objekt je rozdelený na tri funkčné jasne čitateľné, rovnaké časti (domy): dennú, resp. spoločenskú, nočnú a exteriérovú – prekrytá terasa. Práve riešenie exteriérovej časti nás výrazne upútalo. Ako architekti cítime, že riešenie exteriérových priestorov v rámci rodinných domoch výrazne absentuje, pričom práve ono je ich veľmi dôležitou súčasťou, ktorá vo veľkej miere ovplyvňuje celkovú atmosféru i život v rodinnom dome, pretože slúži ako dôležitý pobytový priestor pre rodinu. V prípade Letného domu vo Vajnoroch bol práve exteriérový multifunkčný priestor brilantne vyriešený.
Kategória BYTOVÉ DOMY
Bytový komplex Drotárska / Bratislava, viac TU
Architekti: Michaela Hantabalová, Juraj Hantabal
Fotografie: Juraj Hantabal
Hlavnou prednosťou bytového komplexu na Drotárskej ceste v Bratislave je v podstate veľmi invenčné použitie drevenej prevetrávanej fasády. Vďaka nej autori dokázali vytvoriť pomerne bohatý svet polosúkromných priestorov lodžii a balkónov, ktoré poskytujú svojim obyvateľom rôznu škálu intimity a súkromia. Príkladné je zvládnutie okolitého priestoru a sadovníckych úprav.
Kategória FENOMÉNY ARCHITEKTÚRY
Prístavba k chalupe / Čachtice, viac TU
Architekt: Pavol Paňák
Fotografie: Tomáš Manina
Prístavba víkendového domu v Čachticiach bola očarujúca už z fotografií. Reálna návšteva bola tým typom zážitku, kedy aj v horúcom lete pociťujete zimomriavky z dotyku so skutočným extraktom čírej architektúry. Hoci ide o jednoduché rozšírenie obytného priestoru víkendového domu, spôsob formy, priestoru, netriviálne konštrukčné riešenie a materialita zaradili túto realizáciu medzi Fenomény.
Dom v Čachticiach nie je všeobecne aplikovateľný príklad pre dostavby a rekonštrukcie. Už aj preto, že investorom je sám architekt, ktorý si návrhové, investičné, prevádzkové, termínové a umelecké limity stanovil sám. Fenoménom, hodným zovšeobecnenia, je však prítomnosť rozmýšľania o prerozprávaní formálnej konvencie do nového jazyka. Odvaha, podporená profesionálnou skúsenosťou pri aplikácii neovereného. Aj za cenu experimentálnej neistoty výsledku. Zviditeľnenie technickej kvality a vizuálnej krásy bazálnej materiality.
Kategória INTERIÉR
Oddelenie odbornej literatúry Mestskej knižnice / Senec, viac TU
Architekt: Matúš Bišťan
Fotografie: Pavel Meluš, Juraj Marko
Pri tomto diele je dôležité zvýrazniť, že investorom je mesto Senec. Knižnica oslovila architekta už vo fáze žiadosti o grant. Architektonický návrh bol súčasťou projektu už od začiatku a bol obdivuhodne a dôsledne dotiahnutý do realizácie. Ku kvalite diela prispelo aj to, že si architekt prizval na spoluprácu ďalších autorov na riešenie grafického dizajnu a závesovej steny. Vzniklo tak komplexné dielo, ktoré je dobrým príkladom spolupráce samosprávy a architekta.
Kategória EXTERIÉR
Korzo Zálesie / Zálesie, viac TU
Architekti: Vojtech Krumpolec, Peter Derevenec
Fotografie: Juraj Krumpolec, Michal Zajaček
Korzo prepája mesto s nedotknutým prírodným prostredím Malého Dunaja. Aj napriek tomu, že sa jedná o projekt iniciovaný a z veľkej časti realizovaný angažovanými občanmi, v plnej miere napĺňa ambíciu stať sa multifunkčným priestorom pre kultúru s funkciou námestia, promenády a dopravného uzla. Ako nám ukázala skúsenosť s karanténou v dôsledku Covid-u, takýto priestor potrebuje každé menšie mesto.
Verejné nábrežie v Zálesí obnovuje spojenie mesta s riekou a pozitívne vplýva na identitu daného miesta. Drevená konštrukcia vytvára chýbajúce pešie prepojenie a ponúka sedenie v tieni s úžasným výhľadom na Malý Dunaj. Súčasťou je tiež malý prístav a zastávka pre budúce vodné taxíky do Bratislavy. Tieto nové funkcie dopĺňajú predchádzajúce inštalácie vybudované miestnym občianskym združením a vytvárajú úžasný viackódový priestor.
Kategória OBČIANSKE A PRIEMYSELNÉ STAVBY
#monument majer / Banská Bystrica - Majer, viac TU
Architekti: Benjamín Brádňanský, Vít Halada, Maroš Greš
Fotografie: Ján Kekeli
Objekt je výsledkom súťaže, ktorá je v slovenských pomeroch stále viac výnimkou, ako pravidlom. Architekti vytvorili nádherný, až sakrálny objekt, kde veľmi koncepčným, až krajinárskym spôsobom reagujú na rôzne vrstvy v časovom kontexte. Týmto spôsobom citlivo obnovili pietnosť pôvodného vojnového cintorína. Objekt zároveň ukazuje aj hlboké výtvarné cítenie autorov a ich zručnosť a fachmanstvo v čistote detailu a prevedenia.
CENA VEREJNOSTI
Cena verejnosti sa udeľuje na základe získaných hlasov v online hlasovaní na portáli cezaar.tv. Z celkového počtu 7214 hlasov získalo tento rok najviac hlasov (dovedna 1039) dielo Lesná sauna. Cena verejnosti putuje do rúk jeho tvorcom, architektom Danici Pištekovej, Anne Cséfalvayovej, Marianne Maczovej a Veronike Michalíkovej.
Lesná sauna / Spišský Hrhov, viac TU
Architekti: Danica Pišteková, Anna Cséfalvay, Marianna Maczová, Veronika Michalíková
Fotografie: Daniel Goliáš, Miroslav Beňák
Objekt sauny sa ocitol v kategórií Fenomény ani nie tak pre svoju formu, ale skôr pre program, ktorý toto dielo prináša. Nečakaný objekt, zasadený v krajine, vytvára špecifickú atmosféru a zážitok, za ktorým cestujú ľudia z celého Slovenska. Zrodil sa novodobý fenomén trávenia voľného času.
PATRÓN ARCHITEKTÚRY
Mesto Trenčín / Mesto dobrej architektúry
Ocenenie „Patrón architektúry“ udeľuje Slovenská komora architektov za osobitný prínos pre rozvoj architektúry, ktorý nie je vyjadrený architektonickým dielom, ale naopak je výsledkom práce osobnosti, miestnej samosprávy alebo inštitúcie, ktorá sa zaslúžila o rozvoj slovenskej architektúry. O udelení rozhoduje predstavenstvo Slovenskej komory architektov a jeho hlavným poslaním je pozitívne prezentovať a oceniť človeka alebo organizáciu, ktorá sa výnimočným spôsobom zaslúžila o rozvoj architektúry a stavebnej kultúry na Slovensku v ostatnom období. Primárnym poslaním teda nie je oceniť architektonický výkon, ale poukázať na pozitívne príklady z praxe, ktoré sú hodné nasledovania.
Slovenská komora architektov udeľuje v roku 2020 cenu „Patrón architektúry“ mestu Trenčín. Považuje ho za príklad samosprávy, ktorá svoje významné verejné investície podmieňuje súťažou návrhov. Trenčín je vzorom iným mestám v použití otvorenej a transparentnej metódy pre získanie projektu svojich mestotvorných investícií. Mesto Trenčín využilo architektonickú súťaž pre riešenie obnovy Mierového námestia v roku 2007. Neskôr, v roku 2014, usporiadalo veľkú medzinárodnú urbanistickú súťaž na budúci rozvoj centra na brehu Váhu pod názvom „Mesto na rieke“ a napokon, v minulom roku, postupovalo rovnako súťažou aj pri hľadaní podoby pešej zóny ulíc Hviezdoslavova a Vajanského. Po rokoch tak Trenčín môže získať nový prívlastok – Mesto dobrej architektúry.