Advertorial

Okná Internorm za minuloročné ceny + hliníkový kryt zdarma!

Využite špeciálnu akciu Internorm: okná za minuloročné ceny a hliníkový kryt úplne zadarmo. Ponuka je časovo obmedzená!

Pozvánka na 2. ročník stavebného veľtrhu BigMarket na Slovensku

Na podujatí sa predstaví až 37 vystavovateľov - popredných dodávateľov stavebných materiálov a inovácií s prezentáciou...

Moderné plynové technológie: Efektivita a inovácie pre 21. storočie

Sumarizácia najdôležitejších inovácií, ktoré redefinujúcich využitie tohto energetického zdroja.

Utesňovanie spodných stavieb pomocou hydro-aktívnej fólie AMPHIBIA.

AMPHIBIA 3000 GRIP 1.3 od spoločnosti ATRO predstavuje modernú hydroizolačnú technológiu, ktorá spája vysokú odolnosť,...

Dekarbonizácia individuálneho vykurovania domácností – Green Deal evolučne a nie revolučne

Ambiciózne plány EK narazili na ekonomické možnosti domácností v jednotlivých členských štátoch –...

Minimalistické dvere IDEA – technická precíznosť a čistota prevedenia

IDEA DOOR od spoločnosti JAP prináša do interiéru čistý minimalistický vzhľad vďaka bezrámovému riešeniu a precíznej...

Dom s výhľadom na údolie, Dlouhý Most (ČR)

Kontinuita riešenia od vonkajšieho obkladu až po kovania a kľučky.

Schell Vitus – osvedčené riešenie pre sprchy a umývadlá vo verejnom sektore s viac ako desaťročnou tradíciou

Nástenné nadomietkové armatúry Vitus sú mimoriadne vhodné pre rýchlu a efektívnu...

Kompozitné okná predstavujú súčasnosť a budúcnosť

Okenné profily z kompozitného materiálu RAU-FIPRO X od spoločnosti Rehau sú v porovnaní s tradičnými plastovými profilmi mnohonásobne...

Myotis - stoly 2025

Najnovší sortiment stolov pre zariadenie interiérov...

Priemyselné sklenené priečky Dorsis Digero: svetelné rozhranie pre moderné interiéry

Spojenie moderného dizajnu, funkčnosti a svetla do harmonického architektonického prvku.

Význam prirodzeného svetla pre moderné a flexibilné pracovné prostredie

Kancelárska budova Baumit v slovinskom Trzine prešla premenou na moderné a udržateľné pracovisko. Architekti kládli dôraz...

Konferencia Xella Dialóg predstaví novinky a trendy v stavebníctve

Mottom šiesteho ročníku on-line konferencie odborníkov Xella Dialóg je Efektívny návrh budov 2025+: zmeny a riešenia

Murovací robot WLTR stavia svoj prvý dom na Slovensku

Robot WLTR predstavuje moderný prístup k murovaným konštrukciám. Vďaka automatizácii dokáže rýchlo, presne a bezpečne realizovať...

Nová éra bezpečnosti s I-tec Secure od Internorm

Okrem bezpečnosti majú okná aj elegantný vzhľad, pretože nie sú viditeľné žiadne uzamykacie časti kovania.

Prístavba domu v areáli bývalej tehelne, Čachtice

Majstrovský kúsok od Pavla Paňáka.
Diela
Red 130.07.2019
180260+199
Prístavba domu v areáli bývalej tehelne,  Čachtice
Autori: Ing. arch. Pavol PaňákInvestor: Pavol PaňákZastavaná plocha: 54 m2Návrh: 2017 - 2017Realizácia: 2017 - 2018Adresa: Čachtice, SlovenskoPublikované: 30. júl 2019

Areál bývalej čachtickej tehelne má ďalší zaujímavý prírastok. Už teraz je to územie s viacerými pozoruhodnými objektmi.

Hoci diela sú rozmermi neveľké, lokalita “zapadnutá” - to čo vzniklo poteší každého, kto je schopný vnímať kultivovaný a civilný autorský prejav. Rodiace sa diela nie sú “hocijaké”. Potvrdili to aj medzinárodné architektonické ocenenia. O prvej intervencii - prestavbe ruiny na ateliér v Čachticiach sme informovali už dávnejšie.

Dnes predstavujeme najnovší prírastok - prístavbu domu v areáli pôvodnej tehelne. Má charakter mnohovrstvového diela. Je zhmotnením osobného prínosu a intervencie autora. Vyjadruje jeho názor a autorskú predstavu. Za dielom cítiť prítomnosť architekta, ktorý nielen vníma súvislosti, ale ktorý súčasne vie “ako na to”. Dokáže svoju víziu presvedčivo zhmotniť vo výslednej fyzickej forme.

Foto: Tomáš Manina

Je zrejmé, že autor nielen dobre pozná modernú architektúru XX. storočia, ale aj hlbší historický odkaz, znalosti i fortieľ majstrov starého poctivého remesla. Pozná takisto súčasné technológie, moderné stavebno-fyzikálne a materiálové riešenia.

Pavol Paňák spája “staré” a “nové” nie v zmysle mechanického napodobovania, ale v zmysle poznania a pochopenia vnútorných súvislostí a vzťahov

Následne tieto svoje poznatky (a schopnosti) interpretuje formou slobodného “prerozprávania” v autonómnej autorskej výpovedi.

Foto: Tomáš Manina

Výsledkom je veľmi jemná, vyvážená kompozícia, kombinujúca zmes rôznych vplyvov. Vo výsledku ucelené, harmonické dielo.

Na jednej strane je výsledok komplexný. Netreba nič pridávať.

Na strane druhej kompozícia nie je nemenná. Objekt je schopný ďalšieho vývoja. Dokáže postupom času prijímať ďalšie kultúrne vrstvy a nánosy, odzrkadľujúce individualitu používateľov a požiadavky, ktoré prinesie čas.

“Hrubá stavba” je zároveň aj interiérom. Všetko vidno a každý prvok má svoj účel a svoju úlohu pri vnímaní celku. Autor si ctí materiály v ich naturálnej forme. Bez povrchových úprav.

Nové a staré tvoria spoločný celok v hmotových aj dispozičných väzbách.

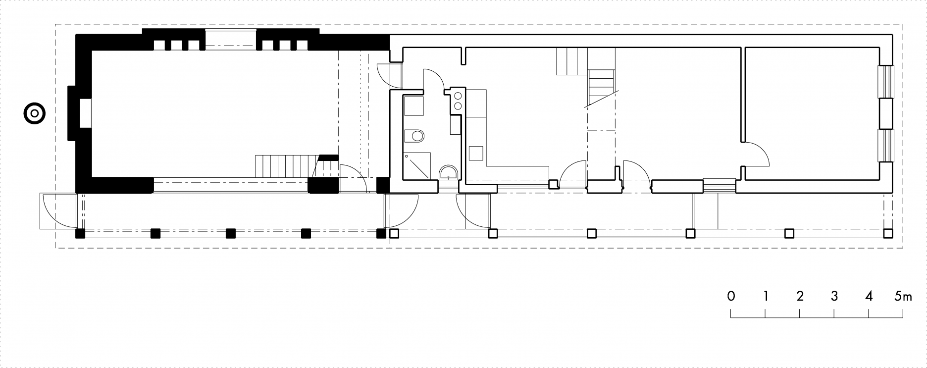
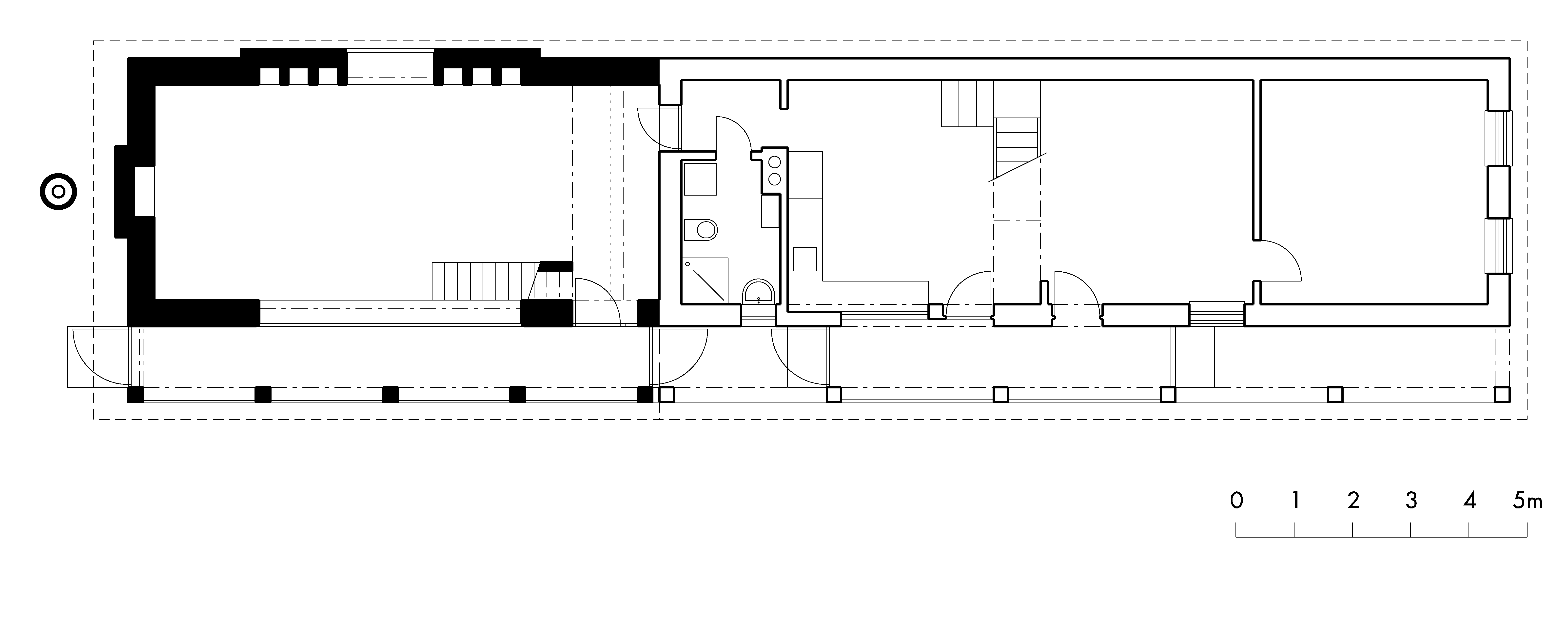
Pôdorys,
Pôdorys,autor: Pavol Paňák
Pohľad južný,
Pohľad južný,autor: Pavol Paňák
Rez,
Rez,autor: Pavol Paňák
Detail skladby strechy,
Detail skladby strechy,autor: Pavol Paňák

Materialita má svoj význam aj z hľadiska stavebnej fyziky. Takéto stavanie je udržateľné, aj “bioklimatické”. 

Opticky ľahká a vzdušná geometrická kompozícia je zároveň masívnou, serióznou stavbou. S akumulačnými vlastnosťami a tepelnou zotrvačnosťou vyrovnávajúcou amplitúdy exteriérových tepelných rozdielov a ziskov z insolácie. Jednoducho “poctivý” masívny materiál dáva stavbe nielen “štrukturálnu dušu”, ale aj vytvára dobré predpoklady pre príjemné a zdravé bývanie. 

Foto: Tomáš Manina

Slovo autora:

Prístavba je súčasťou súboru stavieb v areáli bývalej dedinskej tehelne. Súbor v rozľahlej záhrade pozostáva z repliky bývalého obydlia tehliarov (z roku 1995), z bývalej prestavanej tehliarskej klenbovej pece na ateliér (z roku 2010) a zo šopy (z roku 2016). Prístavba reaguje na zvýšenú potrebu obytnej plochy najmä pre víkendové pobyty rodiny - je vlastne novou obytnou izbou prepojenou s jestvujúcou dispozíciou bytu. Vo svojej pôdorysnej i rezovej siluete je vlastne pozdĺžnym predĺžením jestvujúceho domu. Obe stavby - pec/ateliér i prístavba charakterizovala akási východisková predurčenosť. Kým témou ruinóznej pece bola idea nového obalu chrániaceho jestvujúcu klenbu a jej priestor, tak témou prístavby bol charakter vnútorného priestoru v pokračujúcom obryse jestvujúceho domu.

Situácia: A - dom replika, B - tehelňa-ateliér, C - šopa, D - prístavba,
Situácia: A - dom replika, B - tehelňa-ateliér, C - šopa, D - prístavba,autor: Pavol Paňák

Východiskom bolo vynechanie obvyklého stropu medzi obytným priestorom a krovom v typickej rezovej figúre gánkového domu. V pôdorysnej osnove ide o komponovanie priečnej osi voči pozdĺžne podvojným osiam krovu a priestoru izby. Ide v skutočnosti o jednoduchú veľkú izbu s vloženou emporou nadväzujúcou na podkrovie jestvujúceho domu a na ňu vedúcimi schodmi. Krb a knižnica lícujú zvnútra a ich objem je na obvodové steny prepísaný zvonka. Splynutie priestoru prízemia a priestoru podkrovia nie je novátorským gestom - neobyčajnosť tohto vzťahu pochádza v tomto prípade práve zo vzájomného posunu spomínaných dvoch pozdĺžnych osí.

Foto: Tomáš Manina
Foto: Tomáš Manina

Na mieste tohto súboru sa mnohé desaťročia pálila tehla. Samotný krov je istým spôsobom poctou tehle i kultúre jej dávneho remesla. Všetky použité staré tehly z vyše dvoch tretín pochádzajú z toho miesta, ostatné z blízkeho okolia. Na rozdiel od dnešnej strojovej výroby boli ručne robené a po vypálení v skutočnosti rozmanito presné i rôznych odtieňov. To robí takúto prostú plochu v skutočnosti dekoratívnou. Je obrazom možnej pripomienky Semperovho učenia o textilnom-tkanom pôvode konštrukcií stien a povrchov.

Foto: Tomáš Manina

Všetky povrchy - tehla, kov, vápenná omietka, betónové výrobky, preglejka sú bez ďalšej povrchovej úpravy. Gánok pozdĺž izby je presklenný, uzatvárateľný a po väčšinu roka funguje ako klimatická medzizóna. Stavebno-fyzikálne má takýto ťažký krov (alebo tiež vzájomne opreté dve šikmé stropné dosky) vynikajúce akumulačné vlastnosti pre stálosť vnútornej klímy. V predpolí prístavby je osadená kovová plastika Petra Rollera.

Foto: Tomáš Manina
Foto: Tomáš Manina
Foto: Tomáš Manina
Foto: Pavol Paňák
Foto: Tomáš Manina

 

Tvorivý proces môžu priblížiť skice z pera autora:

Skica,
Skica,autor: Pavol Paňák
Skica,
Skica,autor: Pavol Paňák

Podklady: Pavol Paňák / A BKPŠ, fotografie: Tomáš Manina a Pavol Paňák

Poloha diela

Ing. arch. Pavol Paňák

Súvisiace články

Vložené
29. júl 2019
0
18026
Hlavný obsahHlavný obsah
Čakajte prosím