Advertorial

Okná Internorm za minuloročné ceny + hliníkový kryt zdarma!

Využite špeciálnu akciu Internorm: okná za minuloročné ceny a hliníkový kryt úplne zadarmo. Ponuka je časovo obmedzená!

Pozvánka na 2. ročník stavebného veľtrhu BigMarket na Slovensku

Na podujatí sa predstaví až 37 vystavovateľov - popredných dodávateľov stavebných materiálov a inovácií s prezentáciou...

Moderné plynové technológie: Efektivita a inovácie pre 21. storočie

Sumarizácia najdôležitejších inovácií, ktoré redefinujúcich využitie tohto energetického zdroja.

Utesňovanie spodných stavieb pomocou hydro-aktívnej fólie AMPHIBIA.

AMPHIBIA 3000 GRIP 1.3 od spoločnosti ATRO predstavuje modernú hydroizolačnú technológiu, ktorá spája vysokú odolnosť,...

Dekarbonizácia individuálneho vykurovania domácností – Green Deal evolučne a nie revolučne

Ambiciózne plány EK narazili na ekonomické možnosti domácností v jednotlivých členských štátoch –...

Minimalistické dvere IDEA – technická precíznosť a čistota prevedenia

IDEA DOOR od spoločnosti JAP prináša do interiéru čistý minimalistický vzhľad vďaka bezrámovému riešeniu a precíznej...

Dom s výhľadom na údolie, Dlouhý Most (ČR)

Kontinuita riešenia od vonkajšieho obkladu až po kovania a kľučky.

Schell Vitus – osvedčené riešenie pre sprchy a umývadlá vo verejnom sektore s viac ako desaťročnou tradíciou

Nástenné nadomietkové armatúry Vitus sú mimoriadne vhodné pre rýchlu a efektívnu...

Kompozitné okná predstavujú súčasnosť a budúcnosť

Okenné profily z kompozitného materiálu RAU-FIPRO X od spoločnosti Rehau sú v porovnaní s tradičnými plastovými profilmi mnohonásobne...

Myotis - stoly 2025

Najnovší sortiment stolov pre zariadenie interiérov...

Priemyselné sklenené priečky Dorsis Digero: svetelné rozhranie pre moderné interiéry

Spojenie moderného dizajnu, funkčnosti a svetla do harmonického architektonického prvku.

Význam prirodzeného svetla pre moderné a flexibilné pracovné prostredie

Kancelárska budova Baumit v slovinskom Trzine prešla premenou na moderné a udržateľné pracovisko. Architekti kládli dôraz...

Konferencia Xella Dialóg predstaví novinky a trendy v stavebníctve

Mottom šiesteho ročníku on-line konferencie odborníkov Xella Dialóg je Efektívny návrh budov 2025+: zmeny a riešenia

Murovací robot WLTR stavia svoj prvý dom na Slovensku

Robot WLTR predstavuje moderný prístup k murovaným konštrukciám. Vďaka automatizácii dokáže rýchlo, presne a bezpečne realizovať...

Nová éra bezpečnosti s I-tec Secure od Internorm

Okrem bezpečnosti majú okná aj elegantný vzhľad, pretože nie sú viditeľné žiadne uzamykacie časti kovania.

Cena Dušana Jurkoviča 2020 - výsledky

Laureátom 56. ročníka Ceny Dušana Jurkoviča sa stal Pavol Paňák za Prístavbu k chalupe v Čachticiach.
Súťaže
Red 418.11.2020
29880+50
Cena Dušana Jurkoviča 2020 - výsledky

Spolok architektov Slovenska udelil Cenu Dušana Jurkoviča už po 54. krát.

Architektonická cena, ktorá bola zriadená ako trvalá pocta pamiatke zakladateľa modernej slovenskej architektúry Dušana Jurkoviča, je najstarším architektonickým ocenením na Slovensku. Od roku 1964 sú oceňovaní autori, alebo autorské kolektívy za dielo, ktoré prispieva k zvýšeniu úrovne a prestíže architektonickej tvorby na Slovensku. 

Aktuálny ročník bol po viacerých stránkach špecifický. ARCHINFO bolo spoluorganizátorom. Vzhľadom na súčasnú "covidovú" situáciu práca poroty prebiehala dištančne, formou online komunikácie. Napriek nemožnosti fyzického stretnutia sa porotcov a priamej konfrontácie hodnotených diel "in situ" (čo je vždy najzaujímavejšia časť práce), porotcovia pristúpili k svojej úlohe maximálne zodpovedne. Dopredu boli pripravené všetky dostupné podklady ku každému dielu. V dvojtýždňovom predstihu porotcovia študovali vybrané realizácie a v spoločných zdieľaných dokumentoch vyjadrovali svoje názory na jednotlivé práce. 

Záverečná spoločné hodnotiace online "zasadnutie" poroty bolo miestom pre bezprostrednú osobnú výmenu názorov. Malo všetky atribúty fyzického stretnutia porotcov, ako ho poznáme z predchádzajúcich ročníkov. Aj so širokou rozpravou, podrobným hodnotením jednotlivých návrhov, výmenou názorov, živou argumentáciou a energickou diskusiou.

Potešiteľný je rezultát, na ktorom sa porota zhodla. Laureát a nominované diela sú nielen  dokladom pestrosti súčasnej slovenskej architektúry, ale tiež jej kvality, ktorá je porovnateľná aj v širšom kontexte. Svedčia o tom aj slová predsedu poroty Kamila Mrvu:

Výběr staveb je příkladem poctivé evropské či světové architektury...

V aktuálnom ročníku bolo na ocenenie navrhnutých 21 architektonických diel. Porota, ktorá zasadala v 23. septembra, vybrala na základe štúdia predložených návrhov a následnej diskusie laureáta a štvoricu nominovaných diel.

Hodnotiaca komisia zasadala v nasledovnom zložení:  Marián Balázs (Maďarsko), Bohdan Lisowski (Poľsko), Kamil Mrva (Česká republika), Štefan Moravčík (Slovensko), Vít Halada (Slovensko - za kolektív laureátov Ceny Dušana Jurkoviča za rok 2019), Peter Dunajovec (Slovensko) a Štefan Mitro (Slovensko). Porotcovia si zvolili za svojho predsedu Kamila Mrvu.

 

Cenu Dušana Jurkoviča 2020 sa rozhodla porota udeliť architektonickému dielu:

Prístavba k chalupe v Čachticiach (Dielo sme podrobne predstavili tu)
Autor: Pavol Paňák
Rok dokončenia: 2019
Lokalita: Areál bývalej tehelne v Čachticiach

Z komentárov poroty:

  • Napriek svojmu malému merítku je to okúzľujúca architektúra...
  • Prístup k existujúcej budove a bezprostrednému okoliu je primeraný, citlivý a ohľaduplný. Príklad ekologického myslenia...
  • Prezentované tehly na strope sú tou pravou pripomienkou “ducha miesta”, (tehelňa v spojení s prezentáciou najtypickejšieho atribútu ako integrálnej súčasti konštrukcie) 
  • Svetový prístup k zadaniu neveľkej stavby, poézia a harmónia realizácie skvelého architekta, obdivujem…
  • Malý rozsah a špecifická situácia umožnili sústrediť sa na najzákladnejšie otázky architektúry a vytvoriť vynikajúce dielo...
  • Atmosféra vnútorného priestoru, jedinečný výber materiálov a rafinované detaily predstavujú mimoriadne vysokú umeleckú hodnotu…
  • Hoci vnútorné usporiadanie je jednoduché a geometria je tiež ľahko dešifrovateľná, výsledok vytvára pozoruhodne diverzifikovaný a komplexný efekt, odhaľujúci silnú umeleckú víziu v komponovaní vzťahov človeka a priestoru…
  • Intenzívne architektonické dielo - svetlo, materiál, konštrukcia, výhľady, situácie, detaily, prekvapenia a otázky…
  • Posuny a interpretácie známeho. Intelektuálny a pocitový zážitok v priestore…
  • Autor touto realizáciou pretavil osobný vzťah k historickej forme a materiálu do polohy „intímnej architektonickej lyriky“...
  • Architektov architektonický priestor... 
  • Koncept prístavby v novej minimalistickej forme, s použitím pôvodného tradičného materiálu v naturálnej podobe, jeho povýšením netradičným osadením s použitím  naturálneho svetla, hovorí o architektovi - poetovi...
  • Materiály a štruktúry sa prihovárajú neobyčajnou autenticitou. Rozsahom komorné dielo pôsobiace až zážitkovým spôsobom...
Foto: Tomáš Manina
Foto: Tomáš Manina
Foto: Tomáš Manina
Situácia: A - dom replika, B - tehelňa-ateliér, C - šopa, D - prístavba, autor: Pavol Paňák
Situácia: A - dom replika, B - tehelňa-ateliér, C - šopa, D - prístavba, autor: Pavol Paňák

 

Nominácie na Cenu Dušana Jurkoviča 2020 získali nasledovné diela:

 

Polyfunkčný dom na Konventnej ulici  (Dielo sme podrobne predstavili tu)
Autori: Martin Kusý II., Pavol Paňák, Martin Kusý III.
Rok dokončenia: 2020
Lokalita: Konventná ulica, Bratislava

Z komentárov poroty:

  • Vynikajúci príklad umiestnenia súčasnej architektúry v kontexte historickej mestskej štruktúry…
  • Architektonické stvárnenie čelnej fasády poteší a zároveň harmonizuje s priečeliami fasád celej uličnej fronty…
  • Súdobý objekt zástavby v kontexte miesta s príjemnou fasádou a sklenenými prvkami...
  • Bytový dom citlivo reaguje na urbanistický kontext…
  • Vhodne dopĺňa fasády priľahlých budov, Vytvára súvislú ulicu a podporuje jej mnohovrstvový obsah. S citom interaguje s jemnými detailmi okolia…
  • Budova má dve tváre, obrátenú k ulici a orientovanú k vnútornému nádvoriu. Smerom k verejnému priestoru ukazuje drsnejšiu stranu, zatiaľ čo smerom do dvora pôsobí hravo a uvoľnene…
  • Budove sa darí súčasne prispôsobovať sa okoliu a zároveň šikovne formovať svoje prostredie... 
  • S formovaním svojho okolia, vnútorných priestorov i prostredia pre obyvateľov, sa vysporiadala s neobmedzenou ľahkosťou a citeľnou radosťou…
  • Zápas súčasnej interpretácie bohatého vrstveného formálneho kontextu uličných fasád a stavebného objemu, ktorý presahuje možnosti kontextu lokality…
  • Krásna a bohatá uličná fasáda ukrývajúca nutné metre kubické na úkor prázdna vnútrobloku...
  • Hľadanie rubikonu v jeho zadávacích podmienkach. Množstvo podmieňujúcich faktorov vyústilo  do nekonvenčného prístupu…
  • Vo finálnej forme sa tvári ako dr. Jekyll and mr. Hyde…
  • Osvedčený autorský kolektív si so schopnosťou jemu známou poradil s náročným staveniskom, historizujúcim prostredím starého mesta, zložitými dispozíciami, použitím tradičného materiálu – čo rezultovalo do kvalitnej realizácie bojujúcej “o cenu“...
  • Príklad kontextuálneho prístupu v náročnom prostredí prieluky v historickom jadre…
  • Proporcionalita, design a detaily uličnej fasády sú veľmi presvedčivé. Skvelým spôsobom je zvládnutá aj ručne ťahaná fasáda zámerne priznávajúca nerovnosti, ako štruktúra u ktorej sa dá predpokladať, že bude "veľmi pekne starnúť“...
  • Porota konštatovala istú „dvojtvárnosť“ výrazu tohto bezpochyby výnimočného diela v koncepčnom prístupe a vo výbere výrazových prostriedkov uličnej a vnútroblokovej fasády...
Foto: Tomáš Manina
Foto: Tomáš Manina
Foto: Tomáš Manina
Priečny rez
Priečny rezAutor: Architekti A B.K.P.Š.

 

Bachledka – vrcholová vybavenosť (Dielo sme podrobne predstavili tu)
Autori: Juraj Benetin, Matej Grébert, Roman Janata, Miroslava Gašparová (interiér apartmánov)
Rok dokončenia: 2019
Lokalita: Bachledova dolina - Malá Poľana

Z komentárov poroty:

  • Príklad moderného lyžiarskeho a dovolenkového strediska, ktoré je šikovne vpísané do krajiny s premysleným dizajnom, minimalizujúcim dopad na prostredie, s otvoreným kontaktom medzi interiérom a exteriérom budovy, poskytujúcim nádherné výhľady na Tatry…
  • Architektonické vydarené zvládnutie ťažkého zadania “horskej architektúry”. Vzťah exteriéru a interiéru je dôkladne naplnený…
  • Minimalistický dizajn je spojený s jednoduchými a odolnými materiálmi. Veľkorysosť vnútorných priestorov vhodne dopĺňajú úchvatné výhľady rámované veľkými transparentnými otvormi…
  • Efektívne a efektné architektonické gesto ukrytia veľkého stavebného objemu potrebnej infraštruktúry lyžiarskeho strediska problematizujúce správanie sa architektúry v krajine. Architektúra materiálových  zárezov a štrbín ako sympatické úkryty redukujúce prírodu na obrazy na stenách…
  • Dielo, ktorého realizácia provokuje  diskusiu na tému - vstupovať, či nevstupovať stavebnou intervenciou do najmenších „ veľhôr sveta“... 
  • Architektonické dielo zavŕšené kvalitnou realizáciou vyzretého architektonického myslenia, dobrej znalosti a následnej analýzy prostredia so zanechaním citlivej stopy ľudského činu...
  • Výborný príklad tvorivých schopností architektov, ktorí ukázali že vedia robiť kvalitnú architektúru. Vynikajúce, skulpturálne pôsobiace dielo, minimalizujúce pôsobenie svojich objemov čiastočným zapustení pod zem. Otázky vzbudzuje skôr celkový komerčný kontext okolitého investičného zámeru a jeho primeranosť vo vzťahu k pôvodnému prírodnému prostrediu…
  • Pokiaľ  cieľom návrhu bolo vytvorenie vybavenosti pre chodník v korunách stromov, je to práve tento chodník, resp. jeho dominantné situovanie vo vzťahu k terénnym danostiam, ktorý pôsobí isté rozpaky. Vyhliadková veža čnejúca nad horizontom  akoby do značnej miery negovala myšlienky koncepcie hlavnej objektovej sústavy, rešpektujúcej prírodný kontext. Tento rozpor oslabuje vynikajúci výsledok autorov v podobe objektu vrcholovej vybavenosti...
Foto: BoysPlayNice
Foto: BoysPlayNice
Foto: BoysPlayNice
Rezy
RezyAutor: Compass Architekti

 

Dom pre brata (Dielo sme podrobne predstavili tu)
Autori: Pavol Šilla, Silvia Šillová
Rok dokončenia: 2019
Lokalita: Prešov - Šidlovec  

Z komentárov poroty:

  • Vedomé použitie surových stavebných materiálov s cieľom ukázať ich prírodnú krásu a zároveň naznačiť, že na vytvorenie dobrej architektúry nie je vždy potrebný vysoký rozpočet…
  • Vďaka svojmu rozumnému priestorovému návrhu, priamočiarosti a rafinovanému použitiu materiálov, je tento jednoduchý a nízkonákladový obytný dom vynikajúcim príkladom kvalitnej architektúry…
  • Prístup, vnútorné nádvoria, vzájomná prepojenosť priestorov, interiérové obytné časti... poskytujú jej obyvateľom veľmi príjemný domov... 
  • Kryté vonkajšie otvorené priestory organicky rozširujú možnosti  pre každodenný život a prirodzene nadväzujú na dobre navrhnutú vnútornú dispozíciu…
  • Dom ponúka novú úroveň kvality, ktorá môže pomôcť pri formovaní vkusu verejnosti: posunúť ďalej náš neustále sa vyvíjajúci prístup k životu a bývaniu…
  • Výborný príklad rodinného bývania. Dom vtipne využívajúci terén na oddelenie privátneho priestoru od ulice, ale tiež ponúkajúci bohaté priestorové vzťahy medzi interiérom a exteriérom v rôznych smeroch... 
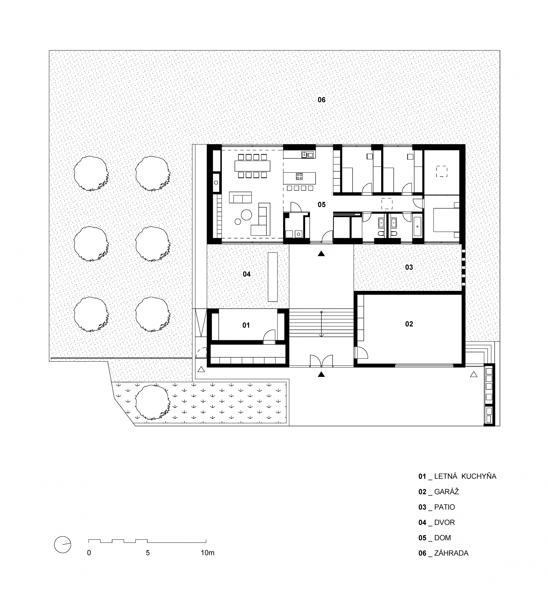
  • Príjemná predmestská interpretácia vidieckeho bývania na dvore, medzi domom, stodolou, maštaľou a letnou kuchyňou...
  • Dokonalá znalosť investora/brata, jasné autorské priority, prednosť obsahu pred formou... 
  • Zohľadnenie potrieb a možností mladej rodiny... 
  • Pred svetom intímny - dovnútra otvorený... 
  • V materiáloch “low cost“, v napĺňaní potrieb „rich“...
  • Možnosťou kontinuálneho vývoja a obohacovania diela novými vrstvami…
  • Dom pre brata, je silným odkazom pre budúcich staviteľov rodinných domov - ako postupovať pri hľadaní rodinného šťastia…
  • Projekt vtipne pracuje s terénom, vstupná schodisková hala, ako aj zvýšená denná časť poskytujú prekvapujúco veľkorysý vnem pri zachovaní kompaktnosti celku... 
  • Riešenie vnútorného dvora s patiom a letnou kuchyňou zaujímavým spôsobom „intimizuje“ život obyvateľov domu, pričom nestráca komunikáciu s okolím...
  • Názorný príklad, že aj použitím “lacných” surových materiálov môže vzniknúť prvotriedna architektúra. Svojím poňatím odpovedá na mnohé otázky  dnešnej, častokrát povrchnej doby...
Foto: Silvia Šillová
Foto: Silvia Šillová
Foto: Silvia Šillová
Situácia
SituáciaAutori: Pavol Šilla a Silvia Šillová


Lodenica Karloveské rameno (Dielo sme podrobne predstavili tu)
Autori: Martin Hörmann, Richard Kastel, Peter Kopecký
Rok dokončenia: 2019
Lokalita: Bratislava - Karlova Ves

Z komentárov poroty:

  • Harmonická súhra pohľadového betónu a dreva z červeného smreka…
  • Aj prozaická funkcia a jednoduchá forma s vertikálnym členením môže viesť k podmanivému výsledku…
  • Jednoduchá, funkčná stavba s peknými detailmi. Pôvabné prekonanie výškových úrovní využitím betónovej podnože…
  • Dômyselný návrh rešpektujúci špecifiká strmého pozemku pri rieke. Trojpodlažný objekt s dobre usporiadanými vnútornými priestormi úspešne plní svoje poslanie…
  • Vonkajšia aj vnútorná štruktúra a použitie materiálov sú precízne premyslené, kultivované a rozumné. Výsledkom je nádherne kompaktná budova…
  • Konštrukčno-materiálovou jednoduchosťou vyznačujúca sa výrazná spoločenská infraštruktúra, ktorá na rozhraní medzi silnou mestskou dopravnou tepnou a tichom Karloveského ramena vytvára priestor pre stretnutia a aktívny oddych... 
  • Vertikálne vrstvenie reaguje na výškové pomery a priestorové vzťahy územia a provokuje mestské miešanie poloprivátnych priestorov klubu a verejnej kaviarne…
  • Reminiscencia na prvorepublikové vltavské, labské, či dunajské veslárske kluby, ktoré svoju prostotu naplnili aj niečím vzácnejším – klubovou spolupatričnosťou, sústredením sa na podstatu spoločného záujmu – láskou k vode, rovnosti,  slobode, a demokracii... 
  • Architektonické dielo, ktoré nie je márnivé, napriek tomu je podmanivé...
  • Synergický urbanistický efekt. Racionalita v prístupe ku konštrukcii, materiálom a detailom pôsobí „dotiahnutým“ a vyváženým dojmom... 
  • Autori sa v obsahovej a formálnej stránke diela diela citlivo a vtipne vysporiadali s lokalitou, kde sa mestské prostredie prelína s prírodným. Logické použitie prevládajúceho materiálu dreva - ako odkaz/prepojenie na architektúru pôvodných lodeníc...
Foto: Martin Hörmann
Foto: Martin Hörmann
Foto: Martin Hörmann
Rezoperspektíva
RezoperspektívaAutor: OFFICE110 architekti

 

Záverečné slovo predsedu poroty – Kamila Mrvu:

Děkuji za nádhernou prezentaci současné slovenské architektury, je mi ctí být u toho! Výběr staveb je příkladem poctivé evropské či světové architektury.

V této nelehké době jsme, bohužel, nemohli navštívit osobně všechny přihlášené stavby. Vážím si práce všech dvaceti projektů od výborných architektů, investorů a dodavatelů.

Přeji všem hodně zdraví a štěstí, ať žije slovenská skvělá architektura!

 

Slávnostné odovzdanie cien Spolku architektov Slovenska prebehlo dnes – 18. novembra 2020 v Sieni Dušana Jurkoviča v Balassovom paláci. SAS pripravuje krátke video o Cenách Spolku architektov Slovenska v roku 2020 o zverejnení ktorého vás budeme informovať.

Súvisiace články

Vložené
1. november 2020
0
2988
Hlavný obsahHlavný obsah
Čakajte prosím