Okenné profily z kompozitného materiálu RAU-FIPRO X od spoločnosti Rehau sú v porovnaní s tradičnými plastovými profilmi mnohonásobne...
Najnovší sortiment stolov pre zariadenie interiérov...
Spojenie moderného dizajnu, funkčnosti a svetla do harmonického architektonického prvku.
Kancelárska budova Baumit v slovinskom Trzine prešla premenou na moderné a udržateľné pracovisko. Architekti kládli dôraz...
Mottom šiesteho ročníku on-line konferencie odborníkov Xella Dialóg je Efektívny návrh budov 2025+: zmeny a riešenia
Robot WLTR predstavuje moderný prístup k murovaným konštrukciám. Vďaka automatizácii dokáže rýchlo, presne a bezpečne realizovať...
Okrem bezpečnosti majú okná aj elegantný vzhľad, pretože nie sú viditeľné žiadne uzamykacie časti kovania.
Dvere MASTER v skrytej zárubni AKTIVE je možné vyrobiť až do výšky 3 700 mm
Internorm stavia na energetickú efektívnosť a inteligentné tieniace riešenia.
Pohľad na moderné prístupy k výrobe s dôrazom na udržateľnosť.
Slovensko vo výbere zastupuje šesť realizácií.
Spoločnosť Internorm odteraz stavia na novej variante tepelnoizolačného skla od AGC, ktorá v produkcii ročne ušetrí 10...
Jubilejný 20. ročník prestížnej medzinárodnej súťaže pre študentov architektúry priniesol...
Otočné a posuvné dvere MASTER od podlahy až po strop, ponúkajú mimoriadnu variabilitu výšky, materiálu a zladenia so skrytými...
Predstavené produkty, spájajú premyslený dizajn, funkčnosť a udržateľnosť. Nábytok Materia vzniká s cieľom podporiť inšpiratívne stretnutia...

Slávnostné odovzdanie cien Spolku architektov Slovenska prebehne 1. decembra 2022 v Moyzesovej sieni FFUK. Záštitu nad podujatím prevzala ministerka kultúry SR Natália Milanová.
Architektonická cena, ktorá bola zriadená ako trvalá pocta pamiatke zakladateľa modernej slovenskej architektúry Dušana Jurkoviča, je najstarším architektonickým ocenením na Slovensku. Od roku 1964 sú oceňovaní autori, alebo autorské kolektívy za dielo, ktoré prispieva k zvýšeniu úrovne a prestíže architektonickej tvorby na Slovensku.
V roku 2022 Spolok architektov Slovenska organizoval 58. ročník Ceny Dušana Jurkoviča. Osemčlenná medzinárodná porota posudzovala 26 prihlásených diel. Na základe osobných obhliadok 11 realizácií určila jedného laureáta a päť nominácií. Je nutné zdôrazniť, že členovia komisie výrazne vyzdvihli dvojicu diel - Jurkovičovu Tepláreň v Bratislave a Mestský úrad v Leopoldove, ktoré napriek svojmu odlišnému charakteru spĺňali najprísnejšie kvalitatívne hodnotenia. Konečná argumentácia, rozprava a hlasovanie potvrdili Jurkovičovu Tepláreň ako tohtoročného laureáta Ceny Dušana Jurkoviča.
Hodnotiaca komisia zasadala v nasledovnom zložení: Iván Nagy (Maďarsko) - predseda poroty, Tomasz Karpowicz (Poľsko), David Leníček (Česká republika), Richard Murgaš (Slovensko), Peter Žalman (Slovensko), Andrea Bacová (Slovensko) a Petronela Šelinger Királyová (Slovensko)
Cenu Dušana Jurkoviča 2020 sa rozhodla porota udeliť architektonickému dielu:
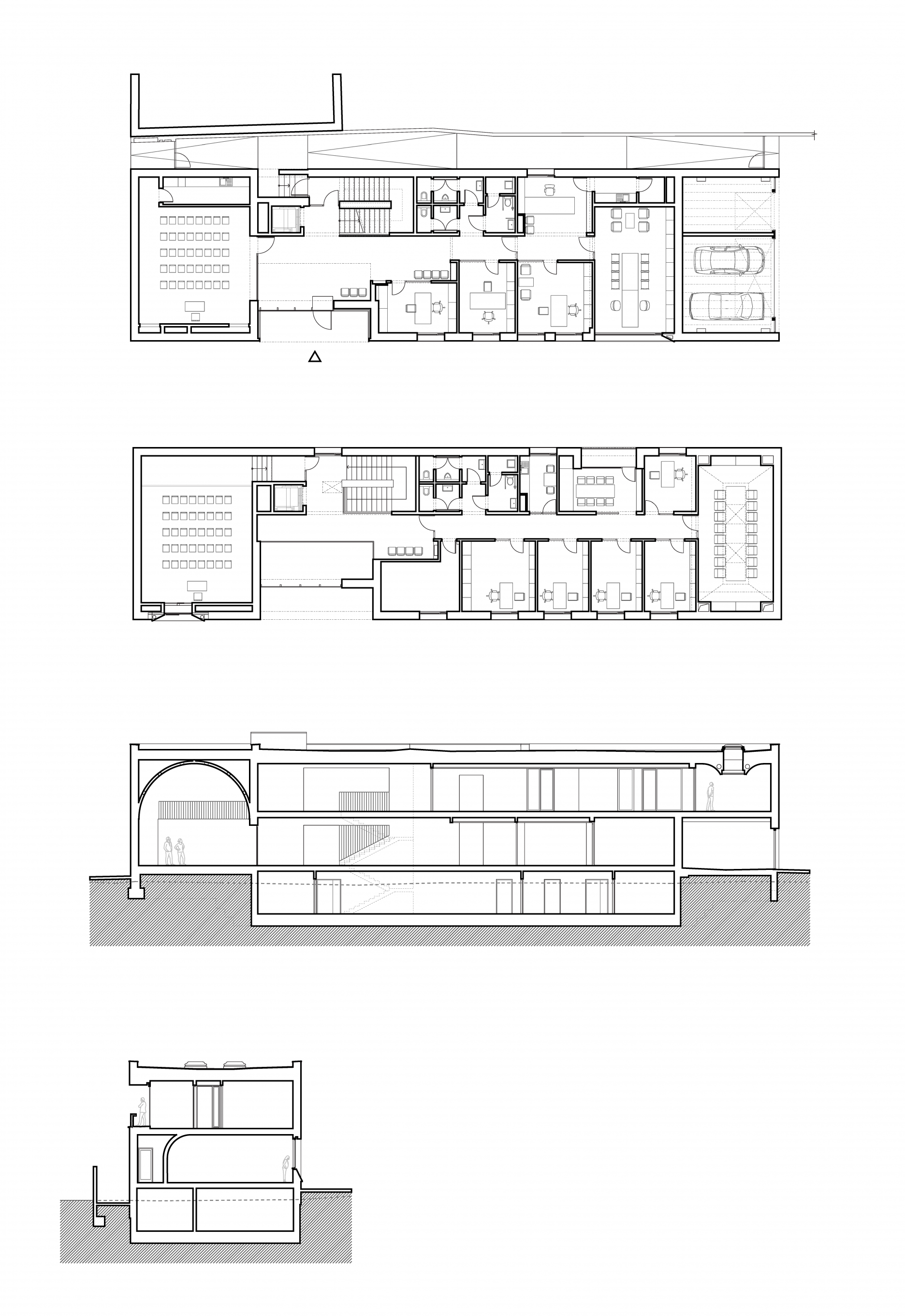
Konverzia Jurkovičovej Teplárne, Bratislava (viac tu)
Autor: Martin Paško a tím DF CREATIVE GROUP
Spoluautori architektonickej časti: Zuzana Zacharová, Eva Belláková, Matúš Podsklalický, Martina Michalková, Alexandra Havranová
Hlavný inžinier projektu: Roman Bányai
Hlavný statik: Peter Gavaľa
Autor obnovy fasád: Pamarch / Pavol Pauliny
Spolupráca: Pavol Pribylinec, Vlasta Viglašová, Juraj Prokipčák, Mária Kubaliaková
Interiér: DF Creative Group, Perspektiv, Beef architekti, Point architekti
Rok dokončenia: 2021
Lokalita: Bratislava
Z komentárov poroty:
“V území anonymných podlubí nového bratislavského downtown-u pôsobí ako správne zjavenie zo skutočne inej doby. Analytická reštaurátorská práca s maximom pôvodného vizuálu zvonku, zvnútra pôsobivé prelínanie úrovní podlaží a kombinovanie uzavretých a otvorených priestorov. Z kvalitného prevedenia stavby a hodnotných detailov nie je cítiť iba vysokú cenovku ale aj zanietenie architektov pre dopovedanie príbehu stavby do konca. Pulzujúcim životom svojich prevádzok sa objekt stáva záchranným kolesom v mori okolitého anonymného urbanizmu. Negatíva rozporuplného riešenia výškovej úrovne a tvaru okolitého terénu vyvažuje ambícia byť individualistom s vlastným životom v území rodiacej sa mestskej štvrte,”
- Richard Murgaš.
Nominácie na Cenu Dušana Jurkoviča 2022 získali nasledovné diela:
Mestský úrad Leopoldov (viac tu)
Autori: Irakli Eristavi, Pavol Šilla, Juraj Červený
Spolupráca: Martin Ratkoš, Ing. Vladimír Durbák, Viliam Hrubovčák, Marcel Benčík
Rok dokončenia: 2022
Lokalita: Leopoldov
Z komentárov poroty:
“Ak by som mohol dať dve prvé miesta, tak tým druhým by bol Leopoldov. Príklad správneho príbehu realizácie verejnej investície, počnúc súťažením, výberom dobrého návrhu, kvalitným projektom a končiac zapojením dobrého dodávateľa za účasti autorov projektu. To všetko s podporou od budúceho užívateľa. Komplexné riešenie nárožného bloku s vítaným začlenením pôvodnej budovy vytvára chránený nástupný a stretávací priestor príjemnej ľudskej mierky. Monotvárnosť betónu a bielej omietky môže u niekoho evokovať sterilitu. Lapidárna pozdĺžna dispozícia s dvoma veľkopriestormi na jej koncoch je umnou odpoveďou na zažité schémy. Dizajnové výstrelky tvarovania stropov veľkopriestorov vtláčajú objektu punc jedinečnosti.”
- Richard Murgaš
Vila Bôrik, Žilina (viac tu)
Autori: Martin Jančok, Michal Janák, Zuzana Kovaľová, Ruslan Dimov
Spolupráca: Michal Marcinov, Katarína Kyselová, Samuel Šimonovič
Rok dokončenia: 2021
Lokalita: Žilina
Z komentárov poroty:
“Kompaktní městská vila v moderním střihu a provedení, která obstojí při srovnání s evropskou konkurencí. Předsazená balkonová konstrukce z tahokovových okenic odděluje interiér od ulice, propouští dostatek světla a dává domu nezaměnitelný vzhled uliční fasády. Celoprosklená fasáda do zahrady naopak opticky propojuje exteriér s interiérem. Vysunutím schodiště vně budovy se podařilo uvolnit a vyčistit vnitřní dispozici, která je tak jednoduchá, přehledná a funkční. Interiér je řešen velmi účelně, z ryzích materiálů s dominujícím pohledovým betonem a s citem pro detail. Z výsledku je jednoznačné souznění architektonického návrhu s klientovými požadavky.”
- David Leníček
Nový dom so starým mlynom, Opatová (viac tu)
Autori: René Dlesk, Tamara Kolaříková
Spolupráca: Tomáš Oriešek, Ján Madura
Rok dokončenia: 2022
Lokalita: Opatová
Z komentárov poroty:
“Výborná práca s geniom loci danej lokality a zachovaným fragmentom starého mlyna, ktorý ovplyvnil nový koncept natoľko, že architekt ho s pokorou zakomponoval a dokonca citoval pôdorys i tvar pôvodných budov. Výsledkom je štrukturálna forma nového rodinného domu vidieckeho charakteru, zložitejší ale fungujúci pôdorys, ktorý ponúka príjemné zákutia v interiéroch i exteriéri.”
- Andrea Bacová
Martineum, Bratislava (viac tu)
Autori: Andrej Botek, Pavol Pauliny
Spolupráca: Lukáš Kramarčík
Rok dokončenia: 2021
Lokalita: Bratislava
Z komentárov poroty:
“Kvality rekonštrukcie historického domu v centrálnej pamiatkovej zóne je možné vnímať najmä na vonkajšej obálke. Prepojenie objektu s Dómom sv. Martina, prostredníctvom novotvaru preskleného spojovacieho krčka, vytvorila novú, vzájomne prospešnú symbiózu oboch stavieb. Obohatenie o novú kultúrnu a gastronomickú funkciu, ktorá sa veľmi zaujímavým spôsobom stala súčasťou budovy a múrov katedrály, tvorí pridanú hodnotu, dôležitú pre projekt v takomto kontexte.”
- Tomasz Karpowicz
Galvaniho Business Centrum V, Bratislava (viac tu)
Autori: Tomáš Šebo, Igor Lichý, Imrich Vaško, Aleš Hradecký, Juraj Murín, Martina Bognerová Hrašková, Michal Romanec, Patrik Kuva
Rok dokončenia: 2021
Lokalita: Bratislava
Z komentárov poroty:
“Rozpočtové limity a ďalšie obmedzenia, ako je ´maximálny pomer podlahovej plochy´, zvyčajne ponechávajú malý alebo prakticky žiadny priestor pre architektúru. Napriek tomu môže spolupráca ambicióznych developerov a architektov ukázať, že aj tu existuje cesta. Dispozičné riešenie je samozrejme hlavne racionálna, no v pozadí cítiť snahu autorov o vytvorenie ľudského a prívetivého prostredia. Veľkorysé foyer, dôsledne komponované “vybratia” a zelené terasy, dostupné lodžie a v neposlednom rade hra architektov s farebnou schémou (reprezentujúcou formovanie hmoty), vytvárajú aj na periférii zaujímavú stavbu.”
- Iván Nagy
Záverečné slovo predsedu poroty – Ivána Nagya:
Úroveň prihlásených diel prevyšovala svojou kvalitou predchádzajúce ročníky ceny, čo reflektovala vo výsledku obhliadka až 11 diel a rozšírený počet nominácií. Porota v závere nedokázala jednohlasne určiť laureáta. Pri rozhodovaní panovala názorová pluralita. Aj keď počet nominácií nie vždy zrkadlí kvalitu prihlásených diel, v aktuálnom ročníku Ceny Dušana Jurkoviča sa tento vzťah potvrdil.
Na Slovensku bezpochyby stále platí, že najsilnejší investori sú z komerčnej sféry a počet kvalitných stavieb, realizovaných z verejných zdrojov výrazne zaostáva.V stredoeurópskom kontexte ide o normálny jav. V aktuálnom ročníku bol však rozdiel, až na výnimku potvrdzujúcu pravidlo, obzvlášť citeľný. Silnou stránkou tohtoročného výberu však bolo zastúpenie projektov, ktoré zahŕňali rekonštrukcie, prestavby a konverzie.
Dobrou správou je silnejúci dopyt po kvalitnej architektúre v oblasti komerčných developmentov. Dôkazom toho je aj Laureát 58. ročníka ceny - Jurkovičova tepláreň, ktorá je bohužiaľ jedinou zachovanou stavbou z pôvodného brownfieldu v rámci projektu Sky Park. Projekt Teplárne stál na šťastnom priesečníku privátneho a verejného záujmu. Mix rôznorodých funkcií sa vďaka profesionálnej práci architektov podarilo vhodne začleniť do pôvodnej stavebnej obálky. Dielo a môže vo viacerých oblastiach slúžiť ako pozitívny príklad pre budúce realizácie tohto druhu na Slovensku.
Dúfam tiež, že ovplyvní ďalšie rozhodnutia o budúcnosti hodnotných stavieb z 19. a 20. storočia a nepostihne ich osud Istropolisu. Na záver si dovolím opakovať slová Hansa Ibelingsa z Ročenky slovenskej architektúry 2016 / 2017: “that we could, hypothetically, imagine an inverted world, where these new projects….do not form the exception, but instead the rule”.
Spoluorganizátorom bol opäť architektonický portál ARCHINFO, ktorý zabezpečil technické zázemie a koordináciu podujatia.
Aktuálny ročník Ceny Dušana Jurkoviča sprevádza znovu aj tlačený katalóg, ktorí si môžete v elektronickej podobe prelistovať v prílohe nižšie:
Pripájame pozvánku na výstavu Cena Dušana Jurkoviča 2022, ktorú môžete navštíviť počas 22. novembra až 9. decembra 2022 v Galérii architektúry SAS, Balassov palác Panská 15, 811 01 Bratislava. Priestory sú otvorené v pondelok, utorok a piatok 11:00 - 17:00 hod.