Na podujatí sa predstaví až 37 vystavovateľov - popredných dodávateľov stavebných materiálov a inovácií s prezentáciou...
Novotvar v prostredí alpskej obce.
Hansgrohe - prémiová značka kúpeľňových riešení, ponúka nadčasový dizajn, technickú precíznosť a udržateľné inovácie...
Využite špeciálnu akciu Internorm: okná za minuloročné ceny a hliníkový kryt úplne zadarmo. Ponuka je časovo obmedzená!
Sumarizácia najdôležitejších inovácií, ktoré redefinujúcich využitie tohto energetického zdroja.
AMPHIBIA 3000 GRIP 1.3 od spoločnosti ATRO predstavuje modernú hydroizolačnú technológiu, ktorá spája vysokú odolnosť,...
Ambiciózne plány EK narazili na ekonomické možnosti domácností v jednotlivých členských štátoch –...
IDEA DOOR od spoločnosti JAP prináša do interiéru čistý minimalistický vzhľad vďaka bezrámovému riešeniu a precíznej...
Kontinuita riešenia od vonkajšieho obkladu až po kovania a kľučky.
Nástenné nadomietkové armatúry Vitus sú mimoriadne vhodné pre rýchlu a efektívnu...
Okenné profily z kompozitného materiálu RAU-FIPRO X od spoločnosti Rehau sú v porovnaní s tradičnými plastovými profilmi mnohonásobne...
Najnovší sortiment stolov pre zariadenie interiérov...
Spojenie moderného dizajnu, funkčnosti a svetla do harmonického architektonického prvku.
Kancelárska budova Baumit v slovinskom Trzine prešla premenou na moderné a udržateľné pracovisko. Architekti kládli dôraz...
Mottom šiesteho ročníku on-line konferencie odborníkov Xella Dialóg je Efektívny návrh budov 2025+: zmeny a riešenia

Pamiatka v centre Bratislavy s novou funkciou.
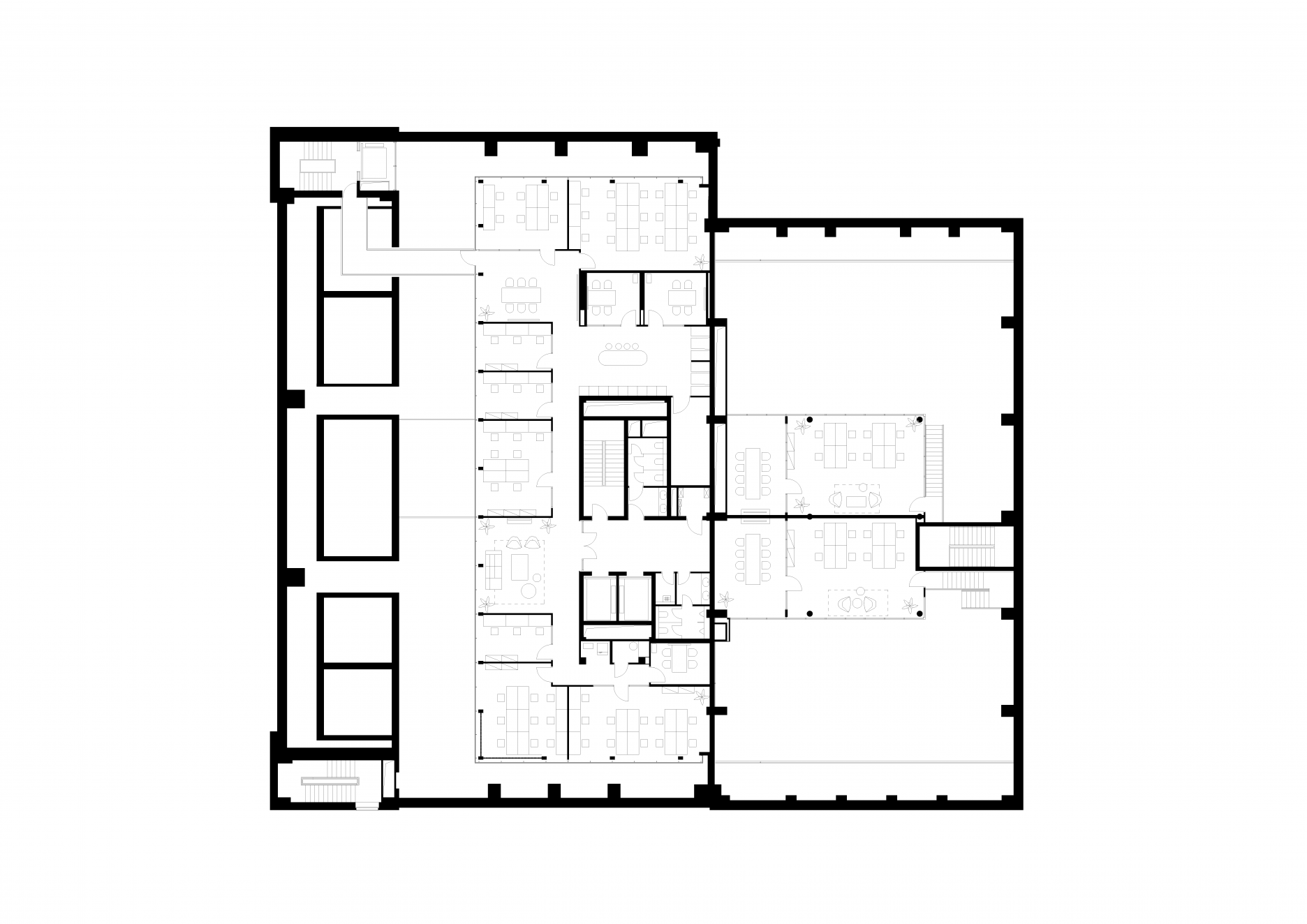
Ako vyzerajú príklady coworkingov zo sveta? Pracovať sa dá z opusteného kostola, bývalej banky aj z prepravného kontajnera. Adaptácia priestoru s originálnou atmosférou skrýva veľký potenciál. Koncept zdieľaného pracoviska, ktorý zapadá medzi spomenuté príklady, práve dokončil "československý" ateliér Perspektiv. V priestoroch národnej kultúrnej pamiatky - Jurkovičovej teplárne zrekonštruovanej podľa projektu Martina Paška a tímu DF Creative Group (článok o realizácii pripravujeme) zrealizovali už druhú pobočku coworkingu Base4Work.
Tepláreň z roku 1944, ktorá je dielom nestora slovenskej architektúry, architekta Dušana Jurkoviča, sa po troch rokoch od zahájenia rekonštrukcie otvorila verejnosti. Nájsť funkciu pre špecifický priestor nebolo jednoduché. Konkurenčná výhoda coworkingov často spočíva v ich atmosfére, preto sa architekti z ateliéru Perspektiv po realizácii coworkingu Base4Work v Prahe nebáli pustiť do ďalšej výzvy. Koncept "creative market" premietli do priestorov industriálnej pamiatky.
Samotná rekonštrukcia bola koncipovaná tak, aby pôvodné časti stavby ostali v čo najväčšej miere čitateľné. „V návrhu interiéru coworku sme vnímali kontext pôvodnej pamiatky. Snažili sme sa priestor dopĺňať a naviazať na neho štýlom aj geometriou nových prvkov. Zároveň sme chceli, aby bolo jasne rozpoznateľné, ktoré časti sú nové a ktoré pôvodné - nesnažíme sa originálne dielo napodobňovať,“ hovoria architekti Ján Antal a Barbora S. Babocká.
Víziou developera bolo vytvorenie rozmanitého pracovného priestoru, ktorý poskytne zázemie k prepojeniu rôznych skupín užívateľov, od korporátnych klientov, až po startupy či freelancerov v prostredí národnej kultúrnej pamiatky. Architektonický vstup v podobe novotvaru je dielom ateliéru Martina Paška a jeho tímu DF Creative Group. Do vnútorných priestorov kotlovej a turbínovej haly vložili päť poschodí, čím vytvorili nové využiteľné plochy. S rešpektom k histórii sa využívajú aj ďalšie priemyselné prvky teplárne. Betónové násypníky dominujú celému interiéru, pôvodný žeriav tvorí atypický otvorený strop zdieľanej kancelárie. Ďalším subjektom, ktorý sa podieľal na obnove plášťa budovy je PAMARCH, ktorý sa špecializuje na ochranu a rekonštrukciu pamiatok.
Komunitným centrom celého coworku je vstupná zóna na druhom poschodí, ktorá kombinuje halu s kaviarňou a pracovnými miestami. Farebná paleta vychádza z odtieňov terakoty, charakteristickej pre plášť budovy. Dopĺňajú ju hlboké tóny modrej, zelenej či uhlovej čiernej. Stropy zostávajú otvorené, podlahy v spoločných zónach akcentuje drevo a veľkoformátová keramická dlažba.
Proporciu priestoru podtrhujú mohutné betónové násypníky, ktoré pôvodne slúžili na skladovanie tuhých palív. Architektom sa do ich vnútra podarilo umiestniť niektoré zo zasadacích miestností. Užívateľsky najobľúbenejšou sa zatiaľ javí dvojica zasadačiek na piatom poschodí. „Tu sme využili polohu a v častiach podlahy experimentovali s jej presklením. Výsledkom je priestor, ktorý púta pozornosť. Aj tých, ktorí majú strach z výšok...“ popisuje architekt Antal.
Zasadacie miestnosti a samostatné kancelárie kladú dôraz na akustiku, ktorú zaisťujú koberce a mäkké obklady stien. Ako je už u autorov zvykom, aj v tomto prípade používajú recyklované a prírodné materiály. Obklady pochádzajú z recyklovaných PET fliaš. Butikové riešenie interiéru umocňuje strešná terasa s priľahlým barom, ktorého stena zrkadlí bohatý komunitný život. V zákutiach interiéru architekti vytvorili pohodlné oddychové zóny.
Celkom sa v priestoroch teplárne nachádza 3 900 m2 flexibilných pracovných plôch s kapacitou približne 450 miest. Architekti pracovali s rovnakou typológiou pracovísk ako pri zmienenej pražskej pobočke coworkingu. Koncept pracovného priestoru aj v tomto prípade reflektuje autenticitu prostredia. Rôznorodosť a flexibilita súčasne spĺňa požiadavky širokej skladby užívateľov. Na každom z podlaží sa nachádza typológia fix desk, hot desk, samostatné kancelárie, phone booth, workshop room alebo zasadacia miestnosť s kapacitou od 4 do 18 ľudí. Klienti tiež môžu v priebehu dňa využiť niektoré z komunitných lounge, reprezentujúcu zónu stretávania a networkingu. Súčasťou novo zrekonštruovaného priestoru je tiež bar a galéria, eventový priestor, alebo reštaurácia.
Autor: Studio Perspektiv
Podklady: Artspeak
Fotografie: BoysPlayNice