Okenné profily z kompozitného materiálu RAU-FIPRO X od spoločnosti Rehau sú v porovnaní s tradičnými plastovými profilmi mnohonásobne...
Najnovší sortiment stolov pre zariadenie interiérov...
Spojenie moderného dizajnu, funkčnosti a svetla do harmonického architektonického prvku.
Kancelárska budova Baumit v slovinskom Trzine prešla premenou na moderné a udržateľné pracovisko. Architekti kládli dôraz...
Mottom šiesteho ročníku on-line konferencie odborníkov Xella Dialóg je Efektívny návrh budov 2025+: zmeny a riešenia
Robot WLTR predstavuje moderný prístup k murovaným konštrukciám. Vďaka automatizácii dokáže rýchlo, presne a bezpečne realizovať...
Okrem bezpečnosti majú okná aj elegantný vzhľad, pretože nie sú viditeľné žiadne uzamykacie časti kovania.
Dvere MASTER v skrytej zárubni AKTIVE je možné vyrobiť až do výšky 3 700 mm
Internorm stavia na energetickú efektívnosť a inteligentné tieniace riešenia.
Pohľad na moderné prístupy k výrobe s dôrazom na udržateľnosť.
Slovensko vo výbere zastupuje šesť realizácií.
Spoločnosť Internorm odteraz stavia na novej variante tepelnoizolačného skla od AGC, ktorá v produkcii ročne ušetrí 10...
Jubilejný 20. ročník prestížnej medzinárodnej súťaže pre študentov architektúry priniesol...
Otočné a posuvné dvere MASTER od podlahy až po strop, ponúkajú mimoriadnu variabilitu výšky, materiálu a zladenia so skrytými...
Predstavené produkty, spájajú premyslený dizajn, funkčnosť a udržateľnosť. Nábytok Materia vzniká s cieľom podporiť inšpiratívne stretnutia...

Konverzia Jurkovičovej teplárne, ktorá vytvorila rámec pre budúce fungovanie stavby, patrí medzi najlepšie realizácie na našom území, kde autori s minimálnymi kompromismi akceptovali industriálnu podstatu a estetiku technickej pamiatky.
Zrekonštruovaná industriálna pamiatka sa stala ústredným prvkom nového mestského bloku. Podobne, ako v prípade nedávno dokončenej Pradiarne 1900, je stavba jedným z posledných svedkov priemyselnej histórie miesta.
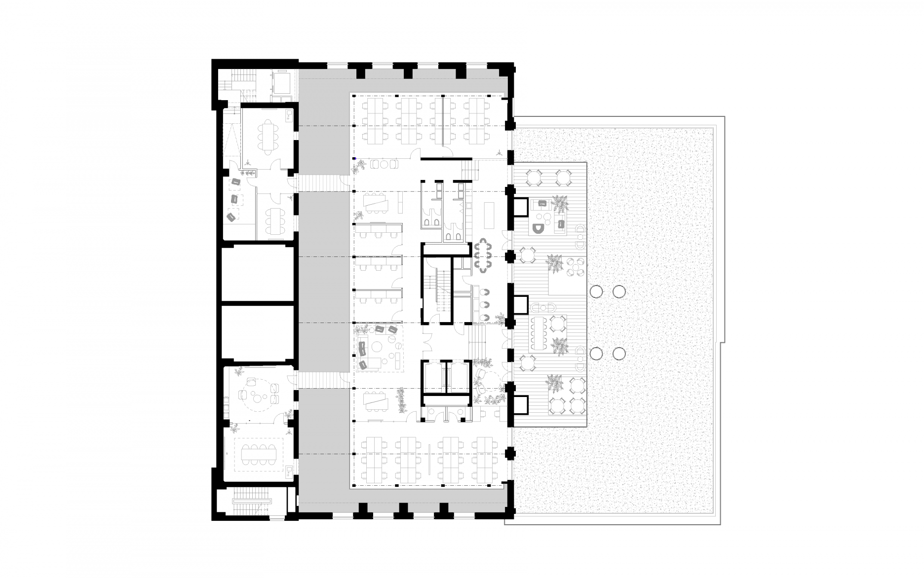
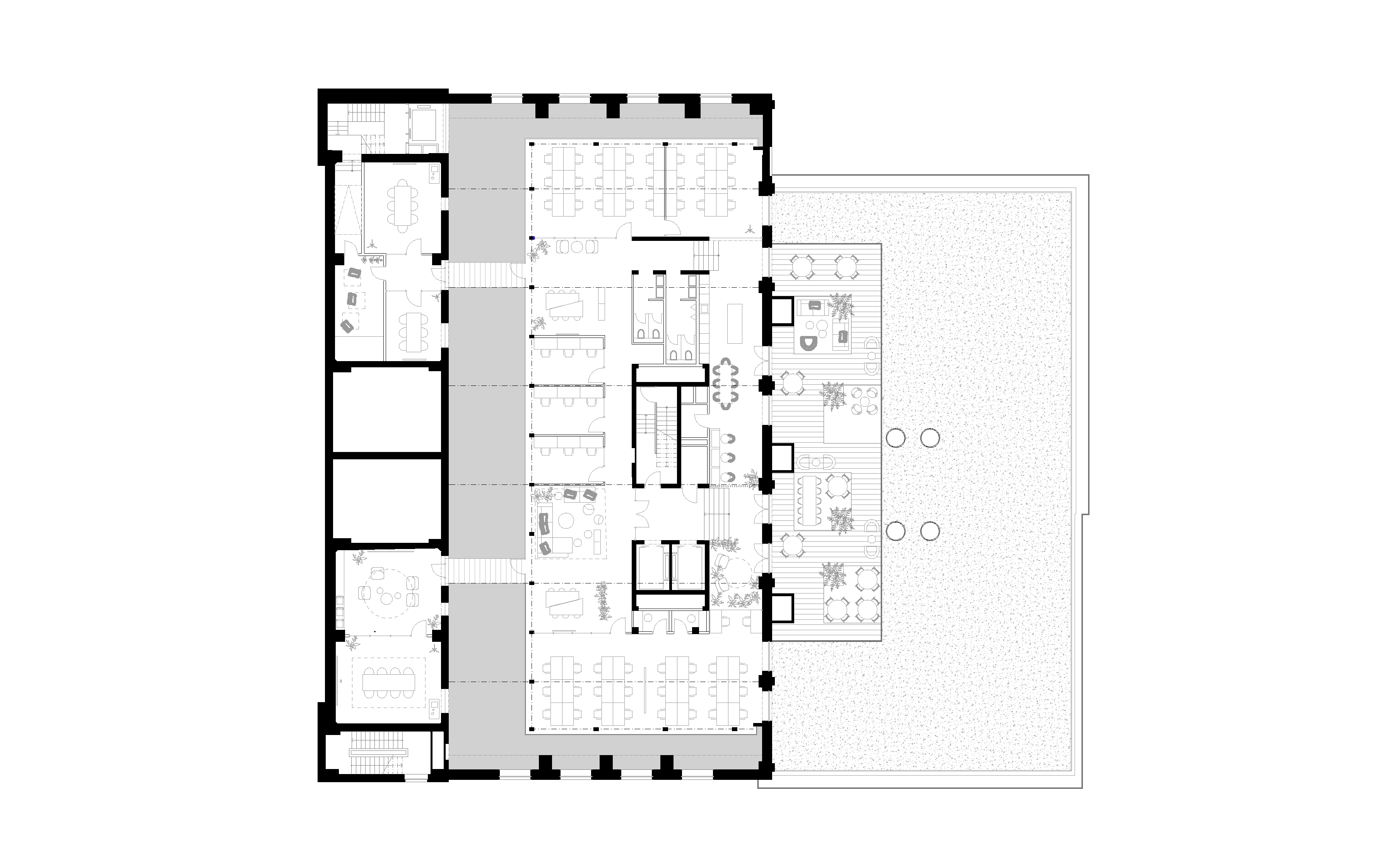
Tepláreň po konverzii slúži administratívnej a spoločenskej funkcii. Jej priestorová skladba je dostatočne adaptabilná, reaguje na nový dopyt po flexibilnom pracovnom prostredí a eventových priestoroch. Pestrú vnútornú náplň, ktorá ťaží z nenapodobniteľných priestorových kvalít technickej stavby, podčiarkuje silná identita objektu.
Architektonický návrh rešpektuje pôvodnú konštrukčnú a priestorovú skladbu stavby. Do obálky priemyselnej budovy boli vstavané nové stropy a priečky, pôvodnú priestorovú veľkorysosť sa napriek tomu podarilo zachovať. Dôrazné odlíšenie starého a nového podčiarkuje stavebnú a materiálovú podstatu pôvodného objektu, na ktorej sa rozhodli architekti svoj návrh postaviť.
Zrekonštruovanú Jurkovičovu tepláreň a jej novú vnútornú náplň predstavujeme prostredníctvom fotodokumentácie a textu DF Creative Group:
Jurkovičova tepláreň je jedným z posledných svedkov bývalej rafinérie Apollo. Pôvodné priemyselné územie sa stáva súčasťou nového centra Bratislavy a obnovená Jurkovičova tepláreň príťažlivým akcentom uprostred modernej architektúry okolitých budov rezidenčného projektu Sky Park by Zaha Hadid.
Po dlhom období hľadania najvhodnejšej funkcie využitia národnej kultúrnej pamiatky sa zavŕšením komplexnej rekonštrukcie stáva jej záchrana a nový udržateľný koncept skutočnosťou. Developer Penta Real Estate vyzval v roku 2017 sedem ateliérov do architektonickej súťaže na ideový návrh rekonštrukcie Jurkovičovej teplárne. Zvíťazil Architekt Martin Paško s tímom DF Creative Group, ktorý ďalej pracoval na návrhu konverzie stavby Dušana Jurkoviča. Návrh ponúkol najvhodnejšie usporiadanie funkcií a priestorov a vyzdvihol pôvodnú historickú hodnotu a industriálnu atmosféru pamiatky.
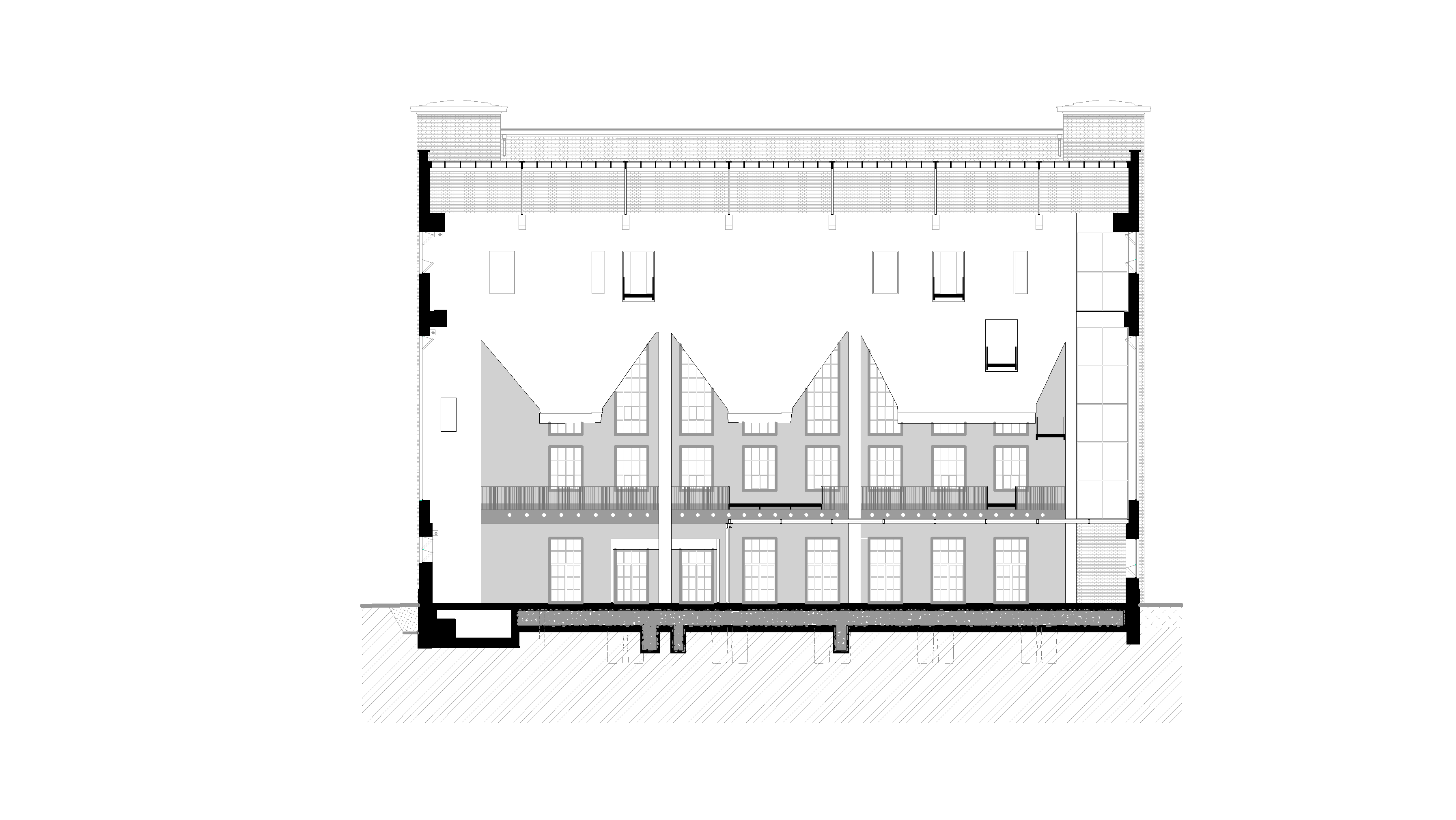
Architektonické riešenie využíva voľný vnútorný priestor pôvodnej kotolne a turbínovej haly pre vostavbu nových nezávislých konštrukcií. Vytvára nové plochy a podlažia dôsledne odsadené od pôvodnej stavby…
Tento koncept umožňuje jasne oddeliť a odlíšiť historické konštrukcie od nových, pôvodné od súčasných, a to všetko s pokorou k histórii, v kontraste a v súlade zároveň. Zrekonštruovaná Jurkovičova tepláreň vytvorila priestor pre coworking BASE4Work, ktorý navrhli architekti zo studia Perspektiv pre ľudí a spoločnosti z kreatívneho priemyslu, architektov, startupy a menšie IT firmy. Tepláreň je zároveň sprístupnená aj širokej verejnosti v úrovni celého prízemia vrátane živého námestia vstupujúceho dovnútra.
Realizácia potvrdila zámer autorov vytvoriť komunitný priestor s industriálnou atmosférou, určený pre verejnosť na rôzne spoločenské podujatia, konferencie a výstavy. Po vstupe do budovy sa návštevníkovi otvorí priestor átria prechádzajúceho cez všetky podlažia, s výhľadom na novú presklenú fasádu, na vnútorné "námestie" s lobby kaviarňou a reštauráciou, s galériou súčasného umenia a so samostatnou multifunkčnou sálou pre konanie rôznych kultúrno-spoločenských podujatí.
Riešenie necháva vyniknúť mnohým historickým konštrukčným detailom, pôvodným členitým stĺpom a hlavne trom dominantným násypníkom. Ich rekonštrukciou sa vytvoril originálny reprezentačný priestor s materiálmi v ich pôvodnej "surovosti" a farebnosti. Doplnené konštrukcie, nové vložené materiály s ich jasne odlíšiteľnou štruktúrou (nové tehlové steny z pôvodných viac ako 36-tisíc tehál, heraklitové stenové obklady, pôvodná štruktúra betónov..) a rôzne súčasné technické detaily sú jasne čitateľné a prezentujú základný princíp "pravdivosti".
„V zrkadlení novej modernej jednoduchej presklenej fasády princípom vloženej „budovy v budove“ nastáva vrstvenie oboch architektúr a ich vzájomné prelínanie. Takmer z každého miesta teplárne je vidieť minimálne jeden z troch typických industriálnych znakov priestoru a to typické industriálne vysoké delené okná, steny z pôvodných tehál alebo železobetónové konštrukcie násypníkov,“ objasňuje koncept hlavný architekt konverzie Martin Paško.
Samotná industriálna architektúra pôvodných konštrukcií a dominantných násypníkov, átrium aj horná terasa s výhľadmi na okolité nové budovy vytvárajú priestorový zážitok a sú najväčšou pridanou hodnotou Jurkovičovej teplárne.
Jurkovičova tepláreň zachytená na fotografiách BoysPlayNice:
Fotografie DF Creative Group:
Vizualizácie zo súťaže:
Podklady: DF Creative Group
Pri konverzii Jurkovičovej teplárne bol ako replika pôvodných industriálnych oceľových výplní otvorov použitý systém Schüco AWS 75 WF.SI+ so skrytými krídlami a kompletne skrytým elektromotorickým kovaním TipTronic. Okná sa teda ovládajú na diaľku a nie sú nutné žiadne ďalšie viditeľné ovládacie prvky.
Konštrukcia svetlíka je tvorená systémom Schüco FWS 60. Pre interiérové presklené steny zvolili architekti štrukturálnu fasádnu konštrukciu s tmelenými sklami Schüco FWS 50 SG ako aj protipožiarne konštrukcie Schüco.