Na podujatí sa predstaví až 37 vystavovateľov - popredných dodávateľov stavebných materiálov a inovácií s prezentáciou...
Novotvar v prostredí alpskej obce.
Hansgrohe - prémiová značka kúpeľňových riešení, ponúka nadčasový dizajn, technickú precíznosť a udržateľné inovácie...
Využite špeciálnu akciu Internorm: okná za minuloročné ceny a hliníkový kryt úplne zadarmo. Ponuka je časovo obmedzená!
Sumarizácia najdôležitejších inovácií, ktoré redefinujúcich využitie tohto energetického zdroja.
AMPHIBIA 3000 GRIP 1.3 od spoločnosti ATRO predstavuje modernú hydroizolačnú technológiu, ktorá spája vysokú odolnosť,...
Ambiciózne plány EK narazili na ekonomické možnosti domácností v jednotlivých členských štátoch –...
IDEA DOOR od spoločnosti JAP prináša do interiéru čistý minimalistický vzhľad vďaka bezrámovému riešeniu a precíznej...
Kontinuita riešenia od vonkajšieho obkladu až po kovania a kľučky.
Nástenné nadomietkové armatúry Vitus sú mimoriadne vhodné pre rýchlu a efektívnu...
Okenné profily z kompozitného materiálu RAU-FIPRO X od spoločnosti Rehau sú v porovnaní s tradičnými plastovými profilmi mnohonásobne...
Najnovší sortiment stolov pre zariadenie interiérov...
Spojenie moderného dizajnu, funkčnosti a svetla do harmonického architektonického prvku.
Kancelárska budova Baumit v slovinskom Trzine prešla premenou na moderné a udržateľné pracovisko. Architekti kládli dôraz...
Mottom šiesteho ročníku on-line konferencie odborníkov Xella Dialóg je Efektívny návrh budov 2025+: zmeny a riešenia

Júnové uvedenie Gočárovej galerie do skúšobnej prevádzky patrí medzi najdôležitejšie kultúrne udalosti roka u našich západných susedov. Dokončená transformácie priestorov mlynice, ktorú začiatkom minulého storočia navrhol Josef Gočár započala novú životnú etapu brownfieldu v centre Pardubíc.
Projekt ateliéru TRANSAT architekti tvorí prvú časť rozsiahleho celku, ktorý neskôr doplnia realizácie popredných českých kolektívov: Šépka architekti (objekty Sféra, GAMPA, verejné priestranstvá) a Prokš Přikryl architekti (Nadácia AM / Silo). V druhej etape výstavby, v období 2023 - 2026, pribudnú do súboru tri nové bytové a komerčné objekty. Stavby doplnené o občiansku vybavenosť navrhuje Zette ateliér pod vedením architekta Zdeňka Balíka, ktorý stál pri zrode celej myšlienky revitalizácie brownfieldu po boku investorov Lukáša Smetanu a Mariany Smetanovej. Po dokončení bude projekt patriť medzi ojedinelé prípady rozsiahlej premeny brownfieldov na modernú kultúrno-spoločenskú časť mesta a fungujúce partnerstvá verejného, súkromného a neziskového sektora.
Krátky exkurz do histórie
Národná kultúrna pamiatka Winternitzovy automatické mlýny patrí medzi prvé realizácie Josefa Gočára. Dve porovnateľne výrazné etapy výstavby v rokoch 1910 - 1911 a 1920 - 1924 reflektujú vývoj dobových architektonických tendencií. Od ranej moderny k národnému slohu - paralelne k dvom fázam pohonu mlyna vodnou a elektrickou energiou. V prvej etape vytvoril Gočár lapidárnu hmotu mlyna pozdĺž rieky Chrudimka. Neskôr k nej pridal najvyššie poschodie. Pribudli tiež dve veže, prepojené oblúkovým premostením do podoby mýtickej Ištarinej brány - vodárenská veža a samostatná veža sila. Až v spomínanej druhej fáze dopĺňa architekt stavbu cimburím geometricky abstrahovaných lastovičích chvostov.
Vnútri bola stavba podriadená technológii ukladania a spracovania obilia na najvyššej technickej úrovni svojej doby. Konštrukčne pozoruhodná je päťpodlažná mlynica, delená drevenými stropmi, ktoré nesie raster oceľových stĺpov a prievlakov. Ostatné konštrukcie tvorí železobetón a tehlové murivo.
Genéza projektu
Po ukončení výroby, ktorá prebiehala nepretržite viac ako sto rokov, bola väčšina technologického vybavenia odstránená. Areál sa v krátkom slede stal národnou kultúrnou pamiatkou. V roku 2015 ho v dražbe získali manželia Smetanovci, s cieľom priniesť novú náplň a využitie.
O dva roky neskôr prišli architekti Josef Pleskot, Ladislav Lábus a Peter Všetečka, ktorí vtedy pracovali na genereli pardubického zámku, s myšlienkou presunu krajskej galérie zo zámku (kde sídlila spolu s múzeom) do priestorov industriálnej pamiatky. Myšlienka sa stretla s pozitívnym ohlasom a Pardubický kraj ako zriaďovateľ galérie odkúpil priestory hlavnej Gočárovej budovy pre galériu.
Východočeská galerie v Pardubicích po novom ako Gočárova galerie
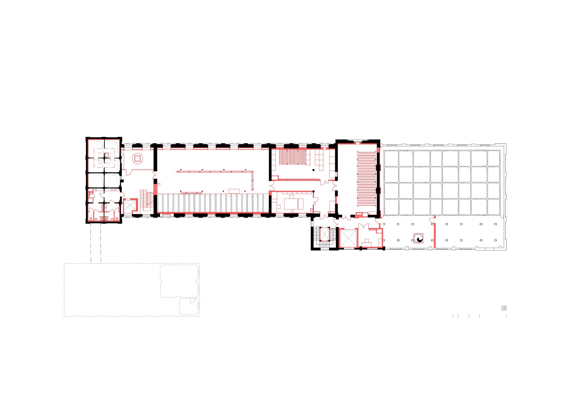
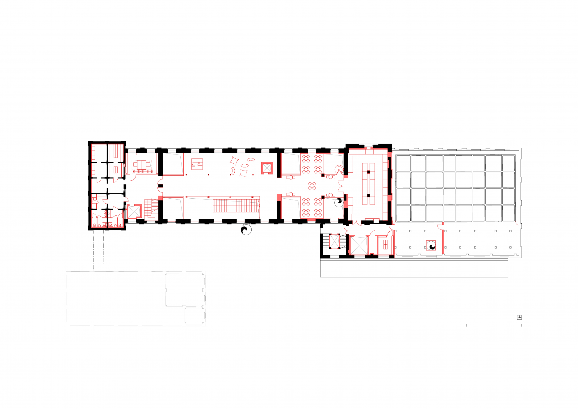
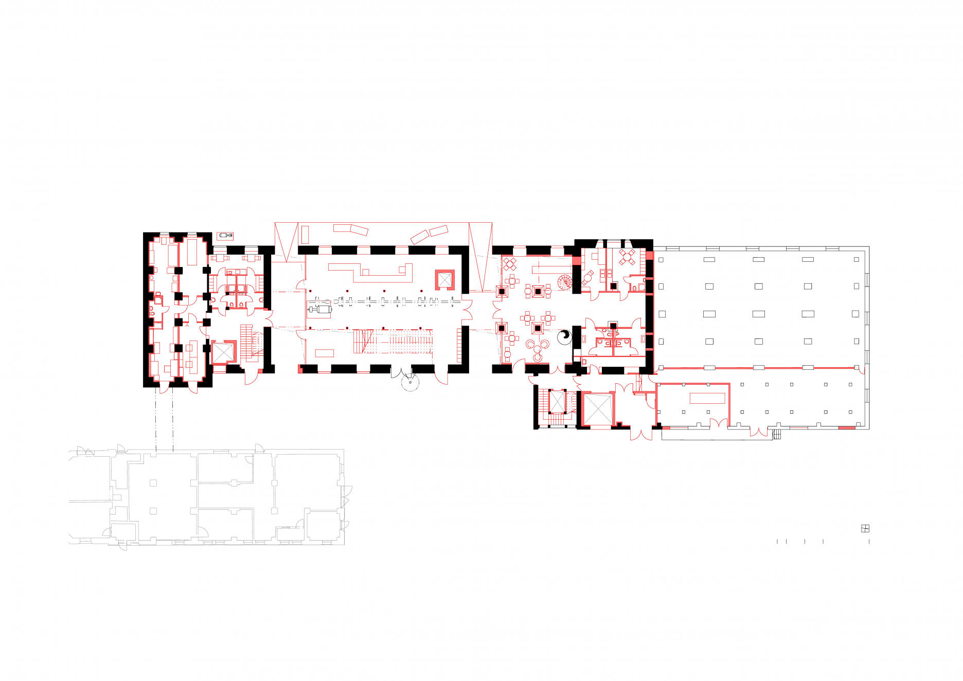
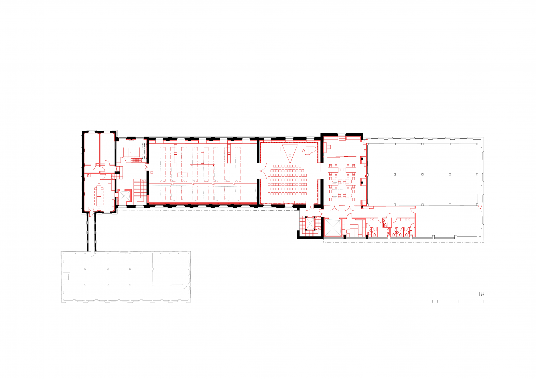
Pre život inštitúcie je dôležité usporiadanie priľahlých verejných priestorov: nábreží, nádvorí a nového námestia. Z nich sa do areálu vstupuje cez symbolickú bránu medzi objektmi síl. Pôvodné objekty nemali vo svojom hlavnom južnom priečelí vstup, ten bol vzhľadom na prevádzku orientovaný do dvora. Aby sa stal niekdajší dvor plnohodnotným nádvorím - mestským verejným priestorom - je na úrovni partra galérie prepojený s nábrežím prostredníctvom dvoch pasáží. Medzi ne - do priestorov bývalej mlynice - situovali architekti vstupnú halu galérie. Severnú pasáž dopĺňa kaviareň. Živý parter vedie návštevníkov do priestorov galérie a pozdĺž jej osi. Do jednotlivých expozícií sa vstupuje z ochodzy, ktorá premosťuje pasáže.
Dispozícia a prevádzka
Priestorové riešenie galérie vychádza z charakteru jednotlivých častí objektu. Do veľkopriestorových hál mlynice, s oceľovými a drevenými nosnými konštrukciami, situovali architekti rozptylové zóny a expozície. Do železobetónových častí najmä priestory depozitára. Na viacerých miestach je dispozícia otvorená vertikálnymi prepojeniami medzi podlažiami. Ide o novodobú priestorovú pripomienku pôvodnej dimenzie priemyselného objektu. V Gočárovom riešení rastie svetlá výška jednotlivých podlaží smerom nahor, preto najvyššie podlažie využíva veľkorysá spoločenská sála so strešnou terasou. Pri priečelí, orientovanom smerom k mestu, ponechávajú architekti vo výstavných sálach všetky pôvodné podlahy a okná. Výraznejšie zásahy do dispozície sa udiali zo strany dvora. Rez horizontálnymi konštrukciami a zaslepenie okien umožnilo vytvoriť ideálne prostredie pre galerijné potreby.
Konštrukčné a technické riešenie
Pôvodný konštrukčný systém, tvorený tehlovým murivom, oceľou, drevom a betónom priznávajú architekti v plnej miere. “Působivé prostory mlýnice nese původní ocelová konstrukce, která musela být vzhledem k počtu podlaží protipožárně opláštěna, povrch tvoří opět kov. Přiznány zůstaly dřevěné stropy, s minimem nových tras inženýrských sítí. Z původních vyřezaných stropních trámů je vytvořeno nové schodiště ve vstupní hale. Fasády jsou obnoveny při zachování přiměřené patiny. Vnitřní zateplení stěn je z kalciumsilikátu s akumulační přizdívkou, zateplení zhlaví trámů a střech pak z pěnoskla. Střechy nesoucí prvky klimatizace jsou zapuštěny pod úroveň atik, kvůli čisté siluetě domu. Původní industriální okna s dobovým zasklením jsou ve vybraných pozicích doplněna z vnitřní strany novými tepelně-izolačními okny z nerezi. Okna jsou otvíravá, umožňují řízené (a někde také individuální) větrání, doplněny jsou screenové rolety, reagující na polohu slunce, a blackoutové rolety, umožňující denní světlo zcela vyloučit. Obdobnou variabilitou disponují střešní světlíky, opatřené pro odstínění přímého slunce automaticky řízenými lamelami. Zaslepena jsou okna depozitářů,” približujú technické detaily architekti.
V exteriéri je pôvodná hmotová kompozícia zbavená neskorších prístavkov pozdĺž južnej a východnej fasády. Severná prístavba sila z prelomu 50. a 60. rokov je využitá len z menšej časti a tvorí rezervu pre rozšírenie zázemia galérie. Susedný objekt Gočárovho sila, pripojený oblúkovým mostom, netvorí súčasť galérie, dispozičné riešenie však umožňuje vzájomné prepojenie oboch budov.
Pred objektom aj v interiéri nájdeme rozmiestnené vybrané relikty pôvodnej technológie, ktorá sa v objekte zachovala bohužiaľ už len torzálne (väčšina bola odstránená pred rokom 2015).
Súčasťou transformácie objektu je zabezpečenie umeleckých zbierok pred vonkajšími aj vnútornými rizikami. Konštrukčné a dispozičné riešenie aj koncepcia inžinierskych sietí smerujú k eliminácii dôsledkov požiaru, povodne (objekt je tesne nad úrovňou storočnej vody), havárie kvapalinových systémov TZB, zmien vnútornej klímy, alebo krádeže. Tieto hľadiská viedli k mnohým špecifickým riešeniam: kombinácii viacerých druhov vykurovania, vetrania, chladenia, hasiacich zariadení (vodná hmla vo verejne prístupných častiach, plyn v depozitároch), ako aj k atypickému trasovaniu rozvodov (kvapalinové rozvody sú vylúčené z expozícií a depozitárov).
Východiskový stav:
Model:
Vízia budúcej podoby areálu po dostavbe:
Podklady: TRANSAT architekti
Fotografie: Tomáš Kubelka, Štěpán Bartoš