Na podujatí sa predstaví až 37 vystavovateľov - popredných dodávateľov stavebných materiálov a inovácií s prezentáciou...
Novotvar v prostredí alpskej obce.
Hansgrohe - prémiová značka kúpeľňových riešení, ponúka nadčasový dizajn, technickú precíznosť a udržateľné inovácie...
Využite špeciálnu akciu Internorm: okná za minuloročné ceny a hliníkový kryt úplne zadarmo. Ponuka je časovo obmedzená!
Sumarizácia najdôležitejších inovácií, ktoré redefinujúcich využitie tohto energetického zdroja.
AMPHIBIA 3000 GRIP 1.3 od spoločnosti ATRO predstavuje modernú hydroizolačnú technológiu, ktorá spája vysokú odolnosť,...
Ambiciózne plány EK narazili na ekonomické možnosti domácností v jednotlivých členských štátoch –...
IDEA DOOR od spoločnosti JAP prináša do interiéru čistý minimalistický vzhľad vďaka bezrámovému riešeniu a precíznej...
Kontinuita riešenia od vonkajšieho obkladu až po kovania a kľučky.
Nástenné nadomietkové armatúry Vitus sú mimoriadne vhodné pre rýchlu a efektívnu...
Okenné profily z kompozitného materiálu RAU-FIPRO X od spoločnosti Rehau sú v porovnaní s tradičnými plastovými profilmi mnohonásobne...
Najnovší sortiment stolov pre zariadenie interiérov...
Spojenie moderného dizajnu, funkčnosti a svetla do harmonického architektonického prvku.
Kancelárska budova Baumit v slovinskom Trzine prešla premenou na moderné a udržateľné pracovisko. Architekti kládli dôraz...
Mottom šiesteho ročníku on-line konferencie odborníkov Xella Dialóg je Efektívny návrh budov 2025+: zmeny a riešenia

O rekonštrukcii areálu SNG, ktorá patrí medzi najsledovanejšie projekty posledných rokov, bolo doposiaľ publikované v priebehu času množstvo rôznych informácií. Aj preto sme sa rozhodli predstaviť výsledok roky trvajúceho úsilia formou rozhovoru priamo s najpovolanejšími osobami - Martinom Kusým a Pavlom Paňákom, ktorí adaptovali dielo Vladimíra Dedečka pre nové potreby XXI. storočia. Priblížime aj menej známe aspekty projektu a spôsob práce autorov.
V priebehu rekonštrukcie sa odstránili viaceré stavebno prevádzkové a technické problémy, ktoré sa počas užívania objektu objavili. V dialógu s pôvodným autorom architekti úspešne zvládli jedno z najťažších architektonických zadaní - zásah do diela iného autora. Nie diela hocijakého, ale diela majstrovského. Diela, ktoré sa stalo ikonou slovenskej architektúry XX. storočia. Zdá sa, že svoju úlohu zvládli so cťou.
Pôvodné dielo rekonštrukciou nielenže neutrpelo, ale očividne sa posunulo ďalej...
Invencia architektov a nové technologické možnosti urobili zo Slovenskej národnej galérie nielen výbornú budovu, ktorá bude dlhodobo slúžiť svojmu účelu.
Už teraz sa dá konštatovať, že zrekonštruovaný areál SNG sa stane jedným z ústredných atraktorov Bratislavy. Miestom, ktoré pravdepodobne nevynechá v budúcnosti zo svojho programu žiadny kultúrny návštevník hlavného mesta.
Projekt z perspektívy autorov priblíži rozhovor s Martinom Kusým a Pavlom Paňákom:
AI: Prečo ste sa rozhodli zúčastniť súťaže na rekonštrukciu areálu SNG v roku 2003 a následne aj v roku 2005? Ako ste v tom čase vnímali tento komplex?
MK, PP: Motivácia k účasti v oboch súťažiach bola tá istá. Výnimočnosť inštitúcie, prestížna poloha v centre mesta, architektonická a funkčná náročnosť. Jednoducho jedinečná výzva. Celý areál sme vnímali ako zložitú objemovú a priestorovú štruktúru dvoch kontrastných architektonických zjavov.
AI: Aké základné piliere (osobné kritériá a východiská) ste si vtedy určili pre prácu s historickým kontextom a Dielom Vladimíra Dedečka?
MK, PP: Barokové Vodné kasárne boli prestavané v 50. rokoch pre potreby novozaloženej inštitúcie SNG a neskôr v 70. rokoch počas Dedečkovej prestavby a dostavby. Obe tieto úpravy pamiatkovo chránenej stavby zasiahli do jej historickej substancie. Tým bola vytvorená akási hierarchia odstupňovanej pamiatkovej hodnoty a tiež vlastne rámec pre mieru našich zásahov do historickej časti komplexu. Pri narábaní s architektúrou Vlada Dedečka sme volili viaceré scenáre, ktoré mali spoločné uchovanie jej podstatných obrysovo-objemových a priestorových čŕt ako aj materiálovú podstatu a farebnosť. Vzhľadom na zlý stavebno-technický stav tejto periódy a nevyhovujúce stavebno-fyzikálne vlastnosti, boli nahradené všetky obaľujúce konštrukcie. Vo viacerých rovinách narábania s Dedečkovou architektúrou sme zvažovali rôzne postupy. Okrem iného aj preto, pretože architektúra 2. polovice minulého storočia je z hľadiska jej ochrany a narábania s ňou vlastne živou aktuálnou témou hľadania pravidiel zaobchádzania s ňou. Povedomie o jej hodnotách je u nás stále v stave formovania sa v rovine odbornej i laickej verejnosti i v rovine inštitúcií pamiatkovej ochrany.
AI: Ako vyzeral Váš vzťah a dialóg s autorom pôvodného diela? Ako ovplyvnil Vašu prácu na projekte?
MK, PP: Osobné spoznanie sa s Vladimírom Dedečkom založilo náš blízky priateľský vzťah. Všetky dôležité rozhodnutia sme s ním konzultovali, prejavil voči našim zámerom dôveru a podporu. Dozvedeli sme sa tiež mnohé o pôvode jeho rozhodnutí, o dilemách pred ktorými stál, o komplikovaných okolnostiach jeho fázy rekonštrukcie a dostavby SNG. Stretnutia s Vladimírom boli zážitkom okrem iného aj preto, že ich témy neboli zďaleka iba architektonické.
AI: Ako sa zmenila filozofia a potreby galérie ako modernej inštitúcie 21. storočia?
MK, PP: Filozofia prostredia i programov takýchto inštitúcií sa za ostatných cca. 20 rokov prirodzene mení, uspôsobuje sa novým nárokom s ambíciou reflexie kultúrno-spoločenských tendencií týchto časov. Globálnych i lokálnych. Je to mimoriadne obsiahla a zložitá tematika. Z hľadiska našej profesie sú okrem komplexnej kvality výstavných a spoločenských priestorov podstatné také postupy, ktoré nad rámec expozície výtvarného umenia rozširujú svoju ponuku návštevníkovi k atraktívnemu tráveniu voľného času i k poučeniu. Tu je možná široká škála od tém komfortného nástupu a pobytu, prestupnosti nevýstavných priestorov až po zdanlivo nedôležité podrobnosti. Deje sa toho v tejto typológii mnoho.
AI: Rozsiahly projekt nie je iba rekonštrukciou pôvodných objektov, ale zahŕňa tiež výstavbu nových objemov a celkovú modernizáciu areálu... Akým spôsobom ste pristupovali k tvorbe novej autorskej vrstvy?
MK, PP: Od ustanovenia SNG a jej osadenia na toto miesto je táto prestavba a dostavba treťou v poradí za ostatných cca. 70 rokov. Náš podiel v tomto dynamickom slede má mnoho rovín – od väčších funkčno-vzťahových, objemových, materiálových až po zdanlivé maličkosti. Toto je v našom architektonickom portfóliu najkomplexnejší a asi aj najzložitejší projekt z hľadiska všetkých okolností, ktoré ho ovplyvňovali a podmieňovali jeho konečnú podobu. Ťažiskom našej etapy bolo hľadanie nových vzájomných vzťahov a významov vo vnútornej štruktúre uzavretých a otvorených priestorov areálu ako aj ich prepojení s jestvujúcou obklopujúcou matricou bezprostredne susediaceho centra. Nebolo to hľadanie nového silného gesta – toto bolo jasne prítomné od Dedečkovej etapy. Väčším objemom našej etapy je nový depozitár prisadený k budove vedenia SNG. Nový objem vznikol tiež prestropením nádvoria bývalého letného kina a v istom slova zmysle jama pod premostením otvorením časti stropu nad bývalým depozitárom. Samozrejme je rozsah našich intervencií do jestvujúcej substancie oveľa širší.
AI: V rozhovore pre SNG ste spomenuli snahu o vytvorenie nejestvujúcich vzťahov s centrom starého mesta. Zásadne dotvárate urbanistický kontext. Akým spôsobom funguje nový koncept využitia verejného priestoru?
MK, PP: V doterajšom stave chýbalo prepojenie s centrom mesta – Hviezdoslavovým námestím, ktoré s areálom blízko susedí. Vytvorili sme predpoklad k priamemu prepojeniu vstupných priestorov v historickej osi Vodných kasární voči tomuto námestiu cez susediacu jestvujúcu pasáž a tiež k pozdĺžnemu prepojeniu od hotela Devín po Štúrovo námestie pasážou pod budovou vedenia galérie. Na naplnenie týchto väzieb na bezprostredne susediace centrum starého mesta bude potrebná spolučinnosť vlastníkov susediacich pozemkov s tým, že tieto nové pešie prepojenia vlastnia okrem iného zaujímavý komerčný potenciál. Cieľom je vybaviť celý tento širší mestský blok trasami, ktoré sú príbuzné hustej historickej mestskej osnove.
AI: Ktoré ďalšie faktory boli kľúčové pri formovaní finálnej podoby areálu SNG? Ako sa počas týchto rokov zmenil Váš prvotný koncept?
MK, PP: Dôležitými podmieňujúcimi okolnosťami bol stav oboch prítomných vrstiev – historickej i Dedečkovej. Barokové Vodné kasárne boli za ostatných 70 rokov dvakrát výrazne stavebne upravované. To podmienilo viaceré naše priestorové rozhodnutia na ich parteri, ako aj rozdiely, spôsob obnovy ich dvorových fasád a odvrátených priečelí. Celá Dedečkova etapa sa kompletne preplášťovala. Spôsob obnovy tejto periódy bol snáď našou najdiskutovanejšou témou. Miera nášho vstupovania do jednotlivých Dedečkových objektov bola diferencovaná, podmienená viacerými faktormi. Východiskom bolo zachovanie podstatných priestorových a vonkajších objemových charakteristík. Samotné búrania i demontáže v jestvujúcich konštrukciách znamenali nové témy a korektúry pôvodných rozhodnutí.
AI: Dôvodom zmien bol najmä Váš vnútorný názorový vývoj, alebo aj kompromisy po vzájomných dialógoch s pôvodným autorom? Prípadne zasiahol do výslednej podoby niekto iný?
MK, PP: Od súťaže po začatie stavby resp. po realizačný projekt uplynulo takmer 10 rokov. Toto bola príležitosť pre neustále preverovanie rôzne závažných rozhodnutí – diskusiou, kresbami, modelmi rôznych mierok, vizualizáciami, skúsenosťou z realizovaných novších architektúr takéhoto poslania. Viaceré takéto rozhodnutia boli dokonané až po vzorkovaní in situ v priebehu stavby. Okrem viacerých fáz vývoja koncepcie farebnosti najmä premostenia je to téma hlučnosti komunikácie Vajanského nábrežia a jej dôsledky voči pobytovému komfortu nádvoria. V súťaži navrhovaná sklenená stena pod premostením medzi ulicou a nádvorím je v mene nerušeného vizuálneho prepojenia priestoru nábrežia a nádvoria nahradená nevysokým oplotením. Alebo podoba voči nádvoriu odvrátených fasád historického objektu sa voči súťaži výrazne zmenila. Samozrejme sme počas výstavby museli prijať viaceré kompromisy – niektoré boľavé. Nízka miera staviteľskej ambície realizátora stavby, ktorej bol nadradený jeho komerčný záujem, bola stáleprítomnou traumou v priebehu stavby. Aj keď boli viaceré remeslá realizované v požadovanej kvalite. Toto prirodzene finálnu podobu stavby primerane ovplyvnilo.
AI: Dôležitou témou projektu je recyklácia pôvodných materiálov a prvkov, ktoré sa v areáli objavujú často v novom kontexte. Aké najzaujímavejšie prvky si môžeme všimnúť pri návšteve galérie?
MK, PP: Ideou recyklovania viacerých materiálov a znovuosadenia vybraných prvkov sme sa zaoberali v čase, v ktorom ešte nebola módou a ani zvodným komerčným sloganom. Má v realizovanej etape viacero podôb – od znovuosadenia pôvodných ALU-lamiel na novom telese depozitára, cez staro-nové povrchy prednáškovej sály až po mleté travertínové kamenivo v terazzových podlahách arkád a haly historického objektu. V skutočnosti pokladáme za profesionálne najzávažnejšie také detaily, ktoré na seba osobitne neupútavajú pozornosť, vyzerajú samozrejme – proste a preto sú intelektuálne a realizačne vlastne najťažšie.
AI: Ktoré sú s vášho pohľadu najzaujímavejšie detaily a riešenia, ktoré ste na stavbe realizovali?
MK, PP: Napríklad koncepcia diferencovaného prístupu k dvorovej a odvrátenej fasáde historického objektu, ktorý tematizoval veľmi rozdielnu mieru ich ochrany počas predchádzajúcich prestavieb. Alebo tiež premýšľanie o obnove premostenia bolo z tých kľúčových v celej škále riešenej problematiky. Vývoj jeho podoby je témou, ktorá rozsah tohto textu určite presahuje. Na rozdiel od administratívnej budovy, ktorá je až na niekoľko úprav vlastne replikovaná, bol náš postup s premostením viacvrstevný a náročný. Miera spoluprítomnosti Dedečkovej a našej etapy je výsledkom dlhých úvah, poučení z diskutovania našich úprav s Vladimírom. Už registrujeme viaceré reakcie k našej manipulácii s touto osobitne sledovanou architektúrou bratislavského nábrežia – pozitívne i kritické. Sme vlastne radi, že atmosféra permanentného diskurzu k nej takto pretrváva. V prvej súťaži v roku 2003 sme s premostením narábali radikálnejšie – tak ako väčšina vtedy-súťažiacich. Mýlili sme sa.
AI: Na aké zaujímavé momenty ste narazili pri realizácii?
MK, PP: Zaujímavých momentov bolo určite viacero – tými najsilnejšími boli tie, keď sa zamýšľaná podoba priestorových figúr a dôležitých elementov začala vynárať. Boli to chvíle priamej konfrontácie nakreslených obrazov z hláv s novou či staro-novou realitou architektúry. To boli chvíle silnej motivácie v každodenných a často vyčerpávajúcich bojoch o dobrý výsledok. Vo chvíľach, keď sa musíte pracne usilovať o to, čo vy pokladáte za samozrejmé a dodávateľ nie. Táto stavba od súťaže v roku 2005 trvala dlhých 17 rokov. Intenzita práce na tomto projekte bola veľmi kolísavá – to zvykne architektovi uberať na jeho motivácii. SNG však nebola tento prípad, pretože táto úloha bola výnimočná svojím programom, miestom, komplexnou náročnosťou a tiež porozumením investora pre to podstatné v našich prístupoch. Asi tým najťažším bolo vyhnúť sa nástrahám povrchnosti, ktorá je všadeprítomná v podobách našej každodennej kultúry.
Aktuálne fotografie Mateja Hakára:
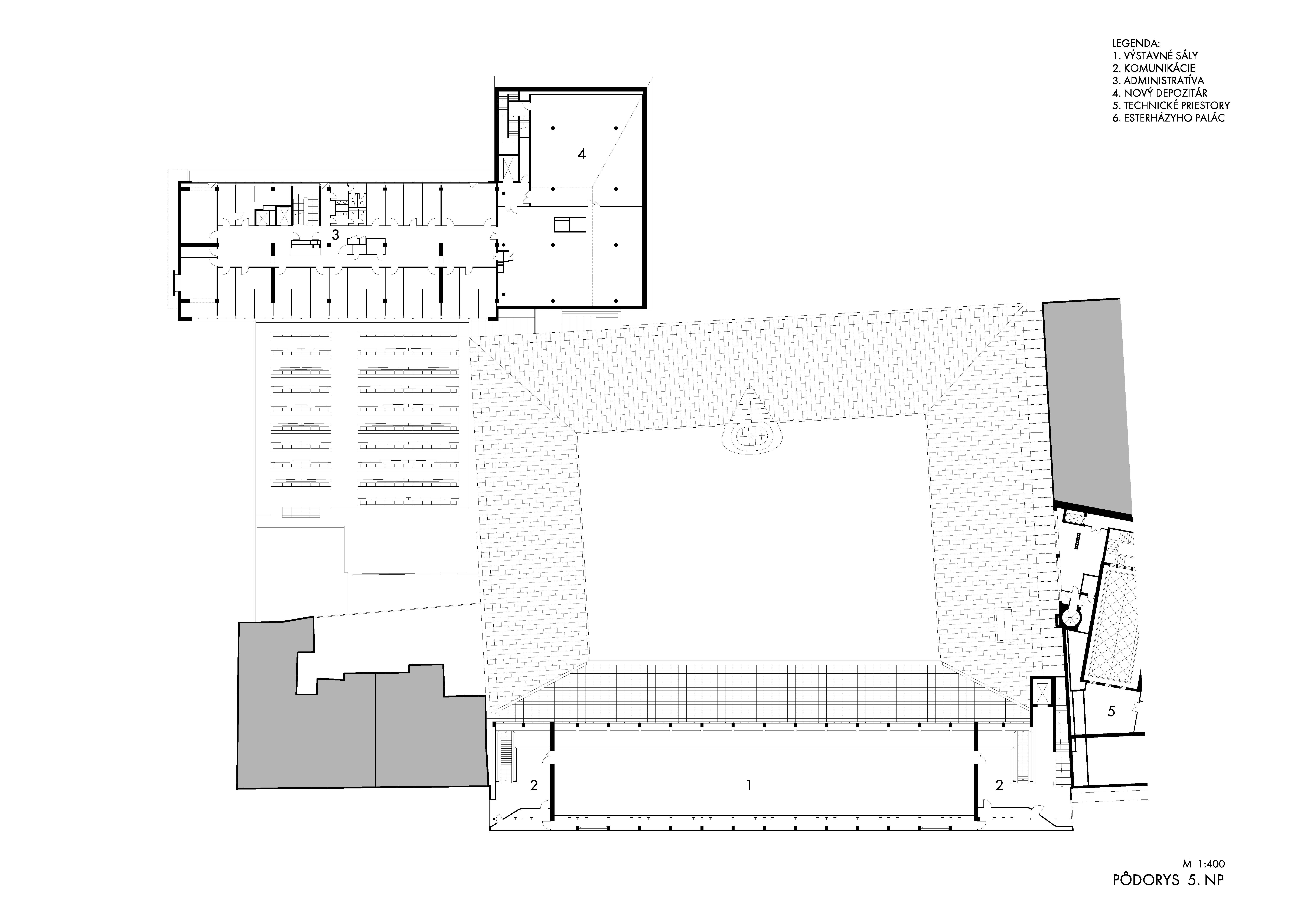
Výkresová dokumentácia:
Dobové fotografie:
Pole faktov:
Prístavba SNG alebo premostenie Slovenskej národnej galérie je štruktúra patriaca do komplexu areálu Slovenskej národnej galérie, ktorej autorom je architekt Vladimír Dedeček. Hoci ide o z hľadiska galerijnej funkcie o koncepčne výborný priestor, vzhľadom na kontrastnosť s okolitou staršou zástavbou patrí k zrejme najkontroverznejším motívom modernej architektúry v Bratislave. Odborná architektonická komunita ho však temer bezvýhradne prijíma. Dedečkovo premostenie zostáva súčasťou rekonštrukcie SNG od ateliéru Architekti BKPŠ autorov Martina Kusého a Pavla Paňáka.
História SNG
Po politickom prevrate roku 1948 sa Martin ako kvázi kultúrne centrum stal „ideologicky nevyhovujúcim“, pričom dochádzalo k centralizácii. Dňa 29. júna 1948 bola zriadená SNG v Bratislave. Pridelili jej budovu vodných kasárni na nábreží Dunaja, postavenú v rokoch 1759 - 63. Pôvodne mala budova štyri krídla, južné krídlo však pri úpravách nábrežia počas Slovenského štátu zbúrali, čím vznikol otvorený priestor. Krátko po rekonštrukcii v 1955 však bolo jasné, že kapacita objektu je nedostačujúca. V 1963 Zväz slovenských architektov vypísal študijné úlohy na doriešenie dostavby a adaptácie SNG. Úlohy spracovali štyria autori, resp. skupiny autorov: V. Dedeček, E. Kramár so spolupracovníkmi, J. Frágner so spolupracovníkmi a M. Beňuška so spolupracovníkmi. Návrhy boli vyhodnotené 6. januára 1964 a za najlepší bol vybraný návrh V. Dedečka. Sám autor vyhlásil návrh za „triezvy a konzervatívny“. Tvarové riešenie južného exponovaného krídla galérie je jedným z prejavov autorovho sklonu vyjadrovať sa nekonvenčnými spôsobmi.
Prístavba SNG
Vladimír Dedeček predložil štúdiu dobudovania areálu SNG so zachovaním historického objektu. Prístavba SNG sa mala pôvodne rozprestierať aj na severozápadnej strane stavebného bloku do Paulínyho ulice a mala zabrať aj plochu dvojice funkcionalistických objektov na juhozápadnej strane vedľa hotela Devín. Uvedené objekty mali byť v Dedečkovej koncepcii odstránené.
V pôvodnej štúdii Vladimíra Dedečka malo dunajské krídlo menej progresívnu podobu. Klasicky koncipované premostenie bolo zdvihnuté o jedno podlažie a stálo na stĺpoch. Komisia však vydala podnet na výraznejšie otvorenie vnútrobloku vo vzťahu k nábrežiu (priamy pohľad z dunajského nábrežia do nádvoria SNG), ktorý viedol k prepracovaniu projektu. Dedeček zdvihol krídlo ešte o jedno podlažie a zmenil jeho klasickú koncepciu na charakteristickú mostovú konštrukciu s rozponom 74 m, tak ako ju poznáme dnes. Prístavba bola v tomto návrhu presvetlená z oboch strán, okná smerovali aj k Dunaju. Zahustením konštrukcie v realizačnej fáze sa toto pripojenie úplne stratilo. Aktuálne dokončená rekonštrukcia čiastočne otvára aj južnú fasádu a približuje presvetlenie priestoru k pôvodnému Dedečkovmu zámeru.
Realizácia
V starej budove a povale pribudlo jedno podlažie s horným osvetlením cez zasklenú stenu. Z 1. a 2. poschodia je stará budova komunikačne spojená s výstavnými priestormi južného pristavaného krídla. Trojpodlažný výstavný komplex južnej fasády je vysunutý ako most na dvoch podperách; to umožňuje optický kontakt medzi nádvorím galérie a nábrežím. Most tvoria štyri oceľové priehradové nosníky, podpory sú vzdialené 54,5 m a majú šírku 30 cm. Jedna podpora je pevná a druhá kyvná. Oceľovú konštrukciu majú aj ostatné nové časti, ktorých autorom je O. Pečený. Niektoré zaujímavé časti konštrukcie viditeľné zo stavby sú dnes skryté. Plášť konštrukcie urobili „suchým procesom“ zo siporexových panelov, s konečnou povrchovou úpravou zo smaltovaného hliníkového plechu, farby bielej a červenej. Prevláda biela; na bočných stenách červená farba ma znázorňovať rez. Pôvodná povrchová úprava mala byť zo sklomozaiky, ale pri realizácií sa ukázalo, že za podmienok pohybov nosnej konštrukcie stavebný podnik nedokáže navrhnutú úpravu urobiť, preto sa nahradila dnešnou. Nové južné výstavné krídlo má vo všetkých podlažiach horné osvetlenie zo severnej strany, z južnej strany nemá otvory, čo ho chráni pred nežiaducim svetlom, ako aj dopravným ruchom. Rekonštrukcia budovy v 70. rokoch napriek všetkým zásahom a autorským riešeniam trpela nekvalitou vykonávanej remeselnej práce. Pri kolaudácií budovy bol odhalený počet chýb v ráde tisícok, keďže stavebnou prioritou bolo "plnenie plánov", "prekonávanie termínov" a iné formálne úspechy za cenu nekvality. Tento prístup bol dôvodom, prečo premostenie trpelo viacerými technickými problémami, napríklad zatekaním.
Fotografie z rokov 2015 - 2021:
Stručná genéza projektu:
Aktuálny projekt prestavby areálu SNG spustil havarijný stav premostenia, ktoré muselo byť v roku 2001 z tohto dôvodu zatvorené. Nasledovali dve architektonické súťaže (2003, 2005) v ktorých hľadala galéria ideálne riešenie nielen pre rekonštrukciu premostenia, ale tiež pre modernizáciu celého areálu. Prvá nepriniesla jednoznačného víťaza, ani uspokojivé a adekvátne riešenie všetkých nahromadených problémov. Preto sa SNG rozhodla vyhlásiť druhú verejnú súťaž návrhov. Spomedzi deviatich účastníkov zvíťazil kolektív pod vedením architektov Martina Kusého a Pavla Paňáka, ktorého návrh tentokrát priniesol odpoveď na viaceré zásadné otázky. Do procesu však vstúpila ekonomická kríza. Zmluvu so zhotoviteľom tak podpísala SNG až 15 rokov po uzavretí premostenia. Realizácia projektu, ktorý zahŕňa rekonštrukciu, prestavbu, dostavbu a urbanistické riešenie rozsiahleho areálu na brehu Dunaja bola zahájená v roku 2016. Cieľom projektu je podľa slov SNG vytvoriť prostredie pre aktivity modernej galerijnej a kultúrnej inštitúcie. Okrem základných funkcií je dôležitou nadstavbou aj kultúrny a kultivovaný verejný priestor, rovnako ako snaha je začleniť areál Vodných kasární do organizmu mesta.
Panely z druhej súťaže. V roku 2005 zvíťazil spomedzi 9 uchádzačov návrh kolektívu pod vedením architektov Martina Kusého a Pavla Paňáka:
Vizualizácie projektu rekonštrukcie areálu SNG:
Fotografie a vizuály nových výstav:
Použité materiály a riešenia:
Fasádne konštrukcie Schüco: stĺpik-priečnikova fasáda FWS 50.SI, protipožiarna fasáda FW 50+ BF.HI, štrukturálna fásada FWS 50 SG,
Okenné, dverné konštrukcie a protipožiarne dverné konštrukcie rovnako zo systémov Schüco.
Podklady: Ateliér A BKPŠ
Fotografie: Matej Hakár