Advertorial

Pozvánka na 2. ročník stavebného veľtrhu BigMarket na Slovensku

Na podujatí sa predstaví až 37 vystavovateľov - popredných dodávateľov stavebných materiálov a inovácií s prezentáciou...

Hotel Hirschen Spa House, Rakúsko

Novotvar v prostredí alpskej obce.

Vytvorte si kúpeľňu snov: dizajnové riešenie od značky hansgrohe

Hansgrohe - prémiová značka kúpeľňových riešení, ponúka nadčasový dizajn, technickú precíznosť a udržateľné inovácie...

Okná Internorm za minuloročné ceny + hliníkový kryt zdarma!

Využite špeciálnu akciu Internorm: okná za minuloročné ceny a hliníkový kryt úplne zadarmo. Ponuka je časovo obmedzená!

Moderné plynové technológie: Efektivita a inovácie pre 21. storočie

Sumarizácia najdôležitejších inovácií, ktoré redefinujúcich využitie tohto energetického zdroja.

Utesňovanie spodných stavieb pomocou hydro-aktívnej fólie AMPHIBIA.

AMPHIBIA 3000 GRIP 1.3 od spoločnosti ATRO predstavuje modernú hydroizolačnú technológiu, ktorá spája vysokú odolnosť,...

Dekarbonizácia individuálneho vykurovania domácností – Green Deal evolučne a nie revolučne

Ambiciózne plány EK narazili na ekonomické možnosti domácností v jednotlivých členských štátoch –...

Minimalistické dvere IDEA – technická precíznosť a čistota prevedenia

IDEA DOOR od spoločnosti JAP prináša do interiéru čistý minimalistický vzhľad vďaka bezrámovému riešeniu a precíznej...

Dom s výhľadom na údolie, Dlouhý Most (ČR)

Kontinuita riešenia od vonkajšieho obkladu až po kovania a kľučky.

Schell Vitus – osvedčené riešenie pre sprchy a umývadlá vo verejnom sektore s viac ako desaťročnou tradíciou

Nástenné nadomietkové armatúry Vitus sú mimoriadne vhodné pre rýchlu a efektívnu...

Kompozitné okná predstavujú súčasnosť a budúcnosť

Okenné profily z kompozitného materiálu RAU-FIPRO X od spoločnosti Rehau sú v porovnaní s tradičnými plastovými profilmi mnohonásobne...

Myotis - stoly 2025

Najnovší sortiment stolov pre zariadenie interiérov...

Priemyselné sklenené priečky Dorsis Digero: svetelné rozhranie pre moderné interiéry

Spojenie moderného dizajnu, funkčnosti a svetla do harmonického architektonického prvku.

Význam prirodzeného svetla pre moderné a flexibilné pracovné prostredie

Kancelárska budova Baumit v slovinskom Trzine prešla premenou na moderné a udržateľné pracovisko. Architekti kládli dôraz...

Konferencia Xella Dialóg predstaví novinky a trendy v stavebníctve

Mottom šiesteho ročníku on-line konferencie odborníkov Xella Dialóg je Efektívny návrh budov 2025+: zmeny a riešenia

Rekonštrukcia a nadstavba pavilónu materskej a základnej školy CÁDROVA, Bratislava

Rukopis Vladimíra Dedečka v nových súvislostiach.
Diela
Red 302.03.2024
22720+210
Rekonštrukcia a nadstavba pavilónu materskej a základnej školy CÁDROVA, Bratislava
Autori: Ing. arch. Michal Vršanský, Ing. arch. Michal Oborný, Ing. arch. Andrej Drgala, Ing. arch. Michaela Šteiner Sýkorová, Ing. arch. Vladimír Dedeček (autor pôvodného riešenia), Mgr. art. Ivana Palečková (autorka výtvarného diela), INDEKS s.r.o. + AOCR s.r.o. (generálny projektant)Investor: Mestská časť Bratislava - Nové MestoPlocha pozemku: 1575 m2Zastavaná plocha: 560 m2Podlažná plocha: 1365 m2Návrh: 2021 - 2021Realizácia: 2022 - 2024Adresa: Cádrova 23, Bratislava, SlovenskoPublikované: 2. marec 2024

Objekt z prelomu 50. a 60. rokov minulého storočia, ktorý tvorí súčasť Dedečkovej pavilónovej školy, prešiel výraznými zmenami. 

Prispôsobenie stavby novej náplni a súčasným funkčným požiadavkám si okrem výrazného prekopania dispozície vyžiadalo aj rozšírenie pôvodného stavebného objemu. Nové celky sofistikovane dopĺňajú kompozíciu pavilónov vo svahovitom teréne. Projekt z dielne ateliérov INDEKS AOCR charakterizuje jasný koncept. Autori odlišujú pôvodné a nové objemy, vzdávajú hold dobovej architektúre a vytvárajú hodnotnú súdobú vrstvu.

 

Realizáciu bližšie predstaví sprievodný text autorov:

Objekt sa nachádza na svahovitom pozemku bratislavských Kramárov, medzi ulicami Cádrova a Guotova. Urbanistické riešenie pavilónovej školy Cádrova je dielom architekta Vladimíra Dedečka. Rekonštrukcia sa týka iba objektu jedálne. 

Projekt rieši konverziu pôvodného objektu jedálne a špeciálnych učební na komplexnejší objekt kmeňových tried tak, aby spĺňal súčasné požiadavky na energetickú úspornosť a hygienu. Radikálne zvyšuje kapacitu kuchyne a celkový objem je takmer dvojnásobný. Namiesto pôvodných špeciálnych učební sa tu dnes nachádzajú aj kmeňové triedy, zázemie pre učiteľov a školníka, sociálne a hygienické vybavenie ako aj nové multifunkčné exteriérové priestory. 

Pôvodný objem schodiska a sociálnych zariadení nahrádzame novým, rozšíreným päťpodlažným objektom, ktorý zastrešuje schodisko, sociálne zariadenia, kabinety, administratívne a technické priestory. Objekt je jasne  odlíšený architektonickým stvárnením, vlastným tektonickým výrazom aj materiálom.

Čistota prefabrikovanej betónovej fasády kontrastuje s farebnou škrabanou omietkou pôvodnej budovy. Samotný objekt jedálne nadstavujeme o jedno podlažie pre nové učebne. Nadstavba s jemným výrazovým posunom preberá tektoniku pôvodného telesa. Je jasne odčlenená pôvodnou rímsou objektu, aj keď materiálovo zostáva totožná. Novým prvkom sú jemné “šambrány” okolo otvorov.

Nová architektonická vrstva odkazuje na dielo a dobu architekta Vladimíra Dedečka, čo ešte podčiarkne integrované výtvarné dielo Mgr. art. Ivany Palečkovej

Návrh “neinfantilizuje“ zadanie základnej školy a je založený na jednoduchosti a vecnosti. Priestorovej, aj materiálovej. 

Napriek súdobým extenzívnym priestorovým a funkčným požiadavkám návrh zachováva  architektonickú kvalitu obohatenú o novú architektonickú a významovú vrstvu.

Foto: Michal Vršanský
Foto: Michal Vršanský
Foto: Michal Vršanský

Výkresová dokumentácia - pôvodný stav:

Pôdorys 1. NP - pôvodný stav
Pôdorys 1. NP - pôvodný stav
Pôdorys 2. NP - pôvodný stav
Pôdorys 2. NP - pôvodný stav
Východný pohľad - pôvodný stav
Východný pohľad - pôvodný stav
Severný pohľad - pôvodný stav
Severný pohľad - pôvodný stav
Južný pohľad - pôvodný stav
Južný pohľad - pôvodný stav
Západný pohľad - pôvodný stav
Západný pohľad - pôvodný stav

Výkresová dokumentácia - nový stav:

Situácia - nový stav
Situácia - nový stav
Axonometria - nový stav
Axonometria - nový stav
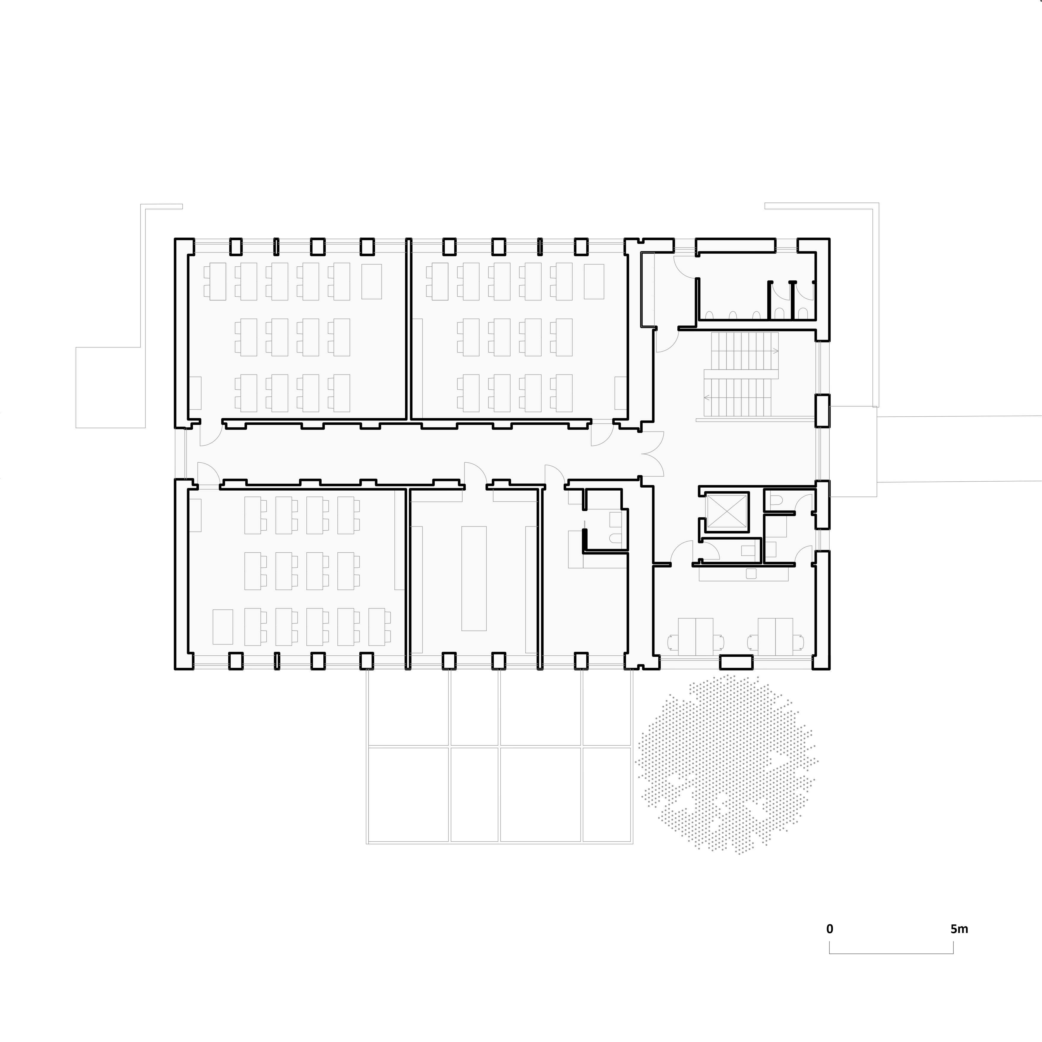
Pôdorys 1. PP - nový stav
Pôdorys 1. PP - nový stav
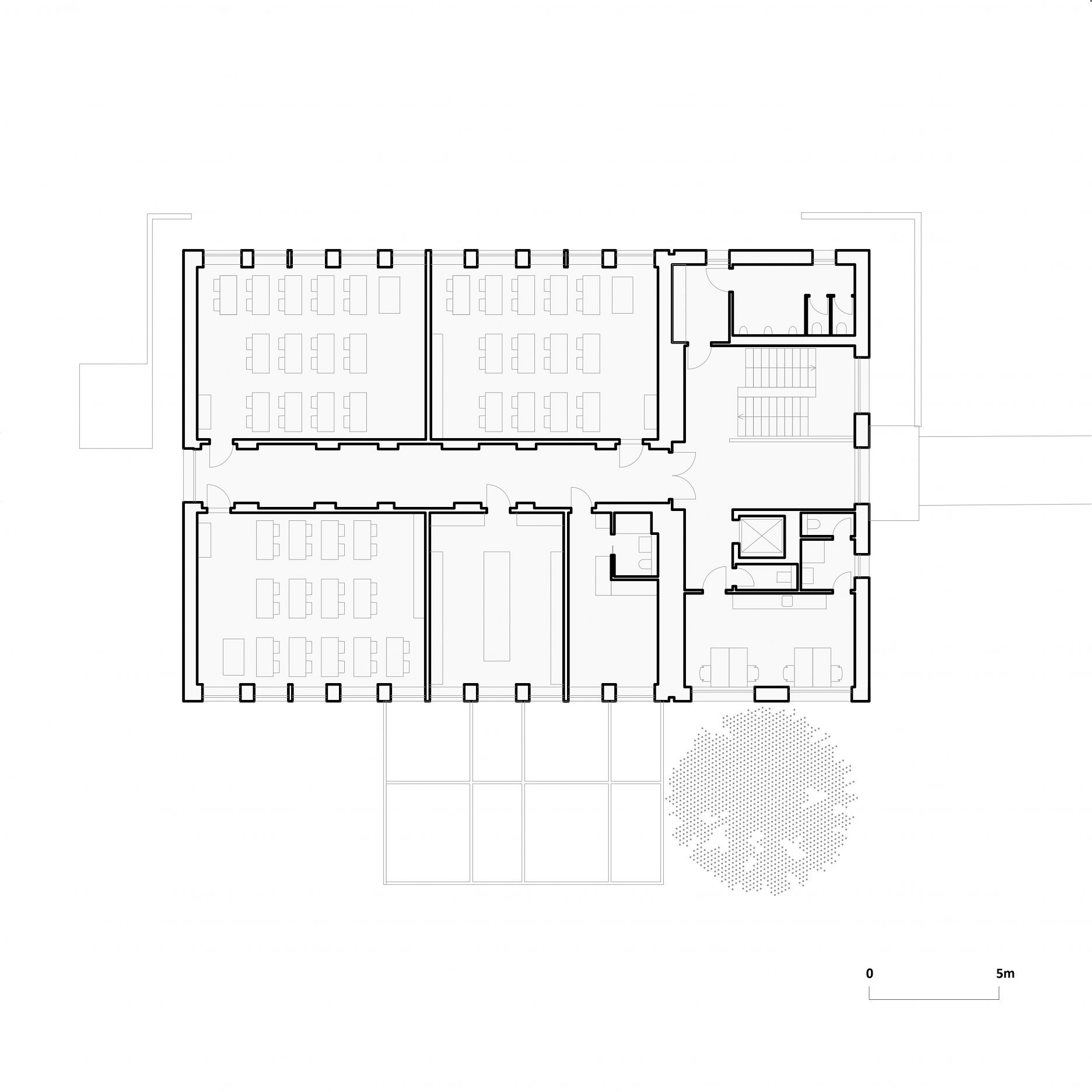
Pôdorys 1. NP - nový stav
Pôdorys 1. NP - nový stav
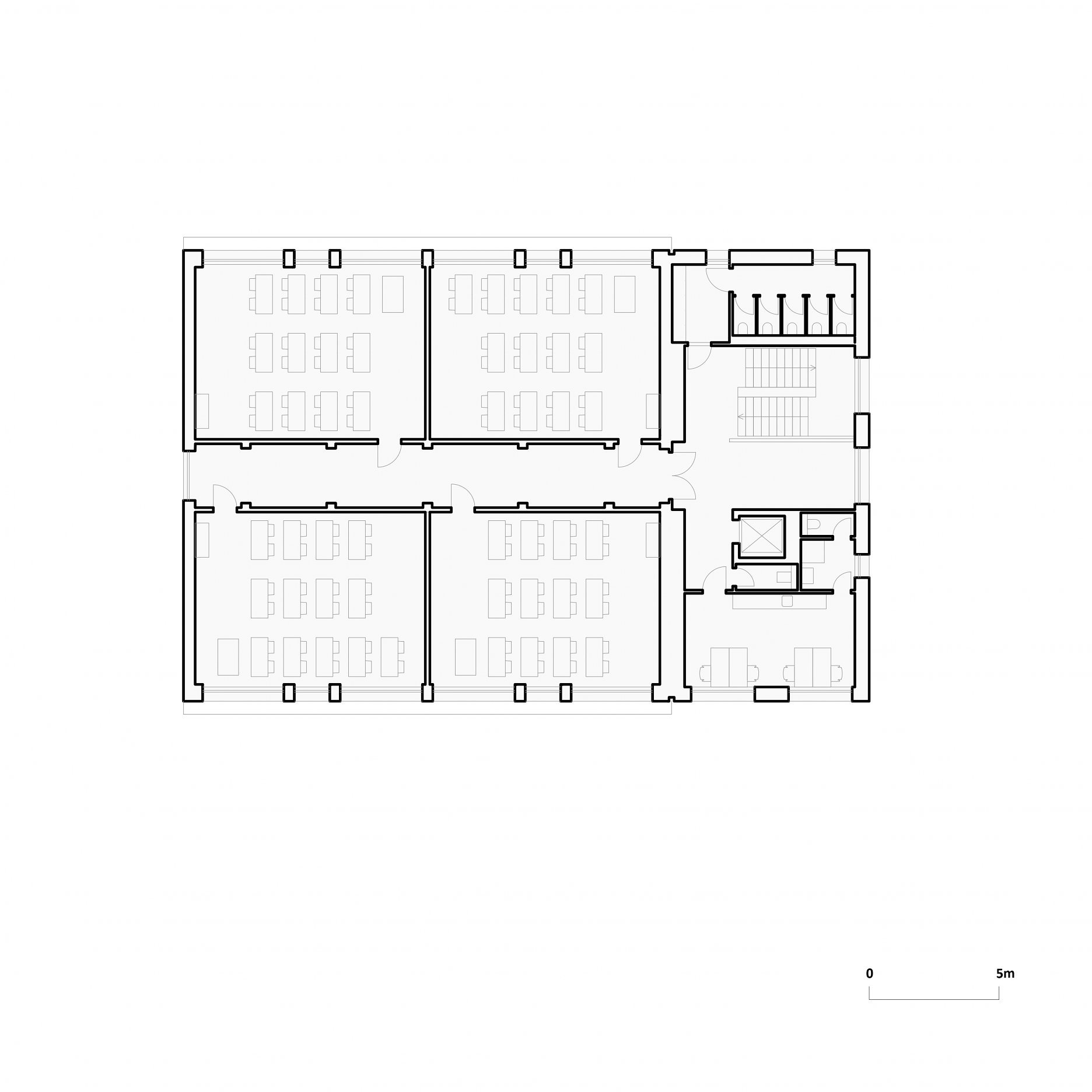
Pôdorys 2. NP - nový stav
Pôdorys 2. NP - nový stav
Pôdorys 3. NP - nový stav
Pôdorys 3. NP - nový stav
Pôdorys 4. NP - nový stav
Pôdorys 4. NP - nový stav
Rez - nový stav
Rez - nový stav
Východný pohľad - nový stav
Východný pohľad - nový stav
Severný pohľad - nový stav
Severný pohľad - nový stav
Južný pohľad - nový stav
Južný pohľad - nový stav
Južný pohľad - nový stav
Južný pohľad - nový stav
Model - nový stav
Model - nový stav
Foto: Michal Vršanský
Foto: Michal Vršanský
Foto: Michal Vršanský
Foto: Michal Vršanský
Foto: Michal Vršanský
Foto: Michal Vršanský
Foto: Michal Vršanský
Foto: Michal Vršanský
Foto: Michal Vršanský
Foto: Michal Vršanský
Foto: Michal Vršanský
Foto: Michal Vršanský
Foto: Michal Vršanský
Foto: Michal Vršanský
Foto: Michal Vršanský
Foto: Michal Vršanský
Foto: Michal Vršanský
Foto: Michal Vršanský
Foto: Michal Vršanský
Foto: Michal Vršanský
Foto: Michal Vršanský
Foto: Michal Vršanský
Foto: Michal Vršanský
Foto: Michal Vršanský
Foto: Michal Vršanský

Podklady: Michal Vršanský / INDEKS + AOCR
Fotografie: Michal Vršanský

Poloha diela

Ing. arch. Michal Vršanský
Ing. arch. Michal Oborný
Ing. arch. Andrej Drgala
Ing. arch. Michaela Šteiner Sýkorová
Ing. arch. Vladimír Dedeček
Mgr. art. Ivana Palečková
INDEKS s.r.o. + AOCR s.r.o.

Súvisiace články

Vložené
29. február 2024
0
2272
Hlavný obsahHlavný obsah
Čakajte prosím