Na podujatí sa predstaví až 37 vystavovateľov - popredných dodávateľov stavebných materiálov a inovácií s prezentáciou...
Novotvar v prostredí alpskej obce.
Hansgrohe - prémiová značka kúpeľňových riešení, ponúka nadčasový dizajn, technickú precíznosť a udržateľné inovácie...
Využite špeciálnu akciu Internorm: okná za minuloročné ceny a hliníkový kryt úplne zadarmo. Ponuka je časovo obmedzená!
Sumarizácia najdôležitejších inovácií, ktoré redefinujúcich využitie tohto energetického zdroja.
AMPHIBIA 3000 GRIP 1.3 od spoločnosti ATRO predstavuje modernú hydroizolačnú technológiu, ktorá spája vysokú odolnosť,...
Ambiciózne plány EK narazili na ekonomické možnosti domácností v jednotlivých členských štátoch –...
IDEA DOOR od spoločnosti JAP prináša do interiéru čistý minimalistický vzhľad vďaka bezrámovému riešeniu a precíznej...
Kontinuita riešenia od vonkajšieho obkladu až po kovania a kľučky.
Nástenné nadomietkové armatúry Vitus sú mimoriadne vhodné pre rýchlu a efektívnu...
Okenné profily z kompozitného materiálu RAU-FIPRO X od spoločnosti Rehau sú v porovnaní s tradičnými plastovými profilmi mnohonásobne...
Najnovší sortiment stolov pre zariadenie interiérov...
Spojenie moderného dizajnu, funkčnosti a svetla do harmonického architektonického prvku.
Kancelárska budova Baumit v slovinskom Trzine prešla premenou na moderné a udržateľné pracovisko. Architekti kládli dôraz...
Mottom šiesteho ročníku on-line konferencie odborníkov Xella Dialóg je Efektívny návrh budov 2025+: zmeny a riešenia

Medzi kvalitné realizácie z verejných zdrojov, ktoré ťažia z vybudovanej infraštruktúry existujúcich škôl (ZŠ v Bernolákove, bratislavská ZŠ Cádrova, ZŠ v Záhorskej Bystrici...), v priebehu uplynulého roku pribudla realizácia ateliéru ATOMstudio v Devínskej Novej Vsi. Východiskom riešenia prístavby a dostavby školy je dôsledná analýza pôvodného projektu a prevádzky typovej pavilónovej školy z 80. rokov. Dispozícia ľahkej drevenej nadstavby zachováva prevádzkovú schému nižších podlaží. Kompaktnú prístavbu s kmeňovými učebňami architekti mierne odsadili, čím zachovávajú čitateľnosť pôvodnej kompozície. Materiálová podstata nových blokov sa premieta aj do interiéru, v podobe odhalených trámových stropov, alebo masívnych CLT panelov.
Realizáciu bližšie predstavia autori:
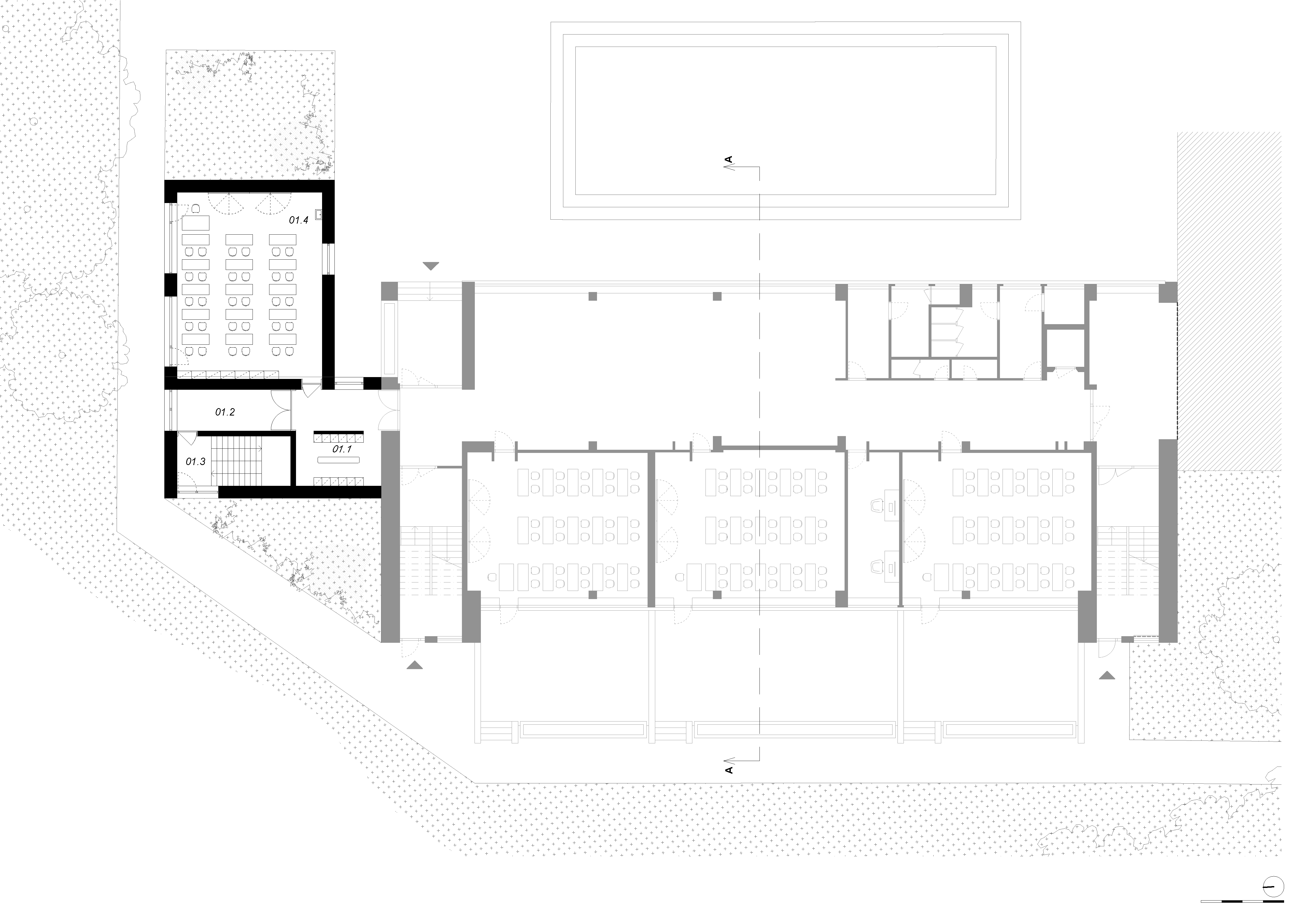
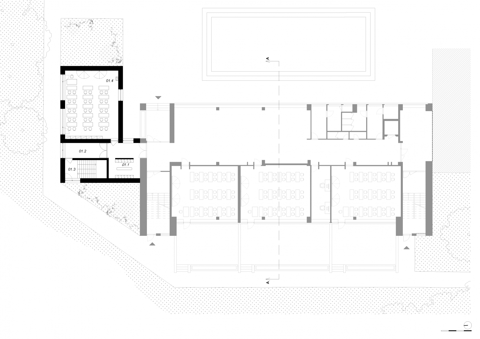
Základná škola sa nachádza na ulici Ivana Bukovčana v bratislavskej mestskej časti Devínska Nová Ves. Objekt vznikol v roku 1984, v priebehu výstavby samotného sídliska medzi rokmi 1982-1989. Návrh typového projektu školskej stavby zastrešoval vtedajší Stavoprojekt Trnava. Charakteristickým prvkom pavilónového systému je rôzna výška vzájomne prepojených hmôt. Tie vytvárajú centrálne nádvorie, z jednej strany otvorené smerom na školský dvor.
Požiadavka na rozšírenie školy vznikla z nárastu žiakov v mestskej časti a jej nedostatočnej kapacitny. Cieľom bolo vytvoriť priestor pre osem tried s adekvátnym zázemím. Po analyzovaní interiérových a exteriérových dispozično-prevádzkových väzieb a statických podkladov architekti nové triedy rozložili do formy nadstavby a prístavby.
Časť tried je situovaná do nadstavby, ktorej vnútorné členenie kopíruje typické podlažie. Prístavba dopĺňa západné krídlo a zároveň čiastočne uzatvára priestor nádvoria. Priestranstvo sa stáva centrálnejšie, avšak so zachovaním pôvodného konceptu priehľadov. Zvolené umiestnenie nového objektu vychádza aj z celkového usporiadania areálu školy, v rámci ktorého bolo v 90. rokoch vybudované baseballové ihrisko. Prístavba sa snažila svojou proporciou nezasahovať do jeho geometrie. Komplex školy dotvára ďalší pavilón, ktorým formálne uzatvára kompaktný tvar tejto štruktúry. Rekonštrukcia verejných priestorov by mala byť predmetom riešenia v budúcnosti.
Priestorové usporiadanie reaguje na pôvodné dispozičné riešenie trojtraktu krídla / pavilónu. Na západnej strane sa nachádza trojica kmeňových učební a kabinet a na východnej strane sa nachádzajú dve učebne, hygienické zázemie a kabinet. Učebne sú dostupné z centrálnej chodby, ktorá je napojená na dve schodiská. Objekt prístavby má tri typické podlažia, na ktorých sa nachádza vždy jedna kmeňová trieda, šatňa a komunikácia so schodiskom. Prístavba je prepojená v každom podlaží s existujúcim pavilónom a zároveň je prepojená aj s nadstavbou.
Doplnené štruktúry majú materiálový základ postavený na drevených konštrukciách. Nadstavba sa skladá z drevenej rámovej konštrukcie, ktorá nadväzuje na existujúcu skeletovú železobetónovú konštrukciu. V miestnostiach učební je priznaný drevený trámový strop. Fasádne steny sú na báze stĺpikovo-priečnikovej "sendvičovej" konštrukcie. Objekt dostavby je komponovaný z CLT panelov na obvodových stenách a dreveným trámovým stropom. V miestnostiach učební sú všetky steny z CLT panelov.
Forma dostavby je hmotovo odsadená od existujúceho objektu a spojená len nevyhnutnou prepojovacou chodbou, čo zachováva čitateľnosť pôvodnej figúry. Vizuálne a materiálovo je plocha dostavby a nadstavby odlíšená od pôvodných bielych, omietkových fasád prostredníctvom trapézového fasádneho plechu. Sivá farba plechu a jeho štruktúra vytvára jemný kontrast, ktorý je jasne čitateľný po vizuálnej aj kompozičnej stránke.
Podklady: ATOMstudio
Fotografie: Matej Hakár