Na podujatí sa predstaví až 37 vystavovateľov - popredných dodávateľov stavebných materiálov a inovácií s prezentáciou...
Novotvar v prostredí alpskej obce.
Hansgrohe - prémiová značka kúpeľňových riešení, ponúka nadčasový dizajn, technickú precíznosť a udržateľné inovácie...
Využite špeciálnu akciu Internorm: okná za minuloročné ceny a hliníkový kryt úplne zadarmo. Ponuka je časovo obmedzená!
Sumarizácia najdôležitejších inovácií, ktoré redefinujúcich využitie tohto energetického zdroja.
AMPHIBIA 3000 GRIP 1.3 od spoločnosti ATRO predstavuje modernú hydroizolačnú technológiu, ktorá spája vysokú odolnosť,...
Ambiciózne plány EK narazili na ekonomické možnosti domácností v jednotlivých členských štátoch –...
IDEA DOOR od spoločnosti JAP prináša do interiéru čistý minimalistický vzhľad vďaka bezrámovému riešeniu a precíznej...
Kontinuita riešenia od vonkajšieho obkladu až po kovania a kľučky.
Nástenné nadomietkové armatúry Vitus sú mimoriadne vhodné pre rýchlu a efektívnu...
Okenné profily z kompozitného materiálu RAU-FIPRO X od spoločnosti Rehau sú v porovnaní s tradičnými plastovými profilmi mnohonásobne...
Najnovší sortiment stolov pre zariadenie interiérov...
Spojenie moderného dizajnu, funkčnosti a svetla do harmonického architektonického prvku.
Kancelárska budova Baumit v slovinskom Trzine prešla premenou na moderné a udržateľné pracovisko. Architekti kládli dôraz...
Mottom šiesteho ročníku on-line konferencie odborníkov Xella Dialóg je Efektívny návrh budov 2025+: zmeny a riešenia

V septembri otvorí svoje brány nová súkromná základná škola v Banskej Štiavnici. Realizácia ateliéru Richarda Murgaša, nadviazala na kvality materskej školy Guliver, ktorá v roku 2016 získala významné ocenenia: Cenu Dušana Jurkoviča a CE.ZA.AR v kategórii Občianske a priemyselné stavby.
Priemyselný areál na okraji mesta sa zmenil na rozsiahly školský komplex. Jednoduchú blokovú stavbu školy rozširujú priľahlé športoviská a spoločné priestranstvá. Architektonický koncept vsádza na proporčnosť objemov a čistý detail.
Benefit kontaktu s exteriérom a forma tienenia presklenej fasády, vytvárajú vizuálny zážitok nielen cez deň, ale aj v noci, keď sa farebné vnútro školy ukáže verejnosti...
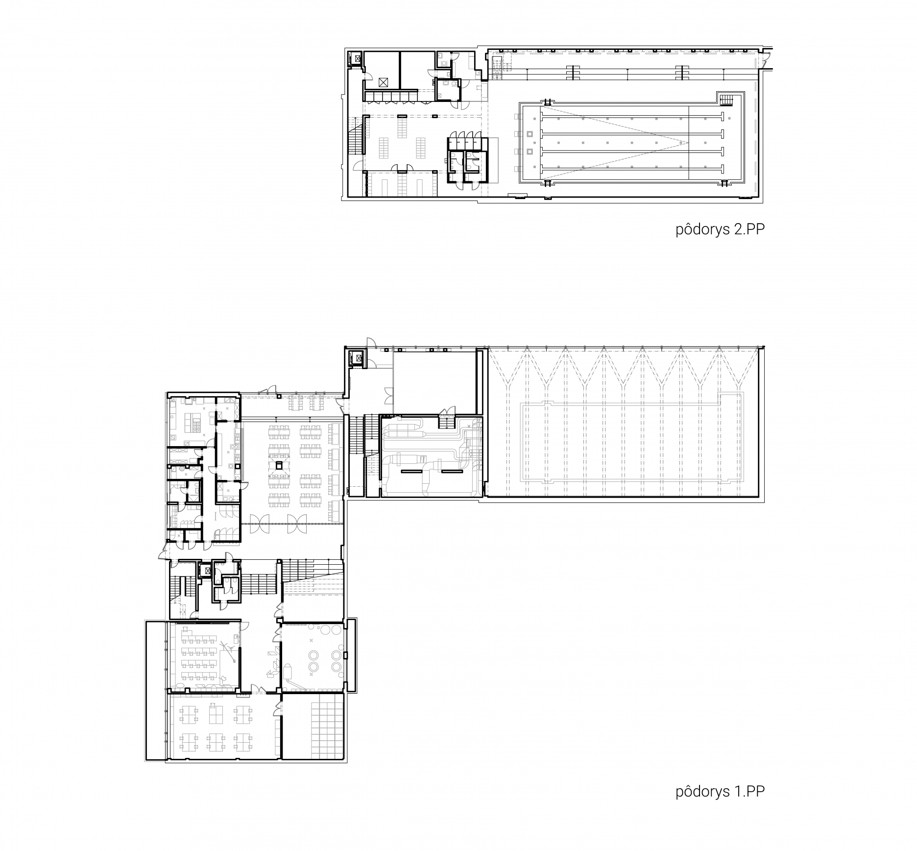
Klastre ako unifikované plošné jednotky pre 40-60 žiakov sú vzájomne výškovo posunuté o polovicu podlažia a pospájané ramenami pobytového schodiska. Hlavnú budovu dopĺňa minimalistická telocvičňa, prepojená so školským dvorom, ktorá je posadená na betónovú halu plaveckého bazéna. Prevádzka je elegantne integrovaná v kompaktnom funkčnom celku.
Najvýraznejšia architektonická intervencia v oblasti objektov pre základné školstvo v posledných desaťročiach na Slovensku...
O projekte sme sa rozprávali s Richardom Murgašom z ateliéru RMAA:
Po materskej škole Guliver, ktorá v roku 2016 získala CE.ZA.AR aj Cenu Dušana Jurkoviča si pre rovnakého investora pracoval na projekte a realizácii základnej školy. Ako sa pretavili vaše predchádzajúce skúsenosti do aktuálneho projektu?
RM: Dá sa povedať, že práca na projekte základnej školy bola úplne odlišná od predošlého zadania, naozaj iba klient zostal pôvodný. Platí to z pohľadu prístupu architekta, aj z prístupu k problematike tejto typológie. Keď som dokončil stavbu materskej školy - čo obnášalo vymyslieť, nakresliť a zhotoviť ju - ešte bez akýchkoľvek úvah o možných oceneniach som mal pocit, že to bola jedna z najväčších výziev v mojom profesionálnom živote.
Zadanie základnej školy bolo neočakávané, avšak vítané. Chcel som si postaviť jasné pole pôsobnosti architekta, ako tvorcu idey, projektu a dohľadu, no znovu to dopadlo tak, že okrem vymyslenia a nakreslenia sa podieľame aj na manažmente výstavby. Nie je to o núdzi na strane klienta, alebo zhotoviteľov - ak má mať stavba pre verejnosť detail rodinného domu, musíme si to ustrážiť.
Aké slovo mal architekt pri výbere pozemku a formovaní zadania lokalitného programu?
RM: Pozemok bol vopred daný. Banská Štiavnica je malé mesto. Rozvojové plochy pre verejné stavby sú obmedzené. Na pozemku chcel klient v minulosti postaviť polyfunkčné centrum. Pozemok je teda s dobrou dopravnou napojenosťou vo formujúcej sa zóne predpolia historického mesta. Od začiatku sme vedeli o tvarovom obmedzení pozemku - ide o osmičku s úzkym driekom. Dokopy je teda výmera slušná, ale sú to vlastne dva pozemky. Tomu je podriadené rozvrhnutie areálu a osadenie stavieb.
Lokalitný program sme našťastie tvorili spolu s klientom, avšak, viackrát došlo k zmene, alebo preformulovaniu zadania, súvisiacej s aktulaizáciou legislatívy, alebo dozretím názoru na strane klienta. Je to pochopiteľné, keďže školu formuje nanovo, nevyužíva žiadne personálne štruktúry existujúcej školy.
Ktoré boli základné východiská tvorby vedúce k prezentovanému výsledku?
RM: Zadanie znelo jasne - vytvoriť budovu rovnakej, alebo vyššej kvality ako Materská škola Guliver. Neviem, či si klient v tom čase uvedomoval do čoho ideme, pretože základná škola je niekoľkonásobne rozsiahlejší a komplikovanejší projekt. Nakoniec sme však zadanie splnili a postavili sme areál, ktorý má detail rodinného domu. Súbor objektov, kde nápady a zaujímavé riešenia nekončia na obryse stavby, ale presahujú celý areál.
Základné piliere architektonického konceptu...
RM: Neviem, či je možná nájsť základné piliere... Tvorba budovy v relatívne chaoticky urbanizovanom prostredí, bez zjavnej línie výrazov u okolitej architektúry, tvorba budovy pre špecifickú verejnosť - deti, navyše s prevádzkou, ktorá by mala pružne reagovať na zmeny v prístupe k výuke alebo legislatívne zmeny v budúcnosti je založená na širokom spektre vplyvov, ktoré viedli k jednoduchému konceptu. Areál sme rozdelili na dve časti. Časť pre šport a odstavné plochy pre parkovanie automobilov a časť pre samotnú školu so školským dvorom. Ich rozhranie pretína lávka spájajúca dve ulice, ktoré obiehajú školský areál. Terén okolo školy sme zdvihli tesne pod úroveň priliehajúcej hlavnej dopravnej komunikácie, aby sme budovu dostali do správnej výšky. Objemové kalkulácie priestorových nárokov lokalitného programu určili koľko z hmoty pôjde pod terén a čo bude viditeľné. Na teréne sme spravili peknú krabicovú architektúru. Zložitosť usporiadania a rôzne výškové úrovne priliehajúceho upraveného terénu na malom pozemku vytvárajú na styku exteriéru a interiéru odlišné priestorové scenáre. Zvonku je vnímateľné rozdelenie na dve základné časti - školu s rozmernými preskleniami ukrytú za napnutou membránou a telocvičňu - ako utilitárný objem bieleho kvádra, usadenú na zakopanú bazénovú halu. Od začiatku sme vedeli, že architektúra by nemala byť expresívna, malo by ísť o kompozíciu objemov správnej mierky a proporcie.
Na ktoré aspekty prevádzky kladie zvolený koncept dôraz?
RM: V zásade ide hlavne o pokrytie všetkých potrieb hlavných užívateľov - žiakov. Vytvoriť podnetné prostredie zo skutočných materiálov. Výrazovým prvkom pripisovať primeranú dôležitosť. Vytvoriť zaujímavé priestorové vzťahy pre uľahčenie komunikácie a priestorovej orientácie. Ponúknuť vybavenie stavby a kvalitu prostredia na súčasnej úrovni. Mnoho z noriem a vyhlášok k školským stavbám je zásadne prežitých a dotiahnutie súčasnej predstavy architekta do reality je náročný boj, či kľučkovanie v dovolených medziach. Mnoho síl sme minuli práve na nájdenie riešení ako splniť požiadavky autorít a zároveň z toho nespraviť väzenie pre deti. Ale zostal priestor aj na gestá - máme krásne priehľady do exteriéru, zaujímavý vnútorné usporiadanie posunutých podlaží. Koncept dotvára pohľadový betón a priestorovo tvarovaná membrána na fasáde...
Čo vnímaš ako najväčšie rezervy súčasných školských stavieb na Slovensku? V čom si môžeme naopak zobrať príklad zo zahraničia?
RM: Životnosť stavieb sa predlžuje vykonávaním údržby a opráv. V prevažnej miere sa akékoľvek zásahy do existujúcich školských budov sústreďovali na vylepšenie stavebno-technického riešenia objektov. Na okraji záujmu a finančných možností je zmena dispozičného a priestorového usporiadania interiérov s ohľadom na nové progresívne formy výuky. Pritom “posledné” školské stavby z konca 80. rokov by takéto zmeny umožňovali.
Špecifickým prvkom stavby je napnutá textilná fasáda. Vzťah k architektonickému konceptu, výhody/nevýhody, praktické skúsenosti...
RM: Rozsah presklenia učební a nadpriemerná zraková pohoda vyžaduje aj systém účinného tienenia. Od počiatku návrhu sme vedeli, že tienenie bude najvýraznejším architektonickým prvkom objektu. Jeho výber sme podriadili kritériám minimálneho obmedzenia výhľadu, zásadnému obmedzeniu prenosu solárnej zložky slnečného žiarenia do interiéru a mäkkým tieňom v interiéri, ktoré neunavia detské oči. Špecifická membrána je z tohto pohľadu ideálny materiál. Priestorové tvarovanie pomáha membráne udržať konštantné napnutie My sme dostali možnosť navrhnúť jeho výraz. Zvolili sme raster lineárnych výtlačných prvkov, ktoré vytvárajú na fasáde sériu horizontálnych hrebeňov a údolí. Výsledný výraz je univerzálny. Ako architekti sme s ním spokojní. Užívatelia a okoloidúci si ho pripodobňujú k rôznym abstraktným i skutočným formám. Vytvára tvorivú diskusiu, tak je to snáď dobrá architektúra.
Ekologický koncept stavby…
RM: Základný zdroj tepla a chladu je séria monoblokových tepeplných čerpadiel, ohrev teplej úžitkovej vody prebieha pomocou solárnych kolektorov. Podzemná tlaková voda, ktorá by mohla negatívne ovplyvňovať konštrukcie stavby pod terénom je odčerpávaná inteligentným systémom do zásobných nádrží, ktoré sú využité na zavlažovanie areálu. Všetky strechy objektu sú pokryté extenzívnymi zelenými strechami pre zamedzenie prehrievania okolia. Inteligentný systém riadenia budovy automaticky reaguje na preslnenie, tepelné zisky, vnútornú pohodu a obsah CO2 v interiéroch a bez potreby zásahu užívateľa reguluje vnútorné prostredie objektu, či už vetraním a klimatizovaním priestorov, ich zatemňovaním, alebo nastavením správnej intentizy umelého osvetlenia...
Ergonómia tried, učební a spoločných priestorov. Zvolené princípy a riešenia…
RM: Každá trieda spĺňa požiadavky na súčasnú výuku 24 žiakov v štandardnom ročníku. Jednotlivé triedy sú v objekte školy zoskupené maximálne v trojiciach na jednom polpodlaží. Spolu s predpriestorom s chill-out zariadením, zariadením pre prácu v tímoch a príslušnými šatňami vytvárajú prvok “klastra”. Takéto klastre sú v škole štyri. Škola nemá chodby. Klastre, alebo polpodlažia sú pospájané ramenami pobytového schodiska. Kompaktné toalety sú umiestnené v rámci komunikačného jadra a roztrúsené po celej budove, čím zamedzujú vytvoreniu priestorov na nechcené zoskupovanie žiakov. Pri návrhu interiérov sme tiež “bojovali” s platnými predpismi, ktoré sú v rozpore s praxou v zahraničí. Experimentovali sme s výškou madiel zábradlí, kľučiek, umývadiel. Mali sme vypracovanú rozsiahlu štatistiku priestorových nárokov a rozmerov detí rozdielneho veku. Pokryť požiadavky na užívateľov vo veku od 6 do 15 rokov, teda v čase keď dochádza k prudkému rastu, bolo náročné.
Vybavenie a infraštruktúra školy...
RM: Budova je navrhnutá v inteligentnom štandarde. Z pohľadu žiaka (ale aj personálu) to okrem toho, že sa budova stará o kvalitu vnútorného prostredia znamená, že prístupy do areálu, objektu, ale aj jednotlivých vnútorných priestorov a šatňových skriniek sú sledované a mapujú dochádzku a pohyb užívateľov. Na základe toho bude prevádzka odbremenená od triednych kníh, evidencie obedov, hľadania žiakov a stratených kľúčov... Systém je otvorený a umožňuje neustále zlepšovanie a rozširovanie rozsahu ponúkaných kontrol a výstupov, čo je základný krok k limitovaniu fyzických výstupov školskej agendy.
Exteriér...
RM: Naše pôsobenie už obvykle nekončí na päte budovy. Budova je ponorená do vonkajšieho parku, malého zeleného námestia s parkovou úpravou a vzrastlými drevinami. Účelné rozvrhnutie funkčných plôch, drobný mobiliár spolu s univerzálnymi agility zostavami vytvára mikrourbanizmus, ktorý na okolie pôsobí ako malý campus.
Interiér a zariadenie. Použité riešenia, atypy…
RM: Nosným motívom interiéru je rovnoramenný trojuholník formovaný do polygonálnych vzorov. Takáto štruktúra nám dáva široké spektrum možností na vytvorenie rôznych scenárov, ktoré tak priestory vedia odlíšiť, ale zároveň je prítomná jedna vizuálna identita. Asi najúdernejšie pôsobí vzor na atypickom akustickom podhľade, kde jednotlivé lamely akustických absorbérov vytvárajú trojuholníkový ornament na sivom podklade oceľového ťahokovu. Absorbéry sú zároveň v špecifických polohách nosiče lineárnych svietidiel - každý priestor má tak vytvorený špecifický vzor vnímateľný pri zapnutom osvetlení. Plochy polygónov sú najviac vnímateľné na šatňových skrinkách, ktoré tvoria dominantu klastra. Mix farieb je farebným kódom, ktorý pomáha pri orientácii v budove. V týchto farebných odtieňoch je dodané aj “kupované” vybavenie, ktoré sme vytipovali od dodávateľov zo svereských štátov. Veľkú dôležitosť pripisujeme kvalite použitých materiálov zabudovaného interiéru. Hoci je to na základnej škole experiment, presvedčili sme klienta aj pre využitie skutočného dreva (pobytové schody, obklady stien, dverné krídla) s dôverou, že kvalitný a hodnotný materiál (interiér) dokáže formovať vzťah užívateľa k nemu a vnímať jeho hodnoty.
Uvedenie školy do prevádzky. Časový harmonogram, skúšobná prevádzka, prvé skúsenosti…
RM: Škola mala dnes už dva roky fungovať… no omeškania počas výstavby a dva roky s Covid-19 karanténami spravili svoje. Na druhej strane však klientovi, ktorý nikdy neprevádzkoval školu, umožnili objekt dostatočne zažiť, vnímať jeho danosti pre vytvorenie súvisiacej náplne. Ešte pred začatím prevádzky sme dostali spätnú väzbu pre vyladenie stavby.
Dajú sa charakterizovať rozdiely pri tvorbe školských budov pre súkromného a verejného investora (výhody / nevýhody)?
RM: Iste - obmedzenia v štátnej sfére sú stále zjavné. Na druhej strane sa oproti minulosti u nás aj vo verejnom sektore o dosť viac súťažia návrhy, čo je super, stále však vnímam priepasť medzi návrhom a realizáciou, kde sa môže stať množstvo chýb a "osekanie" konceptu o hodnotné prvky návrhu. Stavať pre súkromného klienta, ktorý rozumie poľu pôsobnosti architekta je radosť.
Štandardná pozícia architekta v procese prípravy a realizácie stavieb je “nakresliť projekt”. Pri dielach, ktoré zašli ďalej, ako je štandard, obvykle architekt vkladá do tohto procesu viac. Nielen kreslí a “projektuje”, ale aktívne sa podieľa aj na iných procesoch prípravy a realizácie. Na čom všetkom si pracoval?
RM: Dlhodobá pozitívna spolupráca s klientom môže priniesť vytvorenie presahov profesie architekta do iných profesií spojených s výstavbou. U nás je škola prvým komplexným projektom, ktorý sme vymysleli, nakreslili, vytendrovali a ako zástupcovia klienta s vybranými zhotoviteľmi postavili. Neštandardnosť situácie, keď pri výstavbe zastupuje klienta architekt priniesla zložité situácie do zažitého systému výstavby, ale aj obrovský benefit pre klienta, ktorý nám dôveroval, že za investované prostriedky dostane skutočne to najlepšie. Získali sme obrovské skúsenosti z realizácie a naučili sa robiť čo najkomplexnejšie projekty, aby sme vyplnili všetky “hluché” miesta, ktoré sa medzi projektom a realitou niekedy nájdu. Vyžaduje to silné personálne nasadenie, denný pohyb na stavbe, množstvo debát, konfliktov, ponaučení… a chuť to znovu opakovať. Moja úcta patrí našim projekčným partnerom, vedeniu stavby a všetkým zhotoviteľom, ktorí to s nami vydržali.
Myslíš, že takáto hlbšia spolupráca a partnerstvo by mali byť bežné (častejšie)?
RM: Asi to bude vecou konkrétneho prípadu. Pre mňa to je otázka potenciálu stavby, komplexne počnúc klientom, zadaním, prostredím. Keď získam pocit, že má zmysel urobiť ten krok naviac oproti roli architekta, idem do toho v snahe priblížiť sa pomyselnej latke dokonalosti. Myslím, že to tak má väčšina architektov, každý si ten presah nastaví sám.
Riziká a benefity angažovania sa architekta aj v “mimoprojektových” fázach…
RM: Totálny deficit času a obrovská miera zodpovednosti.
Osobný pohľad na posledné roky strávené za týmto projektom. Čo Ti tento čas dal, a čo zobral?
RM: Keď si odmyslím všetky praktické veci ako sú skúsenosti, kontakty, zodpovednosť, je to množstvo opakujúcich sa pocitov zadosťučinenia. Keď sa podaril prvý pohľadový betón, keď sa natiahla membrána, keď sa dokončili akustické obklady, keď sa zapli prvý krát svetidlá a ešte veľa “keď”, ktoré keď sa stali, potešili tím architektov, ktorí ich vymysleli viac ako akákoľvek výplata (aspoň dúfam). Je to dôsledok toho, že ide o stavbu vypiplanú ako malé dieťa. Na to čo mi vzal, radšej nemyslím.
Kapacity:
štruktúra:
Podklady: RMAA
Použité materiály a riešenia:
Presklené fasády (1 700 m2) zo systému Schüco FWS 50, s vloženými a samostatne osadenými oknami Schüco AWS 75.SI+ a dverami ADS 75.SI.
Akustické podhľady: HERADESIGN® Creative Line | Wood Wool Acoustic Panel, METAL-MESH Solutions od spoločnosti Knauf Ceiling Solutions, Slovensko