Na podujatí sa predstaví až 37 vystavovateľov - popredných dodávateľov stavebných materiálov a inovácií s prezentáciou...
Novotvar v prostredí alpskej obce.
Hansgrohe - prémiová značka kúpeľňových riešení, ponúka nadčasový dizajn, technickú precíznosť a udržateľné inovácie...
Využite špeciálnu akciu Internorm: okná za minuloročné ceny a hliníkový kryt úplne zadarmo. Ponuka je časovo obmedzená!
Sumarizácia najdôležitejších inovácií, ktoré redefinujúcich využitie tohto energetického zdroja.
AMPHIBIA 3000 GRIP 1.3 od spoločnosti ATRO predstavuje modernú hydroizolačnú technológiu, ktorá spája vysokú odolnosť,...
Ambiciózne plány EK narazili na ekonomické možnosti domácností v jednotlivých členských štátoch –...
IDEA DOOR od spoločnosti JAP prináša do interiéru čistý minimalistický vzhľad vďaka bezrámovému riešeniu a precíznej...
Kontinuita riešenia od vonkajšieho obkladu až po kovania a kľučky.
Nástenné nadomietkové armatúry Vitus sú mimoriadne vhodné pre rýchlu a efektívnu...
Okenné profily z kompozitného materiálu RAU-FIPRO X od spoločnosti Rehau sú v porovnaní s tradičnými plastovými profilmi mnohonásobne...
Najnovší sortiment stolov pre zariadenie interiérov...
Spojenie moderného dizajnu, funkčnosti a svetla do harmonického architektonického prvku.
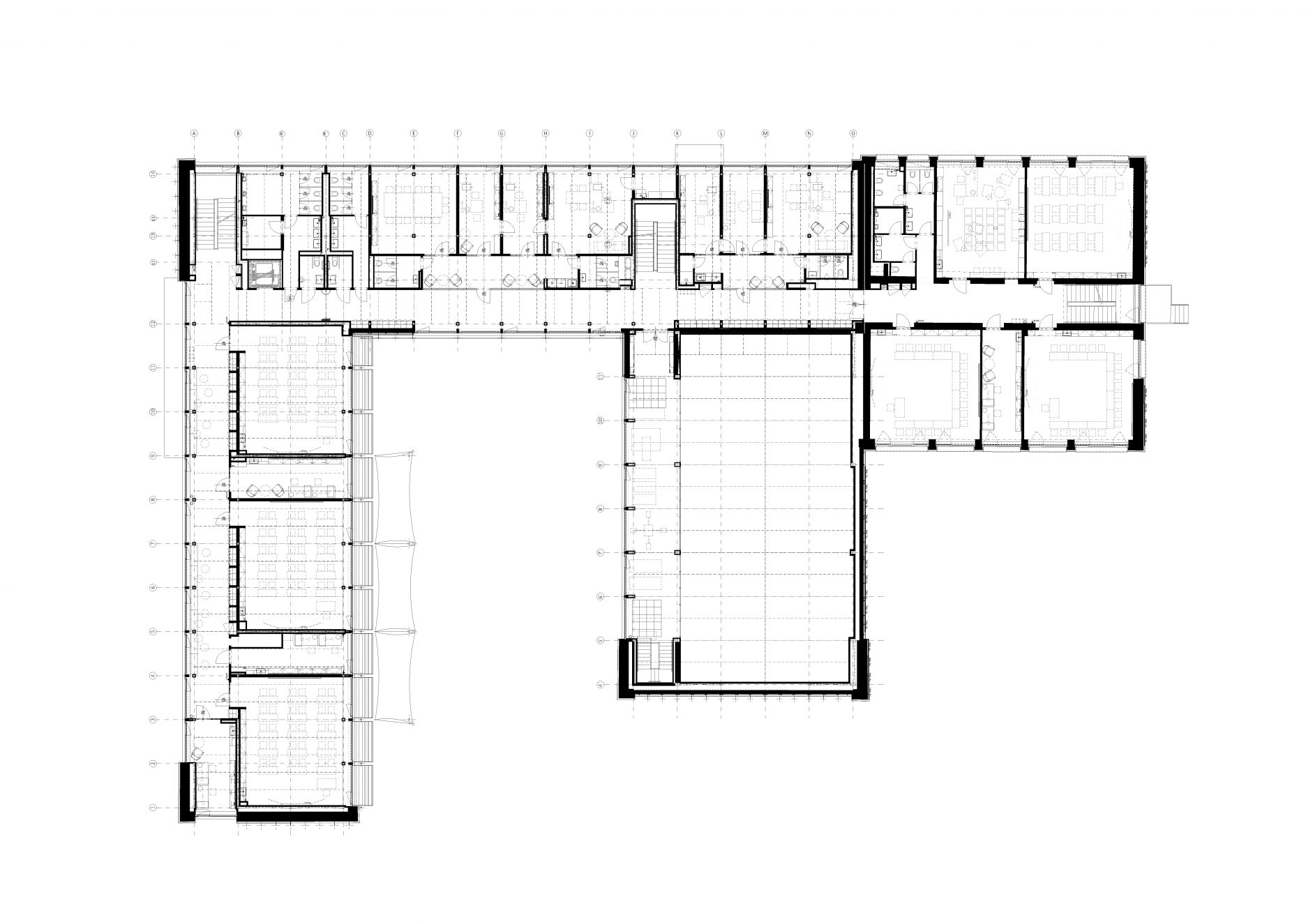
Kancelárska budova Baumit v slovinskom Trzine prešla premenou na moderné a udržateľné pracovisko. Architekti kládli dôraz...
Mottom šiesteho ročníku on-line konferencie odborníkov Xella Dialóg je Efektívny návrh budov 2025+: zmeny a riešenia

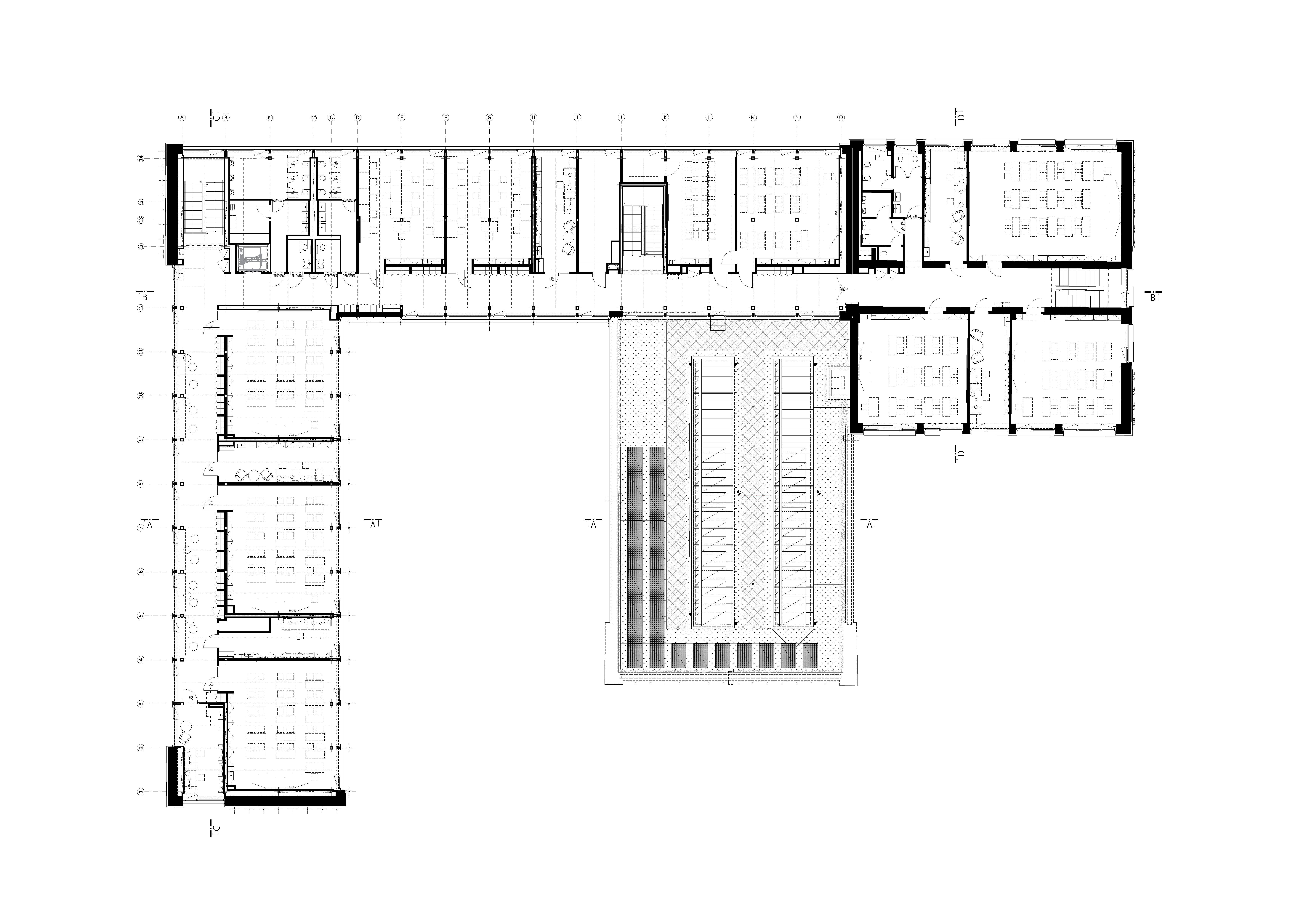
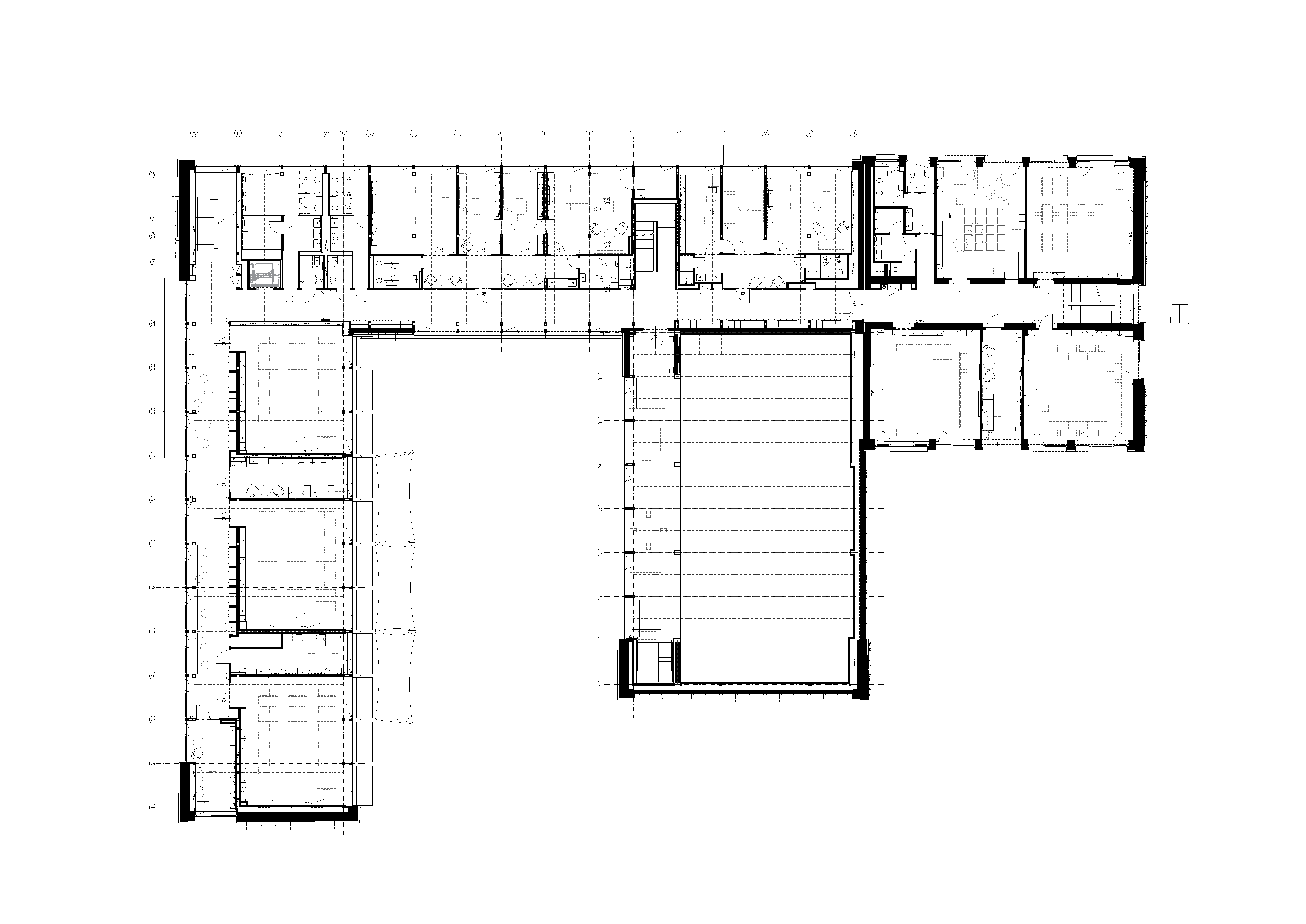
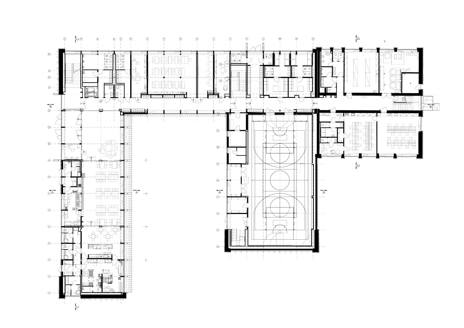
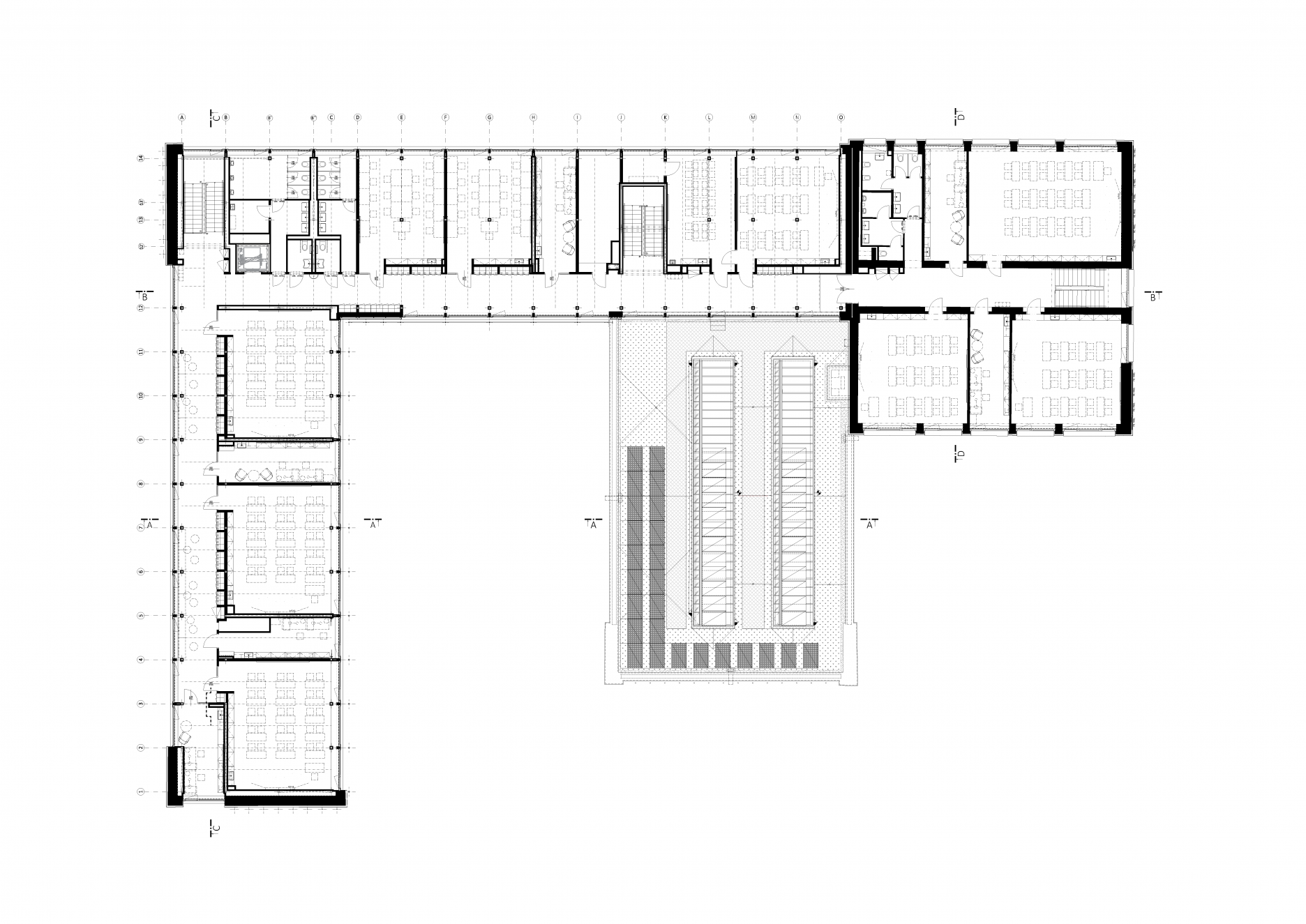
Transformácia školy zo 70. rokov minulého storočia na modernú vzdelávaciu inštitúciu. Pilotný projekt pod hlavičkou hl. mesta. Prahy ukazuje možnosti komplexnej revitalizácie objektov z druhej polovice XX. storočia v súlade s plánovanou európskou taxonómiou zero-emission buildings a iniciatívou New European Bauhaus.
Kostru pôvodnej stavby tvoril oceľový skelet a stropná konštrukcia z trapézových plechov a betónu. Dobové riešenie vnútorných priečok a obvodového plášťa zo sendvičových panelov so sadrovláknitými doskami sa nezaobišlo bez použitia azbestu. Nebezpečný materiál sa objavil aj v podhľadoch a strešnej krytine. Nehospodárna prevádzka a chyby stavebných konštrukcií, ktoré spôsobovali prehrievanie priestorov a zatekanie do interiéru vyžadovali komplexné riešenia.
Namiesto zbúrania pôvodného objektu a jeho nahradenia novostavbou pristúpil investor v spolupráci s architektmi k jeho dôslednej obnove. Nešlo iba o prvoplánovú výmenu konštrukcií a zlepšenie vlastností obvodového plášťa. Projekt pristupuje k pojmu “udržateľnosť” v značne širšom zábere. V očiach architektov znamená napríklad pretvorenie pôvodnej chodbovej dispozície na otvorené prostredie, ktoré podporuje interakcie študentov, alebo variabilitu priestorového usporiadania, pripraveného na budúce zmeny…
Nosná konštrukcia ostala zachovaná. Plášť po rekonštrukcii tvorí ľahká drevená zavesená fasáda ENVILOP, vyvinutá v rámci aplikovaného výskumu ČVUT. Vertikálny obklad zo sibírskeho smrekovca dopĺňajú plochy obložené cementovými doskami. Objekt tak po rekonštrukcii poľahky dosahuje pasívny štandard. Do polohy plusovej stavby ho posúva vlastná fotovoltická elektráreň. Budova začína postupne obrastať popínavou zeleňou, ktorá okrem iného prispieva k tieneniu exponovaných okien.
Technológie:
Podklady: Pavel Šulc
Fotografie: Martin Micka