Na podujatí sa predstaví až 37 vystavovateľov - popredných dodávateľov stavebných materiálov a inovácií s prezentáciou...
Novotvar v prostredí alpskej obce.
Hansgrohe - prémiová značka kúpeľňových riešení, ponúka nadčasový dizajn, technickú precíznosť a udržateľné inovácie...
Využite špeciálnu akciu Internorm: okná za minuloročné ceny a hliníkový kryt úplne zadarmo. Ponuka je časovo obmedzená!
Sumarizácia najdôležitejších inovácií, ktoré redefinujúcich využitie tohto energetického zdroja.
AMPHIBIA 3000 GRIP 1.3 od spoločnosti ATRO predstavuje modernú hydroizolačnú technológiu, ktorá spája vysokú odolnosť,...
Ambiciózne plány EK narazili na ekonomické možnosti domácností v jednotlivých členských štátoch –...
IDEA DOOR od spoločnosti JAP prináša do interiéru čistý minimalistický vzhľad vďaka bezrámovému riešeniu a precíznej...
Kontinuita riešenia od vonkajšieho obkladu až po kovania a kľučky.
Nástenné nadomietkové armatúry Vitus sú mimoriadne vhodné pre rýchlu a efektívnu...
Okenné profily z kompozitného materiálu RAU-FIPRO X od spoločnosti Rehau sú v porovnaní s tradičnými plastovými profilmi mnohonásobne...
Najnovší sortiment stolov pre zariadenie interiérov...
Spojenie moderného dizajnu, funkčnosti a svetla do harmonického architektonického prvku.
Kancelárska budova Baumit v slovinskom Trzine prešla premenou na moderné a udržateľné pracovisko. Architekti kládli dôraz...
Mottom šiesteho ročníku on-line konferencie odborníkov Xella Dialóg je Efektívny návrh budov 2025+: zmeny a riešenia

Budova školy dokončená v roku 1970 prešla nedávno komplexnou rekonštrukciou. Kvalitná architektúra reprezentujúca periódu svojho vzniku trpela aj mnohými dobovými neduhmi, ktoré obmedzovali jej plnohodnotné využitie v súčasnosti. Cieľom obnovy bolo hlavne zníženie energetických strát a zlepšenie vnútorného prostredia stavby. Budova patriaca pred rekonštrukciou do kategórie E tak v súčasnosti spadá medzi stavby s takmer nulovou potrebou energie (AO). Napriek zatepleniu je stále jasne čitateľná pôvodná architektonická kompozícia.
História
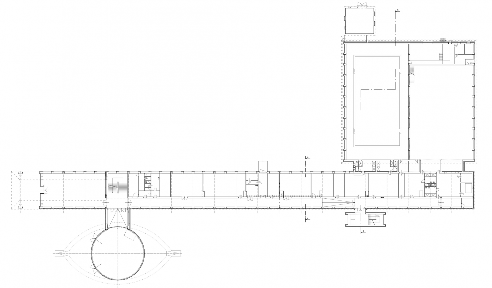
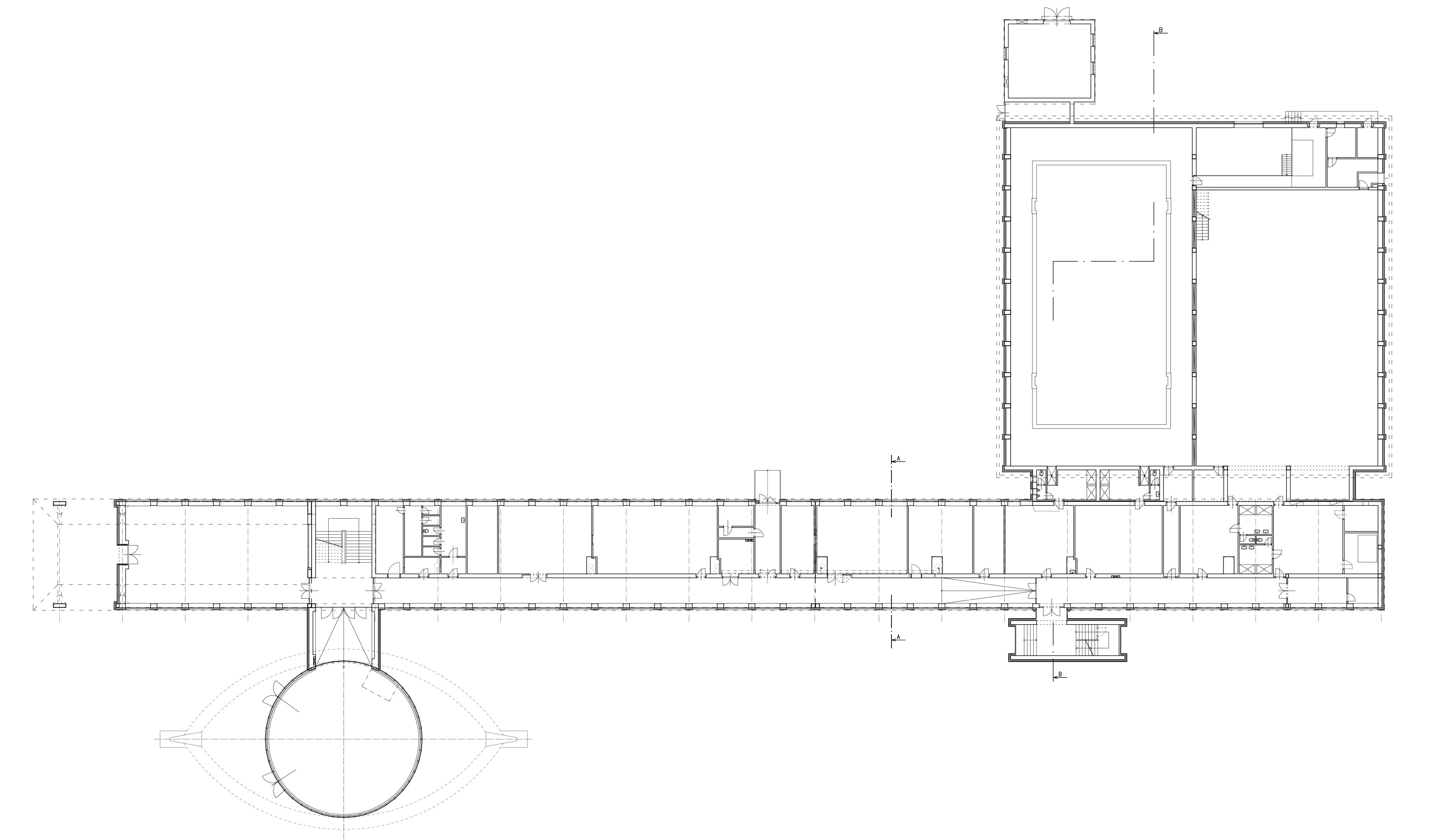
Stredná odborná škola Emila Belluša je súčasťou školského areálu v trenčianskej mestskej časti Zlatovce. Autorom školy dokončenej v roku 1970 je architekt Milan Rastislav Šavlík (1928-2003), držiteľ ceny Dušana Jurkoviča a jeden zo zakladajúcich členov Slovenskej komory architektov. Stavba projektovaná ešte v uvoľnenej atmosfére konca šesťdesiatych rokov nesie výrazné znaky neskorej moderny. Štíhly štvorpodlažný monoblok školy (10x130m) dopĺňa šošovkovitý vstupný pavilón prestrešený zavesenou lanovou konštrukciou a nižší štvorcový trakt s bazénom a telocvičňou. Nosnú konštrukciu tvorí v administratívnej časti priečna rámová oceľobetóvová monolitická konštrukcia, v učebnej časti kombinovaný pozdĺžny murovaný systém s monolitickým oceľobetónovým pozdĺžnym rámom (konštrukčná výška 3,45m, modul 6,9 + 3/6,0m). Charakteristickým autorským riešením je presklená fasáda orientovaná na sever. Veľkorysé presklenie, členené subtílnymi rámami, dostatočne presvetľuje všetky chodbové trakty budovy spájajúce učebne a zároveň poskytuje takmer neobmedzený vizuálny kontakt s exteriérom.
Zníženie energetickej náročnosti bez výrazného zásahu do pôvodného architektonického konceptu
Cieľom komplexnej rekonštrukcie a modernizácie bolo výrazné zníženie energetickej náročnosti prevádzky stavby a zlepšenie vnútorného prostredia. Dôležitým faktorom zohľadneným pri návrhu a realizácii bolo tiež zachovanie čitateľnosti pôvodného architektonického riešenia. Výsledný vizuál zachováva tektoniku i členenie fasád, vrátane členenia výplní otvorov. Najdôležitejším rozhodnutím z kompozičného hľadiska bolo zachovanie presklenej fasády orientovanej na sever, aj napriek vyššej energetickej náročnosti. Ako nová vrstva je navrhnutá metalická odvetraná fasáda s farebne akcentovanými komunikačnými priestormi (krčky, vedľajšie únikové schodisko). K výraznej úprave došlo na južnej fasáde, kde boli lineárne železobetónové markízy (nevyhovujúce tepelné mosty) nahradené systémom fixného horizontálneho tienenia s prerušením tepelného mosta v kotvení.
Rekonštrukcia v číslach:
Pred rekonštrukciou:
Spotreba tepla: 858,9 MWh/rok
Spotreba elektrickej energie: 136,7 MWh/rok
Energetická trieda: E
Ročné náklady na energie: 87 600 €
Po rekonštrukcii:
Spotreba tepla: 192,15 MWh/r (-77%)
Spotreba elektrickej energie: 82,2 MWh/r (-60%)
Energetická trieda: AO
Náklad obnovy: 70 €/m3
Ročné náklady na energie: <30 000€/rok
Ako sa to podarilo?
Výsledkom integrovaného prístupu k navrhovaniu, zahŕňajúcemu simulácie pre hľadanie nákladového optima, je súbor progresívnych technológií a riešení.
Redukcia tepelných strát a nákladov na vykurovanie:
Ohrev vody:
Osvetlenie:
Vetranie:
Na základe simulačných predpokladov, je potenciál úspor viac ako 50 tisíc € za rok, pri súčasnom zlepšení vnútorného prostredia stavby. Čo je ambiciózne číslo. Reálna úspora bude priebežne vyhodnocovaná meracím a monitorovacím systémom spotreby tepla aj elektriny.
Výkresová dokumentácia projektu:
Podklady: Michal Lešinský, Pio Keramoprojekt