Advertorial

Pozvánka na 2. ročník stavebného veľtrhu BigMarket na Slovensku

Na podujatí sa predstaví až 37 vystavovateľov - popredných dodávateľov stavebných materiálov a inovácií s prezentáciou...

Hotel Hirschen Spa House, Rakúsko

Novotvar v prostredí alpskej obce.

Vytvorte si kúpeľňu snov: dizajnové riešenie od značky hansgrohe

Hansgrohe - prémiová značka kúpeľňových riešení, ponúka nadčasový dizajn, technickú precíznosť a udržateľné inovácie...

Okná Internorm za minuloročné ceny + hliníkový kryt zdarma!

Využite špeciálnu akciu Internorm: okná za minuloročné ceny a hliníkový kryt úplne zadarmo. Ponuka je časovo obmedzená!

Moderné plynové technológie: Efektivita a inovácie pre 21. storočie

Sumarizácia najdôležitejších inovácií, ktoré redefinujúcich využitie tohto energetického zdroja.

Utesňovanie spodných stavieb pomocou hydro-aktívnej fólie AMPHIBIA.

AMPHIBIA 3000 GRIP 1.3 od spoločnosti ATRO predstavuje modernú hydroizolačnú technológiu, ktorá spája vysokú odolnosť,...

Dekarbonizácia individuálneho vykurovania domácností – Green Deal evolučne a nie revolučne

Ambiciózne plány EK narazili na ekonomické možnosti domácností v jednotlivých členských štátoch –...

Minimalistické dvere IDEA – technická precíznosť a čistota prevedenia

IDEA DOOR od spoločnosti JAP prináša do interiéru čistý minimalistický vzhľad vďaka bezrámovému riešeniu a precíznej...

Dom s výhľadom na údolie, Dlouhý Most (ČR)

Kontinuita riešenia od vonkajšieho obkladu až po kovania a kľučky.

Schell Vitus – osvedčené riešenie pre sprchy a umývadlá vo verejnom sektore s viac ako desaťročnou tradíciou

Nástenné nadomietkové armatúry Vitus sú mimoriadne vhodné pre rýchlu a efektívnu...

Kompozitné okná predstavujú súčasnosť a budúcnosť

Okenné profily z kompozitného materiálu RAU-FIPRO X od spoločnosti Rehau sú v porovnaní s tradičnými plastovými profilmi mnohonásobne...

Myotis - stoly 2025

Najnovší sortiment stolov pre zariadenie interiérov...

Priemyselné sklenené priečky Dorsis Digero: svetelné rozhranie pre moderné interiéry

Spojenie moderného dizajnu, funkčnosti a svetla do harmonického architektonického prvku.

Význam prirodzeného svetla pre moderné a flexibilné pracovné prostredie

Kancelárska budova Baumit v slovinskom Trzine prešla premenou na moderné a udržateľné pracovisko. Architekti kládli dôraz...

Konferencia Xella Dialóg predstaví novinky a trendy v stavebníctve

Mottom šiesteho ročníku on-line konferencie odborníkov Xella Dialóg je Efektívny návrh budov 2025+: zmeny a riešenia

Prestavba škôlky zo 70. rokov na spoločenské centrum

Prefabrikovaný montovaný skelet ako základ pre moderný polyfunkčný objekt.
Diela
Red 125.01.2018
13940+20
Prestavba škôlky zo 70. rokov na spoločenské centrum
Ateliér: Atelier 38Autori: Ing. arch. Tomáš Bindr, Ing. arch. Petr DoležalZastavaná plocha: 969 m2Návrh: 2010 - 2017Realizácia: 2011 - 2017Adresa: Náměstí sv. Hedviky , Opava, Česká republikaPublikované: 25. január 2018

Pokles počtu narodených detí v 90. rokoch minulého storočia a privatizácia štátnych podnikov zapríčinili zánik mnohých inštitúcií predškolského vzdelávania. Budovu kúpil súkromný investor a začal s jej premenou na živé obchodné a administratívne centrum. Zachovaný železobetónový skelet sa ukázal ako životaschopný a flexibilný rámec pre novú náplň. Konverzia opavskej škôlky je zaujímavá aj v kontexte nedávno prezentovaného Central parku vo Zvolene, ktorý vznikol taktiež prestavbou modulárnej škôlky (tentokrát panelovej). Podobných projektov registrujeme na našom území viacero.

Foto: Roman Polášek
Foto: Roman Polášek
Situácia
SituáciaAutor: Atelier 38

"Školka ze sedmdesátých let minulého století - zapomenuté vzpomínky z dětství, všudypřítomné vzrostlé stromy bývalého hřbitova, zavazující velikáni architektury Leopold Bauer a Bohuslav Fuchs v sousedství," vymenúvajú autori základné tézy a inšpirácie návrhu.

Objekt škôlky, ktorá bola dostavaná v roku 1979 podľa projektu Jana Chvátala tvoril dvojpodlažný objekt so štyrmi triedami spojenými obslužným krčkom s jednopodlažnými objektami varne a kotolne.

"Konstrukce montovaného MSOB skeletu naplnila při přestavbě a nástavbě Le Corbusierovy teze funkcionalismu. Okouzleni tímto zjištěním, co nejvíce jsme se snažili respektovat podstatu stávajících objektů, jen mírně vymazávat a mírně přidávat. A do nekonečna korigovat proporce," objasňuje Tomáš Bindr tvorivý proces.

V súčasnosti v budove sídlia krajčírske dielne, sochársky ateliér s verejným barom, kozmetika, kaderníctvo, fitness. Pečie sa tu pizza, v nadstavbe na poschodí sú kancelárie.

V prvej fáze bola prestavaná dvojpodlažná budova a  vybúraný prepojovací krčok. Čiastočnou premenou prešiel aj exteriér, spevnené a trávnaté plochy. V druhej fáze bola realizovaná prestavba varne, kotolne, prízemná časť bola rozšírená o nadstavbu. Dokončili sa spevnené a trávnaté plochy.

V súčasnej dobe sa pripravuje nadstavba tretieho podlažia s administratívou a bytom majiteľov. Aj na piatu fázu - strešnú terasu časom dôjde...

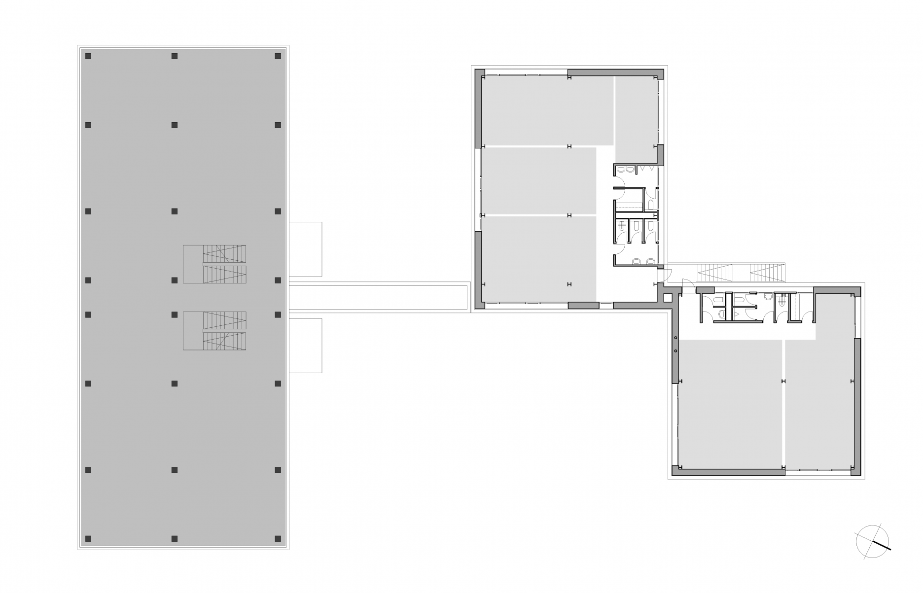
Pôdorys 2. NP
Pôdorys 2. NPAutor: Atelier 38
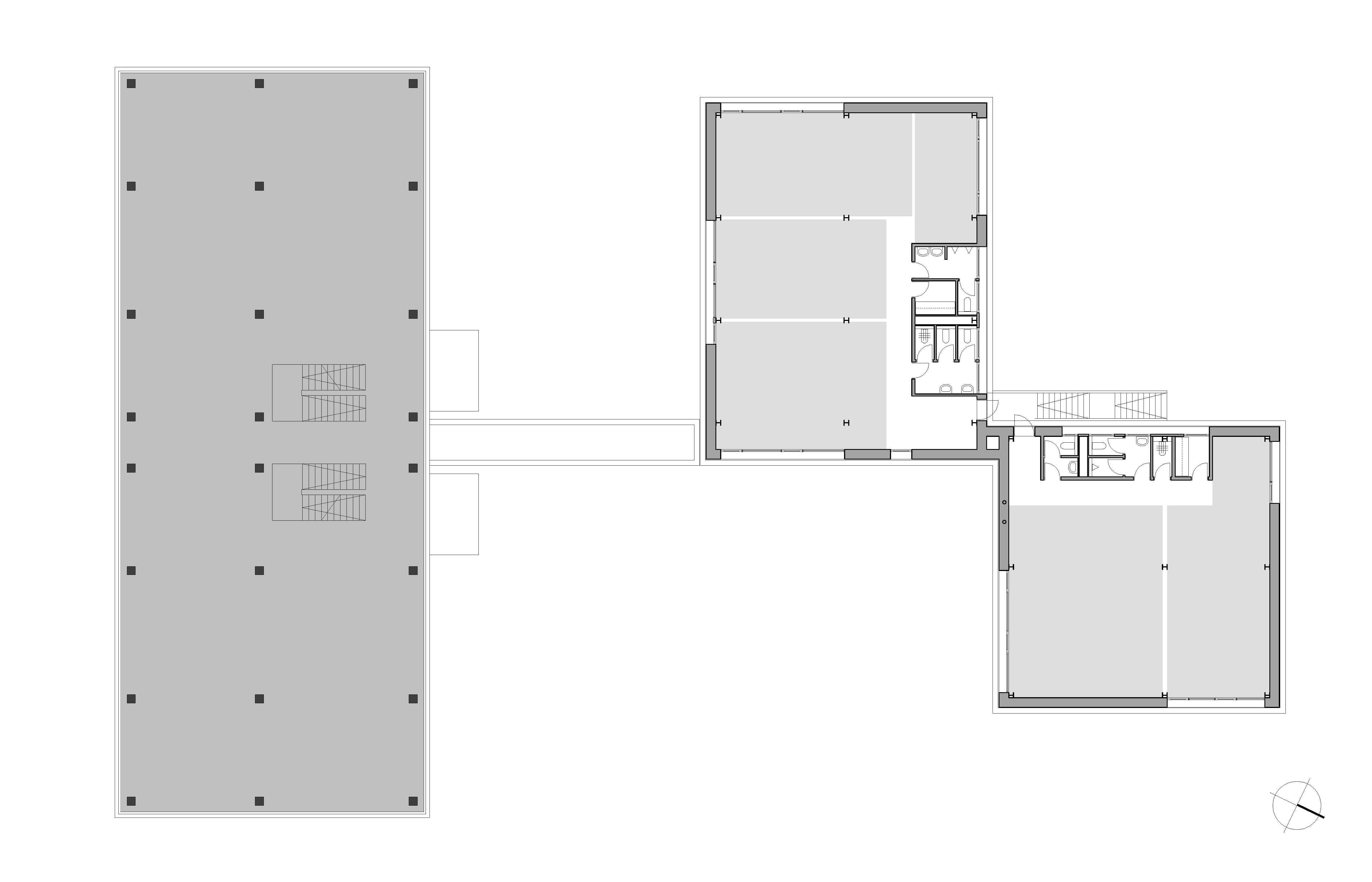
Pôdorys 3. NP
Pôdorys 3. NPAutor: Atelier 38
Rez
RezAutor: Atelier 38
Pohľady
PohľadyAutor: Atelier 38
Pohľady
PohľadyAutor: Atelier 38
Foto: Roman Polášek
Foto: Roman Polášek
Foto: Roman Polášek
Foto: Roman Polášek
Foto: Roman Polášek
Foto: Roman Polášek
Foto: Roman Polášek
Foto: Roman Polášek
Foto: Roman Polášek
Foto: Roman Polášek
Foto: Roman Polášek
Stav škôlky pred rekonštrukciou
Stav škôlky pred rekonštrukciouAutor: Atelier 38

Podklady: Atelier 38

Ateliér

Poloha diela

Ing. arch. Tomáš Bindr
Ing. arch. Petr Doležal

Súvisiace články

Vložené
19. január 2018
0
1394
Hlavný obsahHlavný obsah
Čakajte prosím