Advertorial

Okná Internorm za minuloročné ceny + hliníkový kryt zdarma!

Využite špeciálnu akciu Internorm: okná za minuloročné ceny a hliníkový kryt úplne zadarmo. Ponuka je časovo obmedzená!

Pozvánka na 2. ročník stavebného veľtrhu BigMarket na Slovensku

Na podujatí sa predstaví až 37 vystavovateľov - popredných dodávateľov stavebných materiálov a inovácií s prezentáciou...

Moderné plynové technológie: Efektivita a inovácie pre 21. storočie

Sumarizácia najdôležitejších inovácií, ktoré redefinujúcich využitie tohto energetického zdroja.

Utesňovanie spodných stavieb pomocou hydro-aktívnej fólie AMPHIBIA.

AMPHIBIA 3000 GRIP 1.3 od spoločnosti ATRO predstavuje modernú hydroizolačnú technológiu, ktorá spája vysokú odolnosť,...

Dekarbonizácia individuálneho vykurovania domácností – Green Deal evolučne a nie revolučne

Ambiciózne plány EK narazili na ekonomické možnosti domácností v jednotlivých členských štátoch –...

Minimalistické dvere IDEA – technická precíznosť a čistota prevedenia

IDEA DOOR od spoločnosti JAP prináša do interiéru čistý minimalistický vzhľad vďaka bezrámovému riešeniu a precíznej...

Dom s výhľadom na údolie, Dlouhý Most (ČR)

Kontinuita riešenia od vonkajšieho obkladu až po kovania a kľučky.

Schell Vitus – osvedčené riešenie pre sprchy a umývadlá vo verejnom sektore s viac ako desaťročnou tradíciou

Nástenné nadomietkové armatúry Vitus sú mimoriadne vhodné pre rýchlu a efektívnu...

Kompozitné okná predstavujú súčasnosť a budúcnosť

Okenné profily z kompozitného materiálu RAU-FIPRO X od spoločnosti Rehau sú v porovnaní s tradičnými plastovými profilmi mnohonásobne...

Myotis - stoly 2025

Najnovší sortiment stolov pre zariadenie interiérov...

Priemyselné sklenené priečky Dorsis Digero: svetelné rozhranie pre moderné interiéry

Spojenie moderného dizajnu, funkčnosti a svetla do harmonického architektonického prvku.

Význam prirodzeného svetla pre moderné a flexibilné pracovné prostredie

Kancelárska budova Baumit v slovinskom Trzine prešla premenou na moderné a udržateľné pracovisko. Architekti kládli dôraz...

Konferencia Xella Dialóg predstaví novinky a trendy v stavebníctve

Mottom šiesteho ročníku on-line konferencie odborníkov Xella Dialóg je Efektívny návrh budov 2025+: zmeny a riešenia

Murovací robot WLTR stavia svoj prvý dom na Slovensku

Robot WLTR predstavuje moderný prístup k murovaným konštrukciám. Vďaka automatizácii dokáže rýchlo, presne a bezpečne realizovať...

Nová éra bezpečnosti s I-tec Secure od Internorm

Okrem bezpečnosti majú okná aj elegantný vzhľad, pretože nie sú viditeľné žiadne uzamykacie časti kovania.

Prístavba a rekonštrukcia Katolíckeho gymnázia v Třebíči

Bezbariérový objekt rozširuje priestory gymnázia o chýbajúce odborné učebne a kabinety.
Diela
Red 411.08.2019
12590+18
Prístavba a rekonštrukcia Katolíckeho gymnázia v Třebíči
Autori: Ing. arch. Miloš Klement, Ing. arch. Petr TodorovSpolupráca: Ing. arch. Eva KovářováInvestor: Biskupství brněnskéNávrh: 2016 - 2017Realizácia: 2017 - 2019Adresa: Otmarova 30/22, Třebíč, Česká republikaPublikované: 11. august 2019

Prístavba gymnázia je súčasťou areálu školy, ktorý tvoria budovy bývalého kapucínskeho kláštora. Komplex je súčasťou mestskej časti Jejkov, ležiacej na pravom brehu rieky Jihlava. Nová budova nahradila provizórne jednopodlažné krídlo dielní z obdobia totality.

Urbanistické riešenie vychádza zo zásad usporiadania objektov kláštora. Na južnej strane prístavba sleduje smer bývalej kvadratúry, na severe vytvára vnútorné nádvorie nadväzujúce na vonkajšiu učebňu.

Dvojtraktová dispozičná schéma otvára na prízemí presklené respírium orientované do nádvoria. Na poschodí je chodba orientovaná do otvorenej terasy. Učebne a kabinety sú radené podľa konkrétnych požiadaviek školy.

Architektúra je artikulovaná ako nadväzujúci archetypálny tvar so súdobým výrazom a detailmi. Konštrukcia využíva kombinovaný systém nosných keramických stien a železobetónových stĺpov.

Charakteristické materiály - vápennocementová omietka, cembritové šablóny, vymývané terazzo, hliníkové okná, rosická rula, sivo lakovaná oceľ... Na podlahách je použité svetlé brúsené terazzo a dubové parkety. Dvere a priehľady do učební sú z javorového dreva.

Foto: BoysPlayNice
Foto: BoysPlayNice
Foto: BoysPlayNice
Foto: BoysPlayNice
Foto: BoysPlayNice
Foto: BoysPlayNice
Foto: BoysPlayNice
Foto: BoysPlayNice
Foto: BoysPlayNice
Foto: BoysPlayNice
Foto: BoysPlayNice
Foto: BoysPlayNice
Foto: BoysPlayNice
Foto: BoysPlayNice
Foto: BoysPlayNice
Foto: BoysPlayNice
Foto: BoysPlayNice
Foto: BoysPlayNice
Foto: BoysPlayNice
Foto: BoysPlayNice
Foto: BoysPlayNice
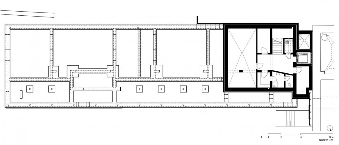
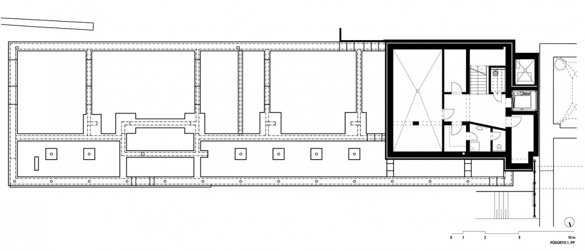
Pôdorys 1.PP,
Pôdorys 1.PP,autor: Atelier Tišnovka
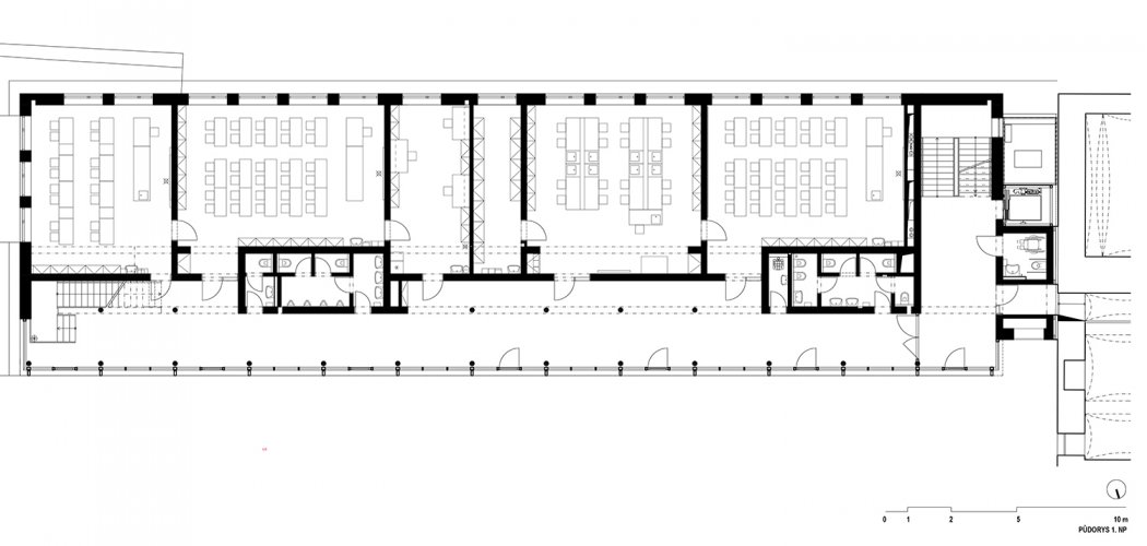
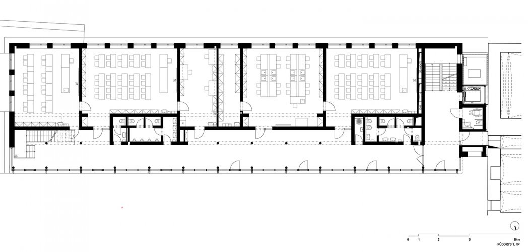
Pôdorys 1.NP,
Pôdorys 1.NP,autor: Atelier Tišnovka
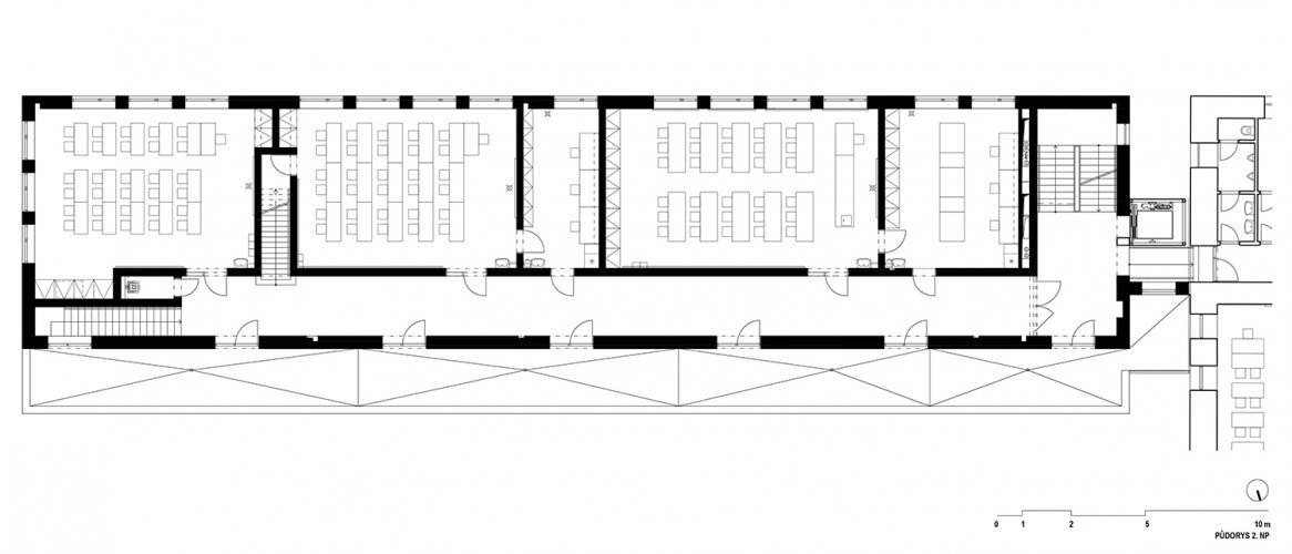
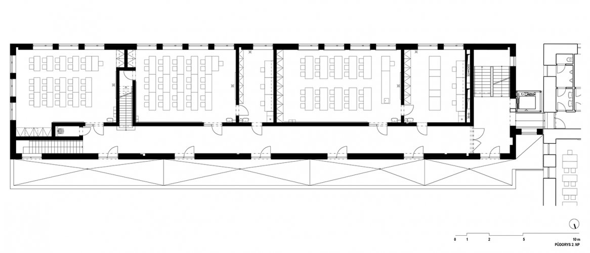
Pôdorys 2.NP,
Pôdorys 2.NP,autor: Atelier Tišnovka
Pôdorys 3.NP,
Pôdorys 3.NP,autor: Atelier Tišnovka
Pohľad juhozápadný
Pohľad juhozápadnýautor: Atelier Tišnovka
Pohľad severovýchodný,
Pohľad severovýchodný,autor: Atelier Tišnovka

Poloha diela

Ing. arch. Miloš Klement
Ing. arch. Petr Todorov

Súvisiace články

Vložené
19. jún 2019
0
1259
Hlavný obsahHlavný obsah
Čakajte prosím