Na podujatí sa predstaví až 37 vystavovateľov - popredných dodávateľov stavebných materiálov a inovácií s prezentáciou...
Novotvar v prostredí alpskej obce.
Hansgrohe - prémiová značka kúpeľňových riešení, ponúka nadčasový dizajn, technickú precíznosť a udržateľné inovácie...
Využite špeciálnu akciu Internorm: okná za minuloročné ceny a hliníkový kryt úplne zadarmo. Ponuka je časovo obmedzená!
Sumarizácia najdôležitejších inovácií, ktoré redefinujúcich využitie tohto energetického zdroja.
AMPHIBIA 3000 GRIP 1.3 od spoločnosti ATRO predstavuje modernú hydroizolačnú technológiu, ktorá spája vysokú odolnosť,...
Ambiciózne plány EK narazili na ekonomické možnosti domácností v jednotlivých členských štátoch –...
IDEA DOOR od spoločnosti JAP prináša do interiéru čistý minimalistický vzhľad vďaka bezrámovému riešeniu a precíznej...
Kontinuita riešenia od vonkajšieho obkladu až po kovania a kľučky.
Nástenné nadomietkové armatúry Vitus sú mimoriadne vhodné pre rýchlu a efektívnu...
Okenné profily z kompozitného materiálu RAU-FIPRO X od spoločnosti Rehau sú v porovnaní s tradičnými plastovými profilmi mnohonásobne...
Najnovší sortiment stolov pre zariadenie interiérov...
Spojenie moderného dizajnu, funkčnosti a svetla do harmonického architektonického prvku.
Kancelárska budova Baumit v slovinskom Trzine prešla premenou na moderné a udržateľné pracovisko. Architekti kládli dôraz...
Mottom šiesteho ročníku on-line konferencie odborníkov Xella Dialóg je Efektívny návrh budov 2025+: zmeny a riešenia

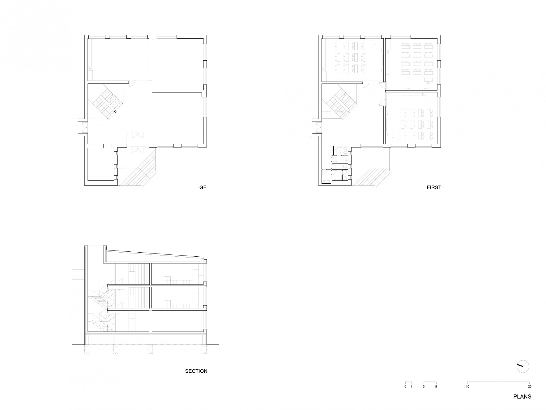
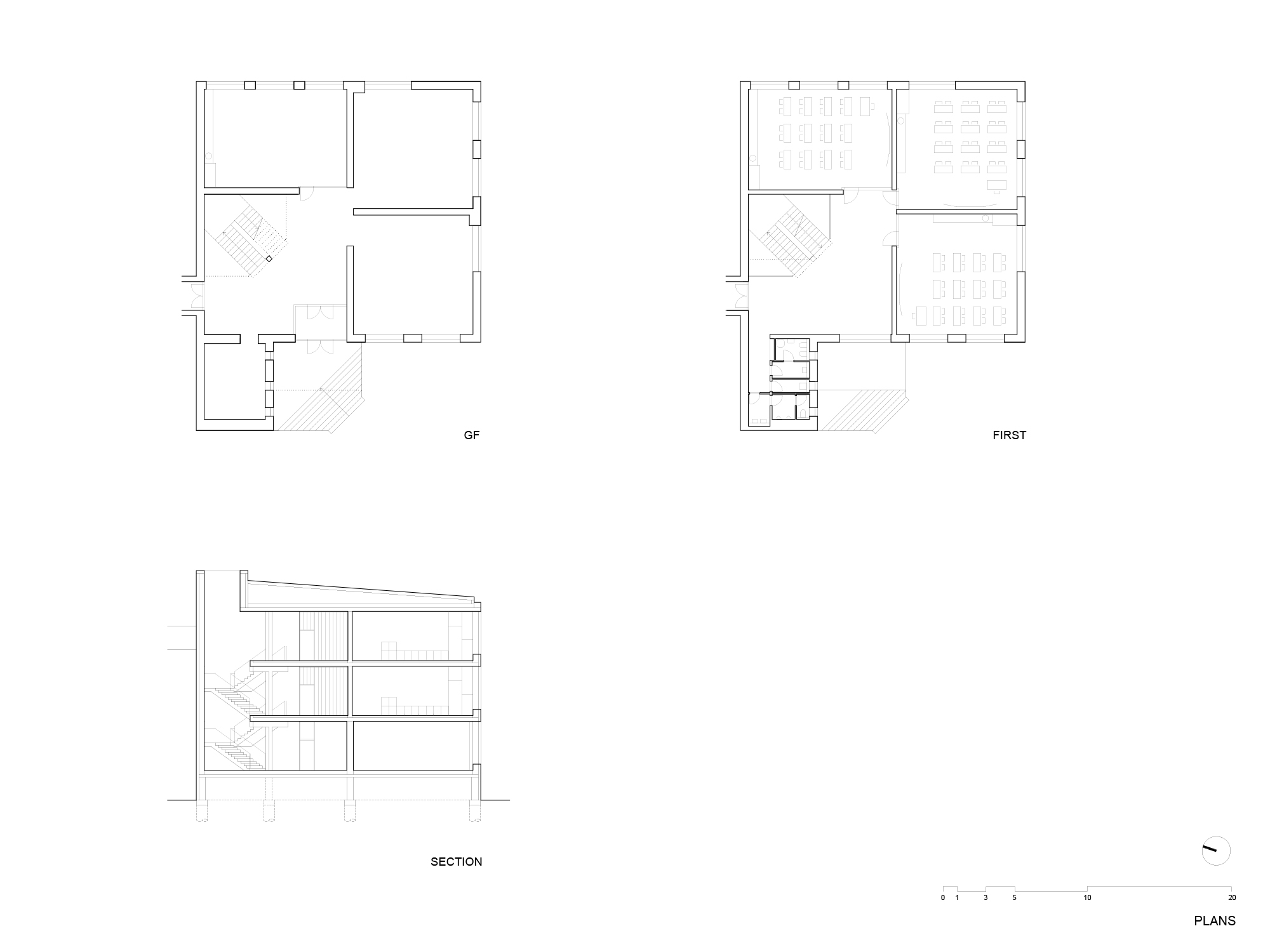
Koncepčné uvažovanie architektov. Netradičná dispozícia. Svieži pohľad na “ergonómiu” učební. Autori sa neuspokojujú so štandardnou priestorovou schémou. Hľadajú nové prevádzkové a funkčné usporiadanie. V našich končinách riešenie takmer nevídané. Najmä, ak ide "iba" o prístavbu. Napriek nie celkom bežnému prístupu je však architektúra účelná, primeraná. Je urobená s ohľadom na efektívne využitie verejných zdrojov. Architekti v tomto prípade ponúkli nielen rozšírenie chýbajúcich kapacít, ale ponúkli aj ucelenú víziu fungovania školy.
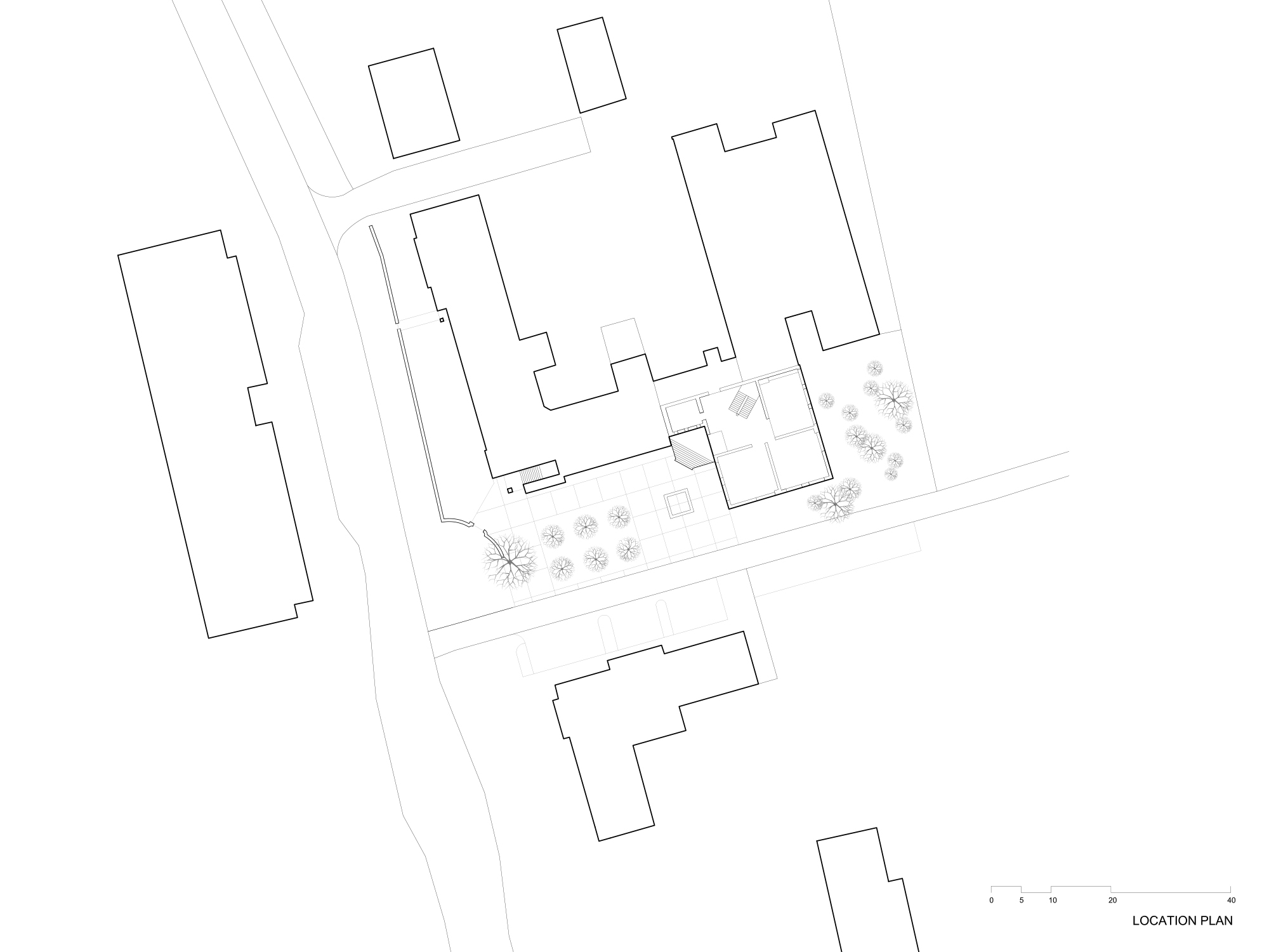
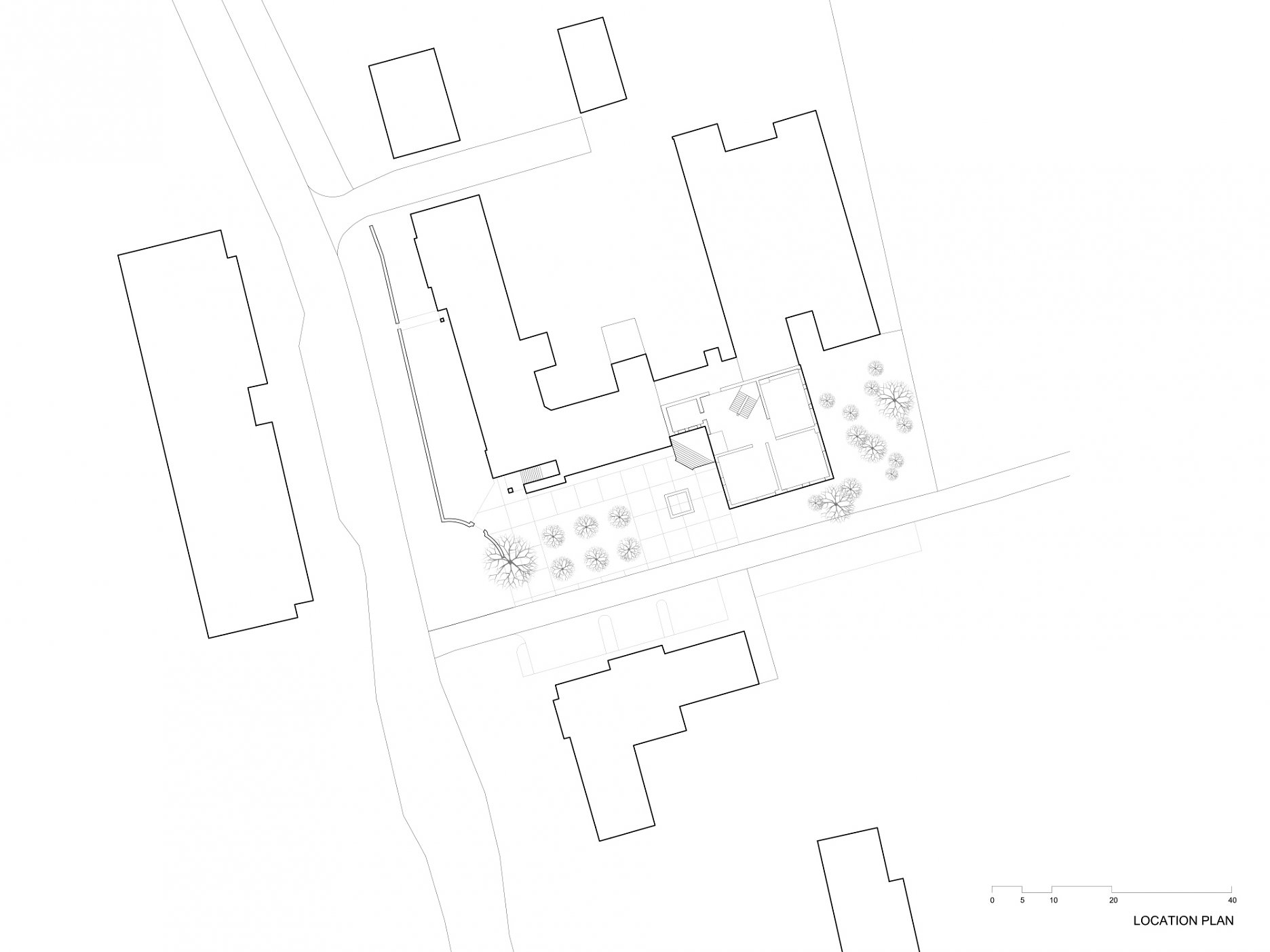
Limity maximálneho vonkajšieho objemu prístavby školy boli jasné už pred začiatkom navrhovania. Geometria parcely vymedzovala pôdorys. Maximálna výška budovy aj výška podlaží bola určená objektom starej školy, na ktorú prístavba nadväzuje.
Do určeného objemu bolo treba navrhnúť nové učebne, oddychové a komunikačné priestory. Architekti sa snažili nájsť riešenie s minimálnym množstvom fixných deliacich konštrukcií - štyri miestnosti na každom podlaží sú oddelené štyrmi stenami, čo umožnilo eliminovať klasické chodby. Steny z plných pálených tehál sú nosné. Delia priestor (fyzicky aj akusticky), zvyšujú akumulačnú schopnosť stavby. Na prízemí majú hrúbku 45 centimetrov, na vyšších podlažiach vzhľadom k menšiemu zaťaženiu iba 29.
V mieste ich pomyselného prieniku, v strede budovy, sa steny nestretávajú - čo umožňuje prístupu denného svetla do centra dispozície budovy. Tieto „medzery“ sú zároveň využité ako vstupy do učební. Ich umiestnenie korešponduje s orientáciou tried, ich požiadavkami na presvetlenie (vždy zľava), a polohou tabule v miestnosti. Na prízemí sú tieto medzery “prázdne” alebo zasklené, čo umožňuje vyniknúť elementárnej architektúre “štyroch stien”. Konštrukčnú previazanosť stien zabezpečuje železobetónová stropná doska, bez stropných podhľadov.
Realizácii predchádzala dlhá diskusia o podobe a usporiadaní učební. Ako už bolo spomenuté, architekti sa rozhodli v prístavbe na každé podlažie situovať štyri štvorcové miestnosti. Podľa ich slov umožňuje zvolené riešenie variabilnejšie usporiadanie výučby, v porovnaní s “klasickou” pozdĺžnou učebňou s jednostranným osvetlením. Štvorcové miestnosti sú presvetlené z dvoch strán - štandardne z ľavej strany, ale tiež z pravej zadnej časti, čo privítajú hlavne ľaváci.
Novostavba je k pôvodnej budove školy “pridružená” severnou stenou. Voľné fasády sú orientované na tri slnečné strany - juh, východ a západ, čo je rizikovým faktorom vzhľadom k prehrievaniu budovy a učební. Východná učebňa je klasicky jednostranne osvetlená, priame slnečné svetlo má len ráno. Štvorcové učebne sú orientované na juhovýchod a juhozápad. Použitím vonkajšieho tienenia spolu s obojstranným osvetlením môže byť smer a intenzita svetla podľa potreby regulované.
Súčasťou architektonického zámeru bolo použitie solídnych a zároveň ekonomicky dostupných stavebných materiálov, ktoré zabezpečia dôstojný a príjemný priestor pre aktivity detí. Použité boli plné pálené tehly, železobetón, profilované sklo, prírodné linoleum a terazzové podlahy. Prístavbu realizovala miestna stavebná firma a remeselníci.
Podklady: Malý Chmel