Na podujatí sa predstaví až 37 vystavovateľov - popredných dodávateľov stavebných materiálov a inovácií s prezentáciou...
Novotvar v prostredí alpskej obce.
Hansgrohe - prémiová značka kúpeľňových riešení, ponúka nadčasový dizajn, technickú precíznosť a udržateľné inovácie...
Využite špeciálnu akciu Internorm: okná za minuloročné ceny a hliníkový kryt úplne zadarmo. Ponuka je časovo obmedzená!
Sumarizácia najdôležitejších inovácií, ktoré redefinujúcich využitie tohto energetického zdroja.
AMPHIBIA 3000 GRIP 1.3 od spoločnosti ATRO predstavuje modernú hydroizolačnú technológiu, ktorá spája vysokú odolnosť,...
Ambiciózne plány EK narazili na ekonomické možnosti domácností v jednotlivých členských štátoch –...
IDEA DOOR od spoločnosti JAP prináša do interiéru čistý minimalistický vzhľad vďaka bezrámovému riešeniu a precíznej...
Kontinuita riešenia od vonkajšieho obkladu až po kovania a kľučky.
Nástenné nadomietkové armatúry Vitus sú mimoriadne vhodné pre rýchlu a efektívnu...
Okenné profily z kompozitného materiálu RAU-FIPRO X od spoločnosti Rehau sú v porovnaní s tradičnými plastovými profilmi mnohonásobne...
Najnovší sortiment stolov pre zariadenie interiérov...
Spojenie moderného dizajnu, funkčnosti a svetla do harmonického architektonického prvku.
Kancelárska budova Baumit v slovinskom Trzine prešla premenou na moderné a udržateľné pracovisko. Architekti kládli dôraz...
Mottom šiesteho ročníku on-line konferencie odborníkov Xella Dialóg je Efektívny návrh budov 2025+: zmeny a riešenia

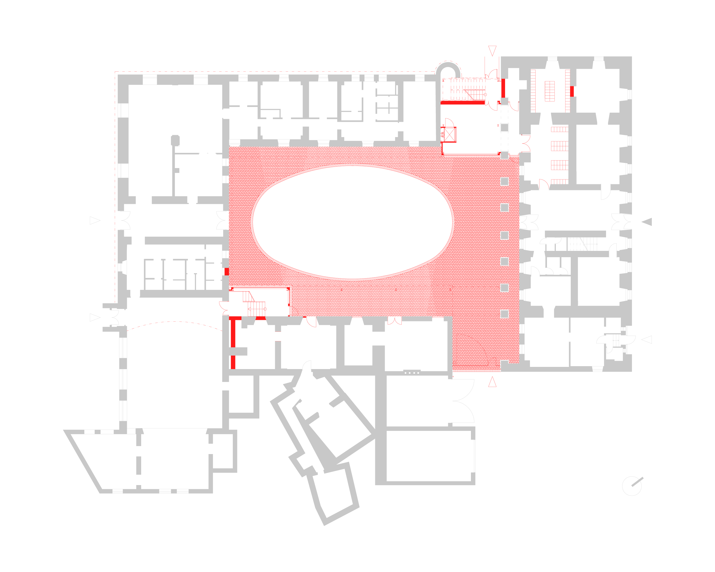
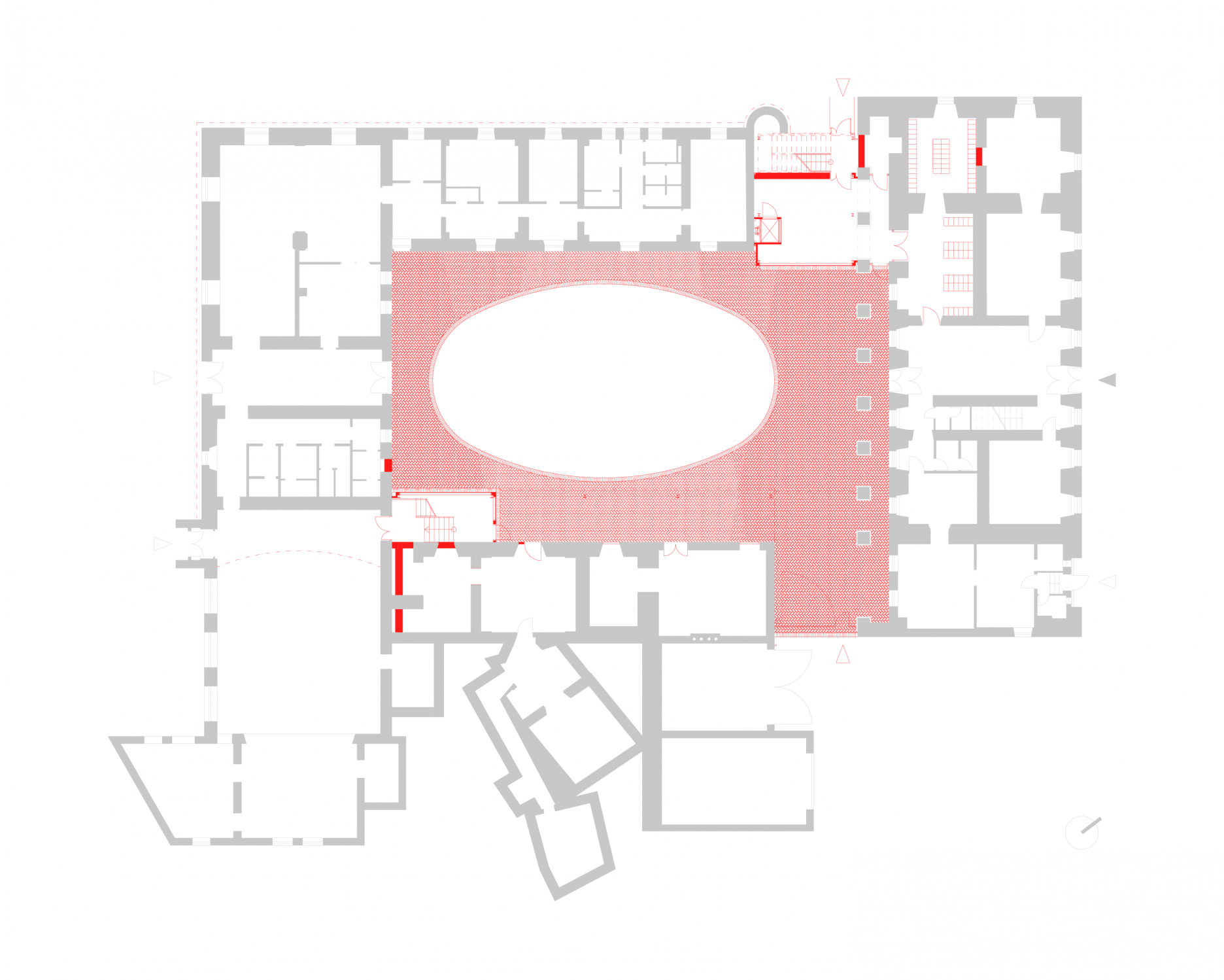
U našich západných susedov sa v posledných rokoch podarilo zrealizovať viacero kvalitných školských stavieb (prehľad realizácií na území bývalého Česko-Slovenska nájdete tu). Realizácia v juhomoravskej obce Vřesovice, s menej ako šesto obyvateľmi sa môže do tohto výberu hrdo zaradiť. Obci sa v priebehu rokov podarilo nielen revitalizovať areál bývalej barokovej fary, ale tiež vytvoriť kvalitné a jedinečné prostredie pre žiakov a ich učiteľov.
Kontext
Prestavba barokového súboru bývalej fary a farského statku, ktorý je súčasťou výraznej barokovej osi obce Vřesovice: zámok - kaplnka sv. Jána Nepomuckého - fara so statkom - návršie s kostolom sv. Petra a Pavla. Architektonické riešenie stavia na historickej hodnote súboru, ktorý rozvíja pre potreby novej funkcie - prevádzky základnej školy.
Genéza
Keď sa obec Vřesovice dohodla s cirkvou na prevode fary a farského statku do obecného majetku, mala cirkev želanie, aby obec nenechala celý súbor zchátrať a využívala ho k bohumilému účelu. Preto od roku 2013 slúži hlavný objekt fary ako základná škola. O dva roky neskôr bol na prízemí dvoch hospodárskych krídel zriadený denný stacionár s kuchyňou a jedálňou, ktoré využíva aj spomínaná škola. Úlohou architektov bolo rekonfigurovať ďalšiu časť hospodárskych stavieb do dvoch kmeňových tried a dvoch odborných učební, čo sa podarilo zrealizovať v lete roku 2019. Posledným dielom skladačky zostáva k barokovému komplexu priliehajúca Orlovňa (pôvodne sídlo katolíckej športovej organizácie), ktorú plánuje obec premeniť na telocvičňu a dve klubovne. Projekt čaká v súčasnosti na vhodnú dotáciu.
Východiská a koncept
Potreba rekonštrukcie vychádzala z požiadaviek na rozšírenie kapacity školy, záchrany rýchlo chátrajúcich krovov hospodárskych krídel barokového komplexu a úpravy neuspokojivého stavu dvora. Celý súbor vznikal postupne, jeho časti slúžili na rôzne účely a zachovali sa v rozdielnom stave. V rovnakom duchu sa nesie rekonštrukcia, ktorá prebieha postupne, podľa potrieb obce, finančných prostriedkov a stavu jednotlivých častí komplexu. Prevádzková a technická pluralita sa logicky stala hlavným východiskom konceptu rekonštrukcie.
Architekti v návrhu kládli dôraz na prepojenie jednotlivých častí tak, aby nebola potlačená historická hodnota komplexu. Dôležitým cieľom bola koexistencia školy a stacionáru tak, aby sa obe skupiny užívateľov cítili príjemne a slobodne užívali všetky časti areálu.
Architektúra
Nové aj pôvodné historické objemy sa v súbore vzájomne prelínajú, napriek tomu sú od seba jasne odlíšené. Historické časti zjednocuje klasická omietnutá fasáda, červená strecha z bobroviek a medené klampiarske prvky. Nové objemy charakterizuje jednoduchý kubický tvar, hladký povrch a výrazná farebnosť. Akcentované sú najmä priechody a prepojenia budov, ktoré historicky stáli oddelene. Do komplexu prinášajú hravosť nielen svojou farebnosťou, ale aj novými možnosťami pohybu. Deti si môžu slobodne voliť, ktorý vstup do školy využijú a po akej farbe sa vydajú. Silu konceptu podporuje spojenie učební v objekte fary s novými triedami do uceleného okruhu.
Ešte pred vstupom autorov z FUUZE a Public Atelier do projektu boli na prízemí fary situované obslužné priestory školy a do prízemia dvoch hospodárskych krídel denný stacionár. Návrh na tento stav reagoval umiestnením hlavnej prevádzky školy na poschodie. Architekti sa chopili príležitosti na záchranu hodnotného barokového krovu a využili polohu súboru na päte svahu kostolného návršia. Nové učebne tak získali prístup na trávnatú plochu, s výhľadom na kostol sv. Petra a Pavla.
Veľkorysému barokovému komplexu vdýchol projekt nový život. Autori pracovali pri rekonštrukcii objektu so statusom národnej kultúrnej pamiatky s citom a zároveň sebavedome, so súčasným architektonickým tvaroslovím. Napriek tomu, že rekonštrukcia historickej budovy znamenala pre novú funkciu množstvo obmedzení, priniesla pedagógom a deťom zážitok z priestoru a jeho väzby k okoliu. “Důležitým se ve škole stává moment hravosti a svobodného pohybu. Zásadním je tu i volný prostor, kde mohou děti svobodně pobíhat a pobývat. Prostor, kde si tvoří vlastní pravidla – aby si odpočinuli od řádu a diktátů,” dopĺňajú na záver autori.
Autor: Public Atelier + Studio FUUZE
Podklady: Linka
Fotografie: BoysPlayNice
Použité materiály a riešenia: strešné okná VELUX v podkrovných priestoroch učební