Na podujatí sa predstaví až 37 vystavovateľov - popredných dodávateľov stavebných materiálov a inovácií s prezentáciou...
Novotvar v prostredí alpskej obce.
Hansgrohe - prémiová značka kúpeľňových riešení, ponúka nadčasový dizajn, technickú precíznosť a udržateľné inovácie...
Využite špeciálnu akciu Internorm: okná za minuloročné ceny a hliníkový kryt úplne zadarmo. Ponuka je časovo obmedzená!
Sumarizácia najdôležitejších inovácií, ktoré redefinujúcich využitie tohto energetického zdroja.
AMPHIBIA 3000 GRIP 1.3 od spoločnosti ATRO predstavuje modernú hydroizolačnú technológiu, ktorá spája vysokú odolnosť,...
Ambiciózne plány EK narazili na ekonomické možnosti domácností v jednotlivých členských štátoch –...
IDEA DOOR od spoločnosti JAP prináša do interiéru čistý minimalistický vzhľad vďaka bezrámovému riešeniu a precíznej...
Kontinuita riešenia od vonkajšieho obkladu až po kovania a kľučky.
Nástenné nadomietkové armatúry Vitus sú mimoriadne vhodné pre rýchlu a efektívnu...
Okenné profily z kompozitného materiálu RAU-FIPRO X od spoločnosti Rehau sú v porovnaní s tradičnými plastovými profilmi mnohonásobne...
Najnovší sortiment stolov pre zariadenie interiérov...
Spojenie moderného dizajnu, funkčnosti a svetla do harmonického architektonického prvku.
Kancelárska budova Baumit v slovinskom Trzine prešla premenou na moderné a udržateľné pracovisko. Architekti kládli dôraz...
Mottom šiesteho ročníku on-line konferencie odborníkov Xella Dialóg je Efektívny návrh budov 2025+: zmeny a riešenia

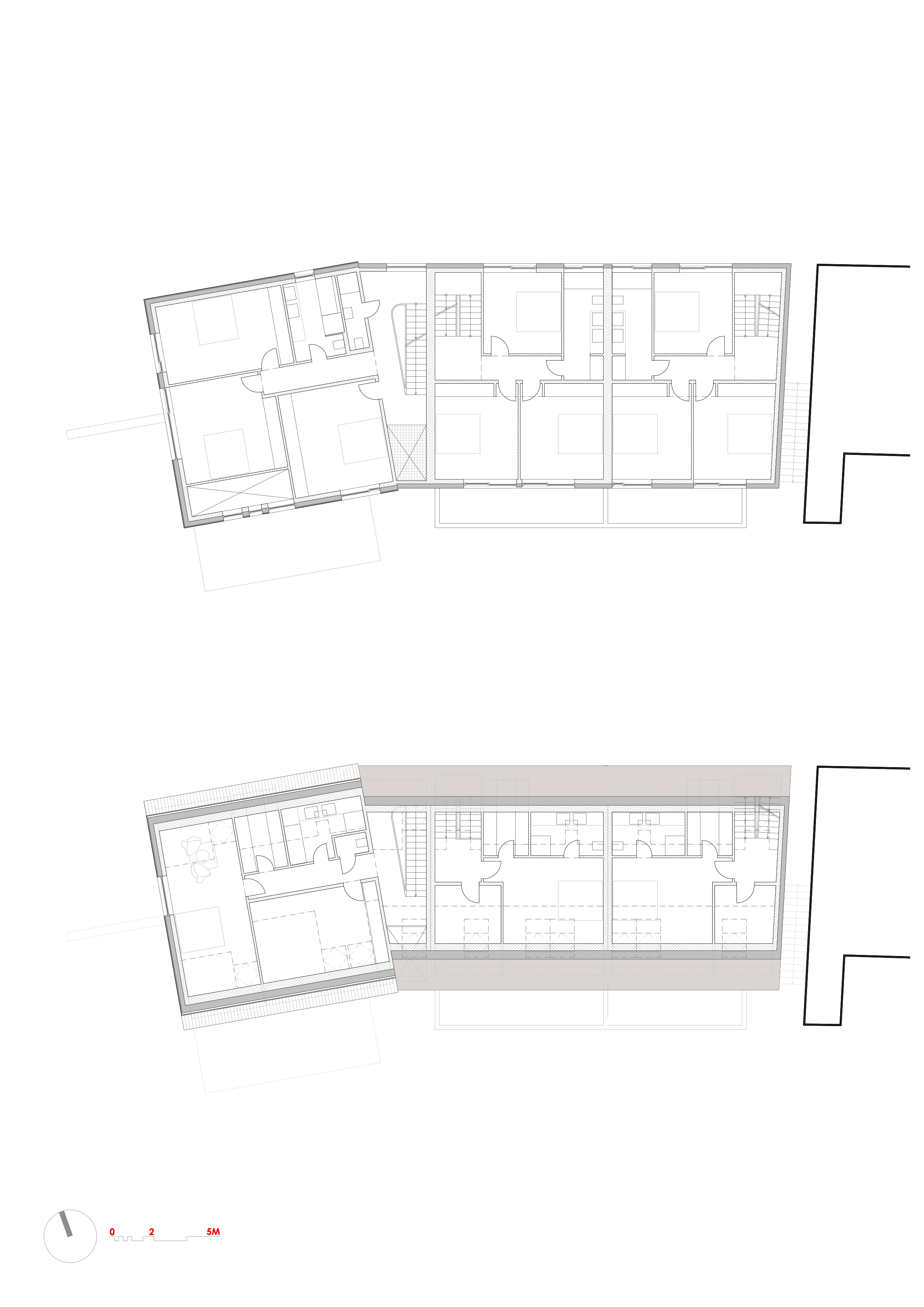
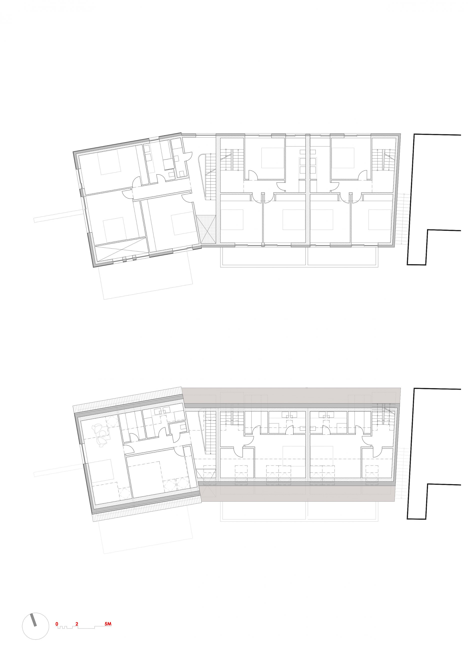
Doplnenie uličnej zástavby pozdĺž hranice prírodnej pamiatky Obora Hvězda. Radovka preklenuje priestor v rámci heterogénnej zástavby, zalomený pôdorys reaguje na susedný ustúpený nárožný objekt. Obytné priestory, odfiltrované od rušnej ulice ťažia z orientácie do záhrady a nekonečnej zelene lesoparku. Návrh príkladne pracuje s denným svetlom. Menší podiel zasklenia na uličnej fasáde kompenzuje príjemné horné osvetlenie. V mieste zalomenia stavby plynie prostredníctvom otvorenej galérie pozdĺž schodiska do hĺbky dispozície.
Radové rodinné domy sú zasadené do existujúcej zástavby pozdĺž ulice Libocká - na východnej strane k novému objektu prilieha trojica domov pôvodnej radovej zástavby, ktorá pevne drží uličnú čiaru. Na západnej strane pozemok susedí s cestou na bývalý cintorín pri Obore Hvězda, ktorý k parcele prilieha na juhu. Za touto cestou sa nachádza rodinná vila, ktorá je od uličnej čiary výrazne ustúpená.
Súbor troch rodinných domov reflektuje kontext. Zapustený parter rozširuje stiesnený uličný profil, stavba ale zároveň pevne drží historickú uličnú čiaru, výšku ríms i hrebeňa. Ustúpenú časť prízemia prerušujú dva bloky vstupných schodísk. Verejný parter je od súkromnej záhrady oddelený výškovým rozdielom. Do rušnej ulice na severnej strane sú v dome orientované prevažne servisné prevádzky, z čoho (spolu s energetickým konceptom) logicky plynie nižší podiel zasklenia. Objekt je koncipovaný ako pasívny dom, vybavený tepelnými čerpadlami vzduch-vzduch a núteným vetraním s rekuperáciou tepla. Do konceptu, ktorý dbá na kvalitu vnútorného prostredia zapadajú strešné okná Velux.
V interiéri prevláda kombinácia pohľadového betónu, bielych omietok, dubového dreva a bielych lakovaných povrchov.
Dvojica bytových jednotiek, na východnej strane pozemku, je kompozične zlúčená do jedného celku. Zvolenému konceptu zodpovedajú aj interiéry riešené podobným spôsobom, s prevažujúcou monochromatickou tonalitou a racionálnymi detailmi. Spomínaná voľba je výsledkom zámeru tieto dve sekcie stavby prenajímať.
V treťom, výrazne väčšom dome, býva rodina investora. Rozdielne využitie priestoru ponúklo možnosť odlišného riešenia interiéru. Expresívne tvarované schodisko reaguje na pôdorysné zalomenie stavby. Drevené obklady stien a povrchy z pohľadového betónu dopĺňajú zostavy vstavaného nábytku v kombinácii bieleho laku a dubovej dyhy.
Okrem celkového riešenia interiéru stoja architekti aj za návrhom zabudovaného nábytku na mieru a výberom mobiliáru. Pre interiér bolo tiež kľúčové rozmiestnenie zbierky umeleckých diel.
Podklady: Martin Čeněk
Použité materiály a riešenia: strešné okná Velux