Na podujatí sa predstaví až 37 vystavovateľov - popredných dodávateľov stavebných materiálov a inovácií s prezentáciou...
Novotvar v prostredí alpskej obce.
Hansgrohe - prémiová značka kúpeľňových riešení, ponúka nadčasový dizajn, technickú precíznosť a udržateľné inovácie...
Využite špeciálnu akciu Internorm: okná za minuloročné ceny a hliníkový kryt úplne zadarmo. Ponuka je časovo obmedzená!
Sumarizácia najdôležitejších inovácií, ktoré redefinujúcich využitie tohto energetického zdroja.
AMPHIBIA 3000 GRIP 1.3 od spoločnosti ATRO predstavuje modernú hydroizolačnú technológiu, ktorá spája vysokú odolnosť,...
Ambiciózne plány EK narazili na ekonomické možnosti domácností v jednotlivých členských štátoch –...
IDEA DOOR od spoločnosti JAP prináša do interiéru čistý minimalistický vzhľad vďaka bezrámovému riešeniu a precíznej...
Kontinuita riešenia od vonkajšieho obkladu až po kovania a kľučky.
Nástenné nadomietkové armatúry Vitus sú mimoriadne vhodné pre rýchlu a efektívnu...
Okenné profily z kompozitného materiálu RAU-FIPRO X od spoločnosti Rehau sú v porovnaní s tradičnými plastovými profilmi mnohonásobne...
Najnovší sortiment stolov pre zariadenie interiérov...
Spojenie moderného dizajnu, funkčnosti a svetla do harmonického architektonického prvku.
Kancelárska budova Baumit v slovinskom Trzine prešla premenou na moderné a udržateľné pracovisko. Architekti kládli dôraz...
Mottom šiesteho ročníku on-line konferencie odborníkov Xella Dialóg je Efektívny návrh budov 2025+: zmeny a riešenia

Novostavba školy pre rýchlo rastúce sídla južne od Prahy doplnila akútne chýbajúcu infraštruktúru. Školský areál plní okrem svojej primárnej funkcie aj dôležitú úlohu komunitného centra. Výsledné architektonické riešenie vzišlo z dvojkolovej verejnej súťaže, usporiadanej na prelome rokov 2013 a 2014, ktorej sa zúčastnilo 61 tímov. Projekt ateliéru Studio SOA architekti je v súčasnosti najväčšou pasívnou stavbou na území ČR.
Urbanistické a architektonické riešenie
Areál novej školy vytvára v kontexte obce miesto s vlastnou identitou, ktoré napriek svojej veľkosti nie je vo významovom ani priestorovom konflikte s existujúcou zástavbou a jej prirodzenými centrami. Škola ukončuje urbanistickú os vedúcu k centru obce a využíva potenciál živej obecnej komunikácie s prirodzene fungujúcim parterom. Komunitný charakter budovy je podporený verejnou knižnicou v exponovanom nároží.
Budova zasadená do mierneho svahu, pracuje s rozdielnymi výškami vstupného priestranstva a areálu. Je rozčlenená na menšie celky, ktoré sa mierkou približujú okolitej zástavbe. Tvár školy voči obci určujú výškovo dominantné dvojpodlažné objekty so šikmou strechou. Zastrešujú predovšetkým učebne a administratívu. Spomínané objemy medzi sebou zvierajú nižší blok jedálne a telocvične. V kontraste s hladkými fasádami výučbových objektov je tento trakt odlíšený vertikálne profilovanou fasádou. Drevený latkový obklad zjednocuje fasády, ktoré odzrkadľujú potreby jednotlivých vnútorných priestorov.
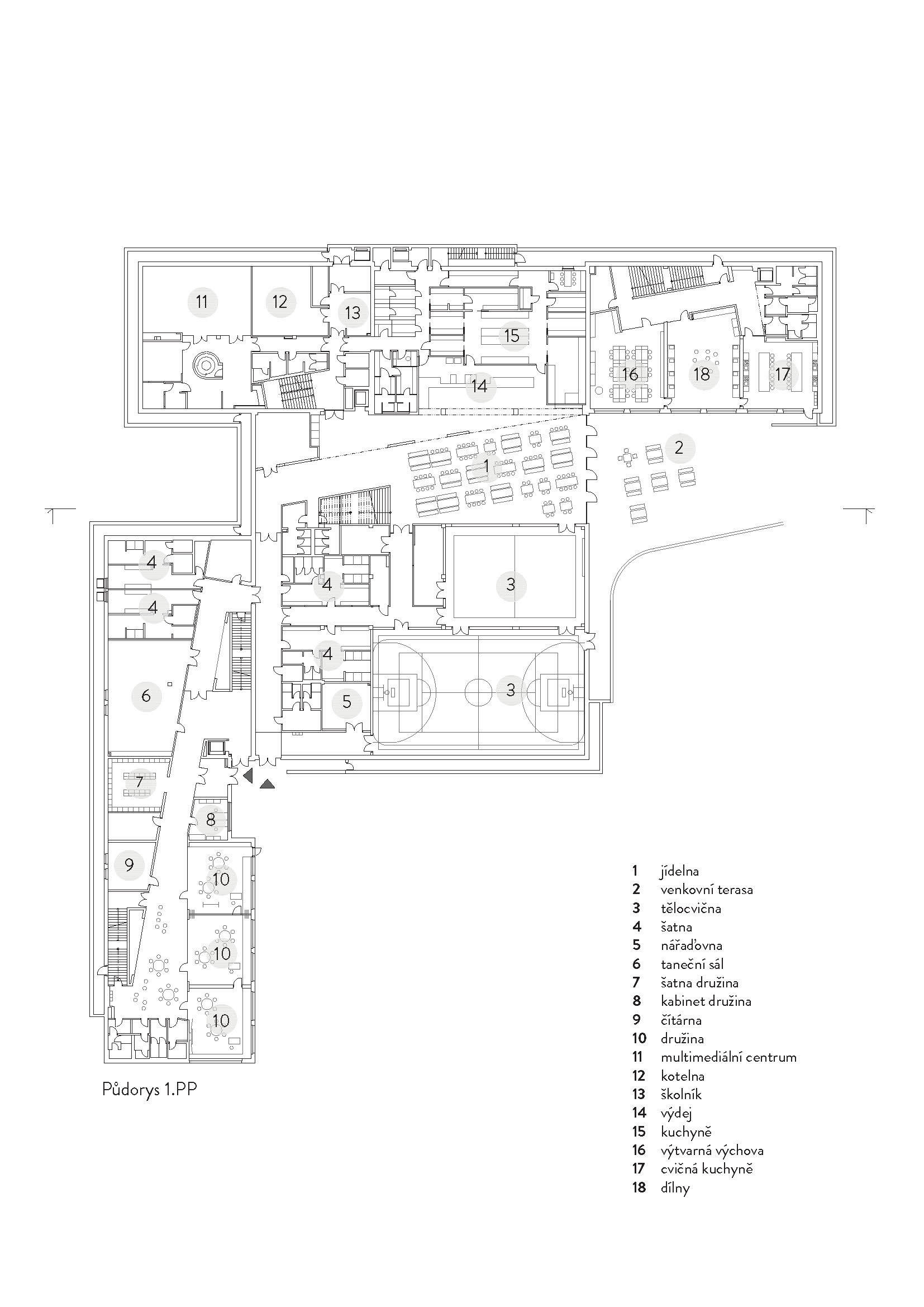
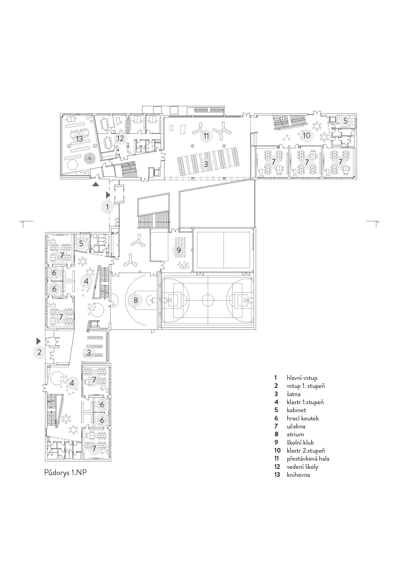
Dispozícia a prevádzka
"Interiér školy je navrhnutý ako voľne plynúce priestory vytvárajúce prirodzene ohraničené zóny s rozdielnou mierou intimity podľa plánovaného využitia, takzvaný. ´Learning landscape´," vysvetľujú architekti.
Budova slúži aj ako zázemie pre mimoškolské aktivity. Komplex, fungujúci na princípe celodennej školy. V rámci obce plní funkciu komunitného centra. Tomu zodpovedá členenie interiéru s dôrazom na kvalitné spoločné priestory.
Srdcom školy je dvojpodlažná jedáleň, umiestnená v centrálnom objekte, ktorá voľne nadväzuje na vstupnú halu. Jedáleň je možné premeniť na auditórium s javiskom. Javisko, situované v priľahlej malej telocvični, je možné prepojiť s jedálňou/auditóriom prostredníctvom portálu v deliacej konštrukcii. Ako miesto stretnutí slúži aj priľahlá vonkajšia terasa s pobytovým schodiskom, ktorá zároveň rozširuje vyučovací priestor odborných učební na prízemí.
Telocvične so zázemím sú umiestnené v severozápadnej časti centrálneho objektu a spoločne s vonkajšími športoviskami predstavujú ďalšie priestory, umožňujúce široké mimoškolské využitie. Pre verejnosť je otvorená aj školská knižnica orientovaná veľkoformátovým oknom do verejného predpolia školy.
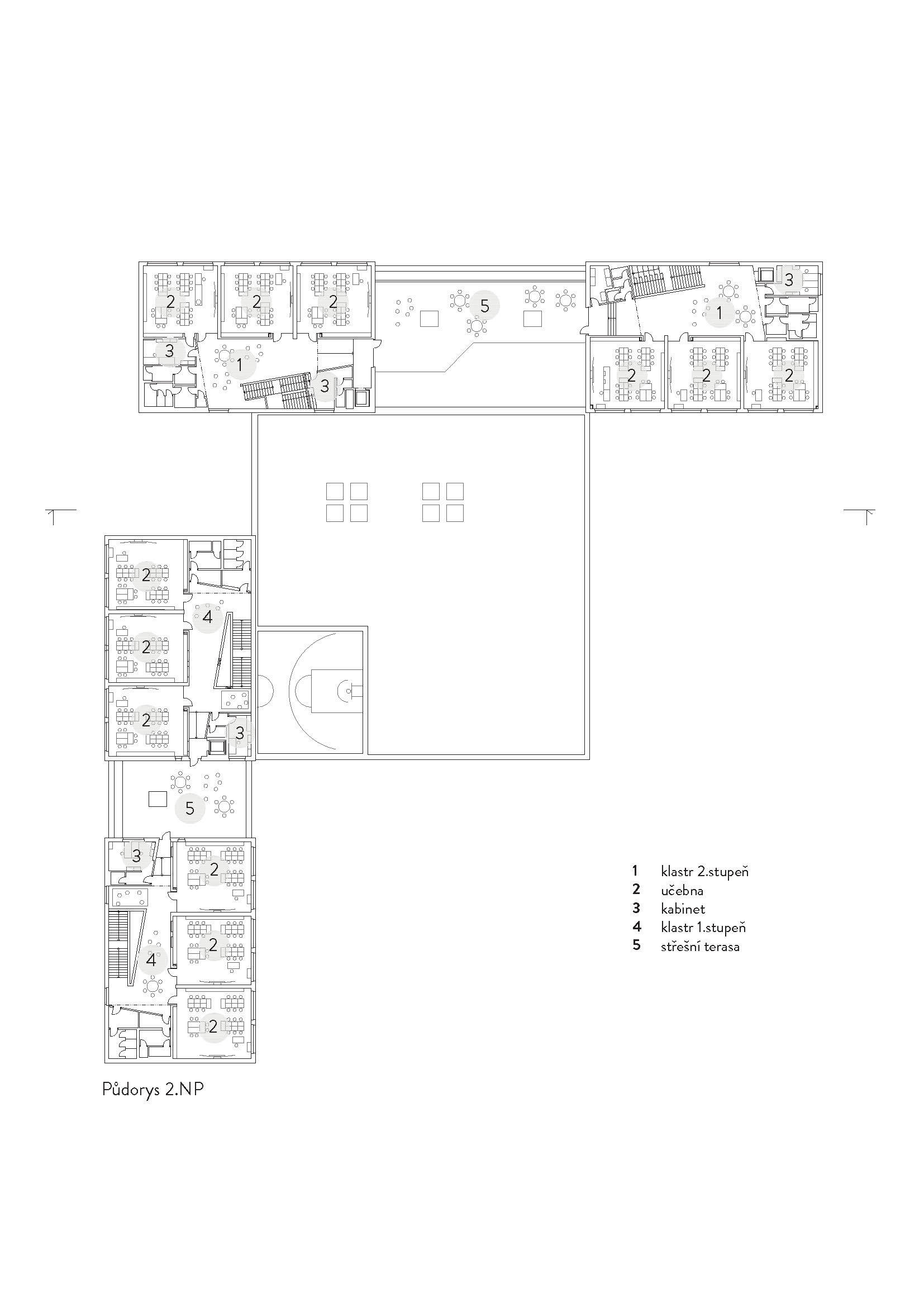
Učebne sú umiestnené v priľahlých krídlach budovy. Dispozičné riešenie určuje princíp klastrov zložených z dvoch, až troch kmeňovým učební, zoskupených okolo spoločnej centrálnej haly. Vďaka vizuálnemu prepojeniu učební s halou vzniká jasne ohraničený variabilný priestor pre rôzne formy výučby, s ktorým sa môžu jeho užívatelia v rámci veľkej školy ľahšie identifikovať a prispôsobiť si ho. Klastre sú vertikálne prepojené pobytovými schodiskami. Každé z nich má vlastnú farebnú identitu a prístup na vonkajšiu terasu.
Pre celkový výraz interiéru je kľúčová práca s drevom, ktoré je použité ako konštrukčný materiál nad vstupným vestibulom a jedálňou, na obkladoch stien a nábytkových vostavbách, parapetoch aj na fasáde. Prehľadný orientačný systém je založený na princípe detskej kresby.
Konštrukčné riešenie
Nosnú konštrukciu budovy tvorí monolitický železobetónový skelet so skrytými prievlakmi. Spoločné priestory centrálneho objektu sú zastropené lepenými drevenými väzníkmi. Zastrešenie objektov so sedlovými strechami je riešené prostredníctvom oceľových rámov. Výplňové konštrukcie obvodových stien a vnútorné akustické priečky sú realizované z vápenopieskových tvaroviek.
TZB
Škola je navrhnutá v energeticky pasívnom štandarde. Vykurovanie objektu zabezpečuje primárne kaskáda tepelných čerpadiel, napojených na akumulačné nádrže so zabudovanými zásobníkmi TÚV. Sekundárnym zdrojom tepla je sústava kondenzačných plynových kotlov, ktoré pokrývajú okamžité potreby a umožňujú prevádzkovať tepelné čerpadlá v optimálnom režime. Distribúciu tepla zaisťuje prevažne systém teplovodného podlahového kúrenia, ktorý je v učebniach doplnený o radiátory.
Výmenu vzduchu zabezpečuje systém rovnotlakového riadeného vetrania s pasívnou rekuperáciou tepla (s účinnosťou 77%). Vzduchotechnické jednotky sú umiestnené decentralizovane (v podkroviach a na strechách), aby boli trasy rozvodov čo najkratšie. Výmena vzduchu prebieha s premenlivou intenzitou na základe hodnôt merania CO2 v učebniach. V prechodovom a letnom období je systém využívaný k nočnému chladeniu budovy prostredníctvom intenzívnejšieho vetrania. V objekte je nainštalovaný systém zberu dažďovej vody, ktorá je využívaná na splachovanie.
Podklady: Studio SOA architekti
Fotografie: BoysPlayNice
Použité materiály a riešenia:
STO PUR stierky - podlahy spoločných priestorov
mmcité - mobiliár v parteri