Advertorial

Hotel Hirschen Spa House, Rakúsko

Novotvar v prostredí alpskej obce.

Vytvorte si kúpeľňu snov: dizajnové riešenie od značky hansgrohe

Hansgrohe - prémiová značka kúpeľňových riešení, ponúka nadčasový dizajn, technickú precíznosť a udržateľné inovácie...

Okná Internorm za minuloročné ceny + hliníkový kryt zdarma!

Využite špeciálnu akciu Internorm: okná za minuloročné ceny a hliníkový kryt úplne zadarmo. Ponuka je časovo obmedzená!

Pozvánka na 2. ročník stavebného veľtrhu BigMarket na Slovensku

Na podujatí sa predstaví až 37 vystavovateľov - popredných dodávateľov stavebných materiálov a inovácií s prezentáciou...

Moderné plynové technológie: Efektivita a inovácie pre 21. storočie

Sumarizácia najdôležitejších inovácií, ktoré redefinujúcich využitie tohto energetického zdroja.

Utesňovanie spodných stavieb pomocou hydro-aktívnej fólie AMPHIBIA.

AMPHIBIA 3000 GRIP 1.3 od spoločnosti ATRO predstavuje modernú hydroizolačnú technológiu, ktorá spája vysokú odolnosť,...

Dekarbonizácia individuálneho vykurovania domácností – Green Deal evolučne a nie revolučne

Ambiciózne plány EK narazili na ekonomické možnosti domácností v jednotlivých členských štátoch –...

Minimalistické dvere IDEA – technická precíznosť a čistota prevedenia

IDEA DOOR od spoločnosti JAP prináša do interiéru čistý minimalistický vzhľad vďaka bezrámovému riešeniu a precíznej...

Dom s výhľadom na údolie, Dlouhý Most (ČR)

Kontinuita riešenia od vonkajšieho obkladu až po kovania a kľučky.

Schell Vitus – osvedčené riešenie pre sprchy a umývadlá vo verejnom sektore s viac ako desaťročnou tradíciou

Nástenné nadomietkové armatúry Vitus sú mimoriadne vhodné pre rýchlu a efektívnu...

Kompozitné okná predstavujú súčasnosť a budúcnosť

Okenné profily z kompozitného materiálu RAU-FIPRO X od spoločnosti Rehau sú v porovnaní s tradičnými plastovými profilmi mnohonásobne...

Myotis - stoly 2025

Najnovší sortiment stolov pre zariadenie interiérov...

Priemyselné sklenené priečky Dorsis Digero: svetelné rozhranie pre moderné interiéry

Spojenie moderného dizajnu, funkčnosti a svetla do harmonického architektonického prvku.

Význam prirodzeného svetla pre moderné a flexibilné pracovné prostredie

Kancelárska budova Baumit v slovinskom Trzine prešla premenou na moderné a udržateľné pracovisko. Architekti kládli dôraz...

Konferencia Xella Dialóg predstaví novinky a trendy v stavebníctve

Mottom šiesteho ročníku on-line konferencie odborníkov Xella Dialóg je Efektívny návrh budov 2025+: zmeny a riešenia

Bilgym revisited

Premena a obnova strednej školy z normalizačného obdobia - rekonštrukcia školy C. S. Lewisa v Bratislave
Diela
Red 109.10.2019
33890+68
Bilgym revisited
Autori: Doc. akad. arch. mgr. Ing. Ján Studený, Ing. arch. Maroš Bátora, Ing. arch. Katarína Lupták (spoluautorka interiéru)Spolupráca: Ing. arch. Martina Vnenková, Akad. arch. Jiří ŠámalNávrh: 2014 - 2016Realizácia: 2015 - 2017Adresa: Haanova 2697/28, , Bratislava - Petržalka, SlovenskoPublikované: 9. október 2019

Prednedávnom sme publikovali rekonštrukciu a modernizáciu Gymnázia C. S. Lewisa v Bratislave. Nie všetci vedia, že transformácii tejto budovy predchádzal dlhší a zložitejší proces. 

V súčasnosti, v súvislosti s prihlásením a vybraním realizácie do nominovných diel Ceny Slovenskej komory architektov CE.ZA.AR 2019, prebieha spor o autorstvo a podiel tvorivého vkladu jednotlivých tímov, ktoré sa podieľali na celej genéze rekonštrukcie objektu. Dnes prinášame pohľad z druhej strany.

Formou rozhovoru nám ho priblížil Ján Studený (ateliér studený architekti), ktorý bol aktérom pri úvodných úvodných etapách tohto investičného zámeru.

Čitatelia majú možnosť porovnať mieru a obsah vkladu oboch tvorivých tímov, ktoré sa na premene a obnove školy podieľali. 

 

Bilgym revisited

AI: Ako ste sa dostali k práci na prestavbe budovy gymnázia?

JS: K tejto zákazke sme boli oslovení zriaďovateľom školy, ktorým je Cirkev Bratská v Bratislave, po našej spolupráci na obdobnej budove v Petržalke - Základnej školy Narnia, ktorú takisto prevádzkuje. Pre ňu sme spracovali niekoľko koncepčných štúdií, overovali sme isté nadstavenia, ktoré sa potom sčasti realizovali na Bilgym-e. Už počas nášho pôsobenia na Narnii pracovalo viac architektov a ďalej celú prestavbu a projekt interiéru prevzala Katka Lupták. 

AI: Ako by ste popísali postupy a ciele vášho projektu?

JS: Zámerom našej práce bolo nadstaviť koncept prestavby budovy a zrealizovať jeho základy tak, aby sa dala v priebehu krátkeho času (pol roka) sprevádzkovať. Okrem toho nadstaviť celkový koncept prestavby na mieru Bilgym-u, čím by sa realizovala dlho premýšlaná vízia, ako by mala stredná škola ‘budúcnosti’ vyzerať a do akého prostredia by koncepcia výuky a vzdelávania školy tohoto typu mohla zapadnúť. Rozhodnutie vybrať pôvodnú budovu nebolo samozrejmé. Prebiehali úvahy aj o novej budove a alternatívy boli starostlivo zvažované prípravným výborom (hlavne riaditeľa Dušana Jauru a koordinátora Martina Bútoru) viac rokov dopredu. Procesu prípravy sme sa spolu s Katkou Lupták zúčastnili. 

Zaujímavou ambíciou bolo, aby sa projekt pripravoval aj realizoval za účasti študentov, k čomu vznikli podmienky a zčasti aj realizácie v praxi. Obdobne sme iniciovali účasť mojich študentov z VŠVU, ktorí pripravili a prezentovali intervencie do suterénu pre chill-out priestory. "Študenti študentom" - to malo veľký úspech, niečo inšpirovalo a niečo sa realizovalo. 

AI: Aký bol koncept a čo je za prestavbou budovy Bilgym na Haanovej?

JS: Má to dve roviny: architektonickú a všeobecnú, povedal by som spoločenskú, týkajúcu sa úlohy a konceptu vzdelávania u nás, či školy všeobecne. Ide o typovú panelovú budovu z r. 1980, ktorých je v Bratislave 16 (hlavne v Petržalke). Všetky sú funkčné, v zásade v prevádzkovom stave, ale z perspektívneho hľadiska potrebujú obnovu. Napr. chýba debarierizácia a často sú technicky nevyhovujúce. Sú ale v dobrom stavebnom stave a patria na svoje miesto. 

AI: Je to ojedinelý problém, alebo má súvislosť?

JS: Toto nie je problém len týchto budov, ale všeobecne socialistických stavieb. Najmä tých, ktoré majú stále úžitkovú hodnotu a z nášho pohľadu istú architektonickú kvalitu. Jedná sa najmä o "paláce" štátnych inštitúcii ako STV, Slovenský rozhlas, Istropolis (bývalé ROH) a pod., ktoré boli v tom čase budované a dnes nevieme či ich búrať, alebo rekonštruovať. S touto témou sa podrobne zaoberáme na VŠVU, kde robíme výskum pod názvom Ikonické ruiny a týka sa to širšieho stredoerópskeho kontextu. My si myslíme, že dobrá by bola ich transformácia a vytvorili sme k tomu celý rad precedensov, ktoré boli prezentované aj na medzinárodnej scéne (výstava Starosť o architektúru na 12. Bienále architektúry v Benátkach a Shared Cities Creative Momentum). V poslednom období sa v Bratislave objavujú v oboch prikladoch (rekonštrukcia SNG a chystaná asanácia Istropolisu). 

AI: Budovu na Haanovej môžme v tomto brať teda ako malý precedens. Čoho sa obnova týkala?

JS: Škola má 500 žiakov a musí fungovať spolu s jedálňou, kuchyňou a telocvičňou. Budova bola päť rokov nevyužívaná a potrebovala prejsť celkovým technickým a dispozičným upgradom. Našim konceptom bolo do budovy zasahovať minimálne a riešiť nefunkčné, alebo defektné časti stavby na súčasnej technickej úrovni. Tento spôsob odpovedá predstave o efektívnej a ekologickej obnove so zachovaním jej charakteru a kvalít, ktoré prostrediu prináša. Rola architekta je v tomto prípade skôr v nadstavení miery zásahu, vysvetľovaní a argumentácii tohto prístupu, kedže u nás stále panuje všeobecný odpor k budovám a designu zo socialistickej minulosti.

AI: Aké konkrétne problémy ste pri prestavbe riešili ?

JS: Riešili sme obnovu obvodového plášťa (novú strešnú krytinu, výmenu výplní a repas panelov), obnovu a revitalizáciu exteriéru - športového ihriska a oplotenia. V interiéri nové nášľapné vrstvy podláh (PU stierka), dispozičné úpravy zmenšením tried, keďže dnes sú triedy menej početné. Prestavbu a vybavenie kuchyne a technické zabezpečenie budovy - overenie a nastavenie voči súčasným normám, ktoré sa za ten čas zmenili. 

AI: Aký je architektonický koncept a čo ste ním mysleli?

JS: Pracujeme na viacerých lokálnych vstupoch súčasne na rôznych miestach. Tie sú podriadené celkovému konceptu, ktorý by som definoval ako postupné prerastanie nového starým. V ňom možno väčšiu rolu než priestorový koncept má fyzická podstata stavby, prejavujúca sa v odkrývaní vrstiev pôvodných materiálov, ich spájaní s novými a spoločnej kombinácii. Pracujeme s repetíciou pôvodných zariadení a celkovo s odlišnými technikami práce, než pri "normálnom" navrhovaní, ako sekvencia, repetícia, fragmentácia, obnaženie a vrstvenie. Ako som spomínal, našim zámerom nie je rekonštrukcia pôvodného stavu budovy, ani nová budova (v zmysle novej vrstvy), ale transformácia starej. Uvedomujeme si, že to je postupný proces, ktorý nie je nikdy úplne dokončený. 

AI: To je dosť netradičné. Ako sa k tomuto konceptu staval objednávateľ a aký bol proces jeho realizácie?

JS: V týchto situáciach sa zvyčajne vytvoria dva tábory. Podpora a súzvuk po celú dobu realizácie bol vyjadrený riaditeľom školy D. Jaurom a v zásade aj správnou radou školy. Samozrejme sme aj narazili a to hlavne v detailoch, ale pre nás práve tých - charakterizujúcich proces. U niektorých rodičov školy to vyvolávalo rozpaky a v zásade časom sa konzervatívnejšie názory prirodzene začali presadzovať a aj my sme boli nútení robiť ústupky… 

AI: Ako sa pozeráte na ďalší proces?

JS: Od začiatku sme koncept prestavby a obnovy pochopili ako procedurálnu vec. Náš koncept bol takto nadstavený, preto sme nevideli problém v tom, že bude niekto iný pokračovať. Vo veciach, ktoré ale realizoval pán Kleinert predsa len vidíme určitý rozdiel. Sú agresívnejšie a z pôvodnej stavby veľa nezanechávajú. Procesuálny prvok sa z prístupu vytratil, zachováva si len formálnu podobnosť. Akokoľvek, je tam určitá súvislosť a tie veci na seba naväzujú. My sme realizovali stavebné úpravy (prestavbu), bez ktorých by sa budova nedala sprevádzkovať a určité základné nastavenie interiéru. Napríklad farebné riešenie, ako organizačný a orientačný faktor. Bezbariérovosť, materiálové riešenie povrchov, odkryté vedenie inštalácii, priestorový koncept riešenia spoločenských priestorov (šatne a vybúranie galérie), ale aj detaily - ako kruhové okno dverí a orientačný systém. Vyrobili sme manuál zariadení učební a aj koncept priestorového riešenia mobiliáru spoločenských a komunikačných priestorov. K tomu sme realizovali niekoľko špeciálnych učební, tútorovne a kaviareň, aj časť spoločenských priestorov (vstupnú halu a jedáleň). To všetko sa zachovalo, takže podstatná časť z toho funguje.

bilgym Haanova - štúdia 9-12 2014:

 

Širšie vzťahy (variant Narnia):

 

Axonometria priestorového konceptu:

Axonometria priestorového konceptu
Axonometria priestorového konceptu

 

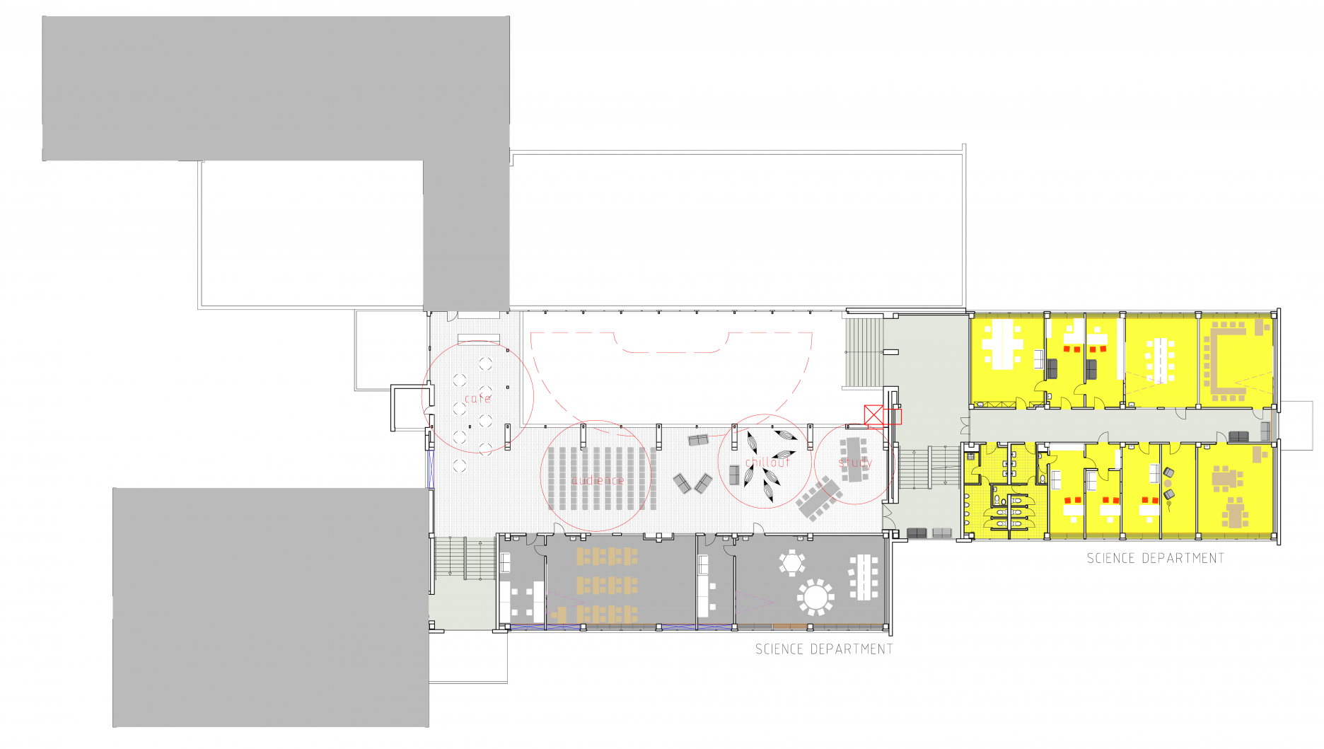
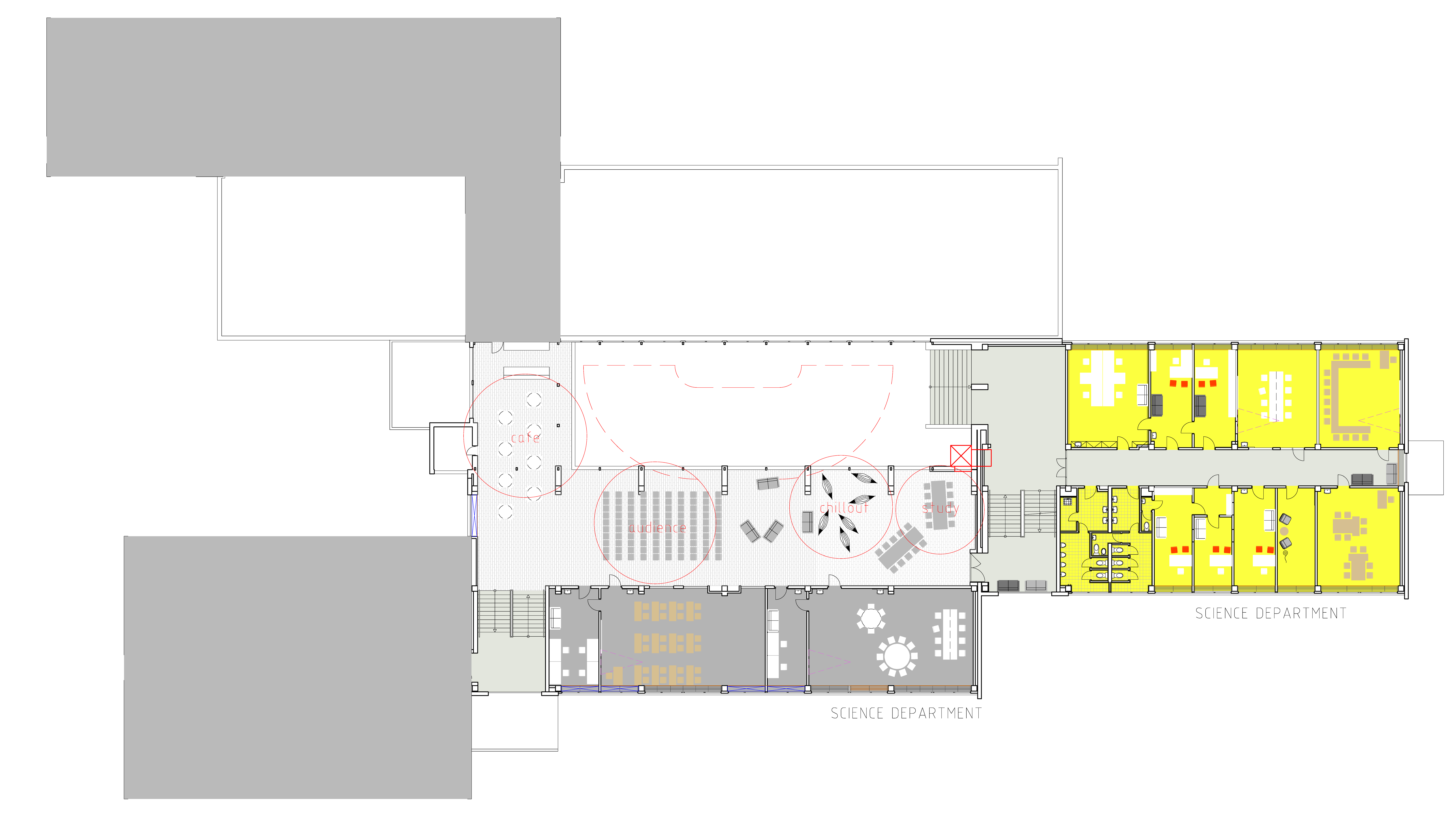
Výkresová dokumentácia:

Pôdorys 1.NP - interiér
Pôdorys 1.NP - interiér
Pôdorys 2.NP - interiér
Pôdorys 2.NP - interiér

 

Realizačná dokumentácia:

 

Info manuál (design Juraj Blaško):

 

Interiér manuál:

 

Fotodokumentácia:

Pôvodné svietidlá z telocvične určené k reinštalácii
Pôvodné svietidlá z telocvične určené k reinštalácii
 Kabinet učiteľov na 1.NP - žltý pavilón
Kabinet učiteľov na 1.NP - žltý pavilón
kancelérie vedenia na 2.NP - žltý pavilón
kancelérie vedenia na 2.NP - žltý pavilón
Učebňa na 2.NP - žltý pavilón
Učebňa na 2.NP - žltý pavilón
Učebňa na 2.NP - žltý pavilón - detail deliacej priečky
Učebňa na 2.NP - žltý pavilón - detail deliacej priečky
Kancelárie vedenia na 1.NP - žltý pavilón
Kancelárie vedenia na 1.NP - žltý pavilón
Záznam vrstiev a odtlačkov v pôvodnej stene
Záznam vrstiev a odtlačkov v pôvodnej stene
Tútorovňa na 2.NP - modrý pavilón
Tútorovňa na 2.NP - modrý pavilón
Výťah vo vstupnej hale
Výťah vo vstupnej hale
Šachta výťahu - detail
Šachta výťahu - detail
Detail predpriestoru vostavby výťahu na 3.NP
Detail predpriestoru vostavby výťahu na 3.NP
Výťah - pohľad do šachty
Výťah - pohľad do šachty
Kaviareň na galérii
Kaviareň na galérii
Spolupráca so študentami pri úprave povrchov kaviarne
Spolupráca so študentami pri úprave povrchov kaviarne
tribúna vo vestibule - vizualizácia
tribúna vo vestibule - vizualizácia
 Recepcia vo vstupnej hale
Recepcia vo vstupnej hale
Grafity -  aranžmá "komunikačného hniezda" a spoločných priestorov
Grafity - aranžmá "komunikačného hniezda" a spoločných priestorov
Vostavba deliacej steny v telocvični
Vostavba deliacej steny v telocvični
Bezbariérová rampa v predpolí
Bezbariérová rampa v predpolí
Bezbariérová rampa v predpolí
Bezbariérová rampa v predpolí

Poloha diela

Doc. akad. arch. mgr. Ing. Ján Studený
Ing. arch. Maroš Bátora
Ing. arch. Katarína Lupták

Súvisiace články

Vložené
8. október 2019
0
3389
Hlavný obsahHlavný obsah
Čakajte prosím