Na podujatí sa predstaví až 37 vystavovateľov - popredných dodávateľov stavebných materiálov a inovácií s prezentáciou...
Novotvar v prostredí alpskej obce.
Hansgrohe - prémiová značka kúpeľňových riešení, ponúka nadčasový dizajn, technickú precíznosť a udržateľné inovácie...
Využite špeciálnu akciu Internorm: okná za minuloročné ceny a hliníkový kryt úplne zadarmo. Ponuka je časovo obmedzená!
Sumarizácia najdôležitejších inovácií, ktoré redefinujúcich využitie tohto energetického zdroja.
AMPHIBIA 3000 GRIP 1.3 od spoločnosti ATRO predstavuje modernú hydroizolačnú technológiu, ktorá spája vysokú odolnosť,...
Ambiciózne plány EK narazili na ekonomické možnosti domácností v jednotlivých členských štátoch –...
IDEA DOOR od spoločnosti JAP prináša do interiéru čistý minimalistický vzhľad vďaka bezrámovému riešeniu a precíznej...
Kontinuita riešenia od vonkajšieho obkladu až po kovania a kľučky.
Nástenné nadomietkové armatúry Vitus sú mimoriadne vhodné pre rýchlu a efektívnu...
Okenné profily z kompozitného materiálu RAU-FIPRO X od spoločnosti Rehau sú v porovnaní s tradičnými plastovými profilmi mnohonásobne...
Najnovší sortiment stolov pre zariadenie interiérov...
Spojenie moderného dizajnu, funkčnosti a svetla do harmonického architektonického prvku.
Kancelárska budova Baumit v slovinskom Trzine prešla premenou na moderné a udržateľné pracovisko. Architekti kládli dôraz...
Mottom šiesteho ročníku on-line konferencie odborníkov Xella Dialóg je Efektívny návrh budov 2025+: zmeny a riešenia

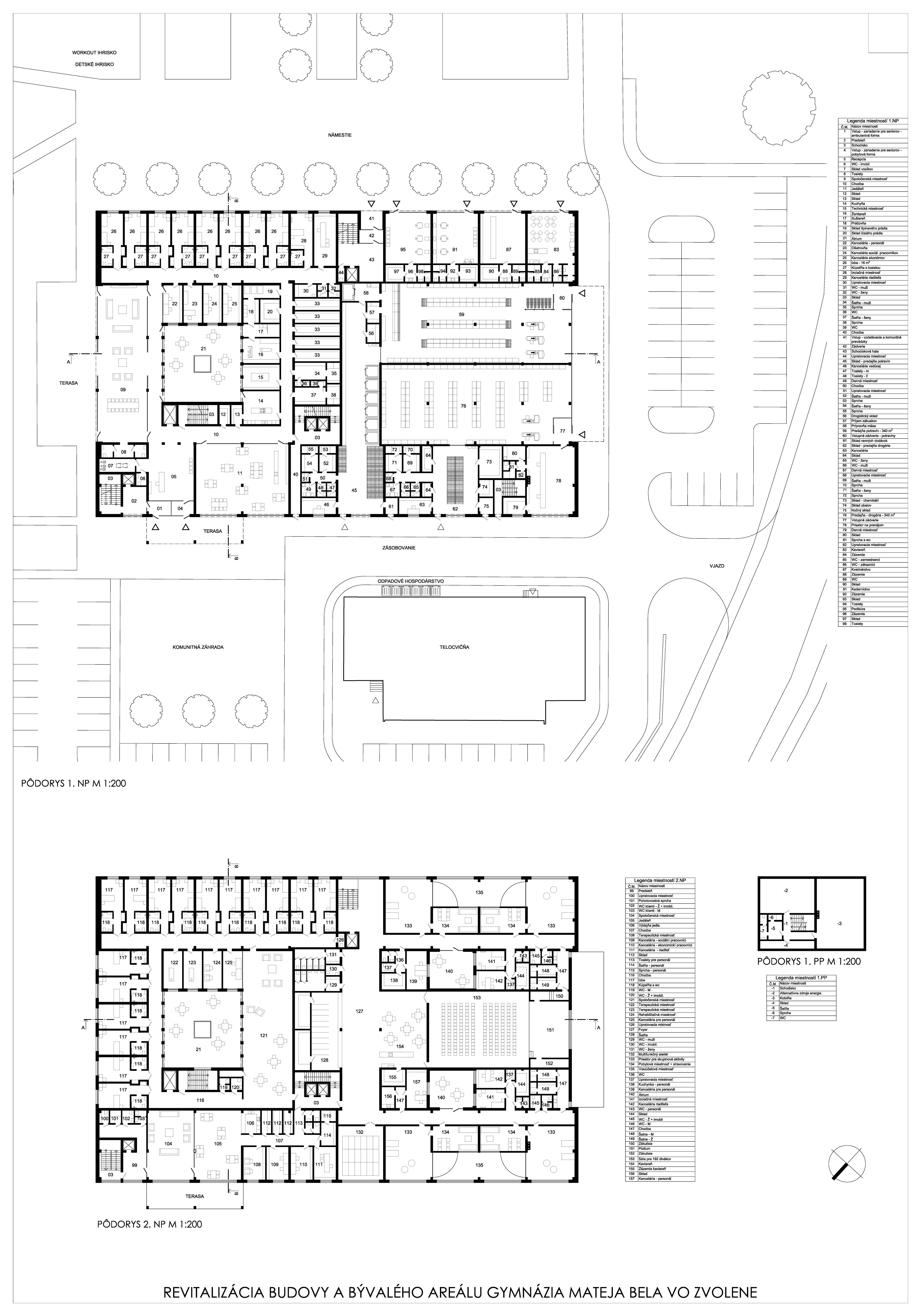
Banskobystrický samosprávny kraj vyhlásil v apríli súťaž na revitalizáciu budovy a areálu bývalého Gymnázia Mateja Bela vo Zvolene.
Gymnázium by po konverzii malo slúžiť ako polyfunkčné centrum a ponúkať obchody a služby komerčného, sociálneho, vzdelávacieho a komunitného charakteru. Spolu s priľahlým územím by malo v budúcnosti vytvoriť nové spoločenské centrum sídliska Sekier - Lipovec.
Súťaž dokazuje účelnosť tohto spôsobu obstarávania verejných zákaziek, takisto aj transparentnosť celého procesu. Pri podobných zákazkách z verejných zdrojov by malo byť obstarávanie formou overených architektonických súťaží silno prevládajúcim spôsobom výberu najvhodnejšej formy riešenia i výberu zhotoviteľa. Uverejňujeme všetky súťažné návrhy aj s protokolom poroty.
Poradie návrhov podľa kritérií uvedených v súťažných podmienkach vrátane udelenia cien a odmien:
1. miesto, 15 000,- € - návrh účastníka č. 1
Autor - N/A: Benjamín Brádňanský, Vít Halada
Z komentára poroty:
Návrh kompaktným spôsobom intenzifikuje a zahusťuje hmotu jestvujúceho objektu. Vytvára po celom obvode kompaktnej hmoty stavby zaujímavé, viacfunkčné pavlačové rozhranie, slúžiace vstupom do jednotlivých prevádzok služieb a obchodov. Umožňuje ich vzájomne nezávislú prevádzku, poskytuje fasádam nevyhnutné tienenie a slúži aj ako horizontálna komunikačná sieť riešeného objektu.
Víťazný návrh posilňuje svojou koncepciou ťažiskovú funkciu priľahlého námestia a objekt bývalého gymnázia sa tak spolu s námestím stáva novým atraktívnym centrom sídliska Sekier - Lipovec. Dispozičné riešenie objektu je vyriešené v prepracovanej prevádzkovej súhre. Dôsledne dodržiava definované plošnosti ekonomicky nevyhnutných stredne veľkých obchodných prevádzok, ako aj ostatných požadovaných funkčných častí stavby. V rámci priestorovej ekonómie pracuje s výborne vyriešenou lokalizáciou lôžkovej časti zariadenia sociálnych služieb pre seniorov s chráneným exteriérovým átriom v úrovni poschodia. Vjazd do riešeného územia aj pôvodné parkovisko ponecháva víťazný návrh na svojom pôvodnom mieste. Nové parkovacie kapacity sú riešené povrchovým spôsobom, s tienením vzrastlou zeleňou.
Vizualizácie:
2. miesto, 9000,- € - návrh účastníka č. 7
Autor - DOXA: Tomáš Boroš, Gabriel Boženík, Maroš Mitro
Z komentára poroty:
Návrh na druhom mieste pracuje s objektom a s kontextom svojho okolia jasným a úsporným spôsobom. Delí okolie na funkčné zóny viažúce sa k jestvujúcej funkcionalite územia, predovšetkým v kontexte priľahlého námestia a parku pod blízkym kostolom. Zaujímavým je aj nanovo definované rozhranie interiéru a exteriéru prostredníctvom pavlačí, tieniacich exponované fasády a prepájajúcich obchodné prevádzky stavby s námestím.
3. miesto, 6000,- € - návrh účastníka č. 3
Autor - SLLA: Michal Sulo, Miriam Lišková, Dominik Haviar, Zuzana Jančeková, Mário Melek, Ján Augustín
Z komentára poroty:
Tretie miesto patrí návrhu, ktorý zaujímavým spôsobom pracuje so samostatnou exteriérovou športovou zónou a následným odčlenením parkovacích a dopravných plôch mimo priamy kontakt a dohľad. Zvyšuje súkromie užívateľov a objekt výrazne prepája s okolitým zeleným exteriérom.
4. miesto, odmena 3000,- € - návrh účastníka č. 10
Autori - Štefan Zifčák, Richard Szilvássy
Z komentára poroty:
Odmena patrí formálne najčistejšiemu riešeniu, vytvárajúcemu v území zjednocujúce vydláždené plató. Z neho "vyrastajú" dispozične vhodne usporiadané funkčné časti prevádzky. Od svojho okolia oddelené, alebo s okolím prepojené, podľa logicky komponovanej, hoci možno až príliš veľkorysej schémy.
5. miesto, návrh účastníka č. 5
Autor - at26: Branislav Loskot, Peter Kukučka, Jaroslav Takáč, Juraj Benko, Veronika Mandincová, Soňa Havlíková, Lucia Tvarožková, Zuzana Vlžáková, Matej Zelenay
Návrhy ktoré obsadili delené 6.-10. miesto:
Návrh č. 2
Autor - ADM-arch: Dominika Vyhlidalová, Ivana Biró, Lenka Varga
Návrh č. 4
Autor: Ing. arch. Amro Khalifa - AMÁRA
Návrh č. 6
Autor - ateliér ditta: Martin Bugáň, Petra Jablonická, Martin Jankovič
Návrh č. 8
Autori - Oliver Kleinert, Pavol Pribylinec
Návrh č. 9
Autor - Ing. arch. Ján Kubina ARCHITEKTÚRA-URBANIZMUS: Ján Kubina, Jakub Sahatqija, Marek Rynda, Roman Jančo
"Na záver je možné skonštatovať, že popisovaná architektonická súťaž návrhov svoj účel splnila a výsledné riešenie umožní moderným, zaujímavým a ekonomicky udržateľným spôsobom transformovať aktuálne nevyužívaný objekt k prospechu jeho užívateľov, aj obyvateľov okolitého sídliska," stojí v komentári poroty.
Zápisnica z hodnotiaceho zasadnutia poroty: