Na podujatí sa predstaví až 37 vystavovateľov - popredných dodávateľov stavebných materiálov a inovácií s prezentáciou...
Novotvar v prostredí alpskej obce.
Hansgrohe - prémiová značka kúpeľňových riešení, ponúka nadčasový dizajn, technickú precíznosť a udržateľné inovácie...
Využite špeciálnu akciu Internorm: okná za minuloročné ceny a hliníkový kryt úplne zadarmo. Ponuka je časovo obmedzená!
Sumarizácia najdôležitejších inovácií, ktoré redefinujúcich využitie tohto energetického zdroja.
AMPHIBIA 3000 GRIP 1.3 od spoločnosti ATRO predstavuje modernú hydroizolačnú technológiu, ktorá spája vysokú odolnosť,...
Ambiciózne plány EK narazili na ekonomické možnosti domácností v jednotlivých členských štátoch –...
IDEA DOOR od spoločnosti JAP prináša do interiéru čistý minimalistický vzhľad vďaka bezrámovému riešeniu a precíznej...
Kontinuita riešenia od vonkajšieho obkladu až po kovania a kľučky.
Nástenné nadomietkové armatúry Vitus sú mimoriadne vhodné pre rýchlu a efektívnu...
Okenné profily z kompozitného materiálu RAU-FIPRO X od spoločnosti Rehau sú v porovnaní s tradičnými plastovými profilmi mnohonásobne...
Najnovší sortiment stolov pre zariadenie interiérov...
Spojenie moderného dizajnu, funkčnosti a svetla do harmonického architektonického prvku.
Kancelárska budova Baumit v slovinskom Trzine prešla premenou na moderné a udržateľné pracovisko. Architekti kládli dôraz...
Mottom šiesteho ročníku on-line konferencie odborníkov Xella Dialóg je Efektívny návrh budov 2025+: zmeny a riešenia

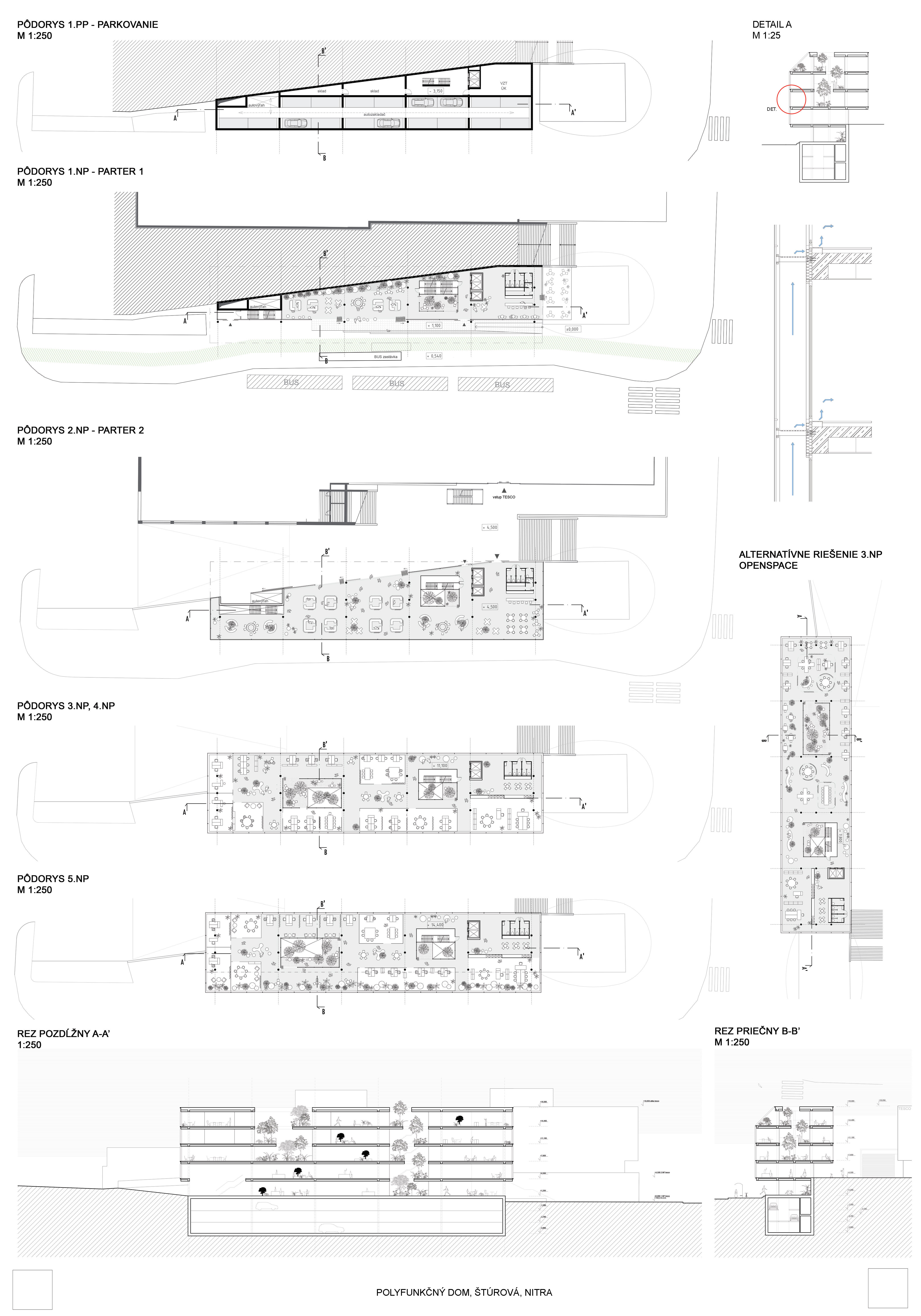
Spoločnosť Belevis, s.r.o. vyhlásila v máji jednokolovú architektonickú súťaž na architektonicko-prevádzkovú koncepciu svojho nového nitrianskeho sídla. Podmienky súťaže boli overené Slovenskou komorou architektov. "Takýto postup je v slovenských okolnostiach súkromného investorstva ešte stále nie obvyklým mechanizmom. Pritom je zrejmé, že je to východiskový logický krok zakladajúci optimálny efektívny výsledok s presahom do kultúry prostredia," uviedol predseda poroty Pavel Paňák.
Súťažiaci sa museli vysporiadať s komplikovanou situáciou v centre mesta, vrátane vzťahu so susediacim Tescom (pôvodne Prior, na ktorého návrhu sa podieľal aj architekt Ivan Matušík), rozdielnymi niveletami ulice a zložitým dopravným napojením.
Do súťaže sa zapojilo 19 autorských kolektívov. Návrh číslo 4 bol pre nesplnenie podmienok účasti vylúčený.
Porota v zložení: Pavel Paňák, Martin Kusý ml, Michal Bogár, Štefan Polakovič, Milan Csanda, Peter Mezei a za investora Mgr. Martin Repík, rozhodla 15. októbra o výsledkoch nasledovne:
1. miesto - cena 11.000 €: návrh č. 9
Sadovsky & Architects, Bratislava
A: Ing.arch. Oliver Sadovský, Mgr.art. Marián Stanislav, Ing.arch. Juraj Izrael, Ing.arch. Marek Trebuľa, Ing.arch. Matej Uhlik, Bc. The Anh Dang
Komentár poroty:
Predmetný návrh polyfunkčného domu firmy Belevis na Štúrovej ulici v Nitre je od architektov Sadovský Architects - podľa rozhodnutia poroty - originálnym, suverénnym, komplexným dielom. Rozhodovaniu o jeho víťazstve predchádzala dlhá rozprava, vyhodnocujúca všetky pre a proti, ktorá v závere vysoko ocenila skvelý celkový, architektonicko – urbanistický výsledok.
Vo veľmi zložitom mestskom prostredí sa víťaznému návrhu najlepšie podarilo zvládnuť nástrahy veľmi komplikovaného zadania, v tesnom susedstve zavedených, architektonických ikon mesta. Team architektov sa rafinovaným spôsobom pripojil k susednému objektu obchodného zariadenia od architekta Ivana Matušíka, s rešpektom tak, aby si stále dokázal zachovať vlastnú architektonickú identitu a premietol smerom von a dnu všetky logické náväznosti k prostrediu tak, aby nestrácal, ale profitoval z nich. Jasný, súčasný architektonický jazyk, mimoriadne kvalitné dispozičné riešenia jednotlivých podlaží /s až demonštratívnou snahou o pohľad na flexibilitu usporiadania budúceho používania budovy/ sa od začiatku hodnotenia stali najsilnejšími atribútmi riešenia.
Dostatočne naplnené predstavy o mestskosti riešeného objemu boli podtrhnuté zvolením správneho prístupu k riešeniu predstavy o dopravnom napojení a možných kapacitách parkovania pre posudzovaný typologický druh budovy vo svojom umiestnení.
Práve odvaha, bravúra prístupu k zadanému problému, ľahkosť pôsobenia finálneho výstupu v tak zložitom architektonickom prostredí viedli porotu ku konečnému verdiktu a udeleniu víťazstva v silne obsadenej súťaži.
Porota odporúčala investorovi a architektom/riešiteľom spätný pohľad a zamyslenie sa nad stratou istej časti objemu na Štúrovej ulici tak, aby boli /stále v mene architektúry/ maximálne možné kapacity povoleného objemu. Práve toto by mohlo byť záberom, doplnením riešenia v kole dopracovania, ku ktorému viedla porota investora zápisom.
Návrh a následná realizácia /v prípade finálneho zadania investorom/ budú zložitou cestou hľadania, nachádzania, kombinovania toho najlepšieho možného tak, aby sa výsledok stal opodstatnenou a naplnenou snahou všetkých zúčastnených /porotu nevynímajúc/.
2. miesto – cena 7.000 €: návrh č. 5
JRKVC, Bratislava
Autori: Ing.arch. Peter Jurkovič, Bc. Markéta Nikerle, Bc. Rudolf Nikerle, MSc. Jana Pajchlová
Komentár poroty:
Autori prinášajú vo svojom návrhu koncept monolitu, ktorý je vložený do územia s rešpektom k okolitému prostrediu. Tento monolit je sebavedomý partner jestvujúceho obchodného domu, je legitímne ďalšou silnou figúrou na jestvujúcej modernistickej mestskej osi. Celkovou výškou domu a hranami vystúpenej hmoty autori reflektujú výškové hladiny architektúry susedného obchodného domu. Administratívny objekt má čitateľnú tektoniku a jeho silueta vytvára zapamätateľný skulpturálny znak v mestskej krajine, čo dodáva tomuto súťažnému návrhu prínosnú dimenziu. Objekt je v prvom nadzemnom podlaží otvorený do uličného priestoru, severná fasáda je však viac uzavretá a poskytuje len čiastočný kontakt s pešou úrovňou v priestore medzi obchodným domom a novým objektom. Pôdorysy objektu sú navrhnuté prehľadne, bolo by však potrebné v určitých momentoch dispozície upraviť. Zo strany Štúrovej ulice autori ponúkajú v predpolí objektu rozmernú krytú plochu, vybavenú miestami na sedenie, čím vytvárajú kultivované prostredie zastávky MHD. Celé toto územie je chápané slovami autorov ako zdieľaný priestor, čo je sympatickým prvkom návrhu.
3. miesto – cena 5.000 €: návrh č. 11
Studio Perspektiv, Praha
Autori: Ing. arch. Martin Stára, Ing.arch. Ján Antal, Ing.arch. Sebastian Sticzay, Ing.arch. Tereza Houdková, Ing.arch. Silvia Snopková, Ing.arch. Petra Malovaná, Ing.arch. Yana Stepankova, Ing.arch. Ján Martin Púčik, Studio Monolot
Komentár poroty:
Porota na návrhu v prvom rade ocenila, že reflektuje stavbu Prioru (Matušík), dokonca dotvára jej charakteristické črty, t.j. spôsob akým sa napája na široké schodisko a rozširuje jeho využitie, presne v zmysle „zásady dobrého mestského suseda“. S tým súvisí aj návrh parteru na poschodí, ktoré ústi do existujúceho schodiska a terasy – navrhované dva živé partery a oživenie okolia sú jedným zo silných pozitív návrhu. Pozitívnym je aj spôsob akým autori reagovali na historickú „hmotovú parceláciu“, ktorá často komplikuje snahu o súčasný výzor architektúry. Budova svojim výzorom jasne deklaruje svoju polyfunkčnú funkciu. Z dispozičného hľadiska porota ocenila logicky organizované pôdorysy s veľkou variabilitou riešení, čo je vždy užitočné pre budúceho užívateľa, ako aj veľký počet áut v garáži (46) vďaka použitému zakladaču.
K slabším stránkam návrhu prispel fakt, že príliš počítal s budúcim rozšírením pešej zóny a následnej reorganizácie dopravných pruhov. Ak by k nej nedošlo, čo investor nevie garantovať, tak by nastala nevyhnutná kolízia cyklotrasy a parteru. Taktiež by návrhu prospelo priečne prepojenie riešeným objektom silnej zástavky MHD voči terase Prioru za ním.
4. miesto: návrh č. 14
DOXA, Košice
Autori: Ing. arch. Tomáš Boroš, ArtD., Ing. arch. Maroš Mitro, Ing. arch. Ondrej Jurčo, Ing. arch. Branislav Ivan
5. miesto: návrh č. 17
NIVEAU architekti, Bratislava
Autori: Ing. Stanislava Tordová, Ing. arch. Andrej Drgoňa, Ing. arch. Vladimír Torda, Ing. Vladimír Bachorec
6 - 10 miesto:
Návrh č. 2
GRIDO ARCHITEKTI, Bratislava
Autori: Ing. arch. Peter Sticzay-Gromski, Ing. arch. Martin Šimek
Návrh č. 13
ENDORFINE, Žilina
Autori: Ing. arch.Tomáš Dupkala, Ing. arch. Štefan Petras, Ing. arch. Matúš Repka, Ing. arch. Pavol Ružbarský
Návrh č. 15
DKLN, Viničné
Autori: Lucia Miklušová, Ladislav Nagy
Návrh č. 16
Beionde, Bratislava
Autori: Ing. arch. Vladimír Sekera, Mgr. art. Tomáš Augustín ArtD., Ing. arch. Kritísna Hochsteigerová, Bc. Martin Kadák, Ing. arch. Miroslava Bubláková
Návrh č. 19
R.A.U., Bratislava
Autori: Bc. Martin Bumbál, Ing. arch. Martin Bumbál, Bc. Ema Soukupová
11. – 18. miesto:
Návrh č. 1
adbau +, Bratislava
Autori: Ing .arch. Ivo Flimmel, ArtD.
Návrh č. 3
MOLNÁR-PERÁČEK, Bratislava
Autori: Ľubomír Peráček ml., Ľubomír Peráček st., Juraj Molnár
Návrh č. 6
ATELIÉR A.BKPŠ Šutek, Bratislava
Autori: Akad. arch. Eduard Šutek, Ing. arch. Andrej Šutek
Návrh č. 7
Radoslav Grečmal, Bratislava
Autori: Ing. arch. Radoslav Grečmal, Mgr. arch. Aurel Fábri, doc. Ing. arch. Roberta Štěpánková, PhD., doc. Ing. Gabriel Kuczman, PhD., Ing. Attila Tóth, PhD., Ing. arch. Karol Kundrák
Návrh č. 8
Márius Žitňanský a Vladimír Šimkovič, Bratislava
Autori: Márius Žitňanský, Vladimír Šimkovič, Michaela Perejdová, Mária Horváthová
Návrh č. 10
JURANI&TOMA ARCHITEKTI, Bratislava
Autori: Mgr. arch. Miloš Juráni, Ing. arch. Július Toma
Návrh č. 12
MEB architects, Bzince pod Javorinou
Autori: Ing.arch. Eva Babuliaková Ing.arch. Matej Babuliak
Návrh č. 18
ARDELINE, Bratislava
Autori: Mgr. art. Martin Hruška, Ing. Zuzana Dohňanská, Ing. Anna Gaborčáková, Ing. Matej Orolín, Diego Alejandro Pérez Aponte, arch. Matej Vais, Ing. arch. Branislav Števko
Komentár predsedu poroty Ing. arch. Pavla Paňáka k súťaži a odporúčania vyhlasovateľovi
Porota vysoko hodnotí zámer investora a vyhlasovateľa súťaže spoločnosti Belevis, s.r.o. získať pre svoje sídlo takú architektonicko-prevádzkovú koncepciu, ktorá vzíde zo súťaže návrhov. Takýto postup je v slovenských okolnostiach súkromného investorstva ešte stále nie obvyklým mechanizmom. Pritom je zrejmé, že je to východiskový logický krok zakladajúci optimálny efektívny výsledok s presahom do kultúry prostredia.
Miesto budúceho objektu je osobitne prestížna pozícia v centre mesta. Jej zastavovacie a objem limitujúce podmienky sú zvlášť komplikované vzhľadom na obrysy parcelného vlastníctva ako aj na podmienky stanovené pamiatkovým nárokom i na podmienky pešej a cyklistickej trasy i významného ohniska MHD. Objekt musí reagovať na rozdielne nivelety voči terase obchodného centra a uličnej strany, ktorá je naviac v sklone.
Vzhľadom k týmto okolnostiam je oboslanie súťaže 19 návrhmi možné označiť ako vysokú účasť. Vo svojom súhrne možno konštatovať, že súťaž reflektuje stúpajúcu kvalitu slovenskej architektúry. Predložené návrhy predstavujú celé spektrum tendencií prítomných na našej architektonickej scéne. Nitra je najmä vo svojej povojnovej histórii 2. polovice 20. storočia miestom viacerých dôležitých architektonických počinov. Obytné súbory z 50. a 60. rokov, viaceré súbory a objekty vysokého školstva – osobitne SPU, objekty DAB a iné priraďujú Nitru k slovenským mestám prajúcim kvalitnej architektonickej produkcii. Osobitne Štúrova ulica, na ktorej sa riešený objekt bude nachádzať, je v tomto kontexte jednou z tých novodobých sebavedomých mestských osí, ktoré hodnotne reprezentujú povojnovú urbánnu dynamiku Slovenska.
Súťaž preukázala, že komplikované zastavovacie podmienky nebránia prítomnosti architektonickej kvality.
Všetky tu ocenené návrhy, ale aj ostatné návrhy najmä posledného postupového kola, sú kvalitnými predstaviteľmi vopred spomenutých trendov, vlastnia viaceré podnetné črty či z hľadiska svojbytnosti architektonického zjavu, z hľadiska optimálnej organizácie podlaží pracovísk, z hľadiska atraktívneho parteru v oboch jeho predpokladaných úrovniach. Majú predpoklad autonómneho zjavu v mieste svojho severného priečelia (štítu) aj v čase absentovania plánovaného nárožného objektu.
Odporučenia súťažnej poroty vyhlasovateľovi:
Zápisnica zo zasadnutia poroty:
Za podklady k spracovaniu článku ďakujeme Branislavovi Šarmírovi / obstaráme, s.r.o.