Advertorial

Pozvánka na 2. ročník stavebného veľtrhu BigMarket na Slovensku

Na podujatí sa predstaví až 37 vystavovateľov - popredných dodávateľov stavebných materiálov a inovácií s prezentáciou...

Hotel Hirschen Spa House, Rakúsko

Novotvar v prostredí alpskej obce.

Vytvorte si kúpeľňu snov: dizajnové riešenie od značky hansgrohe

Hansgrohe - prémiová značka kúpeľňových riešení, ponúka nadčasový dizajn, technickú precíznosť a udržateľné inovácie...

Okná Internorm za minuloročné ceny + hliníkový kryt zdarma!

Využite špeciálnu akciu Internorm: okná za minuloročné ceny a hliníkový kryt úplne zadarmo. Ponuka je časovo obmedzená!

Moderné plynové technológie: Efektivita a inovácie pre 21. storočie

Sumarizácia najdôležitejších inovácií, ktoré redefinujúcich využitie tohto energetického zdroja.

Utesňovanie spodných stavieb pomocou hydro-aktívnej fólie AMPHIBIA.

AMPHIBIA 3000 GRIP 1.3 od spoločnosti ATRO predstavuje modernú hydroizolačnú technológiu, ktorá spája vysokú odolnosť,...

Dekarbonizácia individuálneho vykurovania domácností – Green Deal evolučne a nie revolučne

Ambiciózne plány EK narazili na ekonomické možnosti domácností v jednotlivých členských štátoch –...

Minimalistické dvere IDEA – technická precíznosť a čistota prevedenia

IDEA DOOR od spoločnosti JAP prináša do interiéru čistý minimalistický vzhľad vďaka bezrámovému riešeniu a precíznej...

Dom s výhľadom na údolie, Dlouhý Most (ČR)

Kontinuita riešenia od vonkajšieho obkladu až po kovania a kľučky.

Schell Vitus – osvedčené riešenie pre sprchy a umývadlá vo verejnom sektore s viac ako desaťročnou tradíciou

Nástenné nadomietkové armatúry Vitus sú mimoriadne vhodné pre rýchlu a efektívnu...

Kompozitné okná predstavujú súčasnosť a budúcnosť

Okenné profily z kompozitného materiálu RAU-FIPRO X od spoločnosti Rehau sú v porovnaní s tradičnými plastovými profilmi mnohonásobne...

Myotis - stoly 2025

Najnovší sortiment stolov pre zariadenie interiérov...

Priemyselné sklenené priečky Dorsis Digero: svetelné rozhranie pre moderné interiéry

Spojenie moderného dizajnu, funkčnosti a svetla do harmonického architektonického prvku.

Význam prirodzeného svetla pre moderné a flexibilné pracovné prostredie

Kancelárska budova Baumit v slovinskom Trzine prešla premenou na moderné a udržateľné pracovisko. Architekti kládli dôraz...

Konferencia Xella Dialóg predstaví novinky a trendy v stavebníctve

Mottom šiesteho ročníku on-line konferencie odborníkov Xella Dialóg je Efektívny návrh budov 2025+: zmeny a riešenia

Administratívna budova Veterná, Nitra

Doplnenie štruktúry v centre mesta.
Diela
Red 329.06.2021
50240+89
Administratívna budova Veterná, Nitra
Autori: Ing.arch. František Duba, Ing. arch. Balázs Füzék, Ing. arch. Eduard JančíkPlocha pozemku: 497 m2Zastavaná plocha: 216 m2Podlažná plocha: 640 m2Návrh: 2017 - 2017Realizácia: 2018 - 2020Adresa: Veterná , Nitra, SlovenskoPublikované: 29. jún 2021

Administratívna budova v tichej lokalite v centre Nitry, na Veternej ulici. V komplikovanom mestskom prostredí museli autori zvládnuť nástrahy zadania, v tesnom susedstve s barokovým Piaristickým kostolom a gymnáziom z 18. storočia. Na historický blok architekti reagovali viacerými nepriamymi odkazmi. Vlastná (nová) architektonická identita však ostáva silnou súčasťou kontextuálneho riešenia. Nadväznosti k prostrediu sú logicky premietnuté smerom navonok, aj do prehľadnej vnútornej štruktúry, so zreteľom na budúcu flexibilitu. Novostavba zo severu susedí s administratívnym centrom z 80. rokov, ku ktorému smeruje plná fasáda. Výhľady sú komponované smerom k piaristom, do uličky Veterná.

Foto: Nora a Jakub Čaprnkovci

Materiálové a farebné riešenie je prispôsobené okoliu. Tlmenú farebnosť celoplošne použitých lícových tehál dopĺňajú hliníkové rámy zasklenia v bronzovej farbe RAL 7048.

Foto: Nora a Jakub Čaprnkovci

Dispozícia a prevádzka

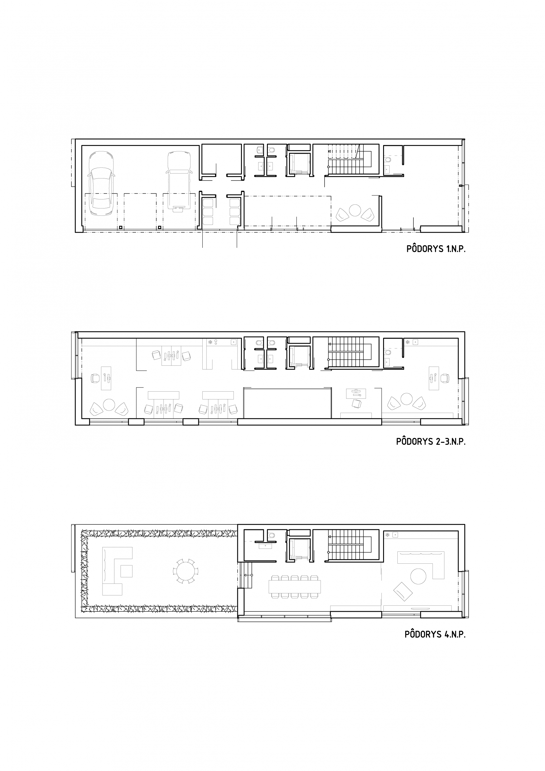
Na prízemí, prístupnom priamo z ulice Veterná víta návštevníkov prevýšené lobby. Celopresklená fasáda, smerujúca do Piaristickej ulice, umožňuje okoloidúcim nahliadnuť do otvoreného showroomu. Súčasťou prízemia je garáž pre tri autá (zvyšných osem parkovacích miest je v exteriéri, priamo za objektom), nevyhnutný technický blok a hygienické zázemie.  Kancelárie na druhom a treťom nadzemnom podlaží tvorí mix open space priestorov a menších uzatvorených blokov. Zasadacia miestnosť je na každom poschodí. Priestory na najvyššom ustúpenom podlaží rozširuje pobytová terasa s výmerou 75 m2.

Situácia
SituáciaAutor: GRUP architects
Pôdorysy
PôdorysyAutor: GRUP architects
Pohľady
PohľadyAutor: GRUP architects

Konštrukcia a technické riešenie

Nosný systém objektu s pôdorysnou stopou 7,2 x 30 m tvorí kombinácia železobetónových monolitických častí a murovaných konštrukcií. Stenový nosný systém prenáša zaťaženie na základové pásy, kotvené do krátkych betónových pilót. Obvodové múry aj vnútorné nosné steny sú murované z pórobetónových tvaroviek. Podlažia s konštrukčnou výškou 3250 mm uzatvárajú monolitické stropy. Všetky obvodové steny sú zateplené minerálnou vlnou hrúbky 200 mm, v exponovaných soklových častiach  nahrádza mäkký materiál extrudovaný polystyrén. Dominantný stĺpikovo-priečnikový fasádny systém s izolačným trojskom, smerujúci do Piaristickej ulice, dopĺňa fixné zasklenie s otváravo-výklopnými častami.

Detaily
DetailyAutor: GRUP architects
Foto: Nora a Jakub Čaprnkovci
Foto: Nora a Jakub Čaprnkovci
Foto: Nora a Jakub Čaprnkovci
Foto: Nora a Jakub Čaprnkovci
Foto: Nora a Jakub Čaprnkovci
Foto: Nora a Jakub Čaprnkovci
Foto: Nora a Jakub Čaprnkovci
Foto: Nora a Jakub Čaprnkovci
Foto: Nora a Jakub Čaprnkovci
Foto: Nora a Jakub Čaprnkovci
Foto: Nora a Jakub Čaprnkovci
Foto: Nora a Jakub Čaprnkovci
Foto: Nora a Jakub Čaprnkovci
Foto: Nora a Jakub Čaprnkovci
Foto: Nora a Jakub Čaprnkovci
Foto: Nora a Jakub Čaprnkovci
Foto: Nora a Jakub Čaprnkovci
Foto: Nora a Jakub Čaprnkovci
Foto: Nora a Jakub Čaprnkovci
Foto: Nora a Jakub Čaprnkovci
Foto: Nora a Jakub Čaprnkovci
Foto: Nora a Jakub Čaprnkovci
Foto: Nora a Jakub Čaprnkovci
Foto: Nora a Jakub Čaprnkovci
Foto: Nora a Jakub Čaprnkovci
Foto: Nora a Jakub Čaprnkovci
Foto: Nora a Jakub Čaprnkovci
Foto: Nora a Jakub Čaprnkovci
Foto: Nora a Jakub Čaprnkovci

Poloha diela

Ing.arch. František Duba
Ing. arch. Balázs Füzék
Ing. arch. Eduard Jančík
Vložené
22. jún 2021
0
5024
Hlavný obsahHlavný obsah
Čakajte prosím