Advertorial

Hotel Hirschen Spa House, Rakúsko

Novotvar v prostredí alpskej obce.

Vytvorte si kúpeľňu snov: dizajnové riešenie od značky hansgrohe

Hansgrohe - prémiová značka kúpeľňových riešení, ponúka nadčasový dizajn, technickú precíznosť a udržateľné inovácie...

Okná Internorm za minuloročné ceny + hliníkový kryt zdarma!

Využite špeciálnu akciu Internorm: okná za minuloročné ceny a hliníkový kryt úplne zadarmo. Ponuka je časovo obmedzená!

Pozvánka na 2. ročník stavebného veľtrhu BigMarket na Slovensku

Na podujatí sa predstaví až 37 vystavovateľov - popredných dodávateľov stavebných materiálov a inovácií s prezentáciou...

Moderné plynové technológie: Efektivita a inovácie pre 21. storočie

Sumarizácia najdôležitejších inovácií, ktoré redefinujúcich využitie tohto energetického zdroja.

Utesňovanie spodných stavieb pomocou hydro-aktívnej fólie AMPHIBIA.

AMPHIBIA 3000 GRIP 1.3 od spoločnosti ATRO predstavuje modernú hydroizolačnú technológiu, ktorá spája vysokú odolnosť,...

Dekarbonizácia individuálneho vykurovania domácností – Green Deal evolučne a nie revolučne

Ambiciózne plány EK narazili na ekonomické možnosti domácností v jednotlivých členských štátoch –...

Minimalistické dvere IDEA – technická precíznosť a čistota prevedenia

IDEA DOOR od spoločnosti JAP prináša do interiéru čistý minimalistický vzhľad vďaka bezrámovému riešeniu a precíznej...

Dom s výhľadom na údolie, Dlouhý Most (ČR)

Kontinuita riešenia od vonkajšieho obkladu až po kovania a kľučky.

Schell Vitus – osvedčené riešenie pre sprchy a umývadlá vo verejnom sektore s viac ako desaťročnou tradíciou

Nástenné nadomietkové armatúry Vitus sú mimoriadne vhodné pre rýchlu a efektívnu...

Kompozitné okná predstavujú súčasnosť a budúcnosť

Okenné profily z kompozitného materiálu RAU-FIPRO X od spoločnosti Rehau sú v porovnaní s tradičnými plastovými profilmi mnohonásobne...

Myotis - stoly 2025

Najnovší sortiment stolov pre zariadenie interiérov...

Priemyselné sklenené priečky Dorsis Digero: svetelné rozhranie pre moderné interiéry

Spojenie moderného dizajnu, funkčnosti a svetla do harmonického architektonického prvku.

Význam prirodzeného svetla pre moderné a flexibilné pracovné prostredie

Kancelárska budova Baumit v slovinskom Trzine prešla premenou na moderné a udržateľné pracovisko. Architekti kládli dôraz...

Konferencia Xella Dialóg predstaví novinky a trendy v stavebníctve

Mottom šiesteho ročníku on-line konferencie odborníkov Xella Dialóg je Efektívny návrh budov 2025+: zmeny a riešenia

Interiér bytu Strážnická, Bratislava

Svetlo, dub, terazzo.
Diela
Red 314.03.2022
26010+19
Interiér bytu Strážnická, Bratislava
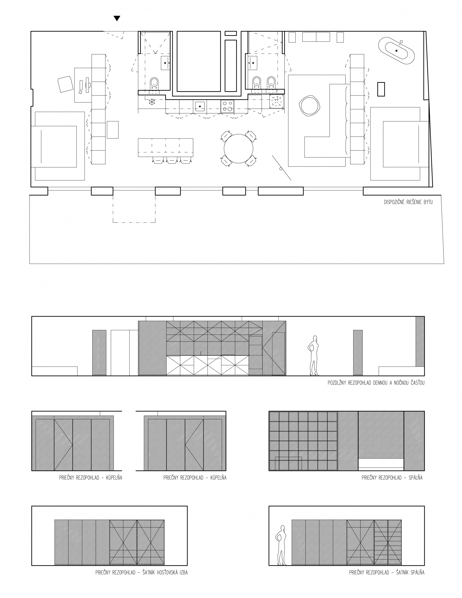
Autori: Ing. arch. Eduard JančíkPodlažná plocha: 110 m2 + 50 m2 terasaNávrh: 2019 - 2019Realizácia: 2019 - 2020Adresa: Strážnická , Bratislava, SlovenskoPublikované: 14. marec 2022

Pred časom sme publikovali interiér bytu na Povrazníckej ulici, ktorého autorom je architekt Eduard Jančík. Dnes sa pozrieme opäť do širšieho centra Bratislavy, konkrétne na necelý kilometer vzdialenú Strážnickú Ulicu. Veľký prízemný byt s výmerou 110 m2 a bezbariérovo prístupnou vonkajšou terasou nesie viaceré prvky rukopisu autora. Výraznú prírodnú kresbu dubového dreva v tomto prípade dopĺňa terazzo z kararského mramoru.

Foto: Tomáš Manina
Foto: Tomáš Manina

Špecifikom bytu je spomínaný otvorený pôdorys a obytná plocha prepojená s exteriérom prostredníctvom rozmerných francúzskych okien. Architektonický koncept ťaží z východiskovej situácie. Dispozícia je s výnimkou kúpeľne plne otvorená. Priestor delia iba solitérne nábytkové bloky navrhnuté na mieru, ktoré súčasne určujú finálny vizuál interiéru. Do zvoleného zámeru zapadá aj samostatne stojaca vaňa v otvorenej spálni.

Kvalitné materiály, dôsledne integrované obslužné a odkladacie priestory, alebo dotiahnuté detaily prispievajú k vyzneniu architektonického konceptu. Medený odtieň dyhy vystupuje do popredia na prirodzenom svetle, prenikajúcom do interiéru cez rozmerné plochy zasklenia.

Autor: Eduard Jančík / GRUP architects
Foto: Tomáš Manina
Foto: Tomáš Manina
Foto: Tomáš Manina
Foto: Tomáš Manina

Podklady: Eduard Jančík / GRUP architects

Poloha diela

Ing. arch. Eduard Jančík
Vložené
8. marec 2022
0
2601
Hlavný obsahHlavný obsah
Čakajte prosím