Európska značka okien oslavuje jubileum: za 95 rokov sa vyvinula na najväčšiu medzinárodne pôsobiacu okennú značku a inovačného...
Na podujatí sa predstaví až 37 vystavovateľov - popredných dodávateľov stavebných materiálov a inovácií s prezentáciou...
Novotvar v prostredí alpskej obce.
Hansgrohe - prémiová značka kúpeľňových riešení, ponúka nadčasový dizajn, technickú precíznosť a udržateľné inovácie...
Využite špeciálnu akciu Internorm: okná za minuloročné ceny a hliníkový kryt úplne zadarmo. Ponuka je časovo obmedzená!
Sumarizácia najdôležitejších inovácií, ktoré redefinujúcich využitie tohto energetického zdroja.
AMPHIBIA 3000 GRIP 1.3 od spoločnosti ATRO predstavuje modernú hydroizolačnú technológiu, ktorá spája vysokú odolnosť,...
Ambiciózne plány EK narazili na ekonomické možnosti domácností v jednotlivých členských štátoch –...
IDEA DOOR od spoločnosti JAP prináša do interiéru čistý minimalistický vzhľad vďaka bezrámovému riešeniu a precíznej...
Kontinuita riešenia od vonkajšieho obkladu až po kovania a kľučky.
Nástenné nadomietkové armatúry Vitus sú mimoriadne vhodné pre rýchlu a efektívnu...
Okenné profily z kompozitného materiálu RAU-FIPRO X od spoločnosti Rehau sú v porovnaní s tradičnými plastovými profilmi mnohonásobne...
Najnovší sortiment stolov pre zariadenie interiérov...
Spojenie moderného dizajnu, funkčnosti a svetla do harmonického architektonického prvku.
Kancelárska budova Baumit v slovinskom Trzine prešla premenou na moderné a udržateľné pracovisko. Architekti kládli dôraz...

Posledná dokončená etapa oceňovaného Trnavského projektu Nádvorie, priestoru súčasnej kultúry, ktorý vznikol spojením parciel historických meštianskych domov a ich nádvorí do jedného prepojeného komplexu. Nová náplň krídla, orientovaného do Pekárskej ulice oživila pôvodnú stavbenú substanciu meštianskeho domu, ktorú citlivo doplnili súčasné zásahy. Nové dvorové krídlo charakterizuje hybridná konštrukcia s tradičnými murovanými a inovatívnymi prefabrikovanými konštrukciami EcoCocon. Autorom z ateliéru Sadovsky & Architects sa opäť podarilo zachovať pestrosť aj rôznorodosť typickú pre rastlé historické jadrá.
Realizáciu bližšie predstaví rozsiahly sprievodný text autorov:
História
Rekonštruovaný meštiansky dom patrí medzi pamätihodnosti mesta Trnava a nachádza sa v pamiatkovej zóne mesta. Pôvodne symetrický objekt z ulice v pôdorysnom tvare U prešiel viacerými prestavbami. Podzemné podlažie siahajúce do obdobia stredoveku bolo postupne nadstavované. Renesančná klenba na prízemí dokumentuje tento postupný trend. Na začiatku 20. storočia bol objekt nadstavaný o dve nadzemné podlažia a jeho centrálny prejazd bol upravený do podoby vstupnej haly s otvoreným schodiskom. V druhej polovici 20. storočia bola časť uličného, ako aj dvorového krídla, asanovaná neskôr čiastočne dostavaná. Táto fragmentácia bola čitateľná ako vo fasádach, tak aj v dispozičnom riešení a jednotlivé novotvary boli vnímateľné ako samostatné objekty.
Rekonštrukcia
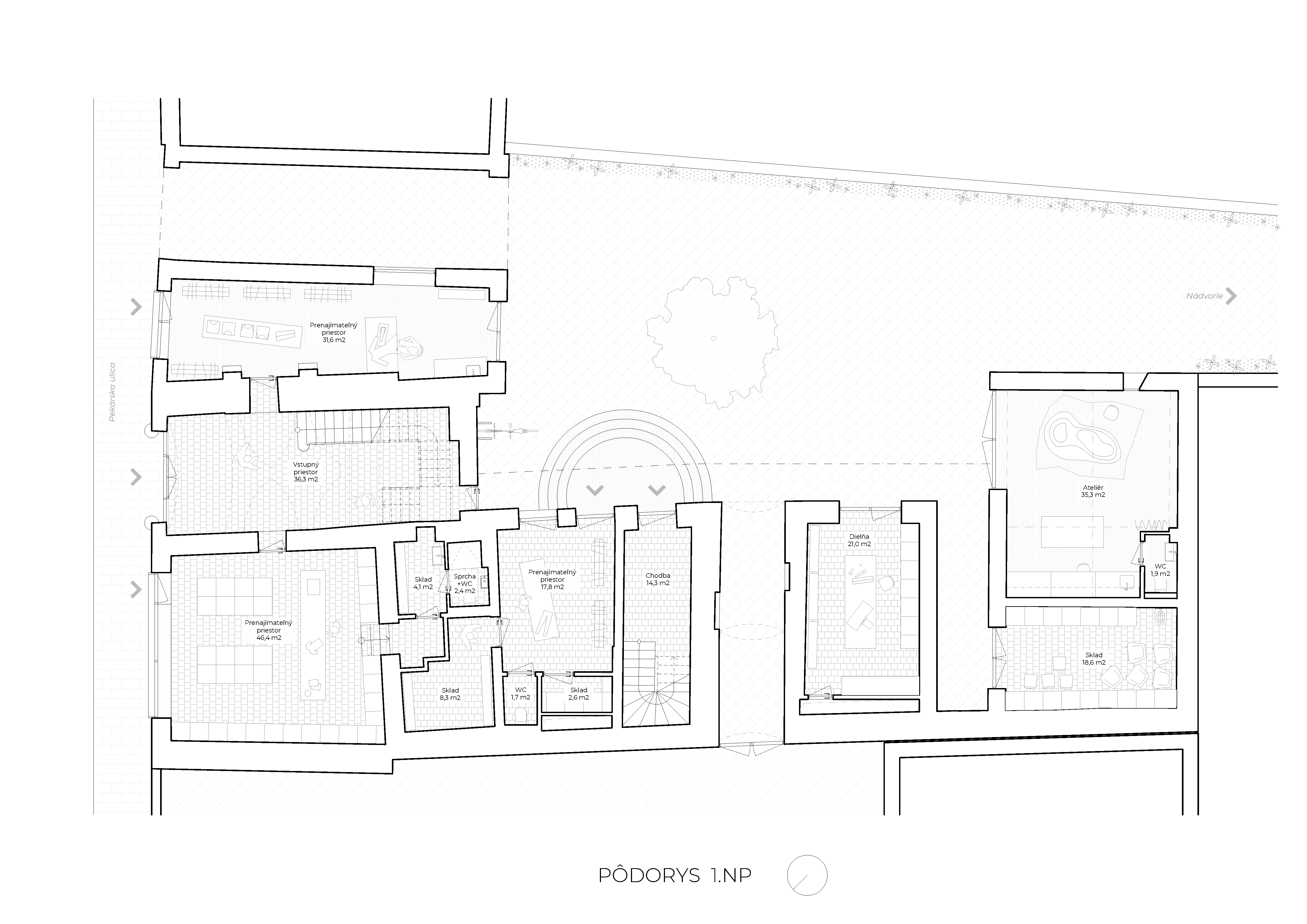
Uličné krídlo bolo zrekonštruované s fasádou v symetrickej podobe zo začiatku 20. storočia s ponechaním novšieho funkčného delenia na prízemí s prejazdom, vstupom, či výkladmi a prezentáciou hodnotných fragmentov predošlých podôb stavby.
Pôvodný prejazd bol podporený odhalením pôvodnej podoby portálu s nárazníkmi a transparentnou výplňou, s priehľadom cez vstupnú halu kreatívneho centra až do dvorovej časti. Náznaková rekonštrukcia pôvodnej klenby prejazdu rovnako dokumentuje jednotlivé etapy života domu.
Toto zjednotenie prebiehalo takisto aj v dispozičnom riešení, kde boli obe časti navzájom prepojené. Okrem prenajímateľných priestorov ako aktívneho partru bol v prízemí umiestnený pop-up priestor kreatívneho centra, ktorý sa otvára do pasáže prejazdu veľkorysým oknom ako parafráza pôvodných historických priehľadov prízemnej miestnosti do dvora.
Novým vstupom bolo využitie podkrovia ako zdieľaného ateliéru. To bolo zabezpečené vložením pokračovania otvoreného schodiska v podobe oceľového novotvaru. V priestoroch novej časti uličného krídla bol vytvorený dvojpodlažný priestor s mezanínom určený pre fotoateliér. Ustúpené podlažie v priestore vikiera orientovaného do dvora funguje ako rozšírenie zdieľaného ateliéru. Podkrovný ateliér je okrem oddelenej malej dielne vybavený tmavou komorou.
Kľúčovým priestorom je klubovňa kreatívneho centra, ktorý sa nachádza v strede uličného krídla na druhom nadzemnom podlaží. Multifunkčný priestor je vybavený flexibilným mobiliárom a umožňuje viacero scenárov využitia. Vstupná časť s knižnicou sprístupňuje novú pavlač v dvorovom krídle, ktorá je hlavným prístupom individuálnych ateliérov.
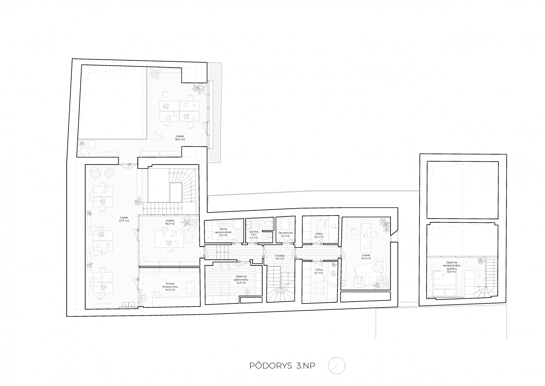
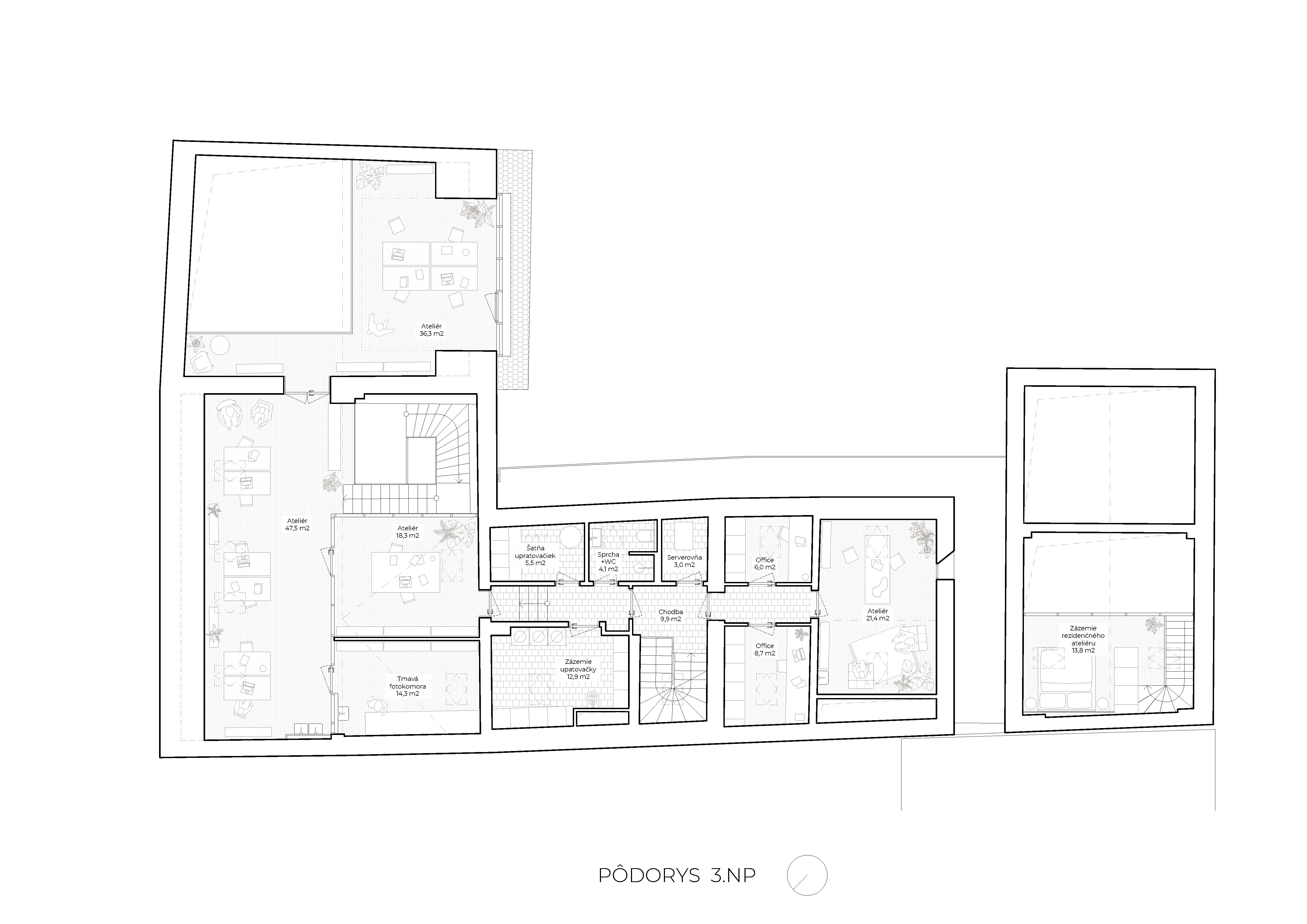
Dvorovú časť tvorí rekonštruované krídlo objektu, ktoré končí poslednou zachovanou historickou konštrukciou renesančnej klenby. Tá je odhalená v rámci pasáže do vedľajšieho objektu, zázemia celého komplexu. Parter je vizuálne otvorený a nachádzajú sa tu ako dielne, tak aj prenajímateľné priestory. Na poschodí sú umiestnené individuálne ateliéry.
Novotvar
Novú časť tvorí kompozícia hmôt dostavby a priečneho dvorového krídla v pôvodnej pôdorysnej stope predošlej zástavby. Priebežná pavlač je tomto prípade použitá ako spoločná komunikácia, ktorá vizuálne oddeľuje jednotlivé hmoty.
V dostavbe pokračuje program dielne a ateliérov a dispozične je prepojená s rekonštruovanou časťou. Priečne dvorové krídlo obsahuje rezidenčný ateliér s dielňou a zázemím.
Návrh pracuje s priehľadmi a archetypálna forma schránky domu je vo vnútri koncipovaná ako kaskádovito ustupujúce podlažia, pričom je priestor nad kaskádami otvorený až po strechu domu. Vzniká tak spodný priestor ateliéru, ktorý siaha cez 3 podlažia a je možné ho otvoriť do dvora. Ateliér má príručnú dielňu, ktorú je možné oddeliť počas výstav. Zároveň je vybavený žeriavom s možnosťou zdvíhania a prenášania objektov. Táto možnosť ponúka využitie pre prácu na nadrozmerných objektoch.
Na ďalšom podlaží sa nachádza hlavná zóna zázemia ateliéru, ktorá je prístupná z pavlače domu. Vizuálne je tento otvorený dvojpodlažný priestor prepojený s ateliérom. Na mezaníne, prístupnom interiérovým schodiskom, sa nachádza oddychová zóna zázemia.
Udržateľnosť
Udržateľnosť je jednou z hlavných tém rekonštrukcie.
V rámci projektu bol zvolený experimentálny prístup k dopĺňanému dvorovému krídlu budovy, ktorý skúma alternatívne materiálové riešenia slamenno-drevených prefabrikovaných blokov EcoCocon v komplikovanom kontexte historického centra a nových typologických aplikáciách. Výsledkom je hybridná konštrukcia, ktorá pracuje ako s tradičnými murovanými stenami, tak aj s oceľovými rámami, pričom sa spomínané drevo-slamené prefabrikáty podieľajú na stužujúcej funkcii konštrukcie. Okrem nízkej uhlíkovej stopy dosahuje použitý materiál výborné vlastnosti priedušnosti, čo podporujú aj hlinené omietky použité v interiéri a prevetrávaná fasáda z vonkajšej strany.
Dostavby sú takisto výrazovo odlíšené, nadväzujúc na novotvary v Nádvorí. Použitý materiál tehlového fasádneho obkladu odkazuje na tradičný trnavský stavebný materiál.
Rovnako bol dôraz kladený aj na hospodárenie s energiami počas prevádzky stavby. Napriek limitovaným možnostiam úspory obnovovaného objektu z hľadiska prezentácie prvkov kultúrneho dedičstva sa podarilo vybudovať systém, ktorý dokáže bez potreby dodatočnej výroby energie zásobiť objekt počas celého roka.
Systém sa skladá z tepelných čerpadiel zem-voda. Sedem podzemných vrtov s hĺbkou 120m má schopnosť akumulovať energiu v podloží, ktorú je následne možné čerpať počas zimy vo forme tepla a počas leta vo forme chladu.
Použité materiály a riešenia:
Bobrovka Tondach ohrúhly rez - strecha meštianskeho domu, orientovaného do Pekárenskej ulice.
Podklady: Sadovsky & Architects
Fotografie: Matej Hakár