Advertorial

Pozvánka na 2. ročník stavebného veľtrhu BigMarket na Slovensku

Na podujatí sa predstaví až 37 vystavovateľov - popredných dodávateľov stavebných materiálov a inovácií s prezentáciou...

Hotel Hirschen Spa House, Rakúsko

Novotvar v prostredí alpskej obce.

Vytvorte si kúpeľňu snov: dizajnové riešenie od značky hansgrohe

Hansgrohe - prémiová značka kúpeľňových riešení, ponúka nadčasový dizajn, technickú precíznosť a udržateľné inovácie...

Okná Internorm za minuloročné ceny + hliníkový kryt zdarma!

Využite špeciálnu akciu Internorm: okná za minuloročné ceny a hliníkový kryt úplne zadarmo. Ponuka je časovo obmedzená!

Moderné plynové technológie: Efektivita a inovácie pre 21. storočie

Sumarizácia najdôležitejších inovácií, ktoré redefinujúcich využitie tohto energetického zdroja.

Utesňovanie spodných stavieb pomocou hydro-aktívnej fólie AMPHIBIA.

AMPHIBIA 3000 GRIP 1.3 od spoločnosti ATRO predstavuje modernú hydroizolačnú technológiu, ktorá spája vysokú odolnosť,...

Dekarbonizácia individuálneho vykurovania domácností – Green Deal evolučne a nie revolučne

Ambiciózne plány EK narazili na ekonomické možnosti domácností v jednotlivých členských štátoch –...

Minimalistické dvere IDEA – technická precíznosť a čistota prevedenia

IDEA DOOR od spoločnosti JAP prináša do interiéru čistý minimalistický vzhľad vďaka bezrámovému riešeniu a precíznej...

Dom s výhľadom na údolie, Dlouhý Most (ČR)

Kontinuita riešenia od vonkajšieho obkladu až po kovania a kľučky.

Schell Vitus – osvedčené riešenie pre sprchy a umývadlá vo verejnom sektore s viac ako desaťročnou tradíciou

Nástenné nadomietkové armatúry Vitus sú mimoriadne vhodné pre rýchlu a efektívnu...

Kompozitné okná predstavujú súčasnosť a budúcnosť

Okenné profily z kompozitného materiálu RAU-FIPRO X od spoločnosti Rehau sú v porovnaní s tradičnými plastovými profilmi mnohonásobne...

Myotis - stoly 2025

Najnovší sortiment stolov pre zariadenie interiérov...

Priemyselné sklenené priečky Dorsis Digero: svetelné rozhranie pre moderné interiéry

Spojenie moderného dizajnu, funkčnosti a svetla do harmonického architektonického prvku.

Význam prirodzeného svetla pre moderné a flexibilné pracovné prostredie

Kancelárska budova Baumit v slovinskom Trzine prešla premenou na moderné a udržateľné pracovisko. Architekti kládli dôraz...

Konferencia Xella Dialóg predstaví novinky a trendy v stavebníctve

Mottom šiesteho ročníku on-line konferencie odborníkov Xella Dialóg je Efektívny návrh budov 2025+: zmeny a riešenia

Dom pre rodinu s domácimi zvieratkami, Bratislava

Záhrada, súkromie a štvornohí miláčikovia.
Diela
Red 404.07.2021
75600+60
Dom pre rodinu s domácimi zvieratkami, Bratislava
Autori: Ing. arch. Oliver Sadovský, Ing. arch. Matúš Vallo, Ing. arch. Branislav Husárik, Mgr. art. Marián Stanislav, Ing. arch. Silvia Rosíková, Ing. arch. Zuzana Krejčířová, Ing. arch. Martin Červienka, Ing. arch. Mateja VonkomerováPodlažná plocha: 280 m2Návrh: 2016 - 2017Realizácia: 2017 - 2020Adresa: Pod Slancom , Bratislava, SlovenskoPublikované: 4. júl 2021

"Dom v dome" (v našich končinách už odskúšaný koncept - LJM, Dom v Bernolákove,  dom v Smrečanoch...) hľadá odpoveď na zdanlivo protichodné požiadavky zachovania súkromia v koncentrovanej zástavbe a súčasné prepojenie obytnej plochy so záhradou a exteriérom.

Realizácia ateliéru Sadovsky & Architects nie je len sebavedomým gestom prezentujúcim zvolený architektonický koncept. Architekti tiež prirodzene pracujú s okolitým terénom a komponovaním atraktívnych priehľadov do okolia. 

Foto: Nora a Jakub Čaprnkovci

Pozemok sa nachádza v relatívne hustej zástavbe rodinných domov v bratislavskej časti Pod Slancom, čo do veľkej miery ovplyvnilo osadenie domu aj výsledné priestorové riešenie. Obvodový múr sa oddeľuje od centrálne osadenej stavby, expanduje do záhrady a jej časť pripája k domu. 

Foto: Nora a Jakub Čaprnkovci
Foto: Nora a Jakub Čaprnkovci

Zadanie sme dostali od veľmi milej rodiny s nevšedným počtom domácich zvieratiek...

Foto: Nora a Jakub Čaprnkovci

Betónova perforovaná stena vytvára polopriepustnú membránu, ktorá delí záhradu na vnútornú a vonkajšiu zónu. Vnútorná záhrada tvorí plynulé rozšírenie interiéru do intímneho a kontrolovaného vonkajšieho priestoru. Časť záhrady “za múrom” je naopak prírodnejšia a bujnejšia.

Foto: Nora a Jakub Čaprnkovci
Foto: Nora a Jakub Čaprnkovci

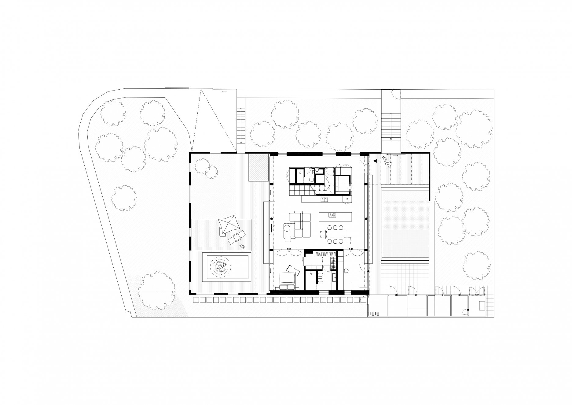
Prízemie domu je otvoreným priestorom. Pevné steny z dvoch strán nahrádza rozsiahle presklenie, smerujúce do vnútorných záhrad. Hlavná obytná časť je v centrálnej polohe z jednej strany ohraničená obslužným “boxom” schodiska, skladových priestorov a hygienického zázemia a zo strany opačnej rodičovským traktom spálne, kúpeľne a pracovne. Kuchyňa smeruje do úžitkovej záhrady, obývacia izba k pobytovej záhrade s trávnikom a bazénom. Veľký svetlík nad kuchyňou prepúšťa difúzne svetlo do centra dispozície. Na druhom podlaží sú umiestnené detské izby s hygienou.

Priestorová schéma
Priestorová schémaAutor: Sadovsky & Architects
Pôdorys prízemia
Pôdorys prízemiaAutor: Sadovsky & Architects
Pôdorys poschodia
Pôdorys poschodiaAutor: Sadovsky & Architects
Foto: Nora a Jakub Čaprnkovci
Foto: Nora a Jakub Čaprnkovci
Foto: Nora a Jakub Čaprnkovci
Foto: Nora a Jakub Čaprnkovci
Foto: Nora a Jakub Čaprnkovci
Foto: Nora a Jakub Čaprnkovci
Foto: Nora a Jakub Čaprnkovci

Poloha diela

Ing. arch. Oliver Sadovský
Ing. arch. Matúš Vallo
Ing. arch. Branislav Husárik
Mgr. art. Marián Stanislav
Ing. arch. Silvia Rosíková
Ing. arch. Zuzana Krejčířová
Ing. arch. Martin Červienka
Ing. arch. Mateja Vonkomerová

Súvisiace články

Vložené
2. júl 2021
0
7560
Hlavný obsahHlavný obsah
Čakajte prosím