Okenné profily z kompozitného materiálu RAU-FIPRO X od spoločnosti Rehau sú v porovnaní s tradičnými plastovými profilmi mnohonásobne...
Najnovší sortiment stolov pre zariadenie interiérov...
Spojenie moderného dizajnu, funkčnosti a svetla do harmonického architektonického prvku.
Kancelárska budova Baumit v slovinskom Trzine prešla premenou na moderné a udržateľné pracovisko. Architekti kládli dôraz...
Mottom šiesteho ročníku on-line konferencie odborníkov Xella Dialóg je Efektívny návrh budov 2025+: zmeny a riešenia
Robot WLTR predstavuje moderný prístup k murovaným konštrukciám. Vďaka automatizácii dokáže rýchlo, presne a bezpečne realizovať...
Okrem bezpečnosti majú okná aj elegantný vzhľad, pretože nie sú viditeľné žiadne uzamykacie časti kovania.
Dvere MASTER v skrytej zárubni AKTIVE je možné vyrobiť až do výšky 3 700 mm
Internorm stavia na energetickú efektívnosť a inteligentné tieniace riešenia.
Pohľad na moderné prístupy k výrobe s dôrazom na udržateľnosť.
Slovensko vo výbere zastupuje šesť realizácií.
Spoločnosť Internorm odteraz stavia na novej variante tepelnoizolačného skla od AGC, ktorá v produkcii ročne ušetrí 10...
Jubilejný 20. ročník prestížnej medzinárodnej súťaže pre študentov architektúry priniesol...
Otočné a posuvné dvere MASTER od podlahy až po strop, ponúkajú mimoriadnu variabilitu výšky, materiálu a zladenia so skrytými...
Predstavené produkty, spájajú premyslený dizajn, funkčnosť a udržateľnosť. Nábytok Materia vzniká s cieľom podporiť inšpiratívne stretnutia...

Vila v Novom Jičíne, z dielne architekta Mareka Jana Štěpána, vychádza z princípov antického átriového domu. Obytná krajina, smerovaná do centrálneho ťažiska sa priehľadmi otvára do ulice a okolitého zeleného sveta.
„Chtěl jsem zkusit vnitřní uspořádání domu, ve kterém se člověk přirozeně pohybuje. Jde i o přirozenost toku denního světla, to dovnitř vchází nejen velkými okny, ale i kruhovými otvory ve střeše. Když jsem přijel na první návštěvu do již hotové vily, má jedenáctiletá dcera tam neplánovaně zůstala další tři dny. Prostě se jí tam líbilo.“ vysvetľuje architekt Marek Štěpán
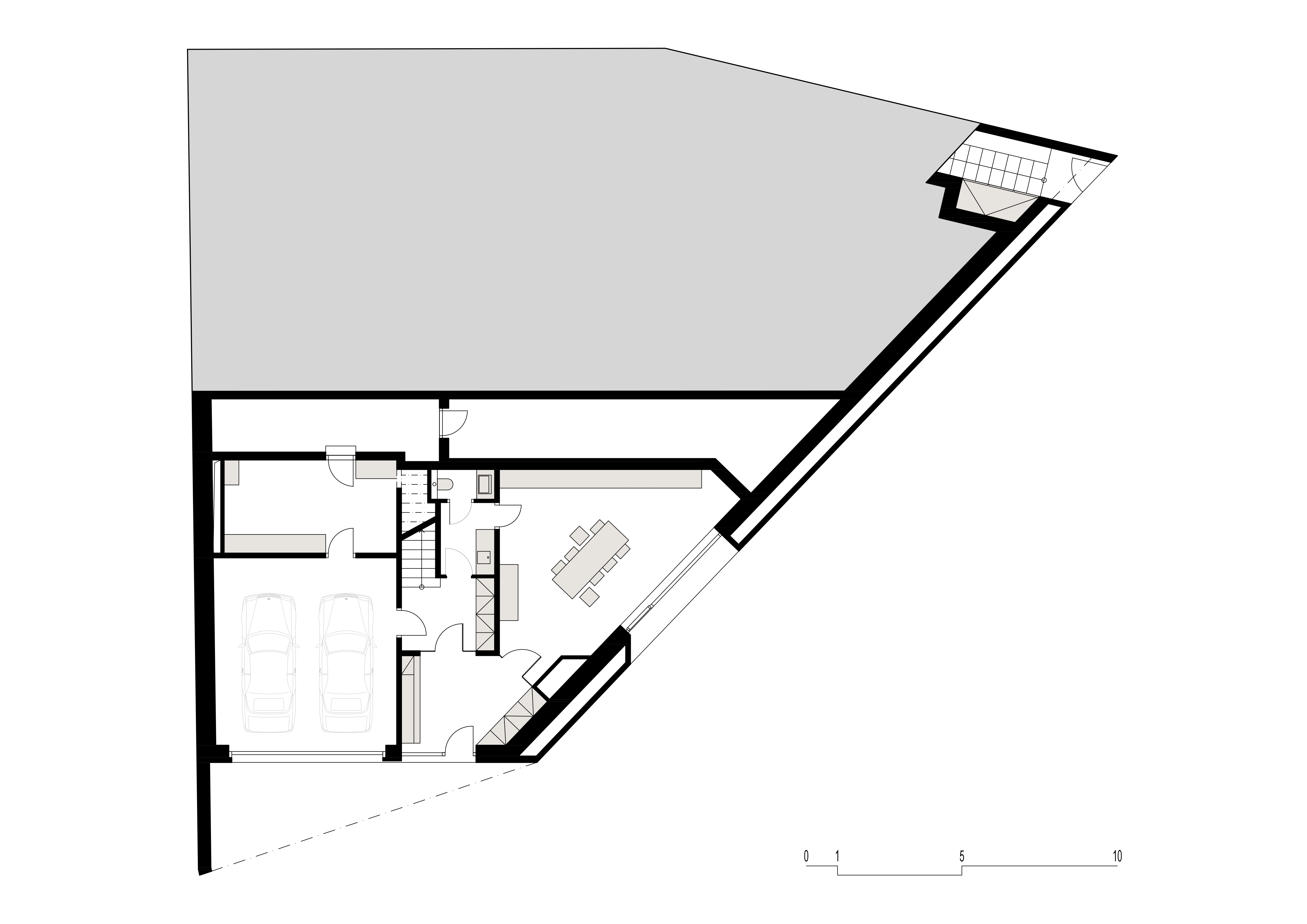
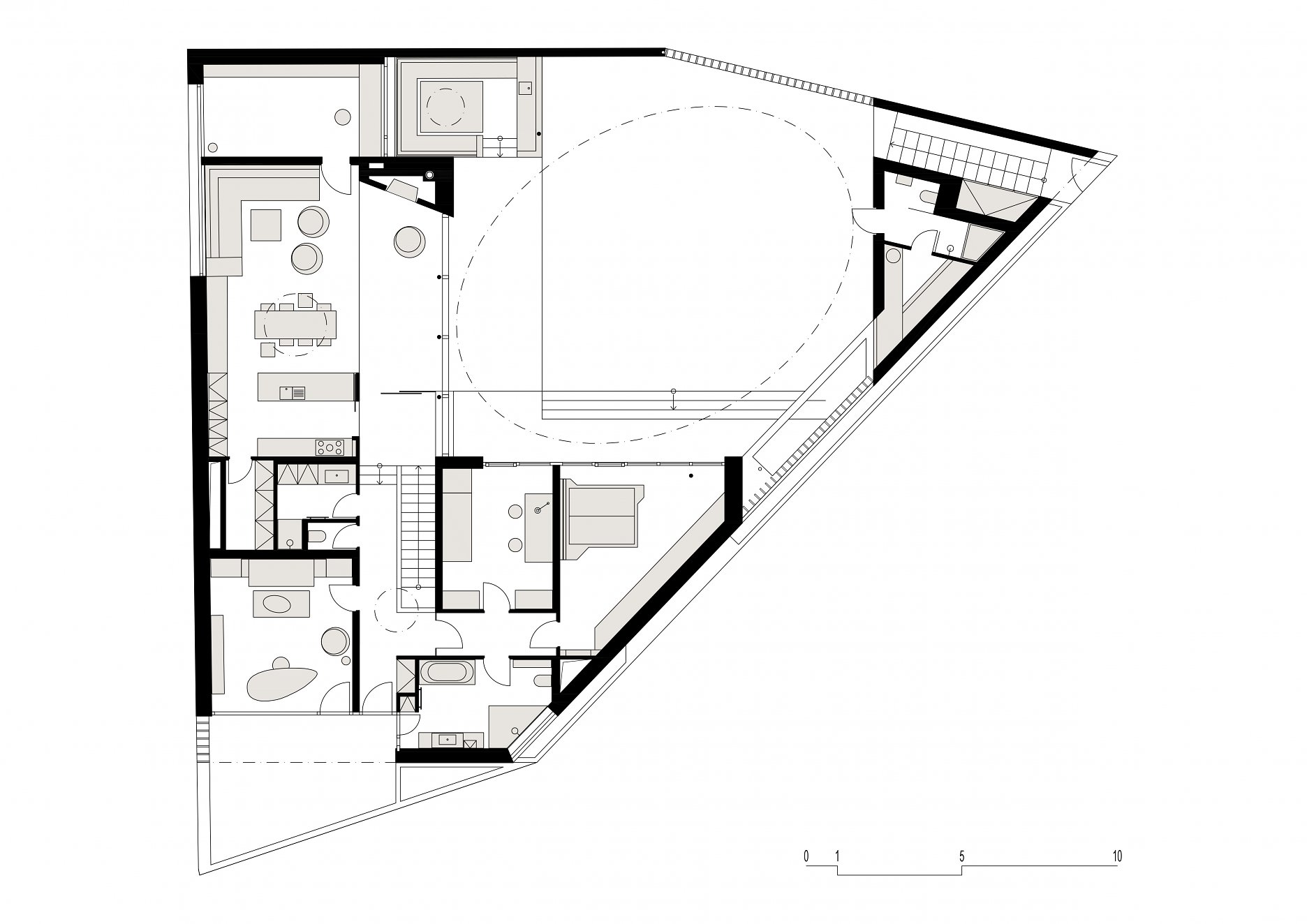
Vila stojí neďaleko historického centra mesta, v priamom kontakte so zeleňou mestských parkov. Klient si prial prepojiť bývanie, čo na malom a nepravidelnom pozemku nebolo jednoduché splniť.
Dvojpodlažná stavba, zasadená do mierne svahovitého terénu ohraničuje vnútornú obytnú krajinu, ktorá graduje smerom do vnútra, zároveň však otvára priehľady do okolitého sveta susedných záhrad a ulice. Dispozícia plynie na troch výškových úrovniach. Z úrovne ulice je prístupné vstupné podlažie so zázemím. Hlavná obytná platforma so spoločenskou prebieha o úroveň vyššie a pokojná nočná zóna je vyvýšená o ďalšieho pol metra. Materiálovo odlíšená spoločenská a nočná časť nadväzuje na zelené átrium, ktoré tvorí ťažisko celého domu. Objekt sauny s bazénikom, oddeľuje privátnu časť exteriéru od ulice. Abstrahované fasády vyjadrujú materiálovú podstatu stavby.
„Novojičínská vila je variací na antický atriový dům. Konkrétně Atrium displuviatum, tedy bezokapové atrium, které popisuje Vitruvius ve svých Deseti knihách o architektuře. Je to atrium bez sloupů a střešní voda je svedena mimo něj,“ hovorí Marek Štěpán.
Konštrukcia a materiály
Zjednodušene povedané drevostavba na monolitickej betónovej podnoži. Suterén, ktorý tvorí biela vaňa z vodostavebného pohľadového oceľobetónu. Ako základný konštrukčný prvok nadzemného podlažia zvolil architekt CLT panely, ktoré z vonkajšej strany dopĺňa obklad z agátových dosiek. Podlahy v interiéri sú dubové a betónové, vonkajšie terasy pokrývajú opäť agátové dosky.
Dom spadá do nízkoenergetického štandardu. Vnútornú klímu reguluje nútené vetranie s rekuperáciou. Podlahové teplovodné vykurovanie dopĺňajú nástenné telesá, vyhrievané plynovým kondenzačným kotlom. TÚV je dohrievaná solárnym systémom umiestneným na streche.
Videoprofil stavby, réžia - Jiří Kout pre Českomoravský beton a EARCH.TV, séria „Architektura v betonu“:
Autor: Atelier Štepán
Podklady: Linka, Pavel Míček Architects
Fotografie: BoysPlayNice