Advertorial

Hotel Hirschen Spa House, Rakúsko

Novotvar v prostredí alpskej obce.

Vytvorte si kúpeľňu snov: dizajnové riešenie od značky hansgrohe

Hansgrohe - prémiová značka kúpeľňových riešení, ponúka nadčasový dizajn, technickú precíznosť a udržateľné inovácie...

Okná Internorm za minuloročné ceny + hliníkový kryt zdarma!

Využite špeciálnu akciu Internorm: okná za minuloročné ceny a hliníkový kryt úplne zadarmo. Ponuka je časovo obmedzená!

Pozvánka na 2. ročník stavebného veľtrhu BigMarket na Slovensku

Na podujatí sa predstaví až 37 vystavovateľov - popredných dodávateľov stavebných materiálov a inovácií s prezentáciou...

Moderné plynové technológie: Efektivita a inovácie pre 21. storočie

Sumarizácia najdôležitejších inovácií, ktoré redefinujúcich využitie tohto energetického zdroja.

Utesňovanie spodných stavieb pomocou hydro-aktívnej fólie AMPHIBIA.

AMPHIBIA 3000 GRIP 1.3 od spoločnosti ATRO predstavuje modernú hydroizolačnú technológiu, ktorá spája vysokú odolnosť,...

Dekarbonizácia individuálneho vykurovania domácností – Green Deal evolučne a nie revolučne

Ambiciózne plány EK narazili na ekonomické možnosti domácností v jednotlivých členských štátoch –...

Minimalistické dvere IDEA – technická precíznosť a čistota prevedenia

IDEA DOOR od spoločnosti JAP prináša do interiéru čistý minimalistický vzhľad vďaka bezrámovému riešeniu a precíznej...

Dom s výhľadom na údolie, Dlouhý Most (ČR)

Kontinuita riešenia od vonkajšieho obkladu až po kovania a kľučky.

Schell Vitus – osvedčené riešenie pre sprchy a umývadlá vo verejnom sektore s viac ako desaťročnou tradíciou

Nástenné nadomietkové armatúry Vitus sú mimoriadne vhodné pre rýchlu a efektívnu...

Kompozitné okná predstavujú súčasnosť a budúcnosť

Okenné profily z kompozitného materiálu RAU-FIPRO X od spoločnosti Rehau sú v porovnaní s tradičnými plastovými profilmi mnohonásobne...

Myotis - stoly 2025

Najnovší sortiment stolov pre zariadenie interiérov...

Priemyselné sklenené priečky Dorsis Digero: svetelné rozhranie pre moderné interiéry

Spojenie moderného dizajnu, funkčnosti a svetla do harmonického architektonického prvku.

Význam prirodzeného svetla pre moderné a flexibilné pracovné prostredie

Kancelárska budova Baumit v slovinskom Trzine prešla premenou na moderné a udržateľné pracovisko. Architekti kládli dôraz...

Konferencia Xella Dialóg predstaví novinky a trendy v stavebníctve

Mottom šiesteho ročníku on-line konferencie odborníkov Xella Dialóg je Efektívny návrh budov 2025+: zmeny a riešenia

Rodinný dom s výhľadom do krajiny, Heroltice (ČR)

Bývanie v prírodnom prostredí malej obce, neďaleko juhomoravskej metropoly. Výslednú podobu domu formoval strmý svahovitý pozemok.
Diela
Red 324.05.2020
102470+61
Rodinný dom s výhľadom do krajiny, Heroltice (ČR)
Autori: Ing. arch. Martin KlimeckýPlocha pozemku: 8720 m2Zastavaná plocha: 437 m2Podlažná plocha: 597 m2Obostavaný objem: 2603 m3Návrh: 2015 - 2017Realizácia: 2017 - 2019Adresa: Heroltice u Tišnova, Česká republikaPublikované: 24. máj 2020

Dom vo svahu, nad líniou pôvodnej zástavby. Prírodné prostredie, diaľkové pohľady do krajiny. Využitie prirodzeného reliéfu svahovitého pozemku - jednoduchá geometrická hmota, posadená na betónovom "sokli", zapustenom do svahu. Priestor nad domom využitý ako rozsiahla pobytová terasa... 

“Dům je výsledkem téměř ideální souhry klienta a architekta. Na základě předchozí spolupráce jsem dostal už od počátku velkou důvěru, kterou bylo zavazující nezklamat. Celý proces, od společné formulace zadání, přes výběr pozemku, projektování i vlastní realizaci, byl řešen s náležitou pečlivostí všech zúčastněných stran, bez zbytečného spěchu, s důrazem na promyšlenost každého kroku. Jedině tak bylo možné jít v mnoha ohledech až na hranici možného,” vysvetľuje architekt Martin Klimecký a pokračuje: “Zadání bylo docela prosté - kvalitní rodinné bydlení, kde propojení s přírodou a daleké výhledy do krajiny jsou všudypřítomné, tvoří hlavní dekoraci domu a určují jeho atmosféru. To zásadně ovlivnilo jak výběr pozemku, tak celkový přístup k řešení domu. Pro každou místnost je proto komponován jedinečný výhled, který architektura pouze rámuje. Nikdy nekončící, dynamická proměna přírody dům naplňuje.”

Foto: MgA. Lenka Mitrenga

Dom je osadený v spodnej časti čiastočne zalesneného pozemku s celkovou výmerou takmer 0,9 ha tak, aby spadal do príslušnej funkčnej plochy umožňujúcej výstavbu.

Foto: MgA. Lenka Mitrenga
Foto: MgA. Lenka Mitrenga

Svahovitý pozemok bol východiskom pre funkčné usporiadanie domu. Všetky obslužné priestory, vrátane garáže a apartmánov pre hostí, sú umiestnené v suteréne s priamou väzbou na ulicu. Celú plocha prízemia využíva byt, s prístupom na komfortne dimenzovanú terasu. Prízemie sprístupňuje okrem schodiska aj osobný výťah.

Foto: MgA. Lenka Mitrenga

Konfigurácia domu umožňuje nerušené výhľady do krajiny, ako v dennej - spoločenskej zóne, tak aj v spálňovom trakte. 

Foto: MgA. Lenka Mitrenga

Väčšina pozemku plynie v prirodzenom svahu. Výraznejšie terénne úpravy prebehli iba vo väzbe na vjazd do garáže a hlavný obytný priestor na prízemí. Sadové úpravy pozemku nadväzujú na prírodný charakter lokality, väčšina pozemku je upravená ako pobytová lúka.

“Aby stavba dobře navazovala na přírodní reliéf a zbytečně nevyčnívala, je většina suterénu zapuštěna do svahu a střecha nad přízemím je řešena jako plochá. Okenní otvory obytné části domu jsou vsazeny za 1,5 m hlubokými lodžiemi, které dodávají intimitu interiéru a zároveň umožňují přímý výstup do venkovního prostředí ze všech obytných místností domu,”  popisuje koncept Martin Klimecký.

Foto: MgA. Lenka Mitrenga

Primárnu železobetónovú nosnú konštrukciu domu dopĺňa tehlové nosné a výplňové murivo. V hlavnom obytnom priestore spomínané prvky dopĺňajú oceľové stĺpiky. Nosná konštrukcia je priznaná a spoluvytvára interiér domu. Monochromatické fasády domu tvorí kombinácia kontaktného zateplenia s hladkou brúsenou omietkou (prízemie) a pohľadových betónových stien suterénu.

K čitateľnosti architektonickej kompozície prispieva zasklenie so skrytými rámami, do ktorého sú vsadené otváravé a posuvné polia. Vždy na celú výšku miestnosti, bez parapetu a nadpražia.

Foto: MgA. Lenka Mitrenga
Foto: MgA. Lenka Mitrenga
Situácia
SituáciaAutor: Architekt Martin Klimecký
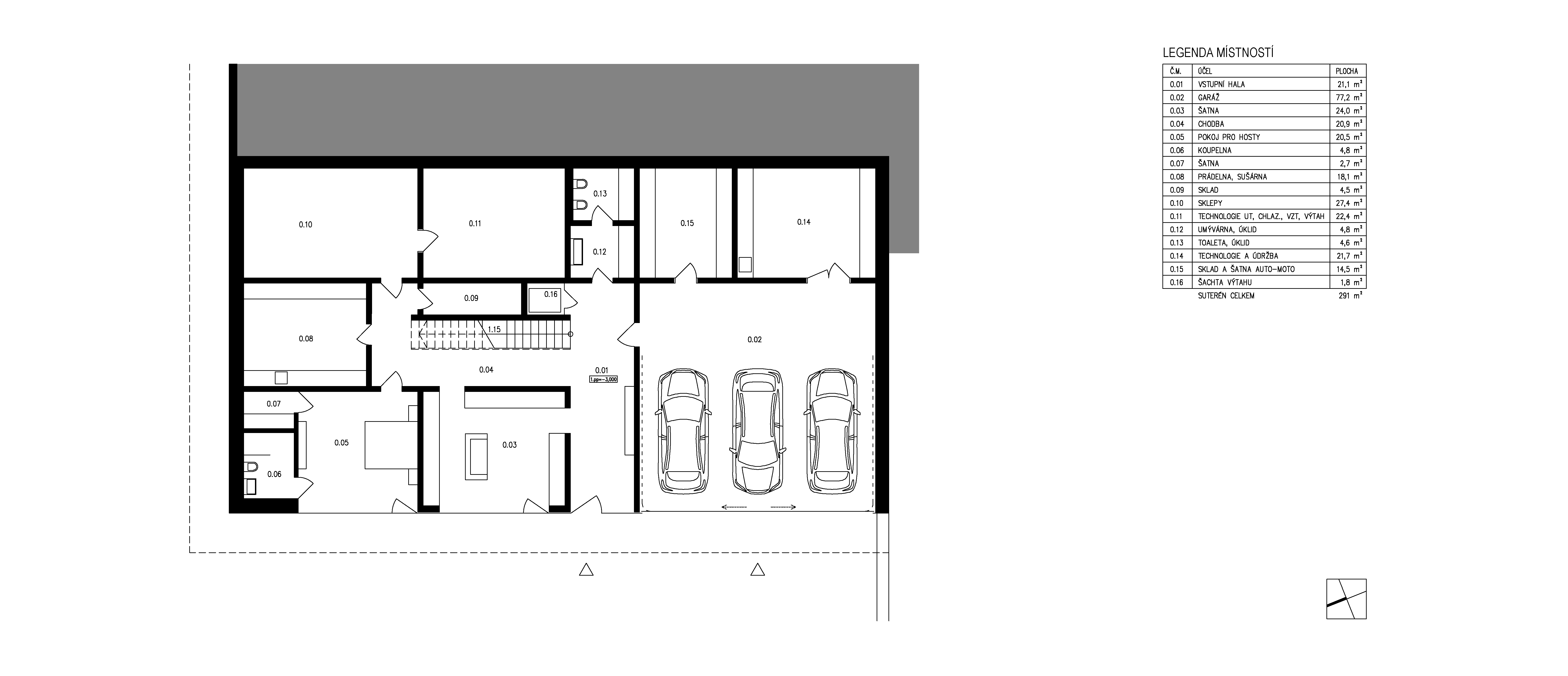
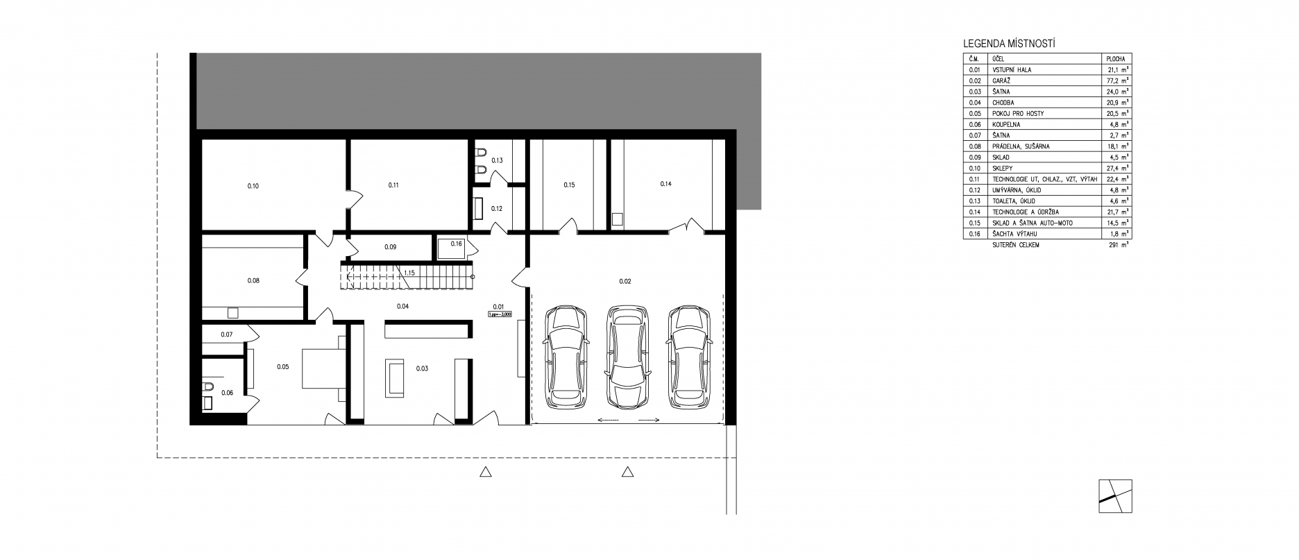
Pôdorys suterénu
Pôdorys suterénuPodklady: Architekt Martin Klimecký
Pôdorys prízemia
Pôdorys prízemiaPodklady: Architekt Martin Klimecký
Rezy
RezyPodklady: Architekt Martin Klimecký
Pohľady
PohľadyPodklady: Architekt Martin Klimecký
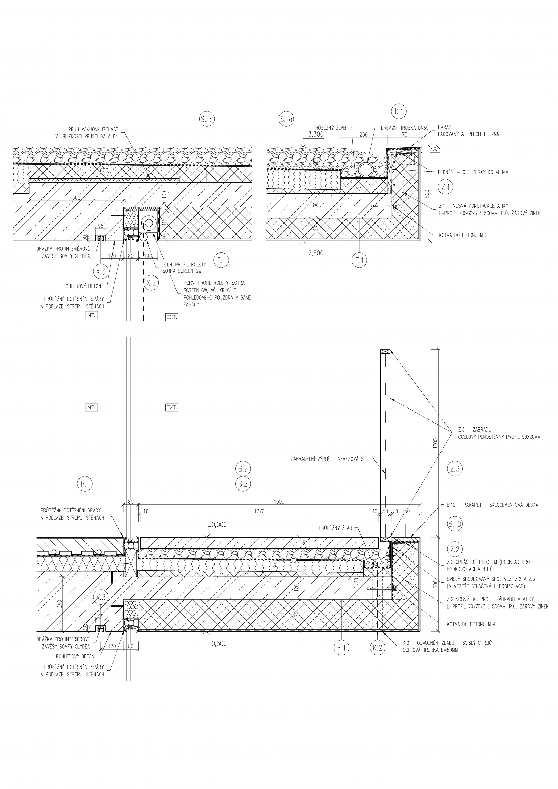
Detaily
DetailyPodklady: Architekt Martin Klimecký

Interiér

Železobetónové konštrukcie sa v pohľade uplatňujú na stropoch a schodisku. Väčšina stien je omietnutých hladkou sadrovou omietkou. Pochôdznu vrstvu podláh tvoria hladené cementové stierky. Všetky povrchy v kúpeľniach (podlaha, steny, strop) sú obložené sklenenou mozaikou. Interiérové ​​dvere, so skrytou zárubňou, prebiehajú cez celú výšku miestností, rovnako ako  dvere vstavaných skríň. Povrch dverí aj skríň tvorí dubová dyha, ponechaná zámerne vo svojej prirodzenej štruktúre aj farebnosti. Kuchynská linka je lakovaná na bielo.

Foto: MgA. Lenka Mitrenga
Foto: MgA. Lenka Mitrenga
Foto: MgA. Lenka Mitrenga
Foto: MgA. Lenka Mitrenga
Foto: MgA. Lenka Mitrenga
Foto: MgA. Lenka Mitrenga
Foto: MgA. Lenka Mitrenga
Foto: MgA. Lenka Mitrenga
Foto: MgA. Lenka Mitrenga
Foto: MgA. Lenka Mitrenga
Foto: MgA. Lenka Mitrenga
Foto: MgA. Lenka Mitrenga
Foto: MgA. Lenka Mitrenga

Ako primárny zdroj energie pre vykurovanie a chladenie slúži tepelné čerpadlo typu zem-voda, ktoré je napojené na trojicu vrtov hlbokých 130 metrov. Vykurovanie domu zabezpečuje podlahové kúrenie, chladenie je riešené aktiváciou betónového jadra. Rúrkové registre sú zabudované do železobetónovej stropnej dosky nad najvyšším podlažím.

Podklady: Architekt Martin Klimecký

Poloha diela

Ing. arch. Martin Klimecký
Vložené
19. máj 2020
0
10247
Hlavný obsahHlavný obsah
Čakajte prosím