Advertorial

Pozvánka na 2. ročník stavebného veľtrhu BigMarket na Slovensku

Na podujatí sa predstaví až 37 vystavovateľov - popredných dodávateľov stavebných materiálov a inovácií s prezentáciou...

Hotel Hirschen Spa House, Rakúsko

Novotvar v prostredí alpskej obce.

Vytvorte si kúpeľňu snov: dizajnové riešenie od značky hansgrohe

Hansgrohe - prémiová značka kúpeľňových riešení, ponúka nadčasový dizajn, technickú precíznosť a udržateľné inovácie...

Okná Internorm za minuloročné ceny + hliníkový kryt zdarma!

Využite špeciálnu akciu Internorm: okná za minuloročné ceny a hliníkový kryt úplne zadarmo. Ponuka je časovo obmedzená!

Moderné plynové technológie: Efektivita a inovácie pre 21. storočie

Sumarizácia najdôležitejších inovácií, ktoré redefinujúcich využitie tohto energetického zdroja.

Utesňovanie spodných stavieb pomocou hydro-aktívnej fólie AMPHIBIA.

AMPHIBIA 3000 GRIP 1.3 od spoločnosti ATRO predstavuje modernú hydroizolačnú technológiu, ktorá spája vysokú odolnosť,...

Dekarbonizácia individuálneho vykurovania domácností – Green Deal evolučne a nie revolučne

Ambiciózne plány EK narazili na ekonomické možnosti domácností v jednotlivých členských štátoch –...

Minimalistické dvere IDEA – technická precíznosť a čistota prevedenia

IDEA DOOR od spoločnosti JAP prináša do interiéru čistý minimalistický vzhľad vďaka bezrámovému riešeniu a precíznej...

Dom s výhľadom na údolie, Dlouhý Most (ČR)

Kontinuita riešenia od vonkajšieho obkladu až po kovania a kľučky.

Schell Vitus – osvedčené riešenie pre sprchy a umývadlá vo verejnom sektore s viac ako desaťročnou tradíciou

Nástenné nadomietkové armatúry Vitus sú mimoriadne vhodné pre rýchlu a efektívnu...

Kompozitné okná predstavujú súčasnosť a budúcnosť

Okenné profily z kompozitného materiálu RAU-FIPRO X od spoločnosti Rehau sú v porovnaní s tradičnými plastovými profilmi mnohonásobne...

Myotis - stoly 2025

Najnovší sortiment stolov pre zariadenie interiérov...

Priemyselné sklenené priečky Dorsis Digero: svetelné rozhranie pre moderné interiéry

Spojenie moderného dizajnu, funkčnosti a svetla do harmonického architektonického prvku.

Význam prirodzeného svetla pre moderné a flexibilné pracovné prostredie

Kancelárska budova Baumit v slovinskom Trzine prešla premenou na moderné a udržateľné pracovisko. Architekti kládli dôraz...

Konferencia Xella Dialóg predstaví novinky a trendy v stavebníctve

Mottom šiesteho ročníku on-line konferencie odborníkov Xella Dialóg je Efektívny návrh budov 2025+: zmeny a riešenia

Rodinný dom "Lehoťan"

Bývanie pre starých rodičov v rodnom kraji.
Diela
Red 104.03.2019
92650+46
Rodinný dom "Lehoťan"
Autori: Ing. arch. Norbert ŠmondrkZastavaná plocha: 246m2Podlažná plocha: 272m2Obostavaný objem: 1061m3Návrh: 2016 - 2016Realizácia: 2017 - 2018Adresa: Chotár, SlovenskoPublikované: 4. marec 2019

Dom na vidieku. Novostavba na lazoch, vo voľnej krajine… Bežných príkladov máme dosť. Rôznych. Väčšinou nie veľmi vábnych. Stačí pozrieť na to, čo bežne okolo nás vzniká.

Dnes predstavujeme dielo, ktoré nás zaujalo. Dom pre starých rodičov. Miestnych rodákov. Tých, ktorí krajinu celý život dôverne poznali. Aj s jej podstatou a tradíciami. Rodičia neustrnuli v minulosti. Dokázali, že ľudia môžu byť stále otvorení, vnímaví a dokážu držať krok s duchom doby.

Foto: Soňa Sadloňová

Stavbu iniciovali deti. Poznajúc svojich najbližších (i dobrého architekta) vytvorili priestor pre vznik neveľkého, ale konzistentného diela. Architekt dostal plnú dôveru a “voľné ruky”. V dialógu s investormi a používateľmi vznikol výsledok, ktorý je zhmotnením jednej z možných podôb, ako by mohol vyzerať dom spĺňajúci dnešné požiadavky na harmonické bývanie v otvorenej stredoslovenskej krajine. Dom je starý aj nový súčasne. Starý rešpektovaním overených princípov vyplývajúcich z dlhoročných skúseností s bývaním v dobre známom prostredí. Nový rešpektovaním požiadaviek na obytné prostredie a pohodlie, ktorého sa človek zvyknutý na súčasný komfort bývania a technológií už nemieni vzdať.

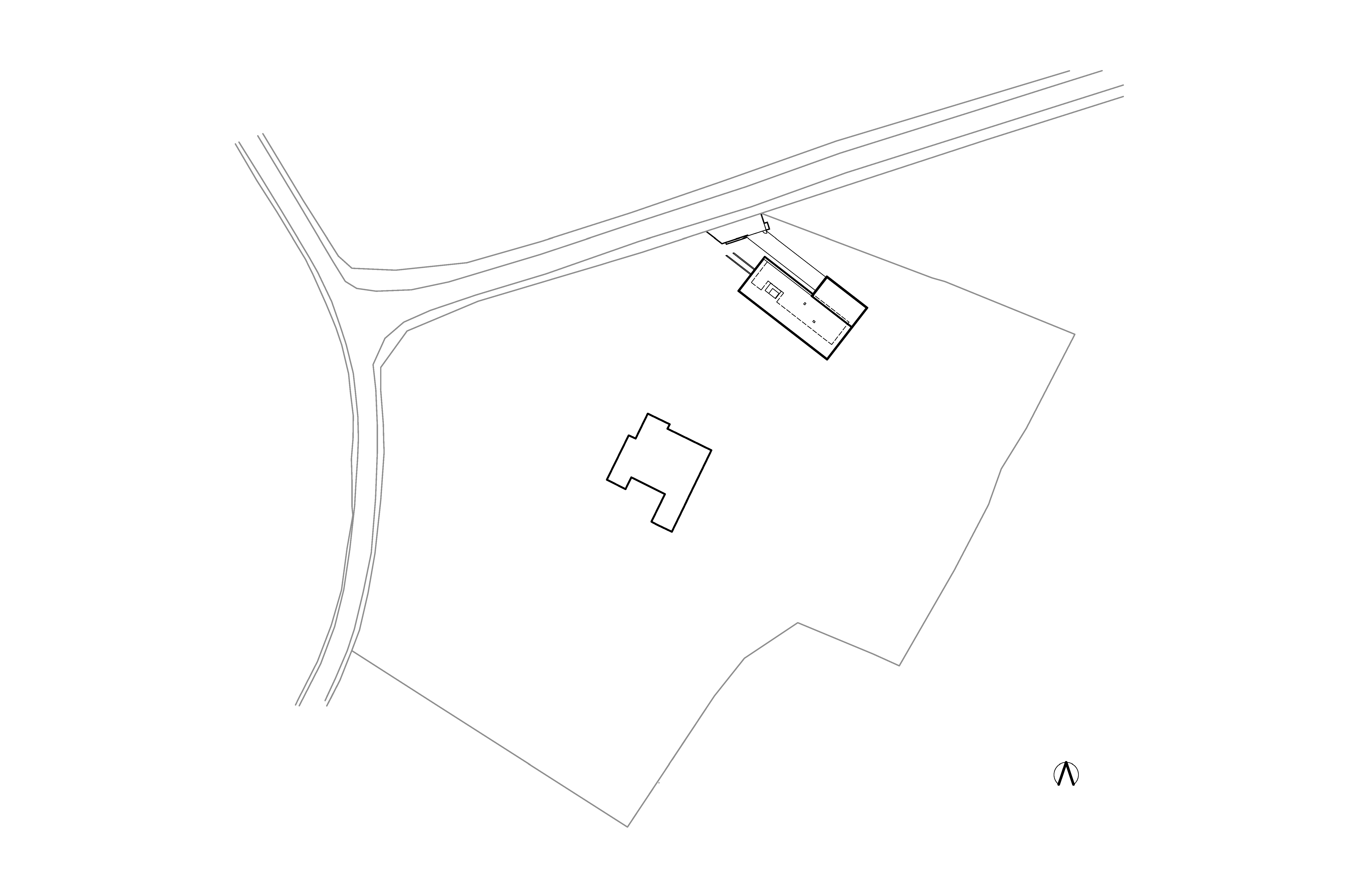
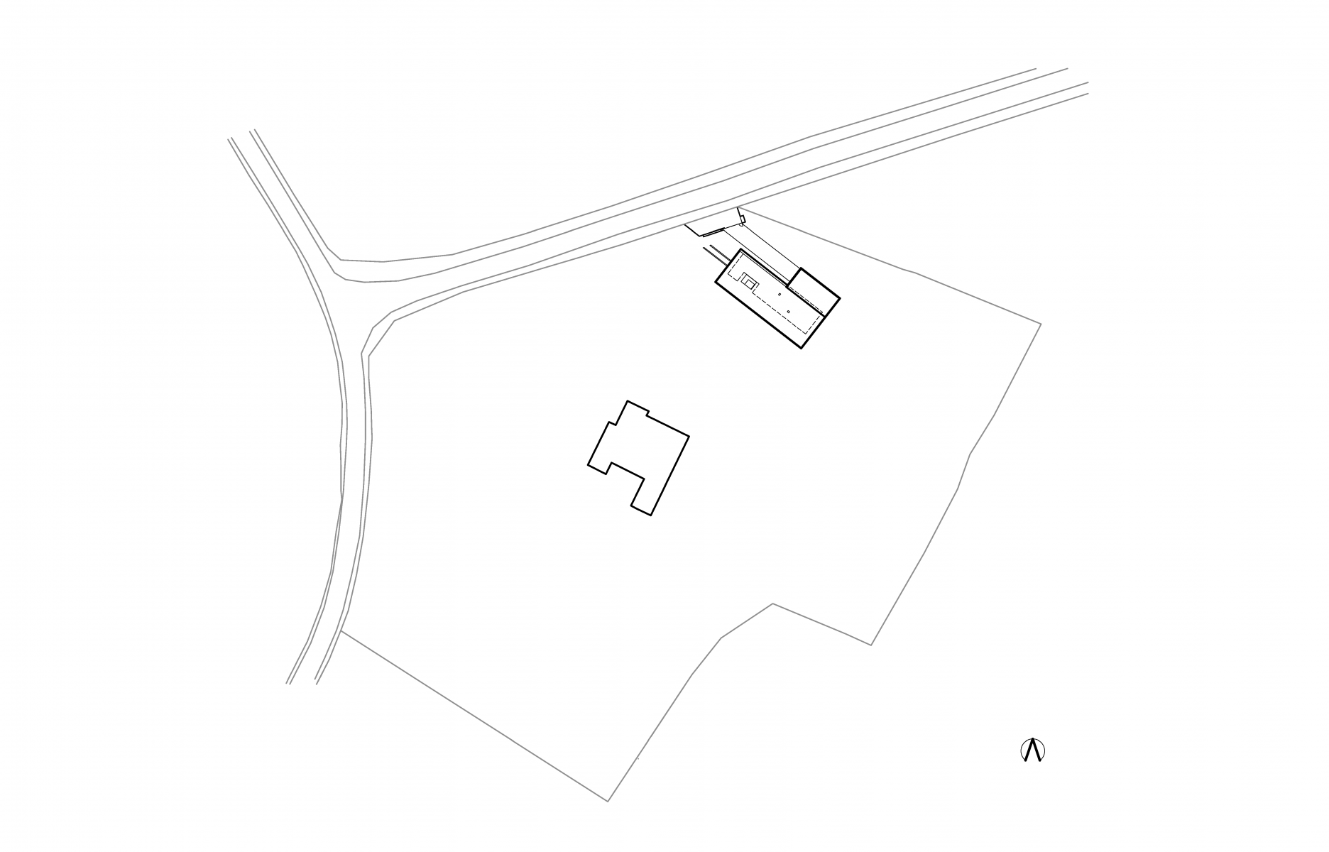
Situácia
SituáciaAutor: Norbert Šmondrk

Dom je vo svojej podstate jednoduchý. Na prvý pohľad obyčajná pravouhlá “krabica” osadená v starej záhrade. Steny sú murované z keramických tvárnic, stropy v časti drevené, v časti monolitické betónové. Subtílne oceľové stĺpy dopĺňajú konštrukciu tam, kde to je potrebné. Vonkajšie povrchy priznávajú svoju materiálovú podstatu. Dominujúcim prvkom je drevený obklad, uzatvárajúci sendvičovú konštrukciu obvodového plášťa.

Foto: Soňa Sadloňová

Severná strana je masívna, plná, uzavretá. Spolu s vystupujúcim prístreškom plní úlohu tradičnej ochrany proti prírodným živlom (vietor, sneh, hnaný dážď…), aj proti nežiadúcim pohľadom smerom od vedľajšej cesty. Riešenie zabezpečujúce súkromie a ochranu pred nepohodou pri príchode k domu.

Robustnosť a odolnosť sa odráža aj v použitých materiáloch. Samotný dom oddeľuje od prístupovej cesty z bežného asfaltu nárazníkový postranný násyp z robustných lámaných kameňov. V priamom predpolí vchodových dverí násyp prechádza do dlažby zo štiepaných kamenných kociek.

Foto: Soňa Sadloňová

Pod voľným prístreškom z priznaného betónu je chránená zóna pred vstupom do domu. Umožňuje komfortne vystúpiť z auta, pohodlne vojsť, alebo opustiť dom - bez ohľadu na to, aké je vonku počasie.

Foto: Soňa Sadloňová

Opačná (najmä juhozápadná) strana je transparentná, otvorená, s výhľadom na okolitú krajinu. Rozľahlá terasa prebiehajúca po celej dĺžke domu, prestrešená veľkorysým vysunutím stropu, vytvára ďalší komfortný obytný exteriérový priestor. Využiteľný v teplejších častiach roka, aj za daždivého počasia. Rozsiahle transparentné zasklenie na celú výšku priľahlých miestností, s veľkými  posuvnými segmentmi, ešte viac rozširuje flexibilitu prepojenia interiéru a exteriéru a potenciál vzájomne susediacich miestností a priestorov. Hranica medzi “von” a “dnu” môže mať rôzne podoby a polohy.

Niekedy sa dokáže stratiť a nechať nerušene plynúť priestor izieb bez bariér do okolitej malebnej krajiny.

Foto: Soňa Sadloňová

Alebo naopak, v drsnom počasí fyzicky oddelí príjemné prostredie interiéru od “nečasu” za sklom. Optický kontakt je možné regulovať podľa nálady. Voľný pôdorys prízemia je takto schopný nadobudnúť prekvapivo variabilné podoby.

Foto: Soňa Sadloňová

Priestorové usporiadanie a dispozičné riešenie je geometricky veľmi striedme.

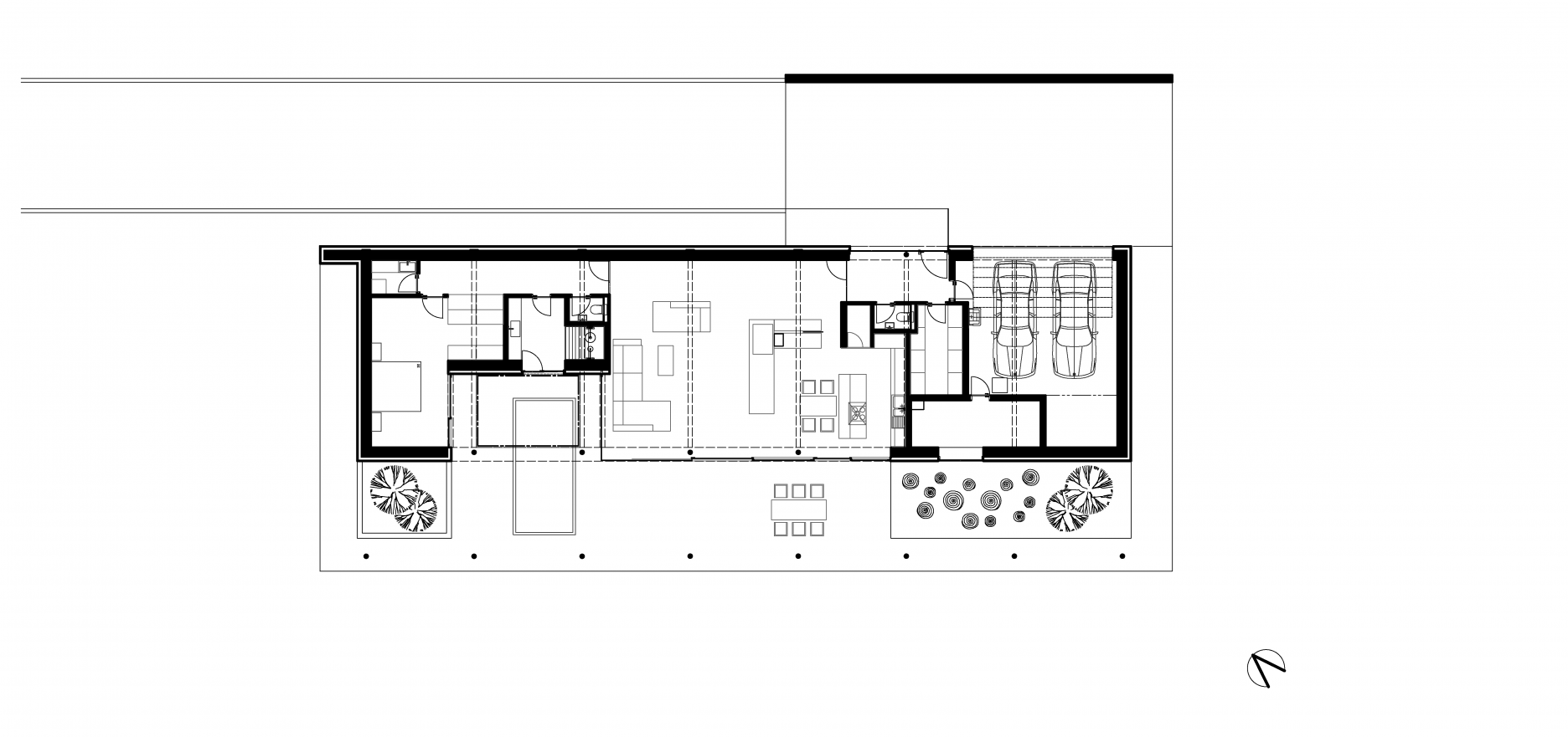
Pôdorys prízemia
Pôdorys prízemiaAutor: Norbert Šmondrk

V jednoduchom obdĺžniku sa na jednej strane prízemia (v nadväznosti na vchod) nachádzajú potrebné technické priestory a garáž pre dve autá. V strednej časti je obytná denná časť s kuchyňou. Dispozíciu uzatvára pokojná nočná zóna so šatníkom a hygienou. Časť pôdorysu je podpivničená. Špecifikom je vodný prvok - bazén(ik), ktorý je veľmi kompaktným spôsobom integrovaný do akejsi niky na terase - medzi obytnou časťou a spálňou.

Pôdorys suterénu
Pôdorys suterénuAutor: Norbert Šmondrk
Rez
Rez Autor: Norbert Šmondrk

Pri pohľade na pôdorys je zrejmá racionálnosť a primeranosť návrhu. Priestorová efektívnosť. Nič zbytočné. Čistota usporiadania priestorov a ich vzájomných väzieb. Architektonická gramotnosť.

Foto: Soňa Sadloňová
Foto: Soňa Sadloňová
Foto: Soňa Sadloňová

Zrejmá je aj dizajnérska a sochárska prax autora. Interiér má charakter uceleného, komponovaného diela. Priestory, ich povrchy, použité objekty a prvky sú navrhnuté tak, že vzájomne vytvárajú konzistentnú “obytnú krajinu”. Čisté, elementárne geometrické tvary sú miestami obohatené pôvodným autorským detailom. Aj citácie folklórnych prvkov a priznaná surovšia materialita nepôsobia prvoplánovo, naopak, cítiť z nich typického Šmondrka.

Foto: Soňa Sadloňová
Foto: Soňa Sadloňová
Foto: Soňa Sadloňová
Foto: Soňa Sadloňová

Odovzdaný celok vytvára veľmi dobrý univerzálny základ, ktorý vydrží dlhodobo bez zmeny. Obyvatelia ho budú časom obohacovať o svoje vlastné vklady, ktoré sa stanú dynamickou, meniacou sa vrstvou, prezentujúcou ich osobnostné preferencie. Takýto dialóg je zaujímavý a prínosný. V prípade inteligentných obyvateľov hodne oživuje prostredie, ktoré je v čase schopné ďalšieho vývoja pribúdaním (alebo zamieňaním) nových jemných kultúrnych nánosov...

Prezentované dielo ma potešilo. Môže slúžiť ako dobrý príklad nielen pre odbornú verejnosť. Ale najmä pre “obyčajných slovenských stavebníkov”, ktorí sa pripravujú stavať v podobnom kontexte.

Je zrejmé, že dobrý dom nemusí mať podobu ako väčšina štandardnej zástavby, ktorá obvykle dosť necitlivo zasahuje do prostredia. Že nová stavba sa dá urobiť aj jednoducho, premyslene a dôsledne. Že môže byť aj menšia, účelnejšia a v konečnom dôsledku aj finančne a funkčne efektívnejšia. Že premyslený koncept nemusí byť drahý.

Je len potrebné vytvoriť vhodné podmienky a čas pre najrozhodujúcejšiu - úvodnú fázu, kde sa rozhoduje o úspechu celej investície. Dlho predtým, ako sa začne stavať. Zabezpečiť priestor pre rozmýšľanie, diskusiu a precíznu prípravu celého návrhu. A samozrejme bez dobrého architekta sa dobrý výsledok nedostaví. Dôležitý je osobný dialóg a vzájomná dôvera. V tomto prípade sa ukázalo, že autor, ktorý robí aj omnoho nekompromisnejšie diela, je schopný svoj prístup prispôsobiť konkrétnym partnerom a vytvoriť výsledok v umiernenej, aj širšej verejnosti stráviteľnej podobe. A pritom neustúpiť zo svojich zásad.

Takto by mali dnes vyzerať obyčajné domy. Nič tomu nebráni. (Ak áno, tak iba hlavy a rozhľad stavebníkov).

Foto: Soňa Sadloňová
Foto: Soňa Sadloňová
Pohľady - juhozápadný a severozápadný
Pohľady - juhozápadný a severozápadnýAutor: Norbert Šmondrk
Pohľady - severovýchodný a juhovýchodný
Pohľady - severovýchodný a juhovýchodnýAutor: Norbert Šmondrk

Text: Štefan Moravčík. Paralelne uverejnené aj v časopise ARCH 3/2019

Podklady: KFA - Norbert Šmondrk

Poloha diela

Ing. arch. Norbert Šmondrk

Súvisiace články

Vložené
11. február 2019
0
9265
Hlavný obsahHlavný obsah
Čakajte prosím