Advertorial

Okná Internorm za minuloročné ceny + hliníkový kryt zdarma!

Využite špeciálnu akciu Internorm: okná za minuloročné ceny a hliníkový kryt úplne zadarmo. Ponuka je časovo obmedzená!

Pozvánka na 2. ročník stavebného veľtrhu BigMarket na Slovensku

Na podujatí sa predstaví až 37 vystavovateľov - popredných dodávateľov stavebných materiálov a inovácií s prezentáciou...

Moderné plynové technológie: Efektivita a inovácie pre 21. storočie

Sumarizácia najdôležitejších inovácií, ktoré redefinujúcich využitie tohto energetického zdroja.

Utesňovanie spodných stavieb pomocou hydro-aktívnej fólie AMPHIBIA.

AMPHIBIA 3000 GRIP 1.3 od spoločnosti ATRO predstavuje modernú hydroizolačnú technológiu, ktorá spája vysokú odolnosť,...

Dekarbonizácia individuálneho vykurovania domácností – Green Deal evolučne a nie revolučne

Ambiciózne plány EK narazili na ekonomické možnosti domácností v jednotlivých členských štátoch –...

Minimalistické dvere IDEA – technická precíznosť a čistota prevedenia

IDEA DOOR od spoločnosti JAP prináša do interiéru čistý minimalistický vzhľad vďaka bezrámovému riešeniu a precíznej...

Dom s výhľadom na údolie, Dlouhý Most (ČR)

Kontinuita riešenia od vonkajšieho obkladu až po kovania a kľučky.

Schell Vitus – osvedčené riešenie pre sprchy a umývadlá vo verejnom sektore s viac ako desaťročnou tradíciou

Nástenné nadomietkové armatúry Vitus sú mimoriadne vhodné pre rýchlu a efektívnu...

Kompozitné okná predstavujú súčasnosť a budúcnosť

Okenné profily z kompozitného materiálu RAU-FIPRO X od spoločnosti Rehau sú v porovnaní s tradičnými plastovými profilmi mnohonásobne...

Myotis - stoly 2025

Najnovší sortiment stolov pre zariadenie interiérov...

Priemyselné sklenené priečky Dorsis Digero: svetelné rozhranie pre moderné interiéry

Spojenie moderného dizajnu, funkčnosti a svetla do harmonického architektonického prvku.

Význam prirodzeného svetla pre moderné a flexibilné pracovné prostredie

Kancelárska budova Baumit v slovinskom Trzine prešla premenou na moderné a udržateľné pracovisko. Architekti kládli dôraz...

Konferencia Xella Dialóg predstaví novinky a trendy v stavebníctve

Mottom šiesteho ročníku on-line konferencie odborníkov Xella Dialóg je Efektívny návrh budov 2025+: zmeny a riešenia

Murovací robot WLTR stavia svoj prvý dom na Slovensku

Robot WLTR predstavuje moderný prístup k murovaným konštrukciám. Vďaka automatizácii dokáže rýchlo, presne a bezpečne realizovať...

Nová éra bezpečnosti s I-tec Secure od Internorm

Okrem bezpečnosti majú okná aj elegantný vzhľad, pretože nie sú viditeľné žiadne uzamykacie časti kovania.

Dvojica chát na Ahoji, Bratislava-Nové Mesto

Na hranici urbanizovaného územia.
Diela
Red 317.11.2023
47270+61
Dvojica chát na Ahoji, Bratislava-Nové Mesto
Autori: Ing. arch. Norbert ŠmondrkSpolupráca: Ing. arch Filip TrajteľZastavaná plocha: 2 x 80 m2Návrh: 2018 - 2019Realizácia: 2022 - 2023Adresa: Laurotová , Bratislava-Nové Mesto, SlovenskoPublikované: 17. november 2023

Proces urbanizácie nevyspytateľne pokračuje všade, kam sa len dá. Napreduje v okrajových častiach miest a zaberá aj záhradkárske osady. Tie sa postupne transformujú zo sezónne využívaných záhrad s rekreačno-pestovateľskými funkciami na plnohodnotné územia s bývaním. K takýmto miestam patrí aj bratislavský Ahoj v katastrálnom území Vinohrady v mestskej časti Nové Mesto. V tomto transformujúcom sa území v dotyku s mestským lesoparkom vznikli dve identické chaty na celoročné bývanie. Ich autorom je architekt Norbert Šmondrk.

Mestá sa prirodzene rozrastajú. Často kopírujú vývoj priorít mestskej politiky, reagujú na prílev obyvateľov a cien nehnuteľností. Otázka plnohodnotného obytného územia je dlhoročnou témou urbanizmu a architektúry. Súčasná urbanizácia sa najčastejšie odohráva zastavaním ornej pôdy, takpovediac "na zelenej lúke", likvidáciou viníc, sadov, lúk, polí a pod., kde vznikajú nové zóny alebo štvrte. Tieto lokality väčšinou nedisponujú všetkými inžinierskymi sieťami ani občianskou vybavenosťou, napriek tomu sú vyhľadávanými miestami na bývanie. Ak sú umiestnené v dotyku s fungujúcou vybavenou štvrťou, túto využívajú a ťažia z nej. Tento trend sa však postupne modifikuje a na rad prichádzajú ďalšie územia, ako napr. rezervy na pôvodne plánovanú, no nevybudovanú občiansku infraštruktúru (napr. v Bratislave rezervy na metro), nevyužívané historické priemyselné areály a zatiaľ nie príliš frekventovaný spôsob: nahrádzanie existujúcej stavebnej štruktúry novou. Zahŕňanie území záhradkárskych osád, ktoré ležia v dotyku so zastavaným územím mesta, je prirodzený spôsob urbanizácie. Z hľadiska obyvateľa ide o uspokojivý kompromis, ktorý poskytuje intímne bývanie v prírode a napriek tomu v meste. A to je aj prípad dvojice chát na Ahoji.

Foto: Soňa Sadloňová
Foto: Soňa Sadloňová

Umiestnenie chát

Trvalé bývanie zaznamenávame na Ahoji pozdĺž Sliačskej ulice už od 30. rokov 20. storočia, niektorí sa pamätajú na Správu diaľkových káblov a na Ľudové konzervatórium v tejto oblasti. Výraznejší rozmach tu nastal až v posledných desaťročiach. Na úpätí Laurotovej, ktorá je pokračovaním Sliačskej ulice, sa ešte donedávna nachádzalo spustnuté územie - roklina. Miesto dal majiteľ vyčistiť a dnes tam na svahovitom teréne stojí dvojica rekreačných chát, natočených podľa tvaru pozemku a s ohľadom na čo najpriaznivejšiu orientáciu na svetové strany. Prvá z chát v dotyku s príkrou príjazdovou komunikáciou má fascinujúci výhľad do údolia a na panorámu mesta, druhá zas disponuje väčšou intimitou v tieni lesa. Obe chaty sú obložené lícovou tehlou a majú pultovú strechu. Priliehajú k nim vlastné priestranné terasy z kovovej konštrukcie a s drevenou podlahou, ako aj upravené záhrady na prináležiacich pozemkoch. Je zaujímavé, že hoci ide o pomerne malé objekty so zastavanou plochou len 80 m2 (čo je maximálne číslo na celoročne obývateľnú chatu), vďaka terakotovému obkladu a žabej perspektíve sa ich objem pri príchode zdá o dosť väčší. Zdanie však klame. Pri vstupe do domu je zrejmé efektívne dispozičné riešenie a otvára sa príťažlivý svetlý, komorný, ale priestranný interiér.

Foto: Soňa Sadloňová
Foto: Soňa Sadloňová
Situácia
SituáciaAutor: Ateliér K.F.A.

Dispozícia 

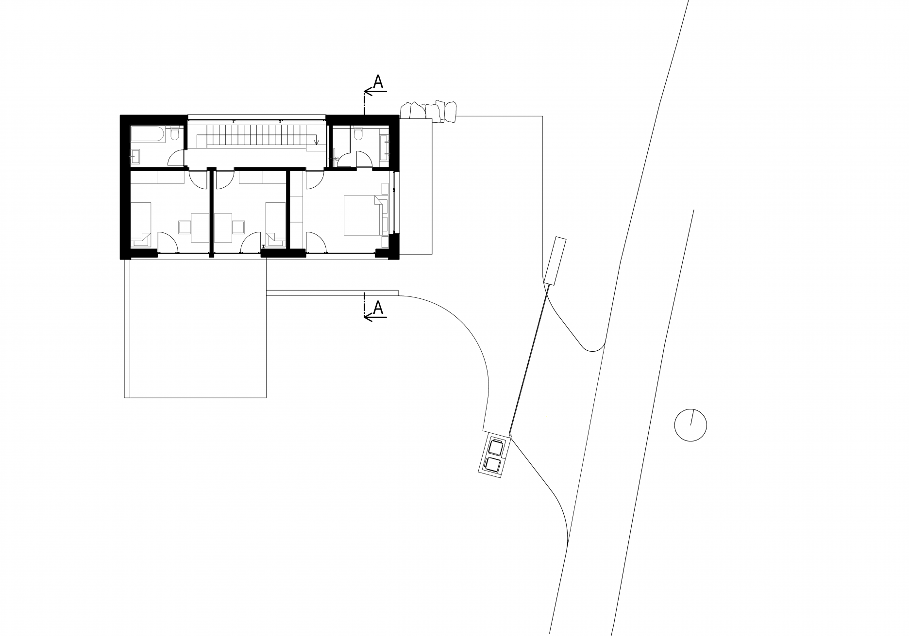
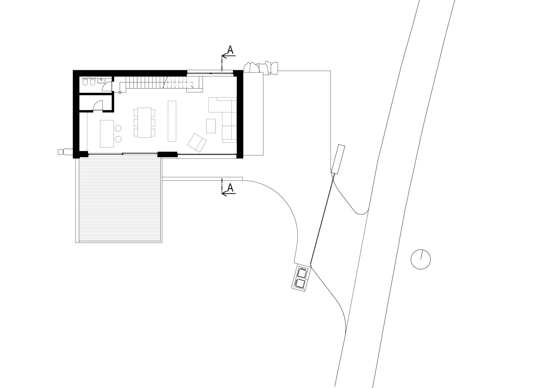
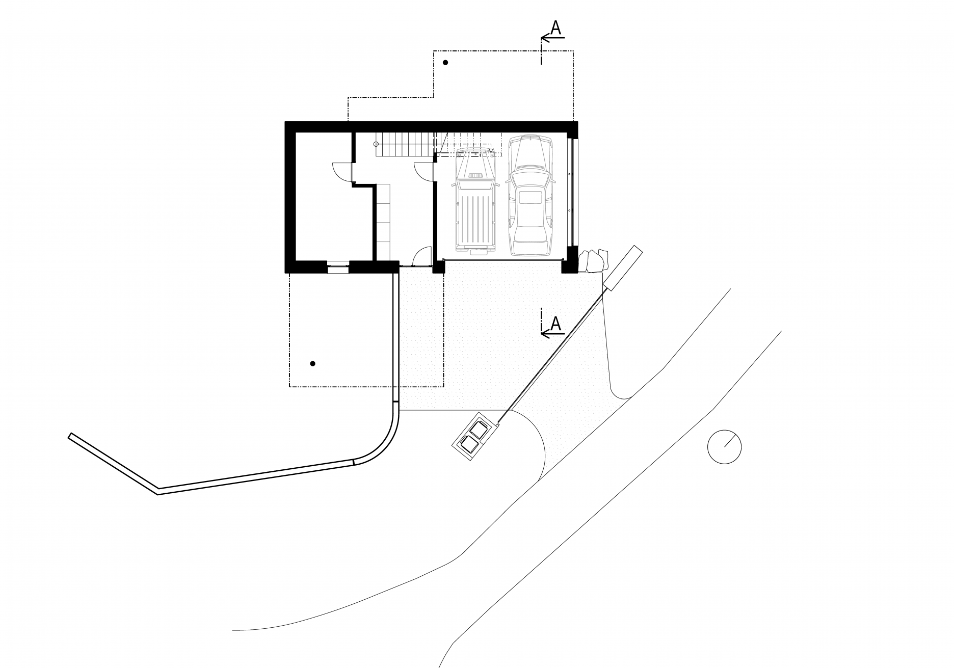
Chaty sú navrhnuté s identickými obytnými dispozíciami. Disponujú všetkým, čo moderný domov potrebuje a má mať, vrátane skladových a technických priestorov a špajzy.  Tri funkčne rozčlenené podlažia, prvé na technické zázemie, skladovanie a na parkovanie dvoch automobilov, druhé ako otvorený priestor - denná zóna, ktorú tvorí obývacia izba s kuchyňou na kratšej stene a dopĺňa ju špajza s hosťovskou toaletou a prístup na terasu. Tretie podlažie s tromi spálňami a dvoma kúpeľňami tvorí intímnu nočnú zónu striedmych rozmerov, pričom jedna z kúpeľní slúži len spálni rodičov. Na druhej strane, rodina žije predovšetkým v spoločenskom priestore a v záhrade, ktorá vstupuje do interiéru veľkými sklenenými plochami a pôsobí na jeho atmosféru. Na prízemie sa dá dostať nielen zo suterénu od garáže vnútorným jednoramenným schodiskom, ale aj vonkajškom, záhradným exteriérovým chodníkom a schodmi.

Objekt "A":

Dom "A": Pôdorys 1. PP
Dom "A": Pôdorys 1. PPAutor: Ateliér K.F.A.
Dom "A": Pôdorys 1. NP
Dom "A": Pôdorys 1. NPAutor: Ateliér K.F.A.
Dom "A": Pôdorys 2. NP
Dom "A": Pôdorys 2. NPAutor: Ateliér K.F.A.
Dom "A": Rez
Dom "A": RezAutor: Ateliér K.F.A.

Objekt "B":

Dom "B": Pôdorys 1. PP
Dom "B": Pôdorys 1. PPAutor: Ateliér K.F.A.
Dom "B": Pôdorys 1. NP
Dom "B": Pôdorys 1. NPAutor: Ateliér K.F.A.
Dom "B": Pôdorys 2. NP
Dom "B": Pôdorys 2. NPAutor: Ateliér K.F.A.
Dom "B": Rez
Dom "B": RezAutor: Ateliér K.F.A.

Architektúra, konštrukcia, interiér a materiály 

Dva kompaktné lapidárne tvary sú obalené lícovou tehlou a tvoria harmonický celok, vymykajúci sa územiu s nesúrodou rozmanitou zástavbou. Šmondrk ostal verný svojim architektonickým zásadám. Vždy ponúka jednoduchý harmonický koncept (mnohí vieme, že cesta k jednoduchosti obyčajne nebýva jednoduchá), ktorý podporuje vzájomne svetelne priaznivé natočenie chát, typické veľkorysé umiestnenie veľkých okien, len biele steny čiastočne nahradil tehlou. Pultovú strechu prekrýva plechová krytina.

Domy majú železobetónovú konštrukciu, okná sú kovové čierne trojkomorové Aljval, tehlový obklad sa ako poťah vinie po stenách aj v interiéri, dopĺňajú ho dubové parkety a vstavaná kuchynská linka. 

Paralelne s architektúrou Šmondrk roky tvorí v oblasti produktového dizajnu a výtvarného umenia. Tento aspekt profesionálneho prístupu ho stavia do výhody. Ako architekt potom lepšie vníma a ovláda precízny architektonický detail a potrebu dôsledne ho zrealizovať, čo sa prejavuje na dotiahnutosti jeho interiérov, ale nielen interiérov a takisto nielen pri tejto realizácii. Šmondrkov prístup tvorí výrazný protipól súčasného mainstreamu hipsterských interiérových trendov.

Technická infraštruktúra a vybavenie domov Na Ahoji bol roky problém s pitnou vodou, dôvodom bola práve záhradkárska oblasť, kde sa žumpami a trativodmi kontaminovali spodné vody. Územný plán hlavného mesta SR Bratislavy a územný plán zóny Koliba-Briežky tu rátal so zastavaním parciel na území vinohradov a záhrad malopodlažnou bytovou zástavbou, ako aj s vybudovaním inžinierskych sietí. Od roka 2007 má lokalita domy napojené na verejný vodovod a verejnú kanalizáciu, teda aj dvojica chát na Ahoji má k týmto sieťam prístup. Vykurovanie chát zabezpečuje tepelné čerpadlo. 

Foto: Soňa Sadloňová
Foto: Soňa Sadloňová

Na margo projektu 

Záhradkárske osady vznikali na miestach nevhodných na iný typ zástavby, napríklad pozdĺž železničných tratí, pozdĺž ciest a potokov alebo na navážkach, na hranici zastavaného územia.

V prípade dvojice chát na Ahoji to ani tak nie je nevýhodná poloha, čo sa týka dostupnosti základnej občianskej vybavenosti, veď ležia približne desať minút od jednej z hlavných tepien mesta - Račianskej ulice, ktorá disponuje všetkým potrebným, veľkými potravinami aj inými obchodmi a službami, škôlkami a školami, ba aj kostolom. Problémom je tu skôr technický moment, siete a prístup. Nadmieru prudký sklon cesty a jej nedostatočná kvalita, ktoré pri zasneženom teréne alebo prívalových dažďoch z Malých Karpát môžu robiť ťažkosti. Aj keď, mnohé z toho ľahko vyrieši motorka alebo SUV 4 x 4. Pri pohľade na Šmondrkovu dvojicu chát a zástavbu na okolitých pozemkoch je vlastne len otázka času, kedy tieto chaty splynú so štandardnou mestskou štruktúrou.

Foto: Soňa Sadloňová

Od obytného súboru cez rodinnú vilu po porcelánovú šálku

Architekt Norbert Šmondrk patrí k výrazným stabilným osobnostiam ponovembrovej slovenskej architektonickej generácie. V popredí jeho tvorby vždy stojí snaha o vytvorenie komplexného, výtvarne i stavebne nadčasového diela, kde má svoje miesto otvorený priestor a kultivovaný detail. Za Balneoterapiu vojenského kúpeľného ústavu v Piešťanoch ho v roku 1998 nominovali na európsku cenu za architektúru, Cenu Miesa van der Rohe. Za Rezidenciu Záhorská bol nominovaný na Cenu časopisu ARCH, Cenu Dušana Jurkoviča aj CE ZA AR. Na cenu CE ZA AR bol naposledy nominovaný za interiér rodinného domu s ateliérom v Sklenom.

Bezprostredne po ukončení štúdia Šmondrk v roku 1990 založil vlastnú architektonickú kanceláriu, Štúdio K. F. A. Štúdio vzniklo ako jeden z prvých architektonických ateliérov, ktoré sa začali venovať architektúre, interiéru a dizajnu mimo dožívajúcich štátnych projektových ústavov. Patrí mu nezastupiteľná rola v etablovaní nového myslenia do architektúry poprevratového obdobia. Pod Šmondrkovou kuratelou začala svoju profesionálnu dráhu desiatka dnes už renomovaných slovenských architektov strednej generácie. 

Už od prvých diel, ktorými sú Vila K. F. A. na Karpatskej, Balneoterapia v Piešťanoch alebo Vila BMS v Českom Krumlove, vykazuje Šmondrkova architektúra typické znaky. Triezva geometrická abstrakcia a jasný priestorový poriadok sú integrálnou súčasťou celej jeho tvorby, nech ide o akýkoľvek druh stavby. Lapidárne tvary, veľké sklenené plochy či pásové okná, otvorená dispozícia, plochá alebo pultová strecha, jednoramenné schodisko a veľké biele steny/plochy. Tento architekt sa nemusel nikdy "hľadať". Jeho tvorba od počiatku vyjadruje jednoznačný, kontinuálny a identifikovateľný názor, ktorým sa presadzuje odjakživa, a ten sa v priebehu rokov zásadne nemení, len sa čoraz viac cizeluje a niekedy prekvapivo modifikuje. Norbert Šmondrk je v prvom rade architekt, ktorý pristupuje koncepčne a zodpovedne k zadaniam rôzneho druhu a rozsahu. No jeho tvorba odjakživa osciluje medzi dizajnom a architektúrou, dokonca presakuje z produktového dizajnu aj do voľného výtvarného umenia, ktoré v interiéri mnohých architektonických diel nachádzajú uplatnenie.

Text: Irena Dorotjaková
Fotografie: Soňa Sadloňová
Autor: Norbert Šmondrk, Ateliér K.F.A.
Spolupráca: Filip Trajteľ

Článok bol publikovaný v časopise ARCH 3 / 2023 v októbri 2023.

Poloha diela

Ing. arch. Norbert Šmondrk

Súvisiace články

Vložené
15. november 2023
0
4727
Hlavný obsahHlavný obsah
Čakajte prosím