Advertorial

Pozvánka na 2. ročník stavebného veľtrhu BigMarket na Slovensku

Na podujatí sa predstaví až 37 vystavovateľov - popredných dodávateľov stavebných materiálov a inovácií s prezentáciou...

Hotel Hirschen Spa House, Rakúsko

Novotvar v prostredí alpskej obce.

Vytvorte si kúpeľňu snov: dizajnové riešenie od značky hansgrohe

Hansgrohe - prémiová značka kúpeľňových riešení, ponúka nadčasový dizajn, technickú precíznosť a udržateľné inovácie...

Okná Internorm za minuloročné ceny + hliníkový kryt zdarma!

Využite špeciálnu akciu Internorm: okná za minuloročné ceny a hliníkový kryt úplne zadarmo. Ponuka je časovo obmedzená!

Moderné plynové technológie: Efektivita a inovácie pre 21. storočie

Sumarizácia najdôležitejších inovácií, ktoré redefinujúcich využitie tohto energetického zdroja.

Utesňovanie spodných stavieb pomocou hydro-aktívnej fólie AMPHIBIA.

AMPHIBIA 3000 GRIP 1.3 od spoločnosti ATRO predstavuje modernú hydroizolačnú technológiu, ktorá spája vysokú odolnosť,...

Dekarbonizácia individuálneho vykurovania domácností – Green Deal evolučne a nie revolučne

Ambiciózne plány EK narazili na ekonomické možnosti domácností v jednotlivých členských štátoch –...

Minimalistické dvere IDEA – technická precíznosť a čistota prevedenia

IDEA DOOR od spoločnosti JAP prináša do interiéru čistý minimalistický vzhľad vďaka bezrámovému riešeniu a precíznej...

Dom s výhľadom na údolie, Dlouhý Most (ČR)

Kontinuita riešenia od vonkajšieho obkladu až po kovania a kľučky.

Schell Vitus – osvedčené riešenie pre sprchy a umývadlá vo verejnom sektore s viac ako desaťročnou tradíciou

Nástenné nadomietkové armatúry Vitus sú mimoriadne vhodné pre rýchlu a efektívnu...

Kompozitné okná predstavujú súčasnosť a budúcnosť

Okenné profily z kompozitného materiálu RAU-FIPRO X od spoločnosti Rehau sú v porovnaní s tradičnými plastovými profilmi mnohonásobne...

Myotis - stoly 2025

Najnovší sortiment stolov pre zariadenie interiérov...

Priemyselné sklenené priečky Dorsis Digero: svetelné rozhranie pre moderné interiéry

Spojenie moderného dizajnu, funkčnosti a svetla do harmonického architektonického prvku.

Význam prirodzeného svetla pre moderné a flexibilné pracovné prostredie

Kancelárska budova Baumit v slovinskom Trzine prešla premenou na moderné a udržateľné pracovisko. Architekti kládli dôraz...

Konferencia Xella Dialóg predstaví novinky a trendy v stavebníctve

Mottom šiesteho ročníku on-line konferencie odborníkov Xella Dialóg je Efektívny návrh budov 2025+: zmeny a riešenia

Rodinný dom s ateliérom, Nová Baňa - Sklené

Rodinné sídlo na vidieku, na mieste osídlenia s dlhodobou rodinnou tradíciou, ktorého súčasťou sú ateliéry. Príklad aktívneho zapojenia pôvodnej vidieckej štruktúry do súčasného viacohniskového spôsobu života.
Diela
Red 117.06.2015
35560+19
Rodinný dom s ateliérom, Nová Baňa - Sklené
Autori: Ing. arch. Norbert ŠmondrkInvestor: Norbert ŠmondrkPlocha pozemku: 95 000 m2Podlažná plocha: 950 m2Obostavaný objem: 2 800 m3Návrh: 2003 - 2013Realizácia: 2003 - 2013Adresa: Nová Baňa - Sklenné, SlovenskoPublikované: 17. jún 2015

Pohorie Pohronský Inovec v okolí Novej Bane je miernou horskou krajinou. Čítaním mapy územia nachádzame názvy vrchov a lokalít naznačujúcich, že za každým pomenovaním sú skryté príbehové vrstvy krajiny. V dôsledku obmedzenej prístupnosti po úzkych komunikáciách si krajina svoj charakter zachováva. Dôslednejším hľadaním môžeme objaviť miesta s umiestnením sídel skrytých v záhyboch krajiny, ktoré si udržujú kontinuálny rozvoj aj v súčasnom období.
Sklársku minulosť regiónu si uvedomujeme z pomenovaní na trase od Novej Bane po Starohutskej ceste, cez Chotár, keď prichádzame do časti Sklenné. Nachádzame tu rodinné sídlo, ktorého časťou je rodinný dom s ateliérmi.

foto: Norbert Šmondrk

Vznikol na mieste rodového miesta pri staršom dome obyvateľov, pôvodne sa zaoberajúcich poľnohospodárstvom. Súčasný majiteľ-architekt sa rozhodol túto usadlosť rozvíjať, stavebne dopĺňať architektonickými prejavmi, spolu s externými výtvarnými dielami. Usadlosť je budovaná v dlhšom časovom horizonte niekoľkými objektmi s postupne sa vyvíjajúcou funkčnou náplňou. Na začiatku celého procesu bol okamih, keď sa majiteľ rozhodol pokračovať v rozvíjaní tohto rodinného sídla hospodárskymi aktivitami primeranými jeho záujmom. Pôvodný rodinný dom poľnohospodárov bol doplnený dvorom s kamennými stenami. Drevený hospodársky objekt svojou polohou naznačil tendenciu definovania priestoru sídla. Nová hospodárska budova, pôvodne určená pre chov koní, situovaná oproti pôvodnému domu, uzavrela priestor medzi objektami z tretej strany. Keď sa jej funkcia zmenila na rodinný dom s ateliérmi, potok pretekajúci miernym údolím medzi týmito objektami bol prekrytý, plocha bola zjednotená a doplnená výsadbou drevín, majiteľ mohol pomenovať tento priestor medzi objektmi termínom námestie, s miernym významovým posunom, pretože sa nachádza v rurálnom priestore, ale aj v tomto kontexte termínom inšpiratívnym. Na doplnenie týchto významov je v strede priestoru umiestnené žulové napájadlo datované rokom 1868, pôsobiace ako sochárske dielo, s odkazom na vodu a jej využívanie.

Situácia
Situácia

Morfológia terénu a architektonické objekty
Pozorovaním pôdorysných polôh objektov na tejto usadlosti objavujeme ich osadenie v priestore a teréne ako prejav architektonickej citlivosti autora pri vytváraní tohto mikrourbanistického zámeru.

foto: Norbert Šmondrk

Rozhodnutia pre jednotlivé polohy objektov vychádzali aj z praktických dôvodov. Poloha a veľkosť drevenej hospodárskej budovy chráni usadlosť pred prevládajúcimi severnými vetrami, naklonenie novej budovy – rodinného domu s ateliérmi – bolo východiskom pre optimálnu polohu k západnému svahu, do ktorého je zarezaná, no súčasne rešpektuje aj líniu potoka.
Pokiaľ je vietor zadržiavaný dreveným objektom, voda regulovaného potoka je v nižšej polohe zadržiavaná hrádzou. V tomto spomalení živlov nachádzame metaforu zastavenia ich plynutia a zvýraznenie významnosti miesta. Prejavená architektonická citlivosť v celkovej koncepcii sídla a v architektonických riešeniach objektov je dôležitá pre objasnenie autorovho prístupu k práci s materiálmi, ktoré sa stávajú súčasťou jeho diela.

foto: Norbert Šmondrk

Materiálové povrchy, ktoré sa objavujú v priestorovom vyznení na úrovni interiérových plôch, nábytkových kusov, architektonických článkov a objemov, úžitkových objektov, sochárskych plastík, prinášajú inšpiratívne pôsobenie.

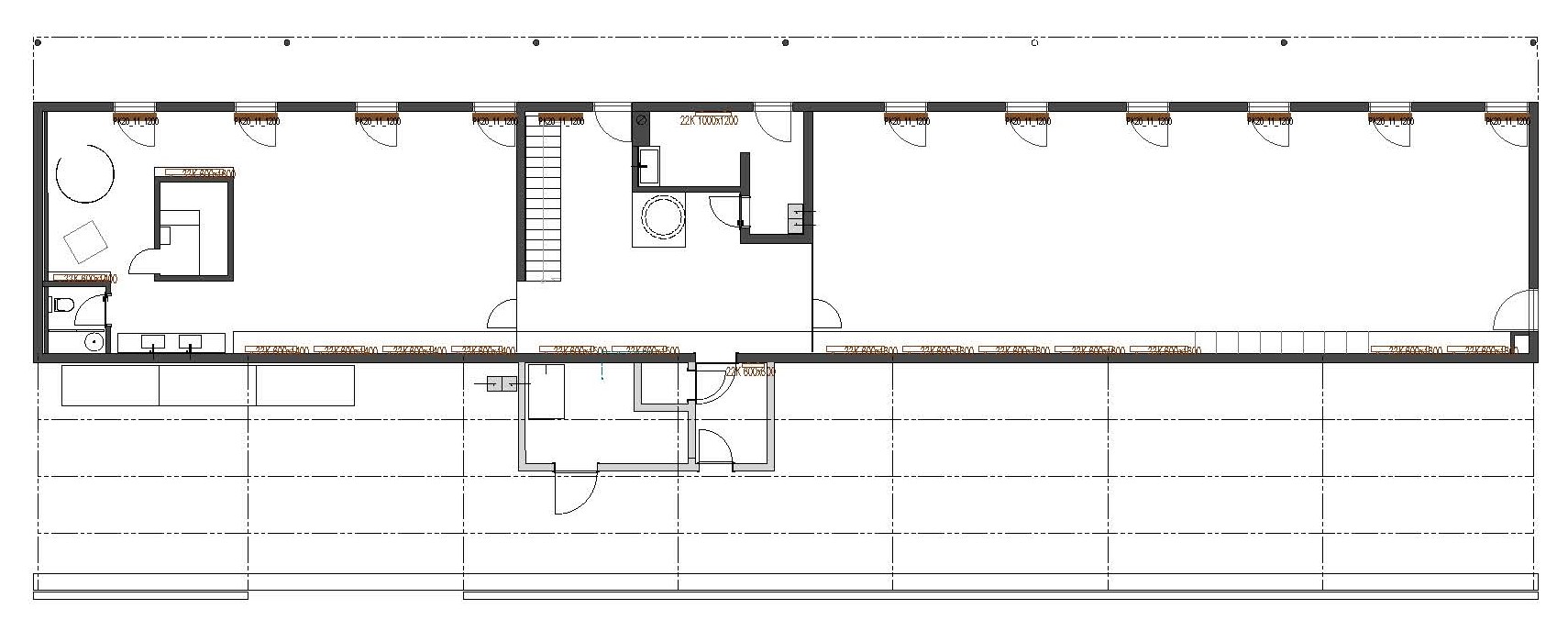
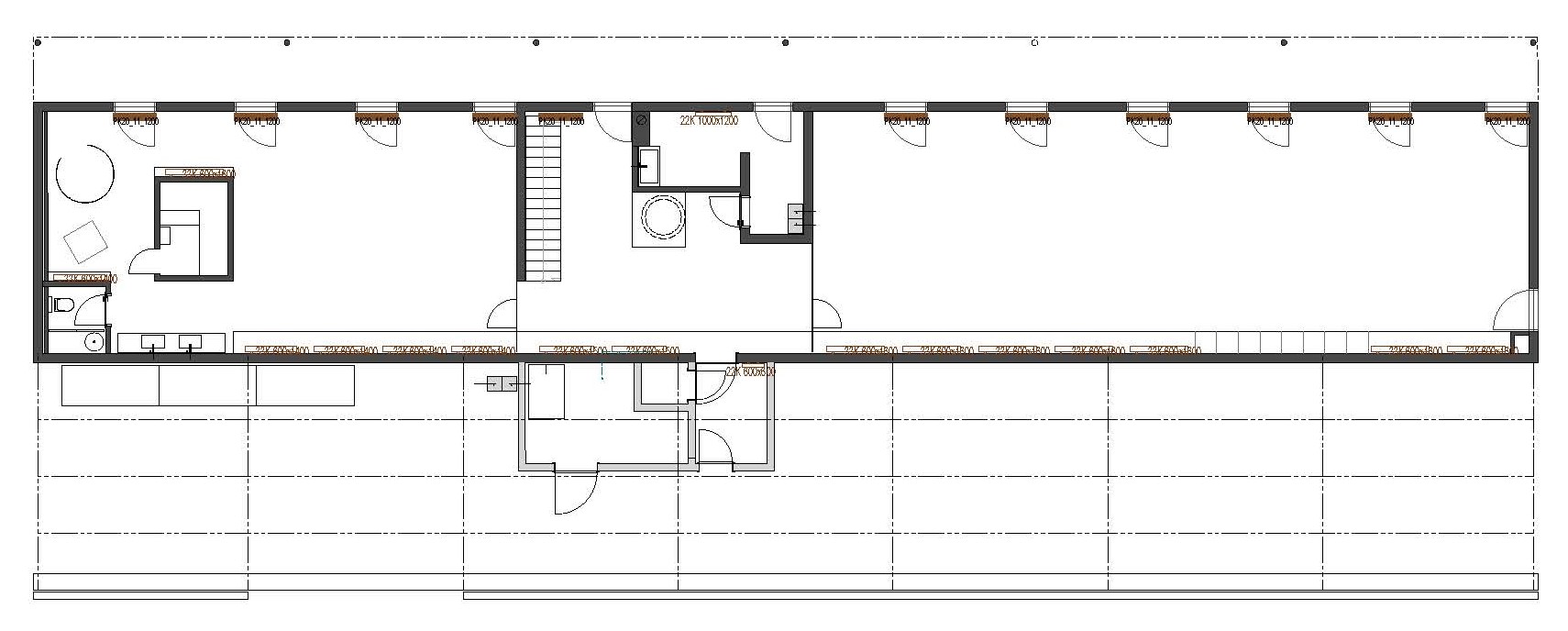
Pôdorys prízemia
Pôdorys prízemia
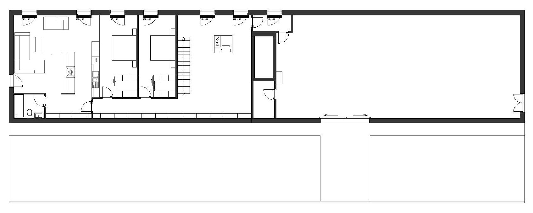
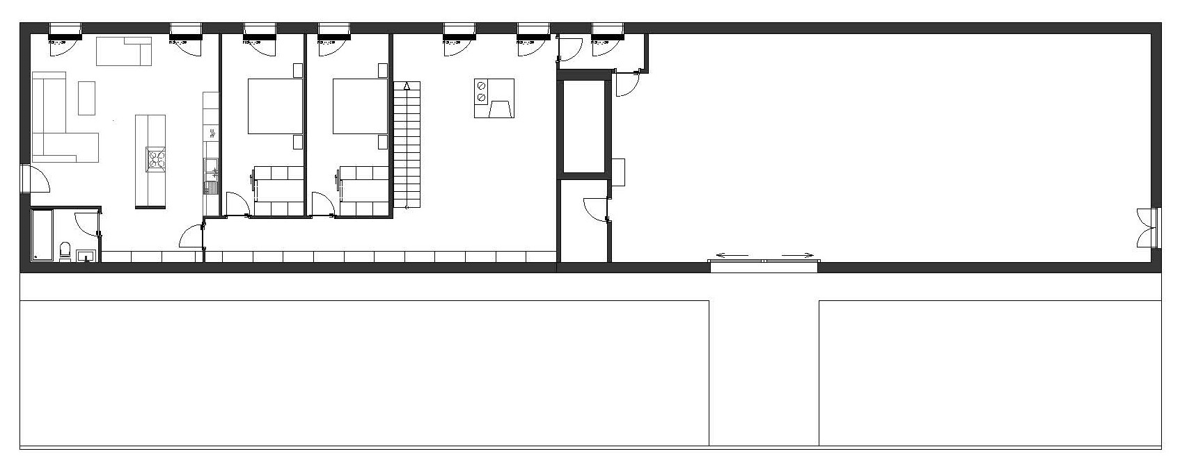
Pôdorys poschodia
Pôdorys poschodia

Časový faktor pri materiáloch
Príklon autora k používaniu materiálov v ich prirodzenej podstate, súčasne s odkrývaním ich povrchov a štruktúr, pôsobením najrôznejších zásahov a časového faktoru v otvorených klimatických pomeroch, môžeme považovať za výskum s umeleckým vyznením. Keď kráčame po vnútornom kovovom schodisku z čierneho plechu v ateliérových priestoroch domu, predstavujeme si povrch tohto schodiska po určitom čase a používaní.

foto: Soňa Sadloňová

V spolupráci s hrdzavosťou vzniknú grafické plochy podobné plochám na oceľových dverách staršieho vzniku. Materiál – čierny oceľový plech – je aj na severnej fasáde domu ako povrch mohutného dverného krídla.

Dimenzie sú fascinujúce, vonkajšia exteriérová plocha je červenohrdzavého farebného tónu, v čerstvej zeleni okolitých prírodných plôch je to priam jarný zázrak, ktorý sa však v čase mení a zanikne. Každým rokom o 0,1mm. Je to tiché pozorovanie premeny.
Na druhej strane zaznamenávame autorské pokusy s karbonizáciou drevených povrchov mohutných dubových plastík. Ich takto upravený povrch by mal vzdorovať časovému faktoru v polohe vystavenej poveternosti. Takýto vzťah k materiálom je umeleckou meditáciou majiteľa a predstavuje aj duchovný rozmer jeho pôsobenia na tejto usadlosti.

foto: Soňa Sadloňová

Tento rozmer bytia nie je artikulovaný znakmi so špecifickými významami, ale najhlbšou jednoduchosťou pri pôsobení času na zvolenú materiálnosť objektov, ktoré sám navrhuje. Pripomíname myšlienky Stevena Holla k problematike povrchov v architektúre, kedy štruktúrované plochy a ich vnímanie otvára našu vnútornú reflexiu. V samote usadlosti na Sklennom a v práci s materiálmi sa majiteľ dotýka podobných oblastí.
Keď prechádzame cez ďalšie interiérové priestory, objavujeme súhru rôznych materiálových povrchov objektu, buď ako vložených povrchov – peniažková čierna gumenná podlaha –, alebo povrchy keramických stropov, ako súčasť stavby.

foto: Soňa Sadloňová

Objekt obsahuje ateliérové priestory pre spracovanie kovu, dreva, skla a kompozitných materiálov. Rezidenčné priestory sú oddychovou časťou, spolu s konferenčným priestorom. Tu nachádzame mohutný drevený stôl v jednoduchých geometrických objemoch, doplnený mäkko tvarovanými stoličkami, medzi rôznorodými plochami interiéru, svietidlami, priepustnou štruktúrou zatienenia okien, autorskými objektami.

foto: Soňa Sadloňová
foto: Soňa Sadloňová

Pôvodná koncepcia objektu ako stajňa pre kone bola východiskom pre súčasnú náplň a otvorená štruktúra objektu to akceptovala s ľahkosťou.
Vonkajšie povrchy architektúry rodinného domu s ateliérmi sú pokryté titánzinkovým plechom s horizontálnymi spojmi. Prízemná časť objektu s horizontálne ukladaným dreveným obkladom červeného farebného tónu prináša ľahkosť a mäkkú výrazovú stopu do architektúry objektu ako pozadie ku klasicizujúcemu stĺporadiu oceľových stĺpov. Horizontálne materiálové línie podporujú metaforu plynutia vyššie spomenutých fenoménov.

foto: Norbert Šmondrk

Za proporčnosťou objektov a priestorov medzi, vo vzťahu k otvorenému okolitému priestoru, rozoznávame autorov vzťah k materiálnemu svetu a jeho veľkosti. Architektúra objektu rodinného domu s ateliérmi priniesla do tohto skrytého prostredia podnetný moment. Materiály, ich štruktúrovanie a detaily, kompozičná jednoznačnosť celku, vytvorenie náznakového mikrourbánneho priestoru otvára pre majiteľa a autora v rámci veľkosti pozemku ďalšie možnosti. Naznačujeme nenápadnú paralelu s postupmi Philipa Johnsona v New Canaan.

Článok bol spracovaný na základe podkladov dodaných autorom. Autormi fotografií sú Soňa Sadloňová a Norbert Šmondrk, autorom textu Martin Somora.

Poloha diela

Ing. arch. Norbert Šmondrk

Súvisiace články

Vložené
17. jún 2015
0
3556
Hlavný obsahHlavný obsah
Čakajte prosím