Advertorial

Pozvánka na 2. ročník stavebného veľtrhu BigMarket na Slovensku

Na podujatí sa predstaví až 37 vystavovateľov - popredných dodávateľov stavebných materiálov a inovácií s prezentáciou...

Hotel Hirschen Spa House, Rakúsko

Novotvar v prostredí alpskej obce.

Vytvorte si kúpeľňu snov: dizajnové riešenie od značky hansgrohe

Hansgrohe - prémiová značka kúpeľňových riešení, ponúka nadčasový dizajn, technickú precíznosť a udržateľné inovácie...

Okná Internorm za minuloročné ceny + hliníkový kryt zdarma!

Využite špeciálnu akciu Internorm: okná za minuloročné ceny a hliníkový kryt úplne zadarmo. Ponuka je časovo obmedzená!

Moderné plynové technológie: Efektivita a inovácie pre 21. storočie

Sumarizácia najdôležitejších inovácií, ktoré redefinujúcich využitie tohto energetického zdroja.

Utesňovanie spodných stavieb pomocou hydro-aktívnej fólie AMPHIBIA.

AMPHIBIA 3000 GRIP 1.3 od spoločnosti ATRO predstavuje modernú hydroizolačnú technológiu, ktorá spája vysokú odolnosť,...

Dekarbonizácia individuálneho vykurovania domácností – Green Deal evolučne a nie revolučne

Ambiciózne plány EK narazili na ekonomické možnosti domácností v jednotlivých členských štátoch –...

Minimalistické dvere IDEA – technická precíznosť a čistota prevedenia

IDEA DOOR od spoločnosti JAP prináša do interiéru čistý minimalistický vzhľad vďaka bezrámovému riešeniu a precíznej...

Dom s výhľadom na údolie, Dlouhý Most (ČR)

Kontinuita riešenia od vonkajšieho obkladu až po kovania a kľučky.

Schell Vitus – osvedčené riešenie pre sprchy a umývadlá vo verejnom sektore s viac ako desaťročnou tradíciou

Nástenné nadomietkové armatúry Vitus sú mimoriadne vhodné pre rýchlu a efektívnu...

Kompozitné okná predstavujú súčasnosť a budúcnosť

Okenné profily z kompozitného materiálu RAU-FIPRO X od spoločnosti Rehau sú v porovnaní s tradičnými plastovými profilmi mnohonásobne...

Myotis - stoly 2025

Najnovší sortiment stolov pre zariadenie interiérov...

Priemyselné sklenené priečky Dorsis Digero: svetelné rozhranie pre moderné interiéry

Spojenie moderného dizajnu, funkčnosti a svetla do harmonického architektonického prvku.

Význam prirodzeného svetla pre moderné a flexibilné pracovné prostredie

Kancelárska budova Baumit v slovinskom Trzine prešla premenou na moderné a udržateľné pracovisko. Architekti kládli dôraz...

Konferencia Xella Dialóg predstaví novinky a trendy v stavebníctve

Mottom šiesteho ročníku on-line konferencie odborníkov Xella Dialóg je Efektívny návrh budov 2025+: zmeny a riešenia

Ateliérový dom, Ratiboř (ČR)

Ateliéry v "obálke", ktorá sa rozmerovo nelíši od okolitých rodinných domov.
Diela
Red 425.07.2018
19980+10
Ateliérový dom, Ratiboř (ČR)
Autori: MgA. Jakub ČervenkaSpolupráca: Ing. arch. Martin Rosa, Ing. David Böhm, Ing. Ivan SvrčinaZastavaná plocha: 142,2 m2Obostavaný objem: 700 m3Návrh: 2015 - 2015Realizácia: 2016 - 2017Adresa: Ratiboř, Česká republikaPublikované: 25. júl 2018

Niečo nové v malej českej obci. Hľadanie alternatívy k tradičným formám i funkciám "domov na dedine". Na prvý pohľad expresívne architektonické riešenie striktne vychádza z priestorovej logiky pracoviska. Kombinácia drevených a oceľových nosných prvkov umožnila vyloženie poschodia a uvoľnila priestor v parteri. Prízemie ateliérového domu s troma samostatnými pracoviskami je aj vďaka absencii oplotenia voľne prepojené s ulicou a záhradou. 

Koncepcia

Centrálna časť obce Ratibor je definovaná nesúrodou zástavbou rodinných domov s jasne určenou uličnou čiarou. “Náš dům nastavuje zrcadlo svému okolí a navrhuje alternativu ke každodennímu cestování za prací do měst,” poukazujú architekti na rastúci trend lokalizovaných pracovísk. 

Variabilita dispozície a vonkajší výraz domu reflektuje jeho funkciu. Celok je tvorený menšími objemami hmôt, ktorých kompozíciu v prízemí vytvára dve kryté parkovacie stánia. Pozemok nie je oplotený, prízemie domu je z časti otvorené do ulice a z časti sa otvára do intímnej záhrady. Tá sa stáva spoločným ťažiskom všetkých užívateľov domu. Figúra domu pracuje s rytmom, vrstvením, strieda plné a prázdne segmenty. Hmota domu časom porastie vegetáciou a rozšíri zelené plochy.

Foto: Tomáš Souček
Situácia
SituáciaAutor: Objektor
Foto: Tomáš Souček
Foto: Tomáš Souček
Foto: Tomáš Souček

Prevádzka

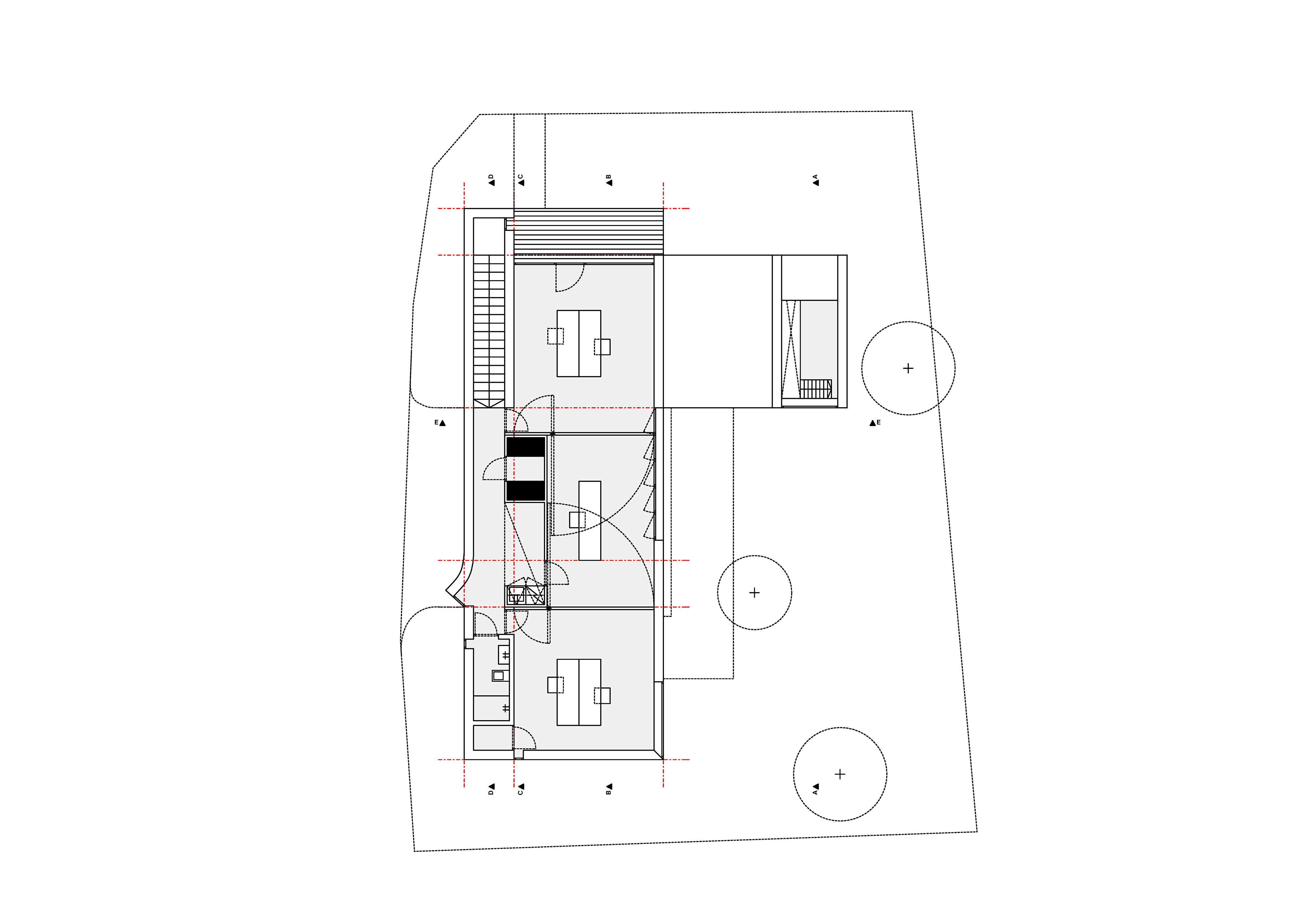
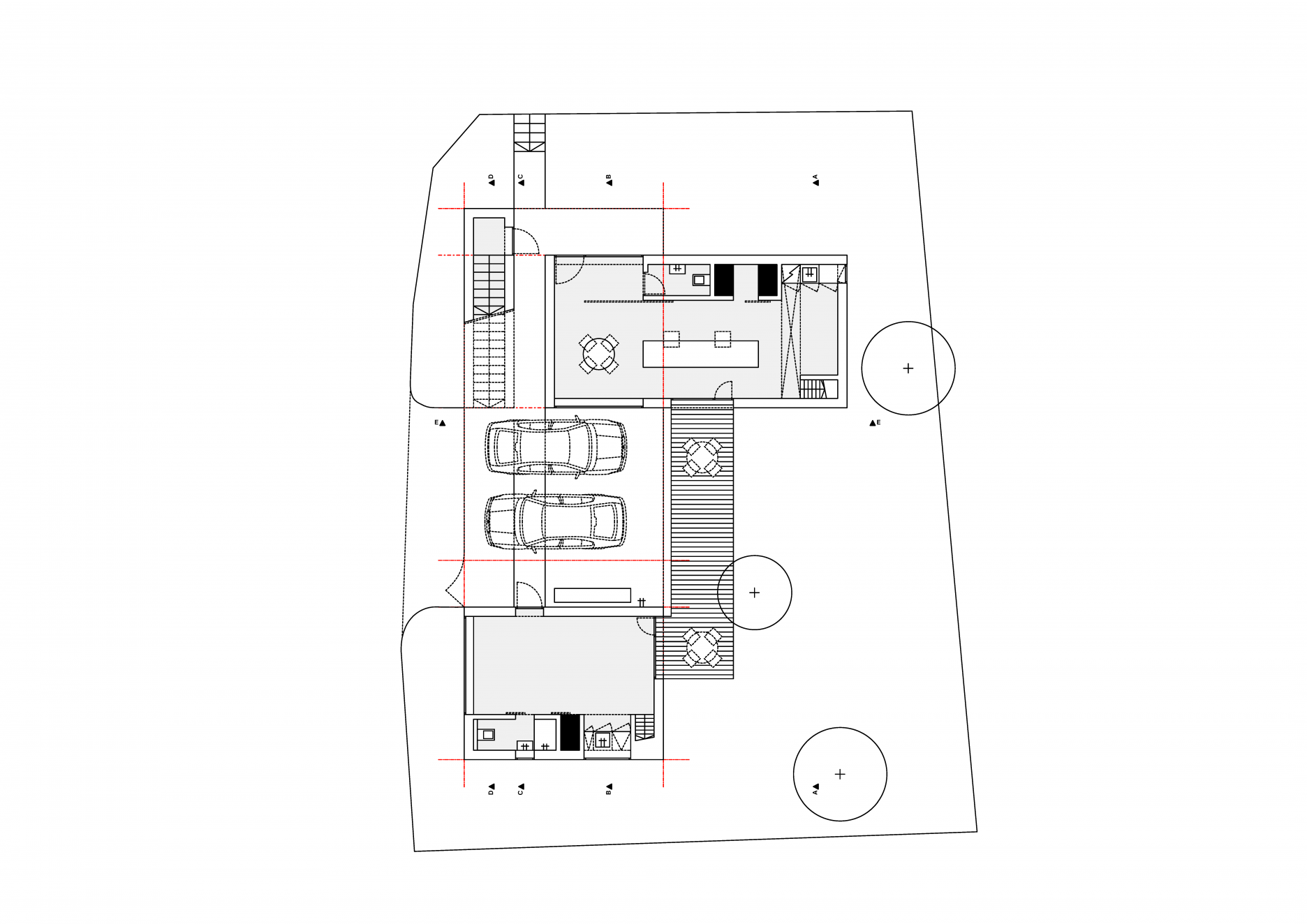
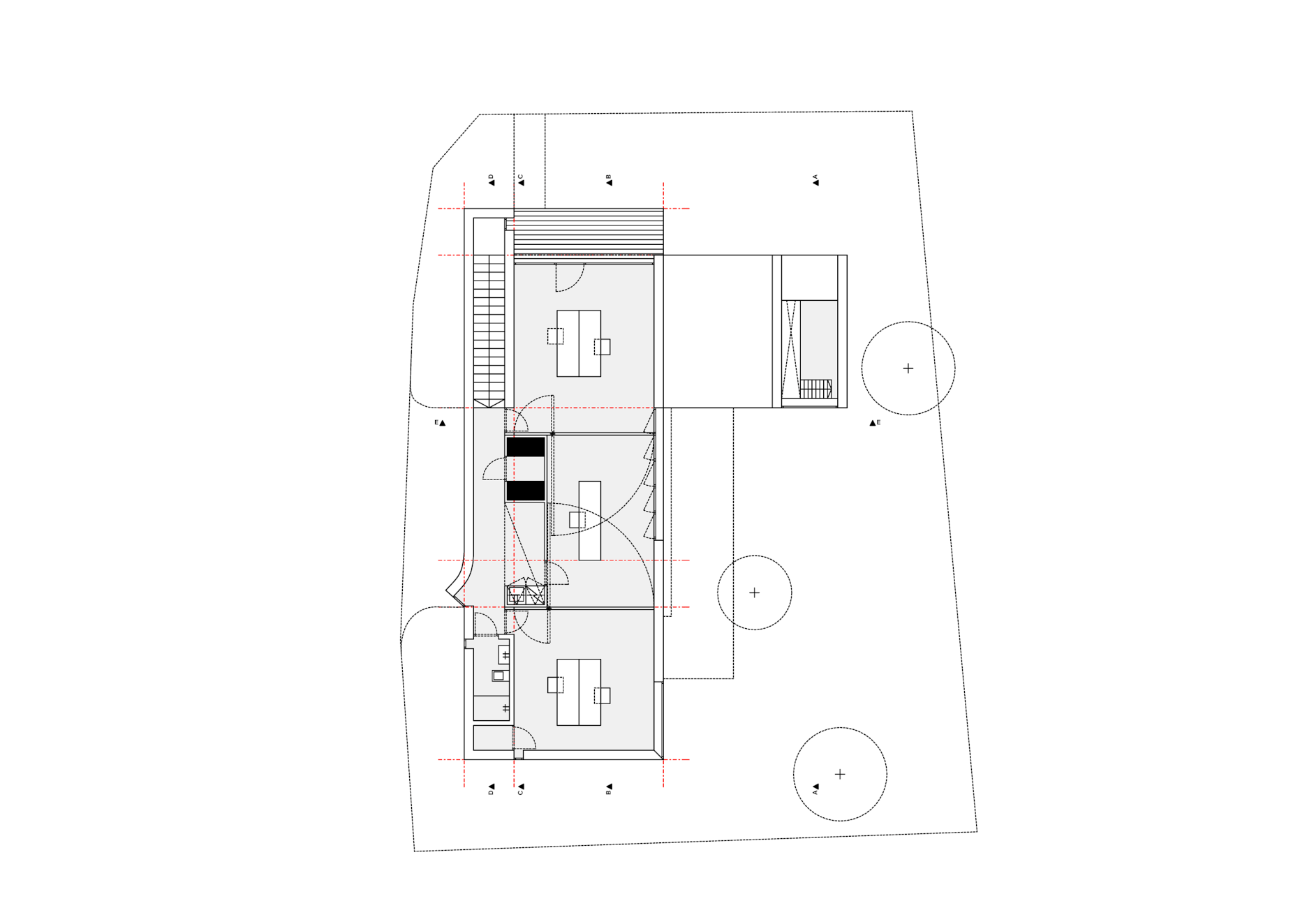
Dom je rozdelený na tri samostatné jednotky. V prízemí je navrhnutý ateliér A s rokovacím priestorom, kuchynkou, toaletou so sprchou a vstavaným poschodím vyčleneným na spanie. Ateliér B je centrálny priestor s vyššou svetlou výškou. Nad zázemím (toaleta, sklad, kuchynka) je opäť situovaná platforma prístupná prostredníctvom strmého schodiska. Na poschodí sa nachádza hala s kuchynkou, kúpeľňa a voľný pracovný priestor - ateliér C. Ten je možné rozdeliť pomocou veľkoformátových otočných stien na tri malé miestnosti, alebo jeden veľký ateliér. Na severnej strane, smerom k ulici, je priestor ukončený balkónom s pozinkovanou sieťou pre popínavé rastliny. Vstup do ateliéru A a C je situovaný z ulice. Vstup do ateliéru B je z “priechodu” prekrytého hmotou poschodia.

Axonometria - celkový pohľad
Axonometria - celkový pohľadAutor: Objektor
Pôdorys prízemia
Pôdorys prízemiaAutor: Objektor
Axonometria - prízemie
Axonometria - prízemieAutor: Objektor
Axonometria - poschodie
Axonometria - poschodieAutor: Objektor
Variabilný pôdorys poschodia
Variabilný pôdorys poschodiaAutor: Objektor

Konštrukcia

Zvislé nosné aj nenosné konštrukcie sú zhotovené z drevených masívnych panelov. Pri vybraných nosných priečkach sú postavené sadrokartónové predsteny pre vedenie inštalácií. Stropné konštrukcie z drevených masívnych panelov sú v miestach najväčšieho statického namáhania posilnené oceľovými nosníkmi. Fasáda s kontaktným zatepľovacím systémom je omietnutá tenkovrstvovou omietkou bielej a mierne kontrastnej sivej farby. Výplne okenných otvorov tvoria izolačné trojsklá vsadené do drevohliníkových rámov. Spevnené plochy sú vydláždené betónónými kockami menšieho formátu. Smerom do dvora vybieha drevená terasa.

Rezy "A"/"B"/"C"/"D"/"E" (zvrchu)
Rezy "A"/"B"/"C"/"D"/"E" (zvrchu)Autor: Objektor
Pohľad severný, južný, východný, západný (zvrchu)
Pohľad severný, južný, východný, západný (zvrchu)Autor: Objektor
Foto: Tomáš Souček
Foto: Tomáš Souček
Foto: Tomáš Souček
Foto: Tomáš Souček
Foto: Tomáš Souček
Foto: Tomáš Souček
Foto: Tomáš Souček
Foto: Tomáš Souček
Foto: Tomáš Souček
Foto: Tomáš Souček
Foto: Tomáš Souček
Foto: Tomáš Souček
Foto: Tomáš Souček
Foto: Tomáš Souček
Foto: Tomáš Souček
Foto: Tomáš Souček
Foto: Tomáš Souček
Foto: Tomáš Souček

Podklady:  OBJEKTOR

Poloha diela

MgA. Jakub Červenka

Súvisiace články

Vložené
18. júl 2018
0
1998
Hlavný obsahHlavný obsah
Čakajte prosím