Advertorial

Pozvánka na 2. ročník stavebného veľtrhu BigMarket na Slovensku

Na podujatí sa predstaví až 37 vystavovateľov - popredných dodávateľov stavebných materiálov a inovácií s prezentáciou...

Hotel Hirschen Spa House, Rakúsko

Novotvar v prostredí alpskej obce.

Vytvorte si kúpeľňu snov: dizajnové riešenie od značky hansgrohe

Hansgrohe - prémiová značka kúpeľňových riešení, ponúka nadčasový dizajn, technickú precíznosť a udržateľné inovácie...

Okná Internorm za minuloročné ceny + hliníkový kryt zdarma!

Využite špeciálnu akciu Internorm: okná za minuloročné ceny a hliníkový kryt úplne zadarmo. Ponuka je časovo obmedzená!

Moderné plynové technológie: Efektivita a inovácie pre 21. storočie

Sumarizácia najdôležitejších inovácií, ktoré redefinujúcich využitie tohto energetického zdroja.

Utesňovanie spodných stavieb pomocou hydro-aktívnej fólie AMPHIBIA.

AMPHIBIA 3000 GRIP 1.3 od spoločnosti ATRO predstavuje modernú hydroizolačnú technológiu, ktorá spája vysokú odolnosť,...

Dekarbonizácia individuálneho vykurovania domácností – Green Deal evolučne a nie revolučne

Ambiciózne plány EK narazili na ekonomické možnosti domácností v jednotlivých členských štátoch –...

Minimalistické dvere IDEA – technická precíznosť a čistota prevedenia

IDEA DOOR od spoločnosti JAP prináša do interiéru čistý minimalistický vzhľad vďaka bezrámovému riešeniu a precíznej...

Dom s výhľadom na údolie, Dlouhý Most (ČR)

Kontinuita riešenia od vonkajšieho obkladu až po kovania a kľučky.

Schell Vitus – osvedčené riešenie pre sprchy a umývadlá vo verejnom sektore s viac ako desaťročnou tradíciou

Nástenné nadomietkové armatúry Vitus sú mimoriadne vhodné pre rýchlu a efektívnu...

Kompozitné okná predstavujú súčasnosť a budúcnosť

Okenné profily z kompozitného materiálu RAU-FIPRO X od spoločnosti Rehau sú v porovnaní s tradičnými plastovými profilmi mnohonásobne...

Myotis - stoly 2025

Najnovší sortiment stolov pre zariadenie interiérov...

Priemyselné sklenené priečky Dorsis Digero: svetelné rozhranie pre moderné interiéry

Spojenie moderného dizajnu, funkčnosti a svetla do harmonického architektonického prvku.

Význam prirodzeného svetla pre moderné a flexibilné pracovné prostredie

Kancelárska budova Baumit v slovinskom Trzine prešla premenou na moderné a udržateľné pracovisko. Architekti kládli dôraz...

Konferencia Xella Dialóg predstaví novinky a trendy v stavebníctve

Mottom šiesteho ročníku on-line konferencie odborníkov Xella Dialóg je Efektívny návrh budov 2025+: zmeny a riešenia

Dom vo svahu, Šternberk (ČR)

Viacgeneračné rodinné bývanie. Pomerne zložitá prevádzka integrovaná do "učesaného" obalu. Perforovaný kváder osadený kolmo na svah zvažujúcej sa záhrady rozvíja bývanie na dvoch výškových úrovniach.
Diela
Red 429.11.2018
49430+31
Dom vo svahu, Šternberk (ČR)
Ateliér: maspartiAutori: Ing. arch. Pavel Martinka, Ondřej Spusta, MSc.Plocha pozemku: 630 m2Zastavaná plocha: 190 m2Podlažná plocha: 212 m2Obostavaný objem: 1300 m3Návrh: 2013 - 2013Realizácia: 2014 - 2017Adresa: Šternberk, Česká republikaPublikované: 29. november 2018

Dom stojí vo svahu pod lesom, v závere slepej ulice, na mieste, kde končí súvislá zástavba. Pôvodná štvrť Šternberku s viacpodlažnými vilami z medzivojnového obdobia bola postupne zahustená menšími rodinnými domami. V súčasnosti bezprostredné okolie domu tvorí nesúrodá predmestská mozaika.

“Dům jsme navrhli na místo s průhledem na protilehlý zalesněný svah. Pohled tak zůstal zachován, a to jak pro příchozí od lesa, tak pro obyvatele domů na protější straně ulice. Dům se svou výškou přizpůsobil okolí, směrem do zahrady si však dovolil vykouknout z řady a poskytnout svým obyvatelům dálkový pohled na Drahanské Vrchy,” vysvetľujú koncept autori.

Foto: BoysPlayNice
Foto: BoysPlayNice
Situácia
SituáciaAutor: Masparti

Architekti sa snažili aj napriek značným rozmerom novostavby o jej vhodné osadenie do svahovitého pozemku. Časť domu je pod terénom, všetky priestory vrátane terasy sú zakomponované v rámci jedného kubického objemu.

Rezopohľad
RezopohľadAutor: Masparti

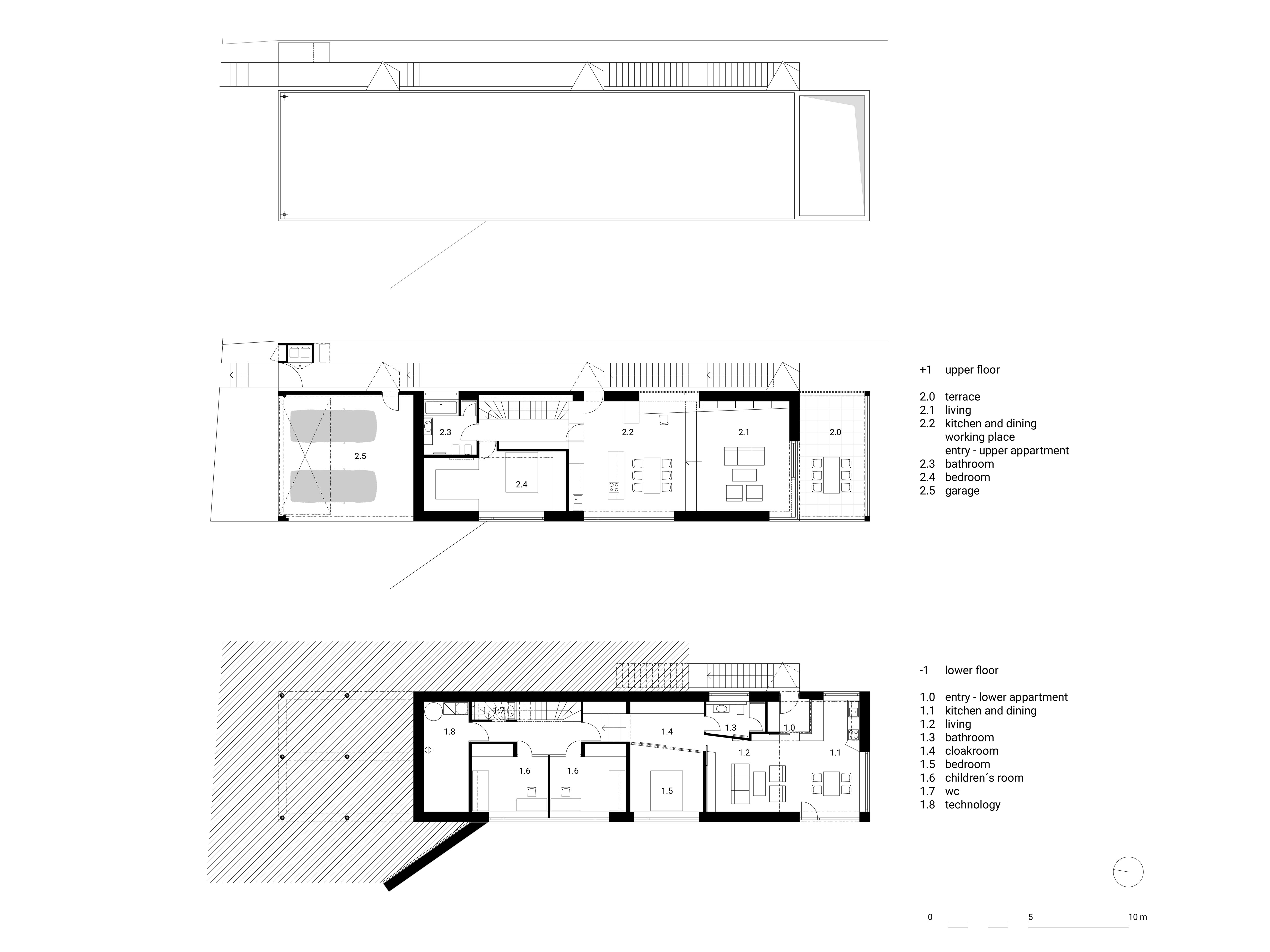
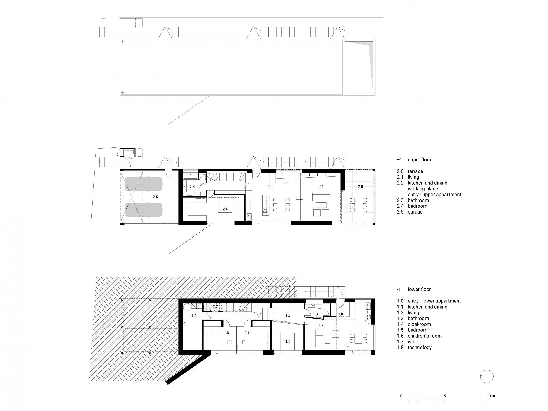
Obytný priestor sa rozvíja na dvoch úrovniach. Hlavný vstup je situovaný na hornom podlaží. Vchádzame do spoločenského priestoru, výškovo rozdeleného na dve časti. Na úrovni vstupu sa nachádza kuchyňa s jedálňou, o niečo vyššie obývačka s rozsiahlou vonkajšou terasou. Rodičovská izba a prislúchajúca hygiena sú prístupné z uzatvoreného priestoru schodiska. Súčasťou vyššieho podlažia je aj garáž pre dve autá.

Menší byt na spodnom podlaží je určený pre starých rodičov. Prístupný je z exteriérového betónového schodiska klesajúceho do spodnej časti záhrady. Izby pre deti sú medzi oboma bytmi, na úrovni spodného podlažia, vstupuje sa do nich cez vnútorné oceľové schodisko.

Pôdorysy
PôdorysyAutor: Masparti

Základnú kostru domu tvorí monolitická železobetónová konštrukcia. Na vyššom podlaží je kombinovaná s keramickou výmurovkou. špecifickou časťou domu je garáž, ktorá je založená na mikropilotách. Strecha s miernym sklonom sa zvažuje po celej dĺžke domu až k dvojici vpustí, ktoré sú zvedené cez garáž do podzemnej retenčnej nádrže. Okná a dvere dodávala česká firma JANOŠÍK.

Pohľady a rez
Pohľady a rez Autor: Masparti
Foto: BoysPlayNice
Foto: BoysPlayNice
Foto: BoysPlayNice
Foto: BoysPlayNice
Foto: BoysPlayNice
Foto: BoysPlayNice
Foto: BoysPlayNice
Foto: BoysPlayNice
Foto: BoysPlayNice
Foto: BoysPlayNice
Foto: BoysPlayNice
Foto: BoysPlayNice
Foto: BoysPlayNice
Foto: BoysPlayNice
Foto: BoysPlayNice
Foto: BoysPlayNice
Foto: BoysPlayNice
Foto: BoysPlayNice
Foto: BoysPlayNice
Foto: BoysPlayNice
Foto: BoysPlayNice
Foto: BoysPlayNice
Foto: BoysPlayNice
Foto: BoysPlayNice

Podklady: masparti / BoysPlayNice

Ateliér

Poloha diela

Ing. arch. Pavel Martinka
Ondřej Spusta, MSc.

Súvisiace články

Vložené
8. október 2018
0
4943
Hlavný obsahHlavný obsah
Čakajte prosím