Advertorial

Pozvánka na 2. ročník stavebného veľtrhu BigMarket na Slovensku

Na podujatí sa predstaví až 37 vystavovateľov - popredných dodávateľov stavebných materiálov a inovácií s prezentáciou...

Hotel Hirschen Spa House, Rakúsko

Novotvar v prostredí alpskej obce.

Vytvorte si kúpeľňu snov: dizajnové riešenie od značky hansgrohe

Hansgrohe - prémiová značka kúpeľňových riešení, ponúka nadčasový dizajn, technickú precíznosť a udržateľné inovácie...

Okná Internorm za minuloročné ceny + hliníkový kryt zdarma!

Využite špeciálnu akciu Internorm: okná za minuloročné ceny a hliníkový kryt úplne zadarmo. Ponuka je časovo obmedzená!

Moderné plynové technológie: Efektivita a inovácie pre 21. storočie

Sumarizácia najdôležitejších inovácií, ktoré redefinujúcich využitie tohto energetického zdroja.

Utesňovanie spodných stavieb pomocou hydro-aktívnej fólie AMPHIBIA.

AMPHIBIA 3000 GRIP 1.3 od spoločnosti ATRO predstavuje modernú hydroizolačnú technológiu, ktorá spája vysokú odolnosť,...

Dekarbonizácia individuálneho vykurovania domácností – Green Deal evolučne a nie revolučne

Ambiciózne plány EK narazili na ekonomické možnosti domácností v jednotlivých členských štátoch –...

Minimalistické dvere IDEA – technická precíznosť a čistota prevedenia

IDEA DOOR od spoločnosti JAP prináša do interiéru čistý minimalistický vzhľad vďaka bezrámovému riešeniu a precíznej...

Dom s výhľadom na údolie, Dlouhý Most (ČR)

Kontinuita riešenia od vonkajšieho obkladu až po kovania a kľučky.

Schell Vitus – osvedčené riešenie pre sprchy a umývadlá vo verejnom sektore s viac ako desaťročnou tradíciou

Nástenné nadomietkové armatúry Vitus sú mimoriadne vhodné pre rýchlu a efektívnu...

Kompozitné okná predstavujú súčasnosť a budúcnosť

Okenné profily z kompozitného materiálu RAU-FIPRO X od spoločnosti Rehau sú v porovnaní s tradičnými plastovými profilmi mnohonásobne...

Myotis - stoly 2025

Najnovší sortiment stolov pre zariadenie interiérov...

Priemyselné sklenené priečky Dorsis Digero: svetelné rozhranie pre moderné interiéry

Spojenie moderného dizajnu, funkčnosti a svetla do harmonického architektonického prvku.

Význam prirodzeného svetla pre moderné a flexibilné pracovné prostredie

Kancelárska budova Baumit v slovinskom Trzine prešla premenou na moderné a udržateľné pracovisko. Architekti kládli dôraz...

Konferencia Xella Dialóg predstaví novinky a trendy v stavebníctve

Mottom šiesteho ročníku on-line konferencie odborníkov Xella Dialóg je Efektívny návrh budov 2025+: zmeny a riešenia

Rodinný dom Přílepy (ČR)

Nenápadný z ulice, otvorený do záhrady. Členitá štruktúra niekoľkých vzájomne prepojených objemov logicky delí nielen vnútorný priestor, ale aj pobytové terasy v exteriéri.
Diela
Red 410.08.2018
24120+14
Rodinný dom Přílepy (ČR)
Autori: Ing. arch. Pavel ChládekPodlažná plocha: 242,9 m2Realizácia: 2012 - 2015Adresa: 349, Přílepy u Holešova , Česká republikaPublikované: 10. august 2018

Pozemok, na ktorom stojí rodinný dom, je súčasťou centrálnej časti obce Přílepy. Malé sídlo s niečo vyše deväťsto obyvateľmi sa nachádza v okrese Kroměříž, ktorý patrí pod Zlínsky kraj. Obdĺžnikový pozemok sa od príjazdovej komunikácie vedúcej pozdĺž jeho severovýchodnej hranice prudko zvažuje smerom na juhozápad. V severnom rohu pozemku stál v čase projektovania starší dom a dva hospodárske objekty.

Foto: Pavel Chládek
Situácia
SituáciaAutor: Pavel Chládek

Objekt sa prispôsobuje svahovitému terénu. Pri pohľade z ulice relatívne nenápadná jednopodlažná hmota domu sa rozvíja a “rastie” smerom do záhrady. Štyri samostatné obytné bloky sú prepojené s privátnym dvorom prostredníctvom rozmerných presklených stien.

Foto: Pavel Chládek
Foto: Pavel Chládek
Foto: Pavel Chládek
Foto: Pavel Chládek

Z pôvodných stavieb, ktoré stáli na pozemku ostala zachovaná pivnica a časti obvodových múrov starého domu. Z ulice sa vstupuje priamo na poschodie, ktoré je rozdelené do dvoch celkov. Na jednej strane je pozdĺžny trakt krytého parkovania, na ktorý nadväzuje sklad záhradnej techniky doplnený o saunu a posilňovňu. Na druhej strane je situovaný samotný vstup do domu s prislúchajúcim šatníkom, pracovňou a hygienickým zázemím. Vchod do domu sa nachádza priamo oproti vjazdu na pozemok.

Hlavné obytné podlažie, prístupné vnútorným jednoramenným schodiskom, je situované o úroveň nižšie a zaberá takmer celú šírku pozemku. Pri pohľade zo záhrady môžeme vnímať kompozíciu, niekoľkých vzájomne prepojených objemov vymedzujúcich priestor terasy. Tieto (na prvý pohľad) samostatné celky vytvárajú funkčné členenie priestoru nielen v interiéri, ale aj v exteriéri.

Stred kompozície tvorí kuchyňa s jedálňou, na ktorú nadväzuje terasa doplnená o vonkajšie schodisko. To vo vertikálnom smere spája obe úrovne domu a zároveň opticky rozčleňuje objekt na dve časti. Samostatná obývačka má tiež menšiu vonkajšiu terasu na západnej strane. V súkromnej časti domu na východnej strane sa nachádza spálňa rodičov, detská izba a kúpeľňa. Technické zázemie domu je situované v blízkosti kuchyne.

Pôvodná pivnica v severnom rohu parcely je prisypaná zeminou a doplnená o vonkajšie schodisko nadväzujúce na severozápadnú hranu domu.

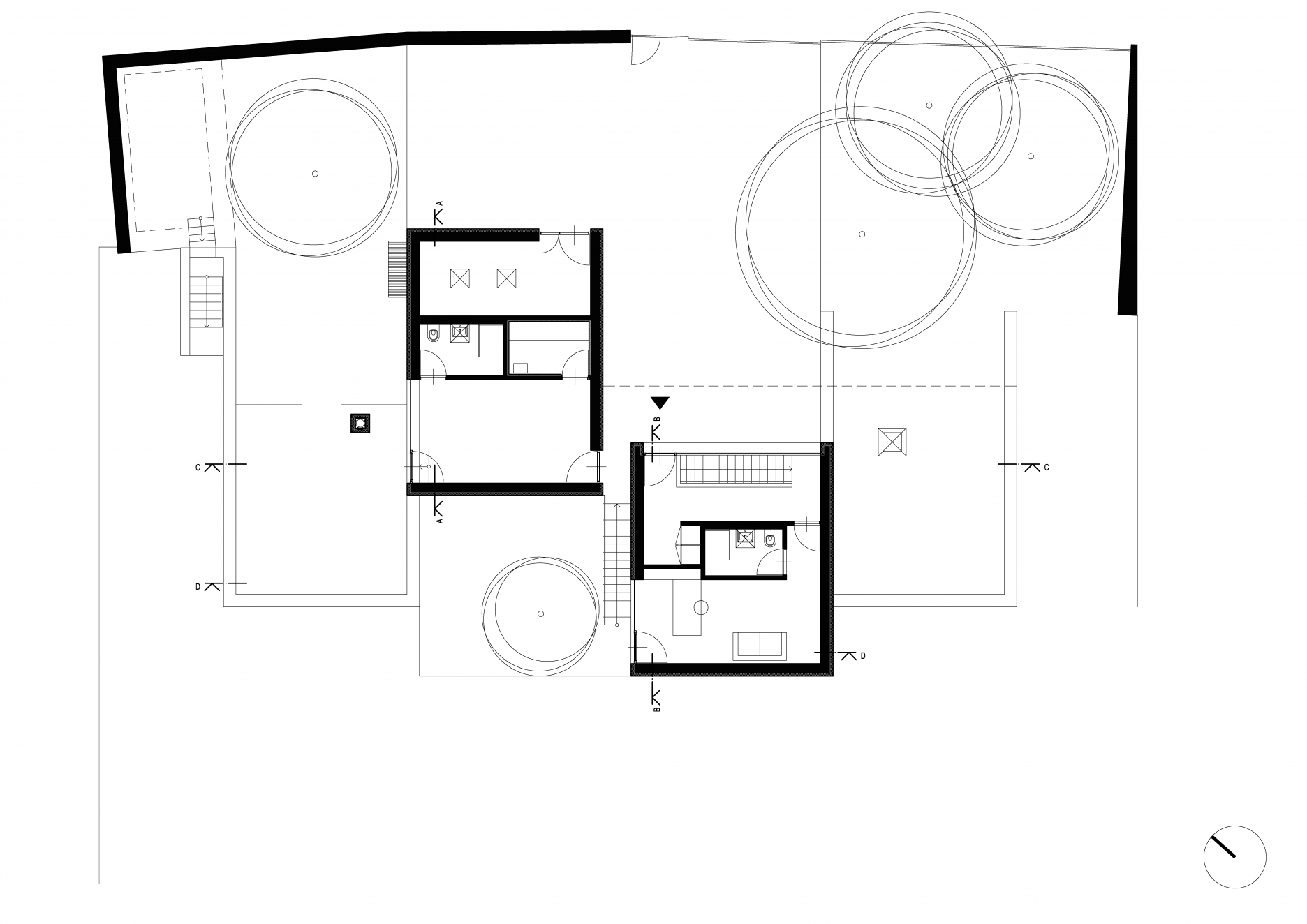
Pôdorys 1. NP
Pôdorys 1. NPAutor: Pavel Chládek
Pôdorys 2. NP
Pôdorys 2. NPAutor: Pavel Chládek
Rez A, B
Rez A, BAutor: Pavel Chládek
Rez C, D
Rez C, DAutor: Pavel Chládek
Pohľad juhozápadný a severovýchodný
Pohľad juhozápadný a severovýchodnýAutor: Pavel Chládek
Pohľad severozápadný a juhovýchodný
Pohľad severozápadný a juhovýchodnýAutor: Pavel Chládek

Poloha diela

Ing. arch. Pavel Chládek

Súvisiace články

Vložené
23. júl 2018
0
2412
Hlavný obsahHlavný obsah
Čakajte prosím