Advertorial

Pozvánka na 2. ročník stavebného veľtrhu BigMarket na Slovensku

Na podujatí sa predstaví až 37 vystavovateľov - popredných dodávateľov stavebných materiálov a inovácií s prezentáciou...

Hotel Hirschen Spa House, Rakúsko

Novotvar v prostredí alpskej obce.

Vytvorte si kúpeľňu snov: dizajnové riešenie od značky hansgrohe

Hansgrohe - prémiová značka kúpeľňových riešení, ponúka nadčasový dizajn, technickú precíznosť a udržateľné inovácie...

Okná Internorm za minuloročné ceny + hliníkový kryt zdarma!

Využite špeciálnu akciu Internorm: okná za minuloročné ceny a hliníkový kryt úplne zadarmo. Ponuka je časovo obmedzená!

Moderné plynové technológie: Efektivita a inovácie pre 21. storočie

Sumarizácia najdôležitejších inovácií, ktoré redefinujúcich využitie tohto energetického zdroja.

Utesňovanie spodných stavieb pomocou hydro-aktívnej fólie AMPHIBIA.

AMPHIBIA 3000 GRIP 1.3 od spoločnosti ATRO predstavuje modernú hydroizolačnú technológiu, ktorá spája vysokú odolnosť,...

Dekarbonizácia individuálneho vykurovania domácností – Green Deal evolučne a nie revolučne

Ambiciózne plány EK narazili na ekonomické možnosti domácností v jednotlivých členských štátoch –...

Minimalistické dvere IDEA – technická precíznosť a čistota prevedenia

IDEA DOOR od spoločnosti JAP prináša do interiéru čistý minimalistický vzhľad vďaka bezrámovému riešeniu a precíznej...

Dom s výhľadom na údolie, Dlouhý Most (ČR)

Kontinuita riešenia od vonkajšieho obkladu až po kovania a kľučky.

Schell Vitus – osvedčené riešenie pre sprchy a umývadlá vo verejnom sektore s viac ako desaťročnou tradíciou

Nástenné nadomietkové armatúry Vitus sú mimoriadne vhodné pre rýchlu a efektívnu...

Kompozitné okná predstavujú súčasnosť a budúcnosť

Okenné profily z kompozitného materiálu RAU-FIPRO X od spoločnosti Rehau sú v porovnaní s tradičnými plastovými profilmi mnohonásobne...

Myotis - stoly 2025

Najnovší sortiment stolov pre zariadenie interiérov...

Priemyselné sklenené priečky Dorsis Digero: svetelné rozhranie pre moderné interiéry

Spojenie moderného dizajnu, funkčnosti a svetla do harmonického architektonického prvku.

Význam prirodzeného svetla pre moderné a flexibilné pracovné prostredie

Kancelárska budova Baumit v slovinskom Trzine prešla premenou na moderné a udržateľné pracovisko. Architekti kládli dôraz...

Konferencia Xella Dialóg predstaví novinky a trendy v stavebníctve

Mottom šiesteho ročníku on-line konferencie odborníkov Xella Dialóg je Efektívny návrh budov 2025+: zmeny a riešenia

Rodinný dom Zlín, Boněcko

Sympatická interpretácia silných tradícií medzivojnovej moderny v novej - súčasnej podobe.
Diela
Red 304.02.2017
30670+22
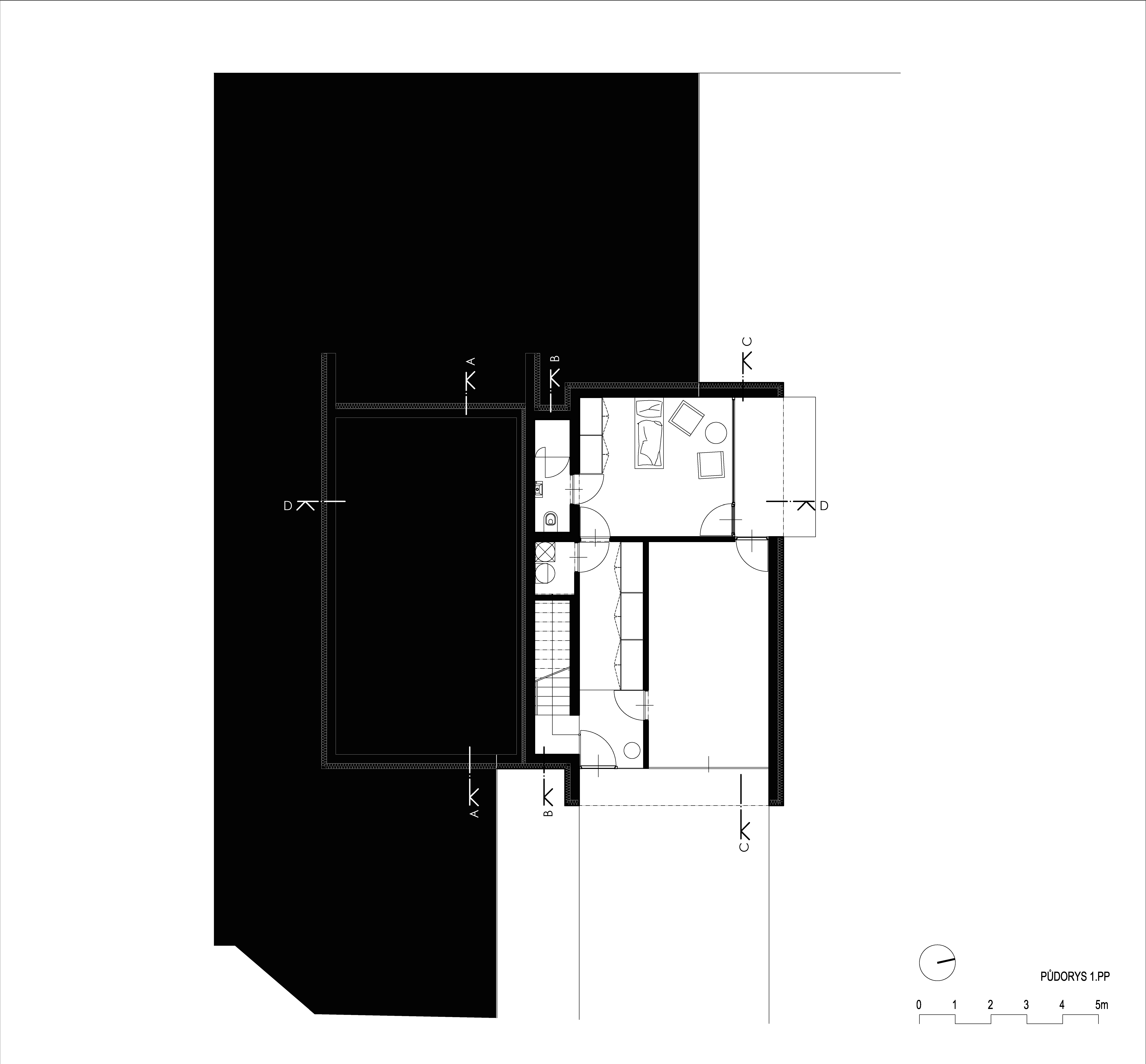
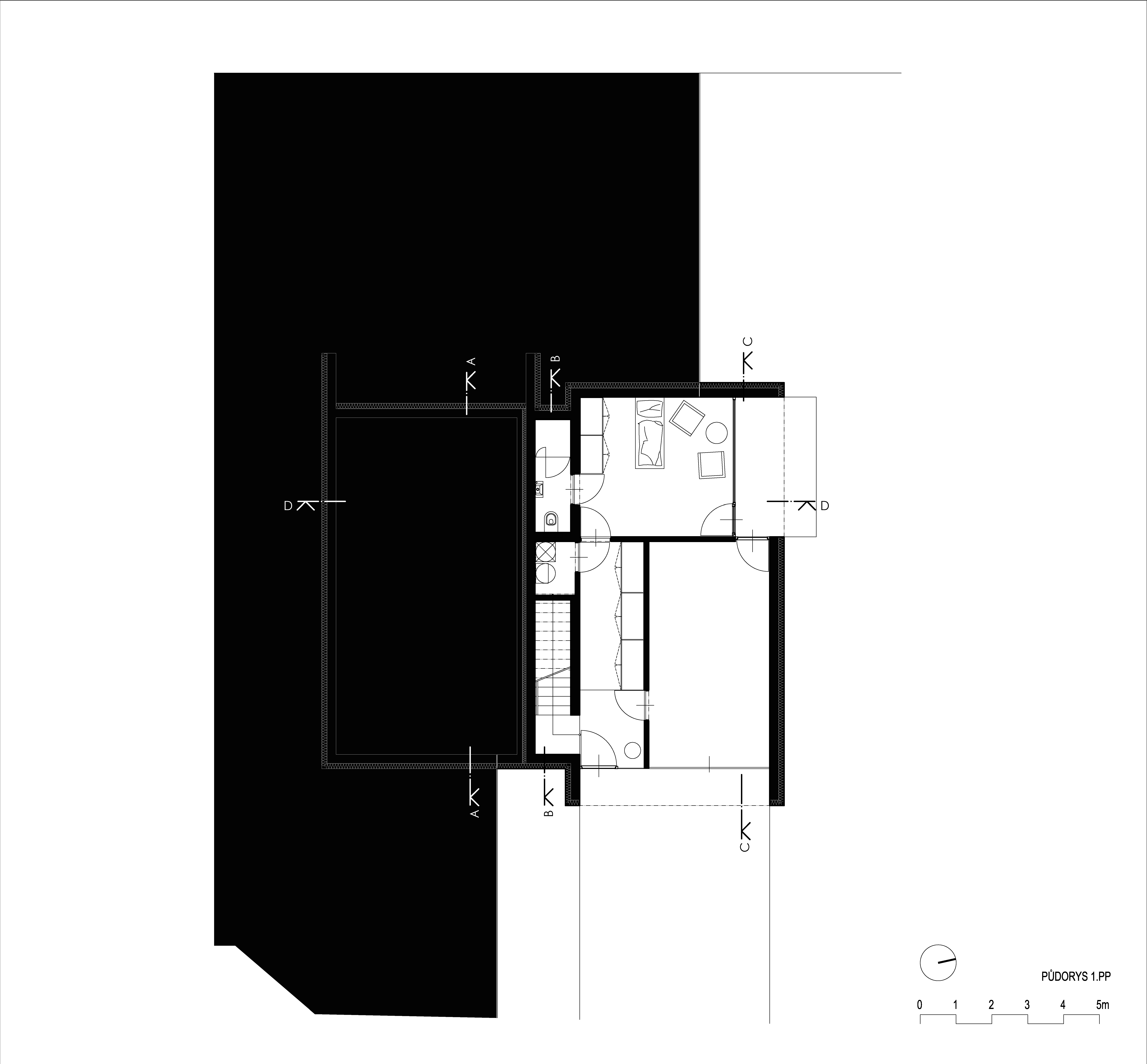
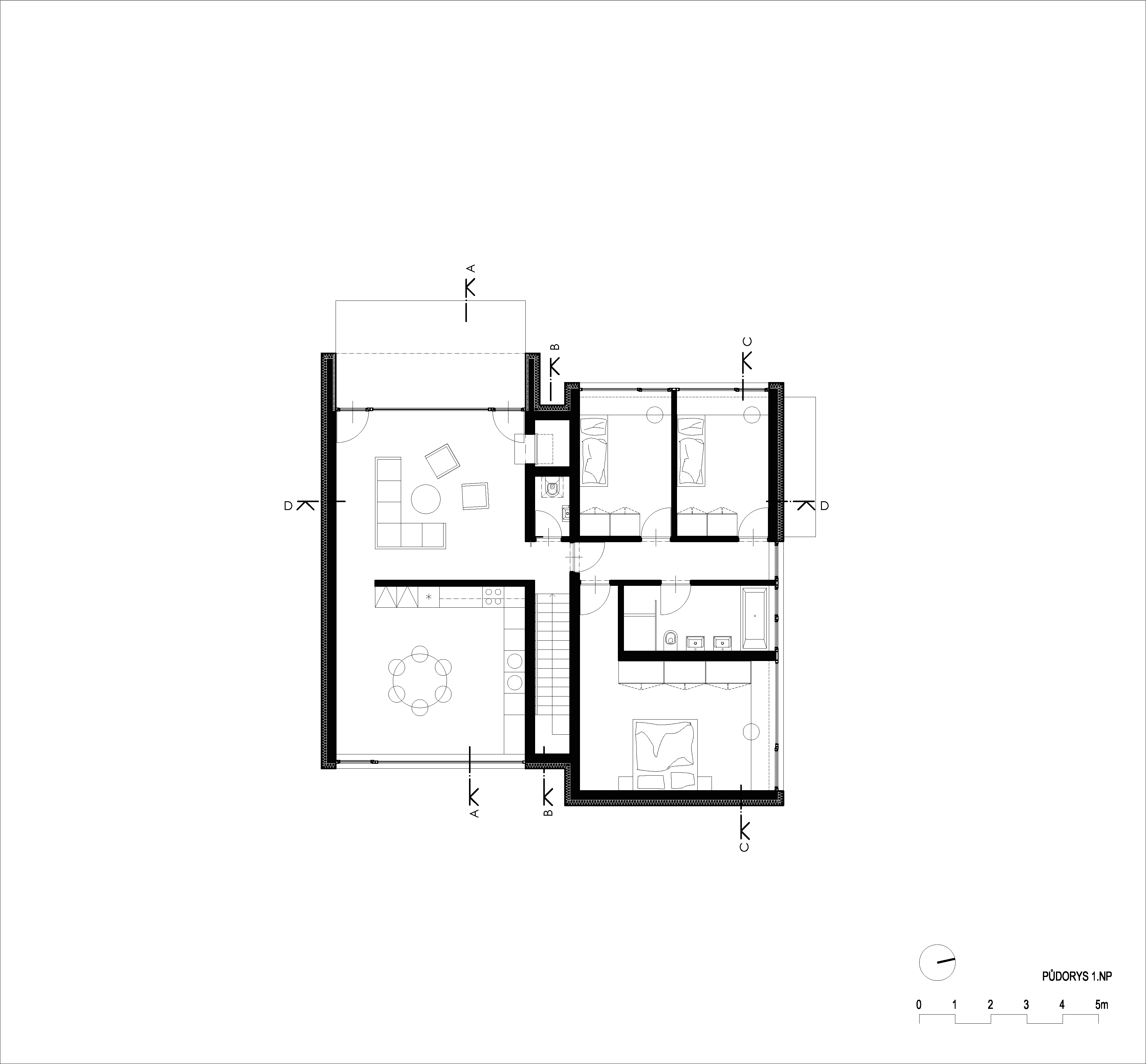
Rodinný dom Zlín, Boněcko
Autori: Ing. arch. Pavel ChládekRealizácia: 2009 - 2011Adresa: Boněcko , Zlín, Česká republikaPublikované: 4. február 2017

Individuálny rodinný dom. Jednoduchý racionálny návrh. Striedme výrazové prostriedky a predsa zaujímavé autorské riešenie aj s pripomienkou na príklady (nielen) zlínskej moderny.

Dielo predstavujme autorským textom:

Protáhlá parcela situována na rozhraní zahrádkářské kolonie a původní zástavby rodinnými domy se svažuje k severozápadu a nabízí výhled na protější zalesněný horizont a východní okraj města. Osazení domu využívá přirozený průběh terénu a rozděluje jeho provoz do tří samostatných celků.

Vstupní část domu tvoří souvislá dlážděná plocha, na kterou navazuje garáž se vstupní halou odkud je přístupná pracovna situovaná v severozápadním rohu objektu. Horní obytné podlaží je dostupné po schodišti zabírající úzký střední trakt domu. Obývací pokoj bezprostředně navazující na schodiště, je otevřen na západ a nabízí panoramatický výhled a výstup na přilehlou terasu směrem do zahrady. Podél jižní stěny domu je dostupná kuchyň s jídelnou otevřená na východ. Dětské pokoje, koupelna a ložnice rodičů jsou situovány v severním traktu, přístupné chodbou z obývacího pokoje.

Foto: Pagáč Photoproduction
Foto: Pagáč Photoproduction
Foto: Pagáč Photoproduction
Foto: Pagáč Photoproduction
Foto: Pagáč Photoproduction
Foto: Pagáč Photoproduction
Foto: Pagáč Photoproduction

Poloha diela

Ing. arch. Pavel Chládek

Súvisiace články

Vložené
30. január 2017
0
3067
Hlavný obsahHlavný obsah
Čakajte prosím