Advertorial

Pozvánka na 2. ročník stavebného veľtrhu BigMarket na Slovensku

Na podujatí sa predstaví až 37 vystavovateľov - popredných dodávateľov stavebných materiálov a inovácií s prezentáciou...

Hotel Hirschen Spa House, Rakúsko

Novotvar v prostredí alpskej obce.

Vytvorte si kúpeľňu snov: dizajnové riešenie od značky hansgrohe

Hansgrohe - prémiová značka kúpeľňových riešení, ponúka nadčasový dizajn, technickú precíznosť a udržateľné inovácie...

Okná Internorm za minuloročné ceny + hliníkový kryt zdarma!

Využite špeciálnu akciu Internorm: okná za minuloročné ceny a hliníkový kryt úplne zadarmo. Ponuka je časovo obmedzená!

Moderné plynové technológie: Efektivita a inovácie pre 21. storočie

Sumarizácia najdôležitejších inovácií, ktoré redefinujúcich využitie tohto energetického zdroja.

Utesňovanie spodných stavieb pomocou hydro-aktívnej fólie AMPHIBIA.

AMPHIBIA 3000 GRIP 1.3 od spoločnosti ATRO predstavuje modernú hydroizolačnú technológiu, ktorá spája vysokú odolnosť,...

Dekarbonizácia individuálneho vykurovania domácností – Green Deal evolučne a nie revolučne

Ambiciózne plány EK narazili na ekonomické možnosti domácností v jednotlivých členských štátoch –...

Minimalistické dvere IDEA – technická precíznosť a čistota prevedenia

IDEA DOOR od spoločnosti JAP prináša do interiéru čistý minimalistický vzhľad vďaka bezrámovému riešeniu a precíznej...

Dom s výhľadom na údolie, Dlouhý Most (ČR)

Kontinuita riešenia od vonkajšieho obkladu až po kovania a kľučky.

Schell Vitus – osvedčené riešenie pre sprchy a umývadlá vo verejnom sektore s viac ako desaťročnou tradíciou

Nástenné nadomietkové armatúry Vitus sú mimoriadne vhodné pre rýchlu a efektívnu...

Kompozitné okná predstavujú súčasnosť a budúcnosť

Okenné profily z kompozitného materiálu RAU-FIPRO X od spoločnosti Rehau sú v porovnaní s tradičnými plastovými profilmi mnohonásobne...

Myotis - stoly 2025

Najnovší sortiment stolov pre zariadenie interiérov...

Priemyselné sklenené priečky Dorsis Digero: svetelné rozhranie pre moderné interiéry

Spojenie moderného dizajnu, funkčnosti a svetla do harmonického architektonického prvku.

Význam prirodzeného svetla pre moderné a flexibilné pracovné prostredie

Kancelárska budova Baumit v slovinskom Trzine prešla premenou na moderné a udržateľné pracovisko. Architekti kládli dôraz...

Konferencia Xella Dialóg predstaví novinky a trendy v stavebníctve

Mottom šiesteho ročníku on-line konferencie odborníkov Xella Dialóg je Efektívny návrh budov 2025+: zmeny a riešenia

Byt policistky, Olomouc

Pod omítkou betonový strop, pod parketami černočerný asfalt, který teď místy stoupá ke stropu a dotýká se jej. A k černýmu zlatu trochu toho opravdovýho!
Diela
Ondřej Spusta07.01.2021
21300+25
Byt policistky, Olomouc
Ateliér: maspartiAutori: Ondřej Spusta, MSc(A), Ing. arch. Pavel MartinkaPodlažná plocha: 54m2Návrh: 2020 - 2020Realizácia: 2020 - 2020Adresa: Foerstrova , Olomouc, Česká republikaPublikované: 7. január 2021

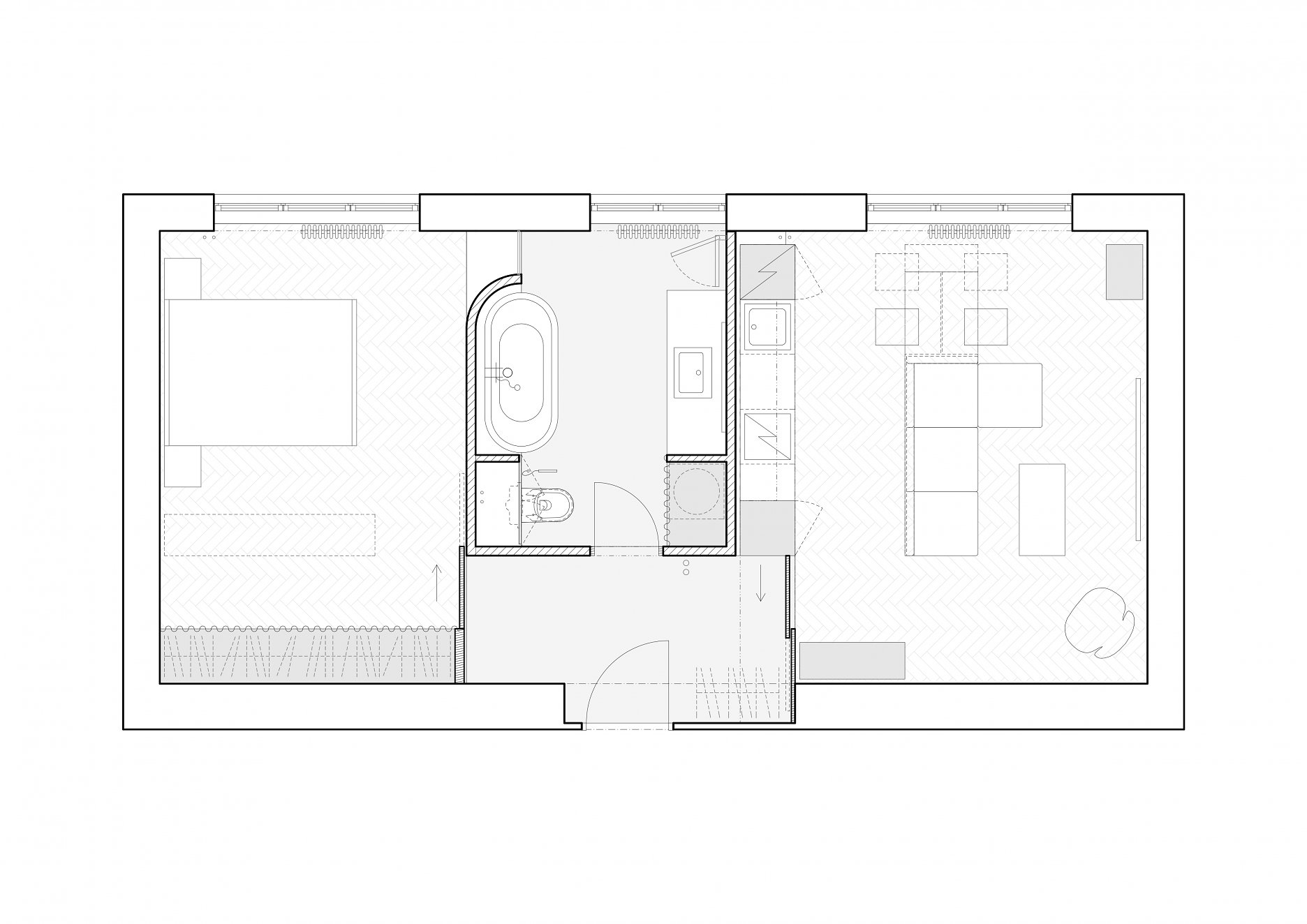
Byt v starom panelovom dome. Rekonštrukcia s jasným konceptom. Efektívne využitie malého priestoru, pravdivosť a kontrast materiálov. Doposiaľ nepublikovanú realizáciu predstavia Pavel Martinka a Ondřej Spusta zo Šternberského ateliéru masparti:

Malý dvoupokojový byt v bezprostředné blízkosti frekventovaného okruhu kolem centra Olomouce, přesto s klidným výhledem do zeleně, je součástí šestipatrového panelového bytového domu ze šedesátých let.

Byt je orientován na jižní fasádu a má jednoduché půdorysné členění na dva obytné pokoje, mezi které je vsazeno hygienické jádro.

Foto: Tomáš Loutocký
Foto: Tomáš Loutocký
Foto: Tomáš Loutocký
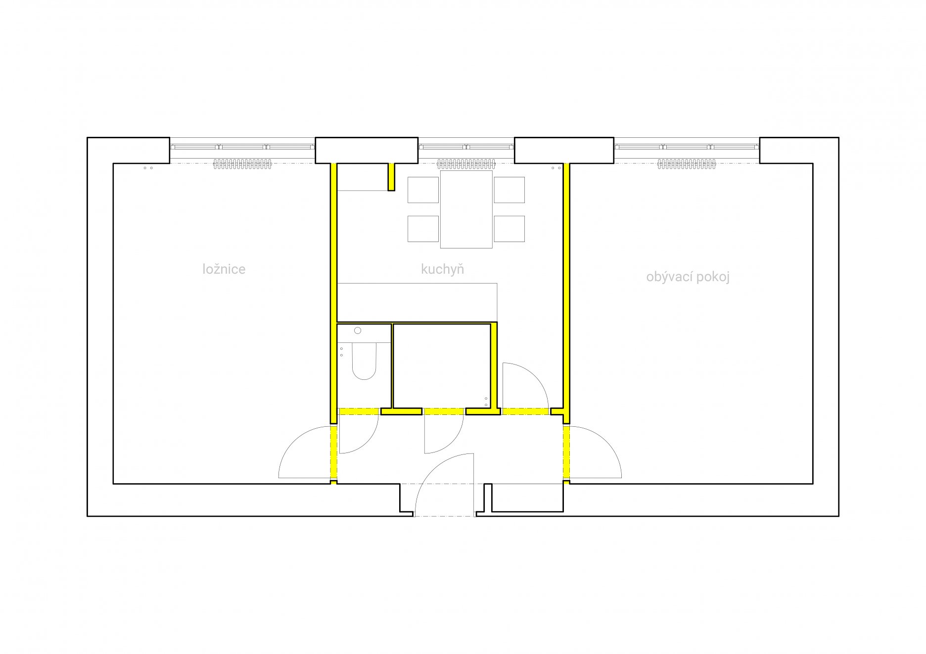
Původní stav
Původní stavAutor: masparti
Návrh
NávrhAutor: masparti

Již při první prohlídce jsme objevili kvality tohoto bytu, co se následně projevilo do takové míry, že bylo potřebné značně nahradit jenom centrální hygienické jádro. Původní členění na WC, koupelnu a kuchyň bylo sloučeno do spoločné, prostornější dispozice koupelny, která je pro jednoho uživatele komfortnější a kuchyňská linka je nově orientována do obývacího pokoje s místem pro stolování. Koupelna je následně ergonomicky tvarována dle činností, které v ní probíhají a daností panelové výstavby. Tím jsme taky do koupelny mohli přivést více přirozeného světla, které pak přes prosklení pod stropem dopadá až ke vstupu bytu, který byl původně bez přirozeného světla. Výsledek proto působí striktně a jednoduše.

Foto: Tomáš Loutocký
Foto: Tomáš Loutocký
Foto: Tomáš Loutocký
Foto: Tomáš Loutocký
Foto: Tomáš Loutocký
Foto: Tomáš Loutocký

Záměr oddělit původní a nové výborně zapadl do požadavků klientky na menší “dvoupokojáč” s prostornější koupelnou v dominantní černé barvě.

Během samotné rekonstrukce se podařilo odkrýt betonový panelový strop a smrkové parkety, které obytným pokojům přidali pohledovou teplotu. Původní kvality bytu dotvářejí terrazzové parapety, litinové radiátory nebo přiznané rozvody instalací.

Foto: Tomáš Loutocký
Foto: Tomáš Loutocký
Foto: Tomáš Loutocký
Foto: Tomáš Loutocký
Foto: Tomáš Loutocký
Foto: Tomáš Loutocký
Původní stav - obývací pokoj
Původní stav - obývací pokoj
Původní stav - ložnice
Původní stav - ložnice
Původní stav - kuchyň
Původní stav - kuchyň

Ateliér

Poloha diela

Ondřej Spusta, MSc(A)
Ing. arch. Pavel Martinka
Vložené
7. január 2021
0
2130
Hlavný obsahHlavný obsah
Čakajte prosím