Advertorial

Pozvánka na 2. ročník stavebného veľtrhu BigMarket na Slovensku

Na podujatí sa predstaví až 37 vystavovateľov - popredných dodávateľov stavebných materiálov a inovácií s prezentáciou...

Hotel Hirschen Spa House, Rakúsko

Novotvar v prostredí alpskej obce.

Vytvorte si kúpeľňu snov: dizajnové riešenie od značky hansgrohe

Hansgrohe - prémiová značka kúpeľňových riešení, ponúka nadčasový dizajn, technickú precíznosť a udržateľné inovácie...

Okná Internorm za minuloročné ceny + hliníkový kryt zdarma!

Využite špeciálnu akciu Internorm: okná za minuloročné ceny a hliníkový kryt úplne zadarmo. Ponuka je časovo obmedzená!

Moderné plynové technológie: Efektivita a inovácie pre 21. storočie

Sumarizácia najdôležitejších inovácií, ktoré redefinujúcich využitie tohto energetického zdroja.

Utesňovanie spodných stavieb pomocou hydro-aktívnej fólie AMPHIBIA.

AMPHIBIA 3000 GRIP 1.3 od spoločnosti ATRO predstavuje modernú hydroizolačnú technológiu, ktorá spája vysokú odolnosť,...

Dekarbonizácia individuálneho vykurovania domácností – Green Deal evolučne a nie revolučne

Ambiciózne plány EK narazili na ekonomické možnosti domácností v jednotlivých členských štátoch –...

Minimalistické dvere IDEA – technická precíznosť a čistota prevedenia

IDEA DOOR od spoločnosti JAP prináša do interiéru čistý minimalistický vzhľad vďaka bezrámovému riešeniu a precíznej...

Dom s výhľadom na údolie, Dlouhý Most (ČR)

Kontinuita riešenia od vonkajšieho obkladu až po kovania a kľučky.

Schell Vitus – osvedčené riešenie pre sprchy a umývadlá vo verejnom sektore s viac ako desaťročnou tradíciou

Nástenné nadomietkové armatúry Vitus sú mimoriadne vhodné pre rýchlu a efektívnu...

Kompozitné okná predstavujú súčasnosť a budúcnosť

Okenné profily z kompozitného materiálu RAU-FIPRO X od spoločnosti Rehau sú v porovnaní s tradičnými plastovými profilmi mnohonásobne...

Myotis - stoly 2025

Najnovší sortiment stolov pre zariadenie interiérov...

Priemyselné sklenené priečky Dorsis Digero: svetelné rozhranie pre moderné interiéry

Spojenie moderného dizajnu, funkčnosti a svetla do harmonického architektonického prvku.

Význam prirodzeného svetla pre moderné a flexibilné pracovné prostredie

Kancelárska budova Baumit v slovinskom Trzine prešla premenou na moderné a udržateľné pracovisko. Architekti kládli dôraz...

Konferencia Xella Dialóg predstaví novinky a trendy v stavebníctve

Mottom šiesteho ročníku on-line konferencie odborníkov Xella Dialóg je Efektívny návrh budov 2025+: zmeny a riešenia

Keď si architekt prerába pražský panelákový byt sám pre seba

Premyslená práca s priestorovým potenciálom pôvodného bytu radikálne zmenila kvalitu bývania na najvyššom podlaží 50-ročného bytového domu.
Diela
Red 328.07.2022
61970+73
Keď si architekt prerába pražský panelákový byt sám pre seba
Autori: Ing. arch. René Dlesk, Phd., Ing. arch. Tamara KolaříkováPodlažná plocha: 85 m²Návrh: 2018 - 2019Realizácia: 2021 - 2021Adresa: Smíchov , Praha 5 , Česká republikaPublikované: 28. júl 2022

René Dlesk je pôvodom zo Slovenska, do Českej republiky sa dostal okľukou cez Holandsko, Nemecko a Taliansko, kde celkom 7 rokov pracoval u Ericka van Egeraata. Neskôr pôsobil samostatne už pod značkou P-U-R-A, ktorá fungovala na osi Londýn - Miláno - Praha a venovala sa väčšej miere projektov (územné celky) a medzinárodným súťažiam. Po návrate do Českej republiky založil spoločne s architektkou Tamarou Kolaříkovou ateliér RDTH, ktorého precízna práca na menších zadaniach sa premieta do konečnej kvality realizácie. Príkladom môže byť Adaptácia areálu bývalého mlyna v obci Opatová, ktorú navrhoval pre bratranca s manželkou. Realizáciu Reného DleskaTamary Kolaříkovej ocenila porota nomináciou v aktuálnom ročníku súťažnej prehliadky CE ZA AR. 

 

Ako to však vyzerá, keď si architekt navrhuje a realizuje bývanie pre seba a svoju rodinu? Realizáciu predstavujeme s autorským textom Reného Dleska, ktorý stojí za prečítanie:

Som architekt. Bývam s manželkou a dcérou na 11. poschodí panelového domu v Prahe 5. Ráno skoro vstávam, už roky nefajčím, nehádam sa, počúvam k práci vážnu hudbu, pijem kávu s trochou mlieka, mám rád stroje a mechanizmy a som rád, keď viem, ako fungujú. Mám rád slušnosť, prirodzenosť a úprimnosť, a to aj pri stavebných materiáloch, ich drsnosť, hladkosť, starnutie. Mám rád svoju prácu. Som perfekcionista. 

Rekonštruovaný byt má slúžiť našej trojčlennej rodine. Viac nás už asi nebude, iba keď občas zo Slovenska prídu rodičia. Potrebujeme veľkú obývaciu izbu, ktorá má byť srdcom bytu. Musí sa do neho vojsť kuchyňa a veľký stôl, priestor na cvičenie a napríklad aj detská šmykľavka. Preto zaberá celú jednu sekciu bytu vymedzenú nosnými panelmi. Nie je tu priestor na žiadnu predsieň a iné priestorové nezmysly, ktorých je už teraz v spoločných priestoroch nášho paneláka viac ako dosť. Televíziu nemáme, na filmy a rozprávky sa pozeráme z projektora. Rád pestujem rastliny a tak okná lodžie, z ktorej je výhľad na celú Prahu, v lete tienia popínavé uhorky. Ich správny vývoj každé ráno starostlivo kontrolujem. Niektoré paradajky rastú vo vlastnom kvetináči, iné zdieľajú veľký samozavlažovací kvetináč s brečtanom. Čerstvé výhonky našich päťlistých paviničov, ktoré vyrastajú z veľkých kvetináčov na druhom konci lodžie, rád starostlivo zrovnávam na lanká na stenách a strope lodžie, nech sa pekne šplhajú a rastú. 

Okrem obývačky potrebujeme izbu pre dcéru. Tá je takmer zrkadlovým priemetom hosťovskej izby, ktorá slúži aj ako pracovňa. Miestnosti sú spojené posuvnými dverami, nech sa môžeme naháňať okolo zostavy zabudovaných skríň. Pôvodne na mieste týchto izieb bývala obývačka. Bez lodžie! Na ňu sa smelo vychádzať len z jedinej privilegovanej obytnej miestnosti. S tým je už dnes koniec. Celú dispozíciu sme otočili a na lodžiu sa vstupuje z obývačky. 

Do tejto druhej sekcie bytu sa okrem izieb a zabudovaných skríň zmestí WC, nika s práčkou a komfortná kúpeľňa s vaňou. V kúpeľni už ventilátor nepotrebujeme. Po novom má okno, cez ktoré ju spoľahlivo behom pár sekúnd vyvetráme. A hlavne má teraz prirodzené svetlo, čo je v paneláku luxus. 

Naše spoločenstvo vlastníkov bytov je prísne. Okrem iného zakázalo akékoľvek zasekávanie rozvodov do nosných múrov alebo stropných panelov. Nechceli sme znižovať stropy sadrokartónovými podhľadmi, kde je možné časť rozvodov skryť. Výšku totiž považujem za jednu z najcennejších hodnôt priestoru.

Sme asi jediní v dome, ktorí to naozaj ctia a nezasekávajú nič, ani vertikálne rozvody elektriny

Všetko je vedené po povrchu, tak ako pôvodné rozvody kúrenia. Ale nevadí mi to. Mám rád zmysluplné obmedzenia, ktoré mi zjednodušujú rozhodovanie a súčasne vytvárajú vlastnú prirodzenú estetiku. Už o niečo menej radi mali toto rozhodnutie murári, inštalatéri a elektrikári, ktorí sa museli trafiť presne na osi všetkého: izieb, otvorov aj dlaždičiek. Všetky nové rozvody sú totiž vedené v presných geometrických rastroch. Povedal som im tiež, že tie malé dlaždičky 10x10 nemôžu rezať, pretože som to mal vymyslené presne tak, aby ich rezať nemuseli. A tiež sa občas divili, že nechcem, aby nijako vyrovnávali a štukovali fľaky a nerovnosti v omietkach po strhnutí polystyrénového kazetového zateplenia stropov. Rovnako sme postupovali pri úpravách nerovností, ktoré na stropoch ostali po demolácii všetkých nenosných priečok. Murári ich mali len nahrubo začistiť a celé to mali napenetrovať a vybieliť. Nerovnosti mi totiž v tomto prípade vôbec nevadia, dokonca ich mám rád. Je to úprimná dekorácia a navyše zadarmo. Jasné, že sa potom murári divili, keď som ich napomínal za milimetre nerovností pri nových múroch alebo pri škárach novej podlahy, ktoré mali byť pri stenách vždy rovnaké. To, že mi ide o kontrast pôvodnej stavby a novo vkladaných prvkov, som im nejako naznačil, ale dlho nevysvetľoval, pretože aj tak by to najskôr nebolo v súlade s ich pravdou. Nevysvetľoval som im ani to, že mi nevadia stopy pôvodných stavebných zásahov alebo odstránených múrov. Nevysvetľoval som ani to, že je to takmer to isté, ako keď sa obnovujú historické pamiatky, kde je podľa jedného filozofického prúdu žiadúce, aby boli čitateľné stopy zásahov v jednotlivých obdobiach vývoja. Ale chápem, že používať túto metódu v paneláku je trochu neobvyklé. Myslím si však, že je to legitímne, ten dom má predsa už takmer 50 rokov. 

Opravovať panelákový byt však nemusí byť lacné. V byte je totiž množstvo stolariny. Jaseňovú dyhu máme aj vo vnútri skriniek, pretože to tak malo byť. Naša spálňa je úzka, len na šírku postele, ale raz bude celá obložená jaseňovým drevom ako kajuta. Dnes ma v nej však teší oškrabaná omietka a pôvodný panel s nespočetným množstvom jeho nedokonalostí, ktorý som natrel na bielo. Mal zostať sivý, ale je natretý na bielo, pretože som nedával pozor a prišiel som o niekoľko minút neskôr. Moja dcérka, vtedy takmer trojročná, už začala natierať. Nepochopili sme sa. Tak som jeden betónový múr už nafarbil na bielo, nech je to všade rovnaké.

Foto: Filip Beránek
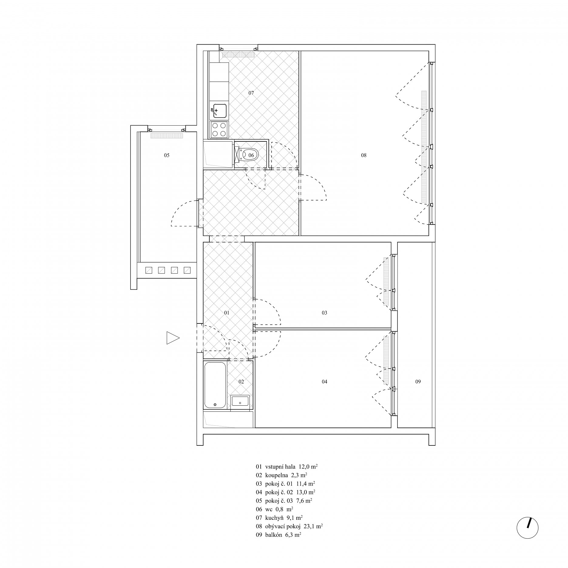
Pôdorys - východiskový stav
Pôdorys - východiskový stavAutor: RDTH architekti
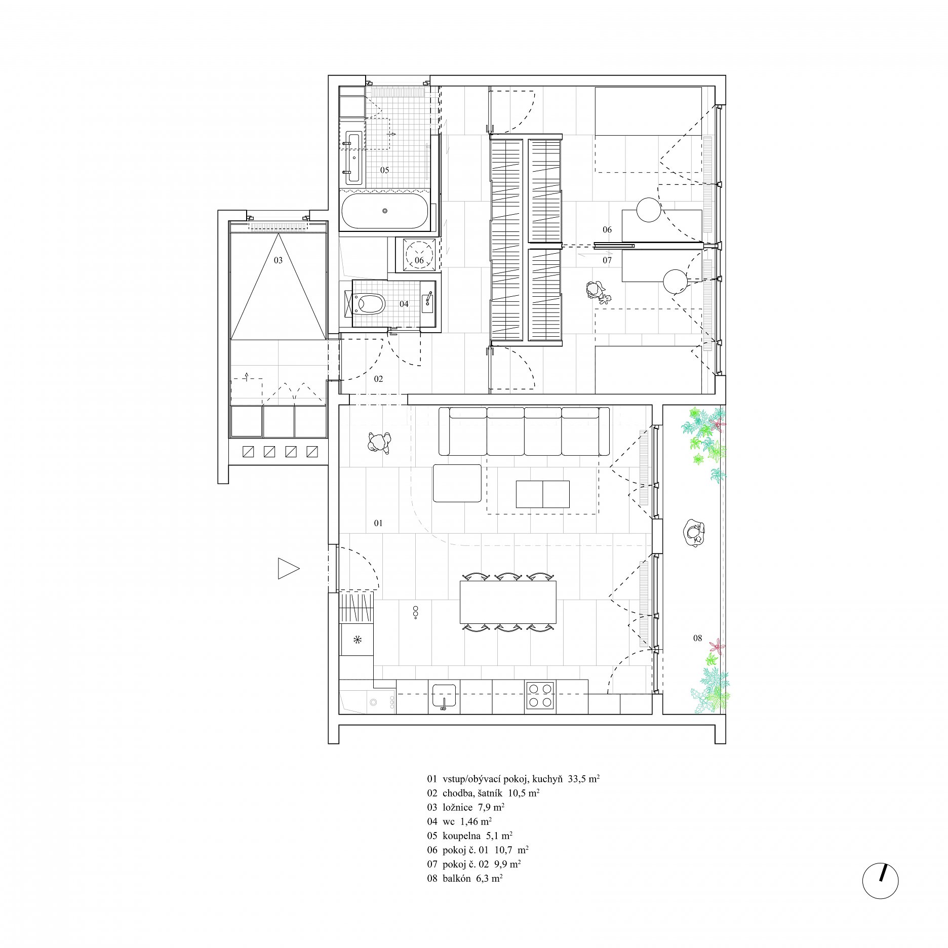
Pôdorys - nový stav
Pôdorys - nový stavAutor: RDTH architekti
Axonometria
AxonometriaAutor: RDTH architekti
Foto: Filip Beránek
Foto: Filip Beránek
Foto: Filip Beránek
Foto: Filip Beránek
Foto: Filip Beránek
Foto: Filip Beránek
Foto: Filip Beránek
Foto: Filip Beránek
Foto: Filip Beránek
Foto: Filip Beránek
Foto: Filip Beránek
Foto: Filip Beránek
Foto: Filip Beránek
Foto: Filip Beránek
Foto: Filip Beránek
Foto: Filip Beránek
Foto: Filip Beránek
Foto: Filip Beránek
Foto: Filip Beránek
Foto: Filip Beránek
Foto: Filip Beránek
Foto: Filip Beránek
Foto: Filip Beránek
Foto: Filip Beránek
Foto: Filip Beránek
Foto: Filip Beránek
Foto: Filip Beránek
Foto: Filip Beránek
Foto: Filip Beránek
Foto: Filip Beránek
Foto: Filip Beránek
Foto: Filip Beránek

 

Fotografie pôvodného stavu:

Podklady: René Dlesk / RDTH architekti
Fotografie: Filip Beránek

Poloha diela

Ing. arch. René Dlesk, Phd.
Ing. arch. Tamara Kolaříková

Súvisiace články

Vložené
20. júl 2022
0
6197
Hlavný obsahHlavný obsah
Čakajte prosím