Advertorial

Pozvánka na 2. ročník stavebného veľtrhu BigMarket na Slovensku

Na podujatí sa predstaví až 37 vystavovateľov - popredných dodávateľov stavebných materiálov a inovácií s prezentáciou...

Hotel Hirschen Spa House, Rakúsko

Novotvar v prostredí alpskej obce.

Vytvorte si kúpeľňu snov: dizajnové riešenie od značky hansgrohe

Hansgrohe - prémiová značka kúpeľňových riešení, ponúka nadčasový dizajn, technickú precíznosť a udržateľné inovácie...

Okná Internorm za minuloročné ceny + hliníkový kryt zdarma!

Využite špeciálnu akciu Internorm: okná za minuloročné ceny a hliníkový kryt úplne zadarmo. Ponuka je časovo obmedzená!

Moderné plynové technológie: Efektivita a inovácie pre 21. storočie

Sumarizácia najdôležitejších inovácií, ktoré redefinujúcich využitie tohto energetického zdroja.

Utesňovanie spodných stavieb pomocou hydro-aktívnej fólie AMPHIBIA.

AMPHIBIA 3000 GRIP 1.3 od spoločnosti ATRO predstavuje modernú hydroizolačnú technológiu, ktorá spája vysokú odolnosť,...

Dekarbonizácia individuálneho vykurovania domácností – Green Deal evolučne a nie revolučne

Ambiciózne plány EK narazili na ekonomické možnosti domácností v jednotlivých členských štátoch –...

Minimalistické dvere IDEA – technická precíznosť a čistota prevedenia

IDEA DOOR od spoločnosti JAP prináša do interiéru čistý minimalistický vzhľad vďaka bezrámovému riešeniu a precíznej...

Dom s výhľadom na údolie, Dlouhý Most (ČR)

Kontinuita riešenia od vonkajšieho obkladu až po kovania a kľučky.

Schell Vitus – osvedčené riešenie pre sprchy a umývadlá vo verejnom sektore s viac ako desaťročnou tradíciou

Nástenné nadomietkové armatúry Vitus sú mimoriadne vhodné pre rýchlu a efektívnu...

Kompozitné okná predstavujú súčasnosť a budúcnosť

Okenné profily z kompozitného materiálu RAU-FIPRO X od spoločnosti Rehau sú v porovnaní s tradičnými plastovými profilmi mnohonásobne...

Myotis - stoly 2025

Najnovší sortiment stolov pre zariadenie interiérov...

Priemyselné sklenené priečky Dorsis Digero: svetelné rozhranie pre moderné interiéry

Spojenie moderného dizajnu, funkčnosti a svetla do harmonického architektonického prvku.

Význam prirodzeného svetla pre moderné a flexibilné pracovné prostredie

Kancelárska budova Baumit v slovinskom Trzine prešla premenou na moderné a udržateľné pracovisko. Architekti kládli dôraz...

Konferencia Xella Dialóg predstaví novinky a trendy v stavebníctve

Mottom šiesteho ročníku on-line konferencie odborníkov Xella Dialóg je Efektívny návrh budov 2025+: zmeny a riešenia

Byt Tusarova, Praha – Holešovice

Svetlo vs. tieň.
Diela
Red 314.03.2023
20830+41
Byt Tusarova, Praha – Holešovice
Autori: Petra Ciencialová, Kateřina PrůchováPodlažná plocha: 73 m²Investičný náklad: 63 000 €Návrh: 2020 - 2021Realizácia: 2021 - 2021Adresa: Tusarova 37, Praha 7 – Holešovice, Česká republikaPublikované: 14. marec 2023

Bytový dom na pražskej ulici Tusarova na prvý pohľad upúta svojou brutalistickou architektúrou. Autorom stavby zo 70. rokov je významný český architekt Karel Filsak.

Za jedným z charakteristických radov pásových okien sa nachádza byt s výmerou 73 m2, do ktorého prestavby sa pustili majitelia pod vedením pražského ateliéru Plus One Architects.

Foto: Radek Úlehla

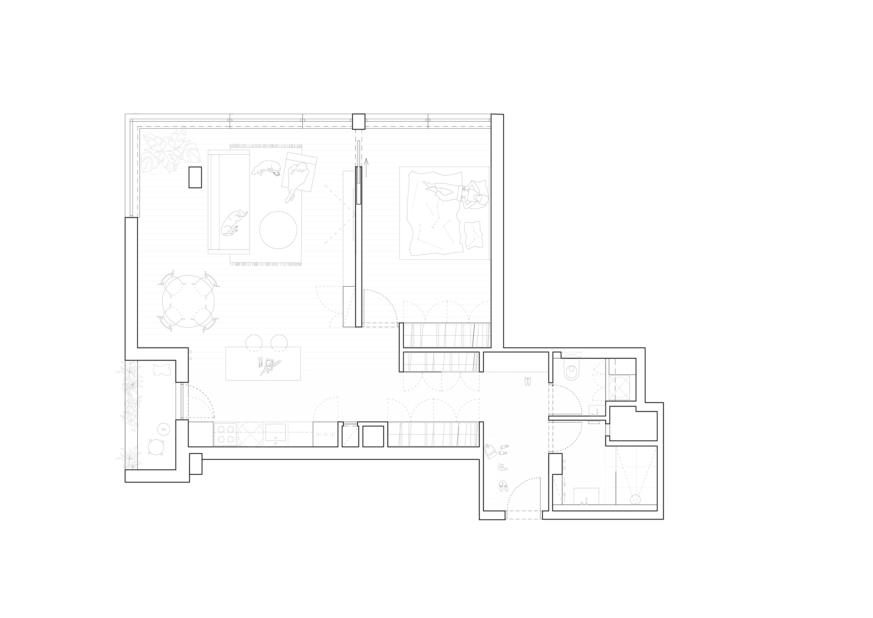
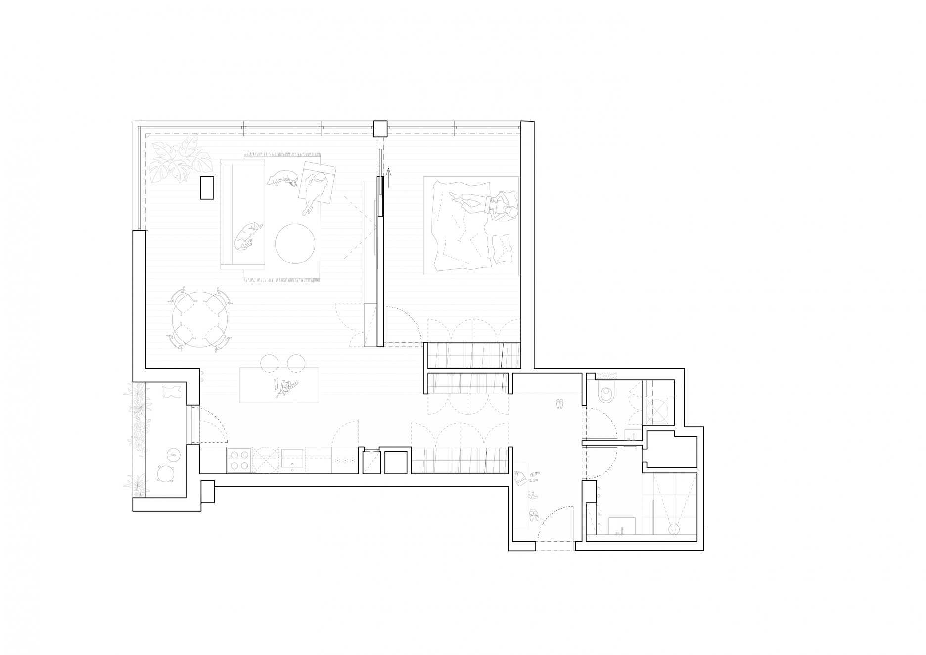
Architektky Petra Ciencialová a Kateřina Průchová v obývacej izbe a kúpeľni obnažili betónové stĺpy, tvoriace nosnú časť konštrukcie domu. Na prianie investora ďalej rozšírili kúpeľňu na úkor pôvodnej technickej miestnosti a šatníka, pričom úložné priestory nahradili sadou vstavaných skríň v chodbe.

Otvorená denná časť bytu, spojená po novom s kuchyňou a zádverím, vedie svetlo aj do pôvodne tmavého priestoru zádveria. K presvetleniu interiéru prispievajú tiež sklenené svetlíky nad všetkými dverami, vrátane tých do kúpeľne a toalety. 

Dennú aj nočnú zónu prepája jednotná dubová podlaha a stierka. Drevenú palubovku zvolili architektky pre priestory spálne a obývacej izby. Stierka prechádza pod kuchynským ostrovčekom - pomyselne sa tak oddeľuje obývacia časť bytu od technického a komunikačného zázemia.

Celý priestor je vybavený nábytkom na mieru. Niekde nenápadným bielym, v exponovaných miestach naopak oplášteným výraznou tmavou dubovou dyhou. 

Dominantu obytnej miestnosti tvorí kuchyňa, ktorá definuje jadro celého bytu. Spomínanú tmavú dyhu dopĺňa betónová pracovná doska a zástena so zaliatymi kusmi kameňa v hnedých odtieňoch. Rovnaká materiálová skladba charakterizuje aj kuchynský ostrovček.

Ďalším výrazným materiálom je plech, použitý v každej z miestností. Či už v podobe knižnice, barových stoličiek, alebo podstavcov pre nočné stolíky. Neutrálne farby nechávajú  vyniknúť veľkoformátové obrazy.

Foto: Radek Úlehla
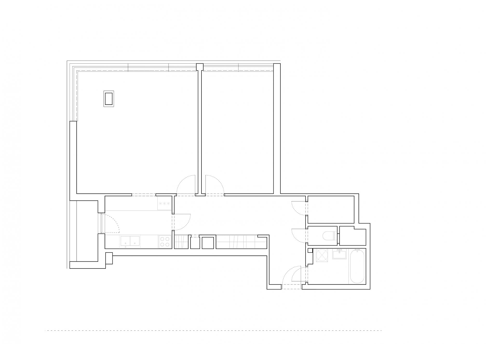
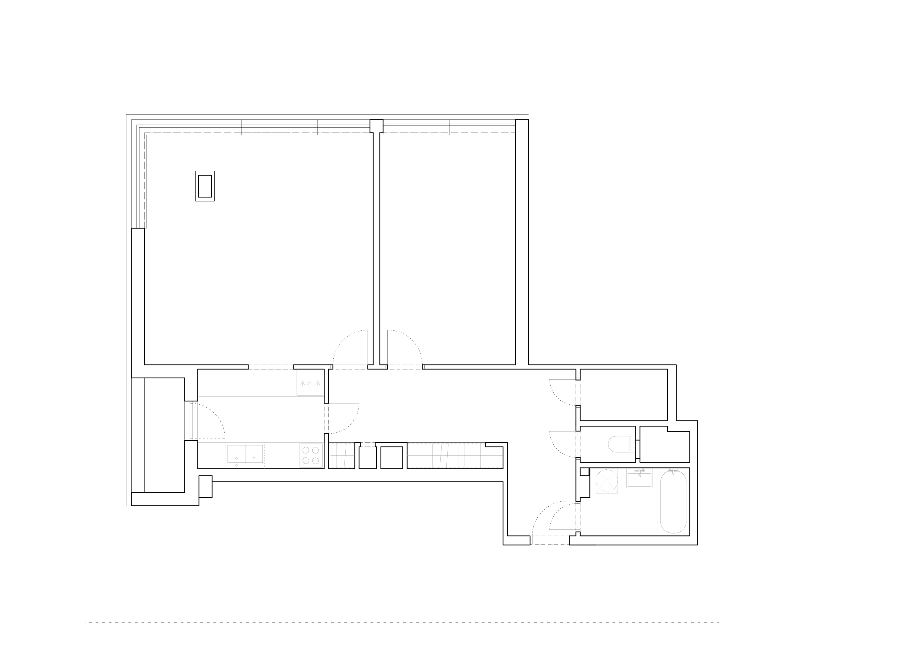
Pôdorys - pôvodný stav
Pôdorys - pôvodný stavAutor: Plus One Architects
Pôdorys - nový stav
Pôdorys - nový stavAutor: Plus One Architects
Foto: Radek Úlehla
Foto: Radek Úlehla
Foto: Radek Úlehla
Foto: Radek Úlehla
Foto: Radek Úlehla
Foto: Radek Úlehla
Foto: Radek Úlehla
Foto: Radek Úlehla
Foto: Radek Úlehla
Foto: Radek Úlehla
Foto: Radek Úlehla
Foto: Radek Úlehla
Foto: Radek Úlehla
Foto: Radek Úlehla
Foto: Radek Úlehla
Foto: Radek Úlehla

Materiály:

  • odhalený pôvodný betón - pôvodná nosná konštrukcia
  • betón - umývadlo, kuchynská doska, ostrovček
  • kameň - lokálne akcenty na kuchynskej linke a ostrovčeku
  • plech - knižnica
  • dubová dyha - nábytok podľa autorského návrhu

Autor: Plus One Architects
Podklady: Linka
Fotografie: Radek Úlehla

Poloha diela

Petra Ciencialová
Kateřina Průchová

Súvisiace články

Vložené
13. marec 2023
0
2083
Hlavný obsahHlavný obsah
Čakajte prosím